Treść strony
Jak minął 2021 rok? Kogo zapamiętamy? [Filmy]
Wczoraj odbyła się gminna uroczystość podsumowująca mijający rok. To zawsze okazja do doceniania zaangażowania mieszkańców, wręczenia nagród i podziękowań.
W ubiegłym roku, ze względu na obostrzenia epidemiczne, grudniowej uroczystości nie było. Tym razem, choć w skróconej formie, bez występów artystycznych i w reżimie sanitarnym, spotkaliśmy się w szkole w Grębocinie.
Tradycyjnie wójt Marek Nicewicz podsumował minione 12 miesięcy. To właśnie rozprzestrzenianie się groźnego wirusa spowodowało ograniczenie lub odwołanie zajęć i imprez, ale czas ten wykorzystano na remonty i budowę nowych obiektów. Wyremontowano wiele świetlic, w tym m.in. kompleksowo świetlice w Grabowcu i Lubiczu Górnym. W Gronowie byłą szkołę zaadaptowano na Dzienny Dom Senior+ i bibliotekę. W Złotorii buduje się remizo-świetlica, a w Lubiczu Dolnym sala sportowa dla szkoły. To tylko kilka przykładów.
Sukcesywny rozwój gminy byłby niemożliwy bez zgodnej współpracy wójta z Radą Gminy Lubicz, która uchwalając budżet decyduje o przeznaczeniu pieniędzy na konkretne cele. Mówił o tym przewodniczący rady Zbigniew Barcikowski.
Komendant gminny OSP Jacek Guranowski przybliżył działania strażaków. W gminie Lubicz działa dziewięć jednostek OSP. To formacja, na którą zawsze możemy liczyć nie tylko w przypadku usuwania skutków niebezpiecznych zdarzeń czy chronienia przed nimi, ale także pomocy w zapewnieniu bezpieczeństwa podczas różnych wydarzeń. Ten rok był także rokiem wyborczym dla strażaków. W niektórych jednostkach władze zmieniły się całkowicie, jak np. w Rogówku, a w innych druhowie zaufali dotychczasowym, np. w Brzezinku, gdzie prezesem od wielu, wielu lat jest Czesław Piątkowski.
Aktywność i rozwój gminy chwalił radny powiatowy Andrzej Siemianowski.
Nagrody wójta
Na podsumowaniu roku ogłoszono także tegoroczne nagrody wójta gminy Lubicz „za wkład i zaangażowanie w rozwój społeczności lokalnej”. Marek Nicewicz wręczył cztery statuetki.
Nagrodę otrzymał ks. proboszcz Bogumił Leszcz z Lubicza Górnego, który m.in. stworzył przy kościele nowoczesną aulę, dostosowaną do współczesnych potrzeb ewangelizacyjnych, duszpasterskich i kulturalnych, wyposażoną w sprzęt audiowizualny. Jest też animatorem życia społecznego, sprawnym organizatorem moderującym współpracę szerokiego kręgu osób świeckich w dziedzinach duszpasterskich i ewangelizacyjnych poprzez: wprowadzanie nowych form wychowania katolickiego, organizowanie na terenie parafii wydarzeń ewangelizacyjnych i kulturalnych czy zapewnienie możliwości działania i rozwoju zespołów muzycznych i wspólnot, itp.
Wiesława i Piotr Piasta, założyciele Stowarzyszenia One Passion One Love WP niezwykle aktywnie i z determinacją działają na rzecz osób z uzależnieniem. Swoją wiedzę i doświadczenie wykorzystują, pomagając, nie oczekując poklasku. Po cichu. Ich działania wpływają nie tylko na życie innych, ale także na pozytywny wizerunek gminy, jako samorządu wspierającego profilaktyczne działania i ludzi słabszych, będących w trudnej sytuacji życiowej. W tym roku Stowarzyszenie zorganizowało dla mieszkańców szereg imprez sportowo-rekreacyjnych, a organizowany, po raz kolejny, turniej z udziałem reprezentacji Polski w piłce ulicznej odbił się szerokim echem w całym kraju.
Nagrodzony Dionizy Gregorczyk to wieloletni strażak OSP Rogówko, doskonały organizator życia społecznego sołectwa, zawsze pomocny, a do tego cichy bohater – bez obawy o własne życie podjął się ratowania kobiety znajdującej się w studni.
Czwartą statuetką zostali uhonorowani sołtys Barbara Kisielewska wraz z członkami Rady Sołeckiej Złotorii za niezwykłą kreatywność w zakresie animowania aktywności społecznej mieszkańców, skuteczność w dążeniu do realizacji wizji, planów, marzeń, które mają wpływ na rozwój miejscowości i wizerunek gminy. Złotoria ma na swoim koncie wiele ciekawych projektów: w tym tegoroczny mural historyczny nawiązujący do I pokoju toruńskiego oraz inne wydarzenia historyczne i rekreacyjne integrujące mieszkańców. Zgodna współpraca pani sołtys i rady sołeckiej z Urzędem Gminy Lubicz wpisuje się także w wizje promowania gminy otwartej na potrzeby mieszkańców i przyjaznej dla gości.
Sportowcy i oświata
Wczoraj oficjalnie wręczono również nagrody wójta i przewodniczącego rady dla uczniów, a także dla wyróżniających się nauczycieli i dyrektorów szkół. Pisaliśmy o tym więcej tutaj.
I jak co roku władze gminy uhonorowały sportowców, którzy zdobywali laury na wydarzeniach sportowych najwyższej rangi w kraju i na arenach międzynarodowych. Oto nazwiska nagrodzonych:
- Łukasz Owsian – kolarstwo
- Maciej Kwiatkowski – kolarstwo
- Olga Wankiewicz – kolarstwo
- Daniel Rochna – kolarstwo
- Adam Pieszak – tenis ziemny
- Wiktoria Sajnóg – skoki na trampolinie
- Barbara Pilarska – żeglarstwo
- Aleksander Jankowski – karate
- Natalia Fijałkowska – tenis ziemny
- Oliwia Obuszewska – taniec współczesny
- Blanka Żywica – lekkoatletyka
- Krystian Żywica – lekkoatletyka
- Oskar Streich – wioślarstwo
- Kacper Polański – wioślarstwo
- Wiktoria Dąbrowska – kickboxing
- Wiktoria Ryczkowska – taniec nowoczesny
- Jerzy Kowalski – wioślarstwo
- Piotr Kopyciński – tenis ziemny
- Józef Kopyciński – tenis ziemny
- Filip Król – pływanie w płetwach
- Oliwia Kuszel – tenis ziemny
- Wojciech Kopyciński – triathlon
- Julia Hakobyan – wioślarstwo
- Franciszek Jarkiewicz – taniec towarzyski
- Jakub Słowik – lekkoatletyka
- Julia Cylka – wioślarstwo
- Witold Czyża – judo
- Natalia Skierkowska – kolarstwo
- Aleksander Szmajda – kickboxing
- Łukasz Szmajda – kickboxing
- Szymon Guranowski – hokej
- Weronika Lipertowicz – wioślarstwo
- Emil Rau – karate tradycyjne
- Julia Dąbrowska – wioślarstwo
- Jakub Wenker – hokej
- Amelia Cylka – wioślarstwo
- Jan Szczepański – taniec sportowy
- Filip Rau – karate tradycyjne
- Kacper Rempalski – skoki na trampolinie
Na koniec goście uroczystości otrzymali wyjątkowy kalendarz ze zdjęciami architektury gminy Lubicz autorstwa Młodzieżowych Spotkań Fotograficznych pod kierunkiem Katarzyny Rubiszewskiej wydany przed Urząd Gminy Lubicz. Mieszkańcy zainteresowani kalendarzem będą go mogli dostać od 4 stycznia. W pierwszy poniedziałek 2022 roku podamy szczegóły.
Nagrodzonym gratulujemy, a wszystkim Państwu życzymy szczęśliwego i zdrowego Nowego Roku.
>>> Gminna uroczystość podsumowania roku 2021 [YouTube]
>>> Wójt Marek Nicewicz podsumowuje 2021 rok [YouTube]
drukuj (Jak minął 2021 rok? Kogo zapamiętamy? [Filmy])
Metryka
- Data 2021-12-31
Odbiór śmieci niesegregowanych
Miejskie Przedsiębiorstwo Oczyszczania Sp. z o. o. w Toruniu informuje, że ze względu na święto Trzech Króli przypadające 6 stycznia. zmianie ulegną terminy odbioru odpadów.
Środa 5.01.2022 r. – odbieramy tak, jak w każdą środę oraz trasa czwartkowa:
- Lubicz Dolny: Ciemna, Dworcowa od 19, Dworcowa od 36, Grębocka od 1-5, Grębocka od 2 -6, Kolejowa, Konwaliowa, Krótka, Magnoliowa, Narcyzowa, Niezapominajki, Spółdzielcza bloki, Szkolna, Topolowa, Toruńska, Wilczy Młyn, Zbożowa,
- Lubicz Górny, bloki: Kołłątaja, Paderewskiego, Rataja.
Piątek 7.01.2022 r. – odbieramy jak w każdy piątek oraz z pozostałych ulic trasy czwartkowej:
- Lubicz Dolny: Akacjowa, Brzozowa, Jesionowa, Kasztanowa, Klonowa, Leśna, Liliowa, Lipowa, Młyńska, Różana, Sosnowa, Tulipanowa, Podgórna, Leśna Polana.
Harmonogram wywozu odpadów na 2022 rok znajdziecie tutaj.
drukuj (Odbiór śmieci niesegregowanych)
Metryka
- Data 2021-12-31
Odbiór śmieci niesegregowanych
Miejskie Przedsiębiorstwo Oczyszczania Sp. z o. o. w Toruniu informuje, że ze względu na święto Trzech Króli przypadające 6 stycznia. zmianie ulegną terminy odbioru odpadów.
Środa 5.01.2022 r. – odbieramy tak, jak w każdą środę oraz trasa czwartkowa:
- Lubicz Dolny: Ciemna, Dworcowa od 19, Dworcowa od 36, Grębocka od 1-5, Grębocka od 2 -6, Kolejowa, Konwaliowa, Krótka, Magnoliowa, Narcyzowa, Niezapominajki, Spółdzielcza bloki, Szkolna, Topolowa, Toruńska, Wilczy Młyn, Zbożowa,
- Lubicz Górny, bloki: Kołłątaja, Paderewskiego, Rataja.
Piątek 7.01.2022 r. – odbieramy jak w każdy piątek oraz z pozostałych ulic trasy czwartkowej:
- Lubicz Dolny: Akacjowa, Brzozowa, Jesionowa, Kasztanowa, Klonowa, Leśna, Liliowa, Lipowa, Młyńska, Różana, Sosnowa, Tulipanowa, Podgórna, Leśna Polana.
Harmonogram odpadów na 2022 rok znajdziecie tutaj.
Metryka
- Data 2021-12-31
Wyniki ankiety. Chcemy jeździć szynobusem
Dziękujemy wszystkim, którzy wyrazili swoje zdanie na temat planowanego połączenia kolejowego przez Lubicz Dolny i Lubicz Górny. Ankietę wypełniło 201 osób.
Z ankiety wynika, że pomysł cieszy się bardzo dużym zainteresowaniem osób, które wypełniły ankietę. 93,5 proc. z nich zadeklarowało regularne korzystanie z połączeń do Torunia i z powrotem. Najwięcej, bo 44 proc. osób uznało, że szynobus powinien kursować co 20 minut, a 35,2 proc. - co 10 minut.
Oprócz wypełnienia ankiety poprosiliśmy też mieszkańców o wyrażenie swojego zdania w komentarzach na FB Gmina Lubicz. Post stał się niezwykle popularny.
- Ciekawe propozycje mieszkańcy mieli odnośnie miejsca lokalizacji przystanku – mówi wójt Marek Nicewicz. - Poza wskazanym przez nas pojawiły się jeszcze dwa inne miejsca. Będziemy je rozważać na etapie rozmów nad tym projektem. Kluczowe jest tu stanowisko PKP Polskie Linie Kolejowe. O efektach poinformujemy.
Dziękujemy za udział w ankiecie i wszystkie opinie na ten temat.
Przypomnijmy, jak zapowiada marszałek województwa Piotr Całbecki, z końcem stycznia 2022 wznowione zostaną połączenia szynobusem na linii Toruń-Sierpc. Projekt zakłada m.in. powstanie przystanków kolejowych w miejscach wynikających z potrzeb komunikacyjnych mieszkańców. Na naszym terenie pociąg będzie się zatrzymywał tak, jak kiedyś w Lubiczu Dolnym. Dodatkowo, w przypadku naszej gminy, rozważa się opcję budowy nowego przystanku na wysokości bloków spółdzielni mieszkaniowej w Lubiczu Górnym. Od lat w planach miejscowych Lubicza Górnego przewiduje się miejsce pod budowę nowego przystanku kolejowego z możliwością dostępu do bezpłatnego parkingu dla pasażerów. Pisaliśmy o tym więcej tutaj.
drukuj (Wyniki ankiety. Chcemy jeździć szynobusem)
Metryka
- Data 2021-12-29
Grudniowa sesja Rady Gminy Lubicz
XXXVIII sesja Rady Gminy Lubicz odbędzie się 30 grudnia o godz. 10.00 w świetlicy wiejskiej w Krobi (ul. Olimpijska 14). Zapraszamy do zapoznania się ze szczegółami.
Proponowany program sesji >>> tutaj
Transmisja z obrad sesji >>> tutaj
drukuj (Grudniowa sesja Rady Gminy Lubicz)
Metryka
- Data 2021-12-28
Nie marnujmy jedzenia, przekażmy potrzebującym
Przed nami okres świąteczno-noworoczny, a zatem czas, kiedy kupujemy więcej produktów spożywczych i przygotowujemy zdecydowanie więcej posiłków. Nie zawsze jednak to wszystko zjadamy.
Nie marnujmy jedzenia, przekażmy tym, którzy mają go za mało.
W Lubiczu Górnym z inicjatywy radnego Zbigniewa Bombolewskiego na wiosnę powstała pierwsza w naszej gminie jadłodzielnia. Mieści się ona przy sklepie przy ul. Kołłątaja 2 w Lubiczu Górnym (między blokami spółdzielni).
Każdy tu może zostawić żywność i każdy poczęstować się tym, czym podzielą się inni.
Nie przynosimy: alkoholu, surowego mięsa i produktów z surowymi jajami, a także nieświeżego jedzenia. Posiłki dobrze jest odpowiednio zapakować (np. w słoiki), opisać i podać ich datę przydatności.
Jak mówią panie z pobliskiego sklepu, jadłodzielnia przyjęła się i dużo osób z niej korzysta. Zarówno tych, którzy darują, jak i tych, którzy przyjmują te dary.
Co zrobić z jedzeniem, które zostanie po świętach? Już wiecie.
drukuj (Nie marnujmy jedzenia, przekażmy potrzebującym)
Metryka
- Data 2021-12-23
Spotkajmy się przy szopce i zaśpiewajmy
To stało się już tradycją, bo po raz trzeci w grudniu na Pl. Niepodległości przy amfiteatrze w Lubiczu Górnym stanęła szopka bożonarodzeniowa.
Inicjatorem tej atrakcji dla mieszkańców jest radny gminny Zbigniew Bombolewski, którego tym razem wsparli Beata Zielińska, Dariusz Przybyszewski oraz syn Piotr.
Szopka cieszy oko, ale i przypomina wydarzenia sprzed ponad 2 tysięcy lat. Jest także miejscem odwiedzin w okresie świąt całych rodzin i różnych grup śpiewaczych. Kolędować przy niej mogą wszyscy chętni, a w tym roku nastrój Bożego Narodzenia okrasi nam swoimi występami młodzież ze Wspólnoty Drzewo Życia pod kierunkiem Marcina Iżyka z parafii w Lubiczu Górnym. Śpiewanie kolęd przy szopce wspólnie z nimi odbędzie się 26 grudnia (w drugi dzień świąt) o godz. 15.30 oraz o tej samej porze w święto Trzech Króli, czyli 6 stycznia.
drukuj (Spotkajmy się przy szopce i zaśpiewajmy)
Metryka
- Data 2021-12-21
Zapraszamy do lektury „Gońca gminnego”
Grudniowy numer „Gońca gminnego” jest już gotowy. Zanim dotrze do nas z drukarni możecie go Państwo przeczytać w wersji elektronicznej.
Gazeta powinna być u nas we wtorek, więc od tego dnia będziemy ją dystrybuować tak, aby jeszcze przed świętami dotarła do Państwa.
Jeśli ktoś ma ochotę zajrzeć do niej wcześniej, to zapraszamy tutaj.
drukuj (Zapraszamy do lektury „Gońca gminnego”)
Metryka
- Data 2021-12-17
Carski dokument zamieszkał w Mierzynku
Zabytkowy dokument z czasów zaborów, odnowiony dzięki konserwatorowi Dariuszowi Suboczowi, trafił do Izby Tradycji w Mierzynku prowadzonej przez miejscową Ochotniczą Straż Pożarną.
Jednostka straży z Mierzynka od dawna dba o zachowanie pamięci o historii straży. Przy wiejskiej świetlicy powstała Izba Pamięci, w której można znaleźć cała masę eksponatów. – Mamy nadpalony stary hełm strażacki. Zdobyliśmy go od jednostki spoza gminy, która chciała go wyrzucić. Strażak noszący ten hełm ratował dziecko. Niestety, oboje zginęli – opowiadał nam druh Stanisław Giziński, twórca izby. W tym małym „muzeum” można też zobaczyć m.in. łomy pożarnicze z II poł. XVIII wieku, syrenę, prądnice, pochodnie, żelazka i inne przedmioty.
Strażacy w swoich zbiorach mieli również bardzo sfatygowany przez czas zabytkowy dokument z czasów zaborów z 1864 roku. Dzięki gminie i Dariuszowi Suboczowi z Pracowni Konserwacji działającej przy Muzeum Piśmiennictwa i Drukarstwa w Grębocinie zabytek, opatrzony godłem Rosji Carskiej, został odrestaurowany i ponownie udostępniony zwiedzającym.
Druhowie z Mierzynka Izbę udostępniają do zwiedzania bezpłatnie, dodatkowo opowiadając o eksponatach, które składają się na historię straży.
drukuj (Carski dokument zamieszkał w Mierzynku)
Metryka
- Data 2021-12-15
Pociągiem z Lubicza Górnego do Torunia?
Jak zapowiada marszałek województwa Piotr Całbecki, z końcem stycznia 2022 wznowione zostaną połączenia szynobusem na linii Toruń-Sierpc. Przy tej okazji powraca pomysł powstania nowego przystanku w Lubiczu Górnym.
W ostatnim czasie pojawia się wiele koncepcji poprawy systemu komunikacyjnego na terenie naszej gminy. Jedną z nich jest plan przebudowy linii kolejowej na trasie Toruń-Sierpc. Projekt zakłada m.in. powstanie przystanków kolejowych w miejscach wynikających z potrzeb komunikacyjnych mieszkańców. Na naszym terenie pociąg będzie się zatrzymywał tak, jak kiedyś w Lubiczu Dolnym. Dodatkowo, w przypadku naszej gminy, rozważa się opcję budowy nowego przystanku na wysokości bloków spółdzielni mieszkaniowej w Lubiczu Górnym (miejsce pokazujemy na grafice). Od lat w planach miejscowych Lubicza Górnego przewiduje się miejsce pod budowę nowego przystanku kolejowego z możliwością dostępu do bezpłatnego parkingu dla pasażerów. Pytanie – czy mieszkańcy są tym zainteresowani?
- W związku z tym zwracam się do mieszkańców z prośbą o wypełnienie krótkiej ankiety, ponieważ chciałbym poznać Państwa zdanie na ten temat, by jak najlepiej przedstawić potrzeby mieszkańców naszej gminy w momencie tworzenia siatki połączeń – mówi wójt Marek Nicewicz.
Jeżeli nie posiadacie Państwa konta Google, co uniemożliwia udział w ankiecie, prosimy o wyrażenie swojej opinii na poruszony temat w komentarzu na FB Gmina Lubicz - tutaj. Z ankiety i komentarzy chcielibyśmy przede wszystkim dowiedzieć się, czy zamierzacie regularnie korzystać z połączeń kolejowych na trasie Toruń – Lubicz Dolny – Lubicz Górny? I jak często powinny odbywać się kursy?
Wyniki ankiety, a także Państwa komentarze zostaną szczegółowo przeanalizowane przez wójta gminy przed następnym spotkaniem w sprawie uruchomienia linii Toruń – Sierpc.
Aktualizacja z 23.12. Na odpowiedzi czekaliśmy do 23 grudnia, do godz. 14.00, więc ankieta została zamknięta. Dziękujemy za wszystkie głosy.
drukuj (Pociągiem z Lubicza Górnego do Torunia?)
Metryka
- Data 2021-12-16
Gospodarka odpadami w nowym roku
Od nowego roku opłata za śmieci w gminie Lubicz miesięcznie będzie wynosić 22 zł od osoby. Taka stawka wynika m.in. z oferty złożonej przez Miejskie Przedsiębiorstwo Oczyszczania w Toruniu, które wygrało przetarg na odbiór odpadów z naszej gminy. Innych chętnych nie było.
Zmiana stawek opłaty za odbiór i zagospodarowanie odpadów komunalnych jest związana z systematycznym wzrostem kosztów funkcjonowania systemu gospodarki odpadami, które obejmują, m.in. odbieranie, transport, odzysk i unieszkodliwianie odpadów komunalnych, utrzymanie punktu selektywnej zbiórki odpadów komunalnych (PSZOK) czy obsługę administracyjną.
O nowej stawce 22 zł od osoby miesięcznie mieszkańcy zostaną również poinformowani listownie. To opłata za śmieci segregowane na pięć frakcji. Zmiana stawki nie oznacza konieczności składania nowej deklaracji.
Nowelizacja ustawy o utrzymaniu czystości i porządku w gminach bezwzględnie zobowiązuje do segregowania odpadów komunalnych. - Dlatego mieszkańcom, którzy nie będą przestrzegać zasad segregacji zostanie naliczana wyższa opłata, stanowiąca dwukrotność ustalonej stawki tj. 44 zł od każdej osoby w gospodarstwie domowym, za każdy miesiąc naruszenia zasad segregacji – przestrzega Dorota Kamińska, kierownik Referatu Gospodarki Odpadami Urzędu Gminy Lubicz.
Harmonogram wywozu odpadów w 2022 roku publikujemy niżej (będzie on też wysłany do mieszkańców). Przypominamy również, że rok temu uruchomiliśmy dostęp do aplikacji na telefon „Kiedy śmieci?”, która przypomina o zbliżającym się terminie wywozu. Ściągniecie ją za pośrednictwem Google Play czy App Store.
Jeżeli odpady nie zostaną zabrane w wyznaczonym dniu albo zdarzą się inne zakłócenia dotyczące zbiórki, należy niezwłocznie złożyć reklamację (w najbliższy dzień roboczy) w Referacie Gospodarki Odpadami Urzędu Gminy Lubicz: e-mailowo, wysyłając wiadomość na adres go@lubicz.pl, podając swoje dane oraz adres posesji lub telefonicznie pod nr 56 621 21 28. To pracownicy tego referatu w bezpośrednim kontakcie z firmami wywożącymi odpady mogą interweniować w zgłaszanej przez mieszkańców sprawie. Firma na zrealizowanie reklamacji ma trzy dni robocze. Zgłoszenie po dłuższym czasie wyklucza możliwość wyjaśnienia sytuacji.
Przypominamy również, że w Lubiczu Górnym funkcjonuje bezpłatny dla mieszkańców Punkt Selektywnej Zbiórki Odpadów Komunalnych (PSZOK), który przyjmuje selektywnie zebrane odpady komunalne z gospodarstw domowych. Od nowego roku PSZOK będzie czynny: od marca do października - od wtorku do piątku, w godz. od 10.00 do 18.00, natomiast od listopada do lutego - od wtorku do piątku, w godz. od 8.00 do 16.00, a w każdą sobotę w godz. od 9.00 do 14.00 (tel. 797 999 886 w godzinach funkcjonowania PSZOK).
24 grudnia br. Punkt będzie zamknięty.
drukuj (Gospodarka odpadami w nowym roku)
Metryka
- Data 2021-12-16
W te dni Urząd Gminy będzie zamknięty [Aktualizacja]
Informujemy, że piątek 24 grudnia br. i piątek 7 stycznia 2022 roku są dniami wolnymi od pracy w Urzędzie Gminy Lubicz w zamian za święta przypadające w soboty: 25 grudnia br. i 1 stycznia 2022 roku.
31 grudnia urząd gminy będzie otwarty do 12.00.
drukuj (W te dni Urząd Gminy będzie zamknięty [Aktualizacja])
Metryka
- Data 2021-12-15
Stawki lokalnych podatków w 2022 roku
Jak co roku Rada Gminy Lubicz uchwaliła stawki podatków na kolejne 12 miesięcy. Jakie będą w 2022 roku? Prosimy o zapoznanie się uchwałami.
Stawki podatków zostały przyjęte 30 listopada. Uchwały są prawomocne. Wszystkie znajdziecie Państwo pod tym linkiem.
drukuj (Stawki lokalnych podatków w 2022 roku)
Metryka
- Data 2021-12-15
Tablica upamiętni tamte chwile na zawsze [Film]
Minęło już 40 lat. Na twarzach działaczy rolniczej „Solidarności” biorących udział w odsłonięciu tablicy pamiątkowej na budynku Urzędu Gminy Lubicz było widać zadumę i wzruszenie. Wspominano nieobecnych.
Na uroczystości 40-lecia powstania „Solidarności” Rolników Indywidualnych, które odbyły się 10 grudnia w naszej gminie składały się msza św. w Grębocinie oraz odsłonięcie tablicy pamiątkowej wmontowanej w ścianę urzędu gminy przy ul. Toruńskiej 21 w Lubiczu Dolnym, gdyż to tutaj miała swą siedzibę gminna „Solidarność” rolników. Lubicki urząd najprawdopodobniej był jedynym w Polsce, który udostępnił lokal na działalność nowo powstałemu związkowi rolników indywidualnych. W wystąpieniu mówił o tym ówczesny sekretarz urzędu gminy Andrzej Hercka, pełniący wówczas jednocześnie obowiązki naczelnika gminy.
W piątek w Lubiczu Dolnym nie zabrakło dużego grona świadków tamtych wydarzeń, łącznie z Michałem Józefem Leszczycem-Grabianką, działaczem niezależnego ruchu chłopskiego, organizatorem i uczestnikiem strajków chłopskich z 1980 r. Osób, których nie ma już wśród nas reprezentowały rodziny, dzieci, wnukowie.
Tablica została odsłonięta przez przedstawicieli ówczesnych władz zarządu: Klemensa Dębowskiego, Tadeusza Stawskiego oraz Wojciecha Kozickiego – syna Ryszarda Kozickiego, przewodniczącego, który nie mógł przyjechać osobiście.
Uroczystościom towarzyszyła specjalna wystawa użyczona nam przez Książnicę Kopernikańską w Toruniu.
Ukazało się także specjalne wydanie „Gońca gminnego” przygotowane przez Referat Promocji i Komunikacji Społecznej Urzędu Gminy Lubicz przy współpracy Danuty Latowskiej (pracownika biura „S”) i Andrzeja Hercki – z komitetu organizującego obchody. Dla zainteresowanych załączamy je także pod tekstem w pdf.
Zapraszamy również do obejrzenia filmu autorstwa Michała Grabianki i Mariusza Ludy opowiadającego historię powstania „Solidarności” Rolników Indywidualnych w województwie toruńskim, także w gminie Lubicz:
Więcej zdjęć znajdziecie Państwo na FB Gmina Lubicz.
drukuj (Tablica upamiętni tamte chwile na zawsze [Film])
Metryka
- Data 2021-12-13
W poniedziałek brak dojazdu do PSZOK
Uwaga! 13 grudnia nie będzie możliwości dojazdu do gminnego Punktu Selektywnej Zbiórki Odpadów Komunalnych w Lubiczu Górnym ze względu na prace ziemne na drodze dojazdowej.
drukuj (W poniedziałek brak dojazdu do PSZOK)
Metryka
- Data 2021-12-10
To będzie już 30. Finał!
Lubicki sztab Wielkiej Orkiestry Świątecznej Pomocy po raz trzeci przygotowuje się do akcji. Osoby, które chcą czynnie zaangażować się w styczniowy Finał prosimy o kontakt ze sztabem.
Znowu będzie się działo. Ale ze względu na niepewną sytuację epidemiologiczną lubicki sztab zdecydował, że spotykamy się głównie na zewnątrz. Już dziś zapowiadamy zatem kolejny bieg „Z biegiem Drwęcy”, morsowanie w Józefowie i spacer z pupilem, czyli te wydarzenia, które w ubiegłym roku cieszyły się bardzo dużym powodzeniem.
W kilku sołectwach odbędą się także lokalne kiermasze, a Złotoria szykuje bal „Dar Serca”.
Na finałowe wydarzenia z licytacjami w tym roku zapraszamy wszystkich do Amfiteatru do Lubicza Górnego.
Osoby, które chcą czynnie zaangażować się w Finał prosimy o kontakt ze sztabem – wolontariuszy, chętnych do przekazania fantów lub przedsiębiorców, którzy w swoich sklepach czy zakładach usługowych chcieliby wystawić puszkę stacjonarną. Kontakt przez FB Sztab Wośp Lubicz Dolny lub e-mail sztab.wosp.lubicz@gmail.com.
Przygotowania trwają, wszystkie szczegóły bliżej terminu Finału znajdziecie na FB Sztab Wośp Lubicz Dolny.
Zbiórka pieniędzy na Orkiestrę w 2022 r. posłuży zapewnieniu najwyższych standardów diagnostyki i leczenia wzroku u dzieci.
Gmina Lubicz wspiera sztab organizacyjnie i logistycznie.
drukuj (To będzie już 30. Finał!)
Metryka
- Data 2021-12-10
Rowerzyści będą bezpieczniejsi
Zakończyła się budowa ścieżki pieszo-rowerowej z Lubicza Dolnego przez Jedwabno do Rogówka. Trakt o długości 4,3 km został zlokalizowany na całym odcinku po południowo-zachodniej stronie pasa drogowego.
Jest to droga rowerowa jednopasowa dwukierunkowa o nawierzchni bitumicznej i miejscowo z kostki brukowej, szerokości 2 m jako samodzielny ciąg rowerowy oraz na odcinkach przy jezdni, poszerzony jako ciąg pieszo-rowerowy. W ramach realizacji zadania wykonane zostały również zjazdy do posesji z kostki brukowej.
W trakcie budowy pojawiały się różne komplikacje, np. na ul. Dworcowej w okolicach sklepu „Biedronka" w Lubiczu Dolnym rosnący w pasie ścieżki dąb. Z inicjatywy mieszkanki Elżbiety Parzniewskiej przy wsparciu radnej Teresy Klawińskiej i innych mieszkańców, udało się dokonać zmiany projektu w tym miejscu i uratować drzewo.
6 grudnia odbył się odbiór wewnętrzny ścieżki. Drobne usterki mają być wykonane do końca roku. W przyszłym roku na wiosnę teren przyległy do ścieżki zostanie dodatkowo uporządkowany wraz z miejscowym uzupełnieniem dosiewu trawy.
Inwestorem przedsięwzięcia jest właściciel drogi 2010C, czyli powiat toruński, którego finansowo wsparła również gmina Lubicz, a także Europejski Fundusz Rozwoju Regionalnego.
drukuj (Rowerzyści będą bezpieczniejsi)
Metryka
- Data 2021-12-07
Regularnie pozbywamy się azbestu
Kolejny rok gmina Lubicz pozyskała dofinansowanie z Wojewódzkiego Funduszu Ochrony Środowiska i Gospodarki Wodnej w Toruniu na realizację zadania pn. „Demontaż, transport i unieszkodliwienie wyrobów zawierających azbest z terenu gminy Lubicz w latach 2021-2023”.
Z programu skorzystało 27 właścicieli nieruchomości, a azbest usunięto z 37 obiektów.
Uzyskany efekt ekologiczny to 80,45 Mg (ton).
W tym roku zadanie zostało dofinansowane przez WFOŚiGW kwotą 17 200,21 zł - to 40 procent kosztów kwalifikowanych. Całkowity koszt przedsięwzięcia wyniósł 43 000,62 zł. Pozostała część w wysokości 25 800,41 zł pochodziła z budżetu gminy Lubicz.
drukuj (Regularnie pozbywamy się azbestu)
Metryka
- Data 2021-12-07
NSZZ „Solidarność” RI. 40 lat minęło
10 grudnia odbędzie się uroczystość upamiętnienia 40. rocznicy powstania w gminie Lubicz NSZZ „Solidarność” Rolników Indywidualnych. Na godz. 10.30 zaplanowana jest msza w kościele parafialnym w Grębocinie, a o 12.00 odsłonięcie pamiątkowej tablicy na budynku urzędu gminy w Lubiczu Dolnym.
W uroczystościach wezmą udział ówcześni związkowcy, ich rodziny i przyjaciele, historycy zajmujący się tą tematyką oraz zaproszeni goście. Zapraszamy także innych mieszkańców.
Tablica pamiątkowa została wmontowana w ścianę urzędu gminy przy ul. Toruńskiej 21 w Lubiczu Dolnym, gdyż to tutaj miała swą siedzibę gminna „Solidarność” rolników.
Jej historię przypominamy w materiale przygotowanym przez Andrzeja Herckę ze Złotorii.
Po 40. latach
Na historię i losy ojczyzny składają się losy zwykłych ludzi. Członków naszych rodzin, znajomych, sąsiadów. Winniśmy być dumni z osób, które swoją postawą, odwagą, bohaterstwem miały wpływ na miejsce, gdzie jesteśmy jako kraj i naród. Chcąc upamiętnić wydarzenia związane z powstaniem rolniczej „Solidarności” na terenie gminy Lubicz sprzed 40 lat, zawiązał się Komitet Inicjujący, który zwrócił się do wójta gminy Lubicz Marka Nicewicza o pomoc w uczczeniu tamtych wydarzeń. Dzięki tym zabiegom odsłonimy tablicę pamiątkową, mającą przypominać bohaterów tamtych czasów.
Solidarność serc
W okresie od sierpnia 1980 do grudnia 1981 ,,Solidarność” ze związku zawodowego przerodziła się w masowy ruch o charakterze społeczno-niepodległościowym. W szczytowym okresie do ,,Solidarności” należało 10 mln Polaków, w tym rolnicy indywidualni. Szacuje się, że było ich kilkaset tysięcy, a niektórzy mówią nawet o 3 milionach. Warto pamiętać, iż ,,Solidarność” nie była tylko związkiem zawodowym, ale że przekładała się na prawdziwą ludzką solidarność.
Trudne chwile
Pierwszy etap walki o prawa ,,Solidarności” robotniczej i rolniczej został zatrzymany przez ówczesną władzę pod koniec 1981 roku. Wprowadzając stan wojenny na terenie całej Polski, władze zawiesiły działalność wszystkich organizacji społecznych oraz związków zawodowych. W ramach akcji „Jodła", wieczorem 12 grudnia 1981 roku internowano działaczy ,,Solidarności”, w tym także rolników z naszej gminy. Wobec członków Związku zastosowano również inne metody represji, na przykład długotrwałe przesłuchania czy zmuszanie do podpisania upokarzających deklaracji lojalności. Oprócz internowania, władze przeprowadziły akcję likwidacji wszystkich strajków w Polsce. Interweniujące służby wykazywały się wyjątkową brutalnością. Według danych MSW podczas stanu wojennego internowano 370 osób członków rolniczej ,,Solidarności”. 13 grudnia mieszczące się w budynku Urzędu Gminy Lubicz biuro "Solidarności" zostało splądrowne przez służby i zamknięte.
Gmina Lubicz a ,,Solidarność"
Gmina Lubicz graniczyła z Toruniem od zawsze. Stanowiła zaplecze siły roboczej dla miasta, ale jednocześnie była gminą rolniczą, szczególnie jej północna część, gdzie występowały ziemie klasy II, III, IV. Były to wsie: Grębocin, Rogowo, Rogówko, Brzeźno, Brzezinko, Gronowo. Tutaj ludność zajmowała się tradycyjnymi uprawami zbóż, buraka cukrowego, hodowlą zwierząt. Część polskich rolników podobnie jak robotnicy, chciała się zorganizować w związki zawodowe, które mogłyby być słyszalnym głosem wsi. Ryszard Kozicki, Zbigniew Bożejewicz, Józef Żak i Czesław Dąbrowski rolnicy ze wsi Grębocin zaczęli czynnie udzielać się w zorganizowanie środowiska rolników indywidualnych. Duże znaczenie dla tych ruchów miał sierpień 1980 r., gdzie w Porozumieniu Gdańskim został umieszczony zapis dotyczący rolników. Mówił on o stworzeniu trwałych perspektyw dla rozwoju chłopskiego gospodarstwa rodzinnego, o równym traktowaniu sektora państwowego i prywatnego w dostępie do środków produkcji, włącznie z ziemią oraz zakładanie samorządu wiejskiego. Ten zapis dał bodziec rolnikom do zaangażowania się w działalność w swoim środowisku. To właśnie w Grębocinie grupa rolników, zaczęła organizować spotkania domowe, zebrania wiejskie, na których mówiono odważnie jak na owe czasy innym językiem, poruszając sprawy dotąd zakazane. Uczestnicy z lękiem i niedowierzaniem słuchali, klaskali i nabierali nadziei na przyszłe zmiany. Rozpoczęła się także agitacja, rozprowadzanie ulotek, plakatów, gazetek. Na licznych zwoływanych zebraniach w aktywnych wsiach frekwencja była bardzo wysoka. „Solidarność” rolnicza, protestowała i walczyła o swoje prawa w wielu miejscach w kraju, m.in. w Ustrzykach, Rzeszowie, Poznaniu i Bydgoszczy. Gmina Lubicz miała swojego przedstawiciela wśród protestujących rolników w Ustrzykach i Bydgoszczy. To Henryk Kaźmierski z Młyńca Pierwszego, który reprezentował OKZ NSZZ "Solidarność" i brał udział w podpisaniu porozumień między rządem a rolnikami. Wreszcie 12 maja 1981 r. została uznana przez Sąd Wojewódzki w Warszawie i zarejestrowana jako NIEZALEŻNY SAMORZĄDNY ZWIĄZEK ZAWODOWY ROLNIKÓW INDYWIDUALNYCH ,,SOLIDARNOŚĆ". Związek zaczął powoływać na wsiach koła, a w gminach zarządy rolniczej „Solidarności”. W gminie Lubicz grupa rolników, założyła gminny NSZZ RI ,,Solidarność". Przewodniczącym został Ryszard Kozicki, a Zbigniew Bożejewicz jego zastępcą. Z notatek historycznych dowiadujemy się, którzy rolnicy byli w 1981 r. przewodniczącymi Kół NSZZ RI w poszczególnych wsiach na terenie gminy Lubicz.
Brzezinko - Janiaczyk Stanisław
Brzeźno - Dembowski Klemens
Grębocin - Bugajski Robert
Gronowo - Zieliński Stanisław
Jedwabno - Stawski Tadeusz
Mierzynek - Lewandowska Lucyna
Młyniec Pierwszy - Kaźmierski Henryk
Nowa Wieś - Czech Jan
Rogowo - Bania Jerzy
Rogówko - Świtalski Jacek
Złotoria - Smogorzewska
Siedziba w urzędzie
Po utworzeniu Gminnego Związku z siedzibą w Lubiczu, Zarząd zwrócił się do Naczelnika Gminy o przydzielenie pomieszczeń na swoją statutową działalność. Ówczesny sekretarz Urzędu Gminy Andrzej Hercka, pełniący jednocześnie obowiązki naczelnika gminy, przydzielił bez wahania w budynku Urzędu Gminy pomieszczenia, typując pokój nr 30 na II piętrze jako biuro oraz salę nr 4 na obrady Związku. Ponadto zapewnił wszelką pomoc techniczno-biurową, udostępniając maszyny do pisania, powielacz, telefon, telefax, a także w niezbędne materiały biurowe. Od 1 lipca 1981 r. kierownikiem Biura Zarządu została Danuta Latowska, mieszkanka Rogowa. Prowadziła bieżącą obsługę dokumentacyjną, organizowała i uczestniczyła w spotkaniach i zebraniach wiejskich, świadczyła pomoc organizacyjno-doradczą mieszkańcom gminy. Zarząd uczestniczył w rozwiązywaniu bieżących problemów rolników, a współpraca pomiędzy biurem Zarządu a pracownikami Urzędu była zgodna w każdym zakresie. Jednak działania naczelnika gminy Lubicz nie podobały się jego zwierzchnikom, zarówno wojewodzie, jak i miejscowemu I sekretarzowi PZPR, którzy ,,grozili sankcjami", choć wówczas byli jeszcze bezsilni. Urząd Gminy w Lubiczu, najprawdopodobniej był jedynym w Polsce, który pomimo sprzeciwu ówczesnych władz administracyjno-partyjnych, udostępnił lokal na działalność nowo powstałemu związkowi rolników indywidualnych.
Rozbijanie solidarności rolniczej
Polityka władz PRL-u od samego początku była nieprzychylna dla działalności Rolniczej „Solidarności". Utworzono pod patronatem rządu konkurencyjny Związek Kółek i Organizacji Rolniczych, udzielając jemu dotacje państwowe na bieżącą działalność, natomiast rolnicza ,, Solidarność" była pozbawiona wsparcia. ,,Solidarność" Rolników Indywidualnych obarczano odpowiedzialnością za kłopoty z zaopatrzeniem miast w żywność itd. Było to celowe skłócanie środowisk rolniczych. Takie działania spowodowały, że rolnicy jesienią 1981 r. coraz częściej podejmowali w różnych częściach Polski akcje protestacyjne: okupowanie urzędów państwowych, głodówki. Rolnicy domagali się jawności działań władzy, dostępu do zakupu gruntów od PGR i RSP, konstytucyjnych gwarancji własności ziemi i praw do jej dziedziczenia oraz swobodnego obrotu. Żądali demokratycznych wyborów do rad narodowych, które następnie miały wybierać naczelników gmin, reformy systemu ubezpieczeń, nauki religii w szkołach i odstąpienia od sprzedaży wiązanej. Aparat PRL-u próbował przekupić działaczy „Solidarności”, np. poprzez talon na ciągnik w zamian za donos lub bycie tajnym współpracownikiem. 12 listopada 1981 r. działacze Związku NSZZ RI ,,Solidarność" w Toruniu rozpoczęli strajk okupacyjny w budynku Cukrowni Toruńskich, protestując przeciwko łamaniu przez władzę porozumień zawartych w Ustrzykach, Rzeszowie i Bydgoszczy. Do Komitetu, który reprezentował Związek w rozmowach z administracją rządową, z terenu gminy Lubicz weszli Ryszard Kozicki i Zbigniew Bożejewicz. Byli oni uczestnikami strajku do 13 grudnia. Strajk rozbito, działaczy z Rejonu Toruńskiego, w tym Ryszarda Kozickiego i Rajmunda Depczyńskiego, internowano w Potulicach. Wobec internowanych stosowano rygory więzienne. Ryszard Kozicki wspomina pobyt w więzieniu jako traumatyczne przeżycie, ponieważ nie wiedział, co dalej będzie z nim i jego rodziną. Po powrocie do domu 13 stycznia 1982 r. krewni (oprócz najbliższej rodziny), znajomi, sąsiedzi nie chcieli z nim rozmawiać. Bali się. Ostracyzm otoczenia stał się dla niego impulsem do decyzji o emigracji. Wraz z rodziną wyjechał do Francji. Było to możliwe, gdyż w stanie wojennym władze komunistyczne umożliwiały, sugerowały, wręcz namawiały działaczy ,,Solidarności" na wyjazd z Polski, aby pozbyć się elementu wywrotowego i sytuację w kraju wyciszyć.
Dane pochodzą z kalendarza wydanego z okazji 40. rocznicy powstania NSZZ RI ,,Solidarność" autorstwa Michała Grabianki oraz z pracy dyplomowej Michała Kozickiego pt. „Mój dziadek – bohater”, wnuka pierwszego przewodniczącego Solidarności RI w gminie Lubicz.
drukuj (NSZZ „Solidarność” RI. 40 lat minęło)
Metryka
- Data 2021-12-06
Setne urodziny pana Stanisława
Stanisław Widliński to chodząca skarbnica wiedzy o Grębocinie. To tutaj ukończył 7-klasową szkołę podstawową, a następnie podjął pracę w cegielni.
2 grudnia z najlepszymi życzeniami i gratulacjami jubilata odwiedził wójt Lubicza Marek Nicewicz.
Stanisław Widliński urodził się 20 listopada 1921 r. Pierwszym miejscem jego pracy była grębocińska cegielnia. Po wojnie objął gospodarstwo rodzinne, a w 1948 r. ożenił się z Eleonorą z domu Szumełda. Doczekali się 3 córek, 7 wnucząt i 6 prawnucząt.
Stanisław Widliński gospodarstwo prowadził aż do przejścia na rolniczą emeryturę. Hodował trzodę chlewną, bydło, owce i drób, wprowadzał liczne, rzadko wówczas spotykane, unowocześnienia. Posiadał m.in. elektryczną dojarkę, testował nowe odmiany zbóż, rzepaku czy buraków.
Z wielkim zaangażowaniem oddawał się również pracy społecznej na rzecz społeczności lokalnej. Był jednym z założycieli i udziałowcem spółdzielni „Samopomoc Chłopska”, Kółka Rolniczego, a także Banku Spółdzielczego. Mieszkańcy wybierali go jako swojego przedstawiciela w licznych nowopowstałych wówczas organizacjach, np. w Gromadzkiej Radzie Narodowej. Pomagał mniej zaradnym w załatwianiu spraw urzędowych jako terenowy opiekun społeczny.
Wielokrotnie odznaczany, z okazji setnych urodzin również marszałkowskim medalem Unitas Durat Palatinatus Cuiaviano-Pomeraniensis.
drukuj (Setne urodziny pana Stanisława)
Metryka
- Data 2021-12-06
Nabór do Dziennego Domu „Senior+” w Gronowie
Gminny Ośrodek Pomocy Społecznej w Lubiczu rozpoczyna rekrutację uczestników do nowego ośrodka wsparcia na terenie naszej gminy - Dziennego Domu „Senior+” w Gronowie.
Instytucja jest zlokalizowana w budynku byłej szkoły podstawowej i rozpocznie swoją działalność w styczniu 2022 roku. Obecnie, w ramach uzyskanego w pierwszej połowie bieżącego roku przez gminę dofinansowania, prowadzone są prace wykończeniowe w nowej siedzibie.
W ramach przystąpienia przez gminę do Programu „Senior+” podopiecznym domu zostanie udostępniona infrastruktura pozwalająca na aktywne spędzanie czasu wolnego, a także zaktywizowanie i zaangażowanie ich w działania samopomocowe i na rzecz środowiska lokalnego.
Dzienny Dom „Senior+” w Gronowie będzie czynny od poniedziałku do piątku przez 8 godzin dziennie. Skierowane mogą zostać do niego osoby nieaktywne zawodowo w wieku 60 lat i więcej zamieszkujące na terenie gminy Lubicz.
Szczegółowe informacje pod numerami telefonów: 501 957 855 lub 516 142 013 (w godzinach pracy GOPS).
drukuj (Nabór do Dziennego Domu „Senior+” w Gronowie)
Metryka
- Data 2021-12-02
Nie bądź obojętny na los bezdomnych
Jeżeli zauważysz osobę bezdomną potrzebującą pomocy, zgłoś tę sprawę do Gminnego Ośrodka Pomocy Społecznej w Lubiczu przy ul. Toruńskiej 56 lub zadzwoń 56 674 21 55.
Temperatury w dzień i w nocy są coraz niższe, dlatego apelujemy do Państwa o informowaniu nas o osobach, które nie mają dachu nad głową.
Lubicki GOPS znajdzie dla nich miejsce, w którym będą mogły spędzić ten jesienno-zimowy czas w godnych warunkach.
drukuj (Nie bądź obojętny na los bezdomnych)
Metryka
- Data 2021-12-02
Gminny Ośrodek Pomocy Społecznej w Lubiczu apeluje:
Nie bądź obojętny
na los osób bezdomnych!
Możesz im pomóc, zgłaszając sprawę do nas.
Wrażliwość oraz szybka i właściwa reakcja
może nie tylko pomóc przetrwać zimę osobom bezdomnym
ale również ocalić im życie.
Jeden telefon może
uratować ludzkie życie
Gminny Ośrodek Pomocy Społecznej w Lubiczu
chce i może pomóc bezdomnym.
Jeżeli zauważysz osobę bezdomną potrzebującą pomocy
zgłoś tę sprawę do Gminnego Ośrodka Pomocy Społecznej
w Lubiczu przy ul. Toruńskiej 56 lub zadzwoń 56 674 21 55.
W przypadkach kiedy Ośrodek Pomocy jest nieczynny
zadzwoń na nr 112.
„Lubiczanka” z kolejną nagrodą
Spółdzielnia Socjalna „Lubiczanka” otrzymała wyróżnienie specjalne marszałka województwa kujawsko-pomorskiego dla podmiotów ekonomii społecznej. List gratulacyjny, w imieniu „Lubiczanki”, odebrał prezes Mirosław Jackiewicz.
Tegoroczne laury zostały przyznane przez Regionalny Komitet Rozwoju Ekonomii Społecznej za lata 2020-2021. Dotyczyły zaangażowania na rzecz podmiotów ekonomii społecznej regionu oraz działań mających na celu ochronę zagrożonych miejsc pracy w tym sektorze w czasie pandemii COVID-19.
W imieniu „Lubiczanki” list gratulacyjny odebrał prezes Mirosław Jackiewicz.
Przypomnijmy, że Spółdzielnia „Lubiczanka” powstała w kooperacji dwóch gmin: Lubicz i Obrowo. Jest firmą działającą na rzecz społeczeństwa, starając się odpowiadać na potrzeby mieszkańców tych gmin. Od początku skupia się na działaniu w wielu obszarach, wykonując usługi porządkowe, gospodarcze i opiekuńcze. Zyski przeznacza na cele społeczne i zawodowe.
Więcej: www.lubiczanka.pl.
drukuj („Lubiczanka” z kolejną nagrodą)
Metryka
- Data 2021-12-02
Słoweńskie śniadanie w szkole w Grębocinie
Gdzie leży Słowenia? Jak Słoweńcy obchodzą grudniowe święta? Jak smakuje chleb ze słoweńskim miodem? Tego mogła dowiedzieć się kl. Va z Grębocina podczas wczorajszego "Śniadania słoweńskiego" przygotowanego w szkole przez Ambasadę Słowenii.
W Grębocinie od czerwca mamy pierwszy w Polsce ul słoweński. Pisaliśmy o tym tutaj. Ul został ulokowany w pasiece państwa Jakubowskich. Pobliski teren gmina chce dodatkowo wyposażyć m.in. w tablice edukacyjne. To tutaj mogłyby odbywać się plenerowe lekcje biologii dla młodzieży z naszych szkół.
Słoweński ul stał się impulsem do zacieśniania kontaktów gminy Lubicz z Ambasadą Republiki Słowenii w Warszawie.
Kl. Va, dla której wczoraj Ambasada przygotowała lekcję, z degustacją, pod tytułem „Śniadanie słoweńskie” w czerwcu uczestniczyła w uroczystości ulokowania ula w Grębocinie, ponieważ jej wychowawczyni Karolina Pszczółkowska realizuje z klasą program ekologiczno-przyrodniczy.
Podczas tej wyjątkowej słoweńskiej lekcji uczniowie zasypali prowadzącego Mirana gradem pytań, a potem ze smakiem zjedli chleb z miodem, pierniczki i jabłka.
To już kolejna inicjatywa w naszej gminie ze Słowenią w roli głównej.
W listopadzie na „Wieczór słoweński” zawitała JE ambasador - Božena Forštnarič Boroje. Spotkanie odbyło się z inicjatywy zarejestrowanego w Krobi Stowarzyszenia Rozwoju Gminy Lubicz, którego członkowie wcześniej odbyli prywatną wycieczkę po Słowenii. W Krobi, dzięki wirtualnej podróży po tym kraju, także pozostali uczestnicy wieczoru mogli go poznać lepiej.
drukuj (Słoweńskie śniadanie w szkole w Grębocinie)
Metryka
- Data 2021-12-02
Koronawirus. Ograniczenia, jak załatwić sprawę, telefony, e-maile [Aktualizacja 1]
Uwaga! Od 1 grudnia wójt Marek Nicewicz wprowadza ograniczenie wstępu do urzędu gminy. Sprawy prosimy załatwiać telefonicznie lub e-mailowo. Możliwość osobistej wizyty będzie tylko po wcześniejszym umówieniu się, w przypadkach wyjątkowych.
Ograniczenie spowodowane jest pogarszającą się sytuacją epidemiczną i zwiększoną liczbę chorych w całym kraju, a także powiększającą się absencją chorobową pracowników urzędu.
Do czasu poprawy sytuacji prosimy o załatwianie spraw pocztą tradycyjną, poprzez e-puap, e-mailowo lub telefonicznie.
Tutaj znajdziecie Państwo kontakty.
W razie konieczności dostarczenia papierowych wersji dokumentów, należy je wysłać pocztą lub zostawić w skrzynce w korytarzu w budynku głównym – wejście od tyłu urzędu.
W sprawach pilnych, wymagających bezpośredniej wizyty, koniecznie prosimy zdalnie umówić się z urzędnikiem na konkretny termin.
Nieodpłatne porady prawne będą udzielane telefonicznie - szczegóły.
Z mieszczącym się w budynku B urzędu Działem Świadczeń Rodzinnych GOPS kontaktujemy się pod następującymi numerami tel.: 500 280 473 i 506 133 337 lub wysyłając e-mail na adres swiadczenia@gopslubicz.home.pl.
Wszelkie sprawy można zgłaszać telefonicznie, a wnioski (zasiłki rodzinne, fundusz alimentacyjny i inne) składać do skrzynki umieszczonej na budynku oraz za pośrednictwem profili zaufanego, bankowości elektronicznej, portalu Empatia lub portalu ZUS.
drukuj (Koronawirus. Ograniczenia, jak załatwić sprawę, telefony, e-maile [Aktualizacja 1])
Metryka
- Data 2021-11-30
Radni będą obradować
XXXVII sesja Rady Gminy Lubicz odbędzie się 30 listopada o godz. 12.00 w świetlicy wiejskiej w Krobi i jak zwykle będzie ją można obejrzeć za pośrednictwem naszej strony internetowej.
Proponowany porządek obrad znajdziecie tutaj.
Transmisję na żywo zobaczycie tutaj.
Metryka
- Data 2021-11-29
Zagłosujmy na projekty z naszej gminy!
drukuj (Zagłosujmy na projekty z naszej gminy!)
Metryka
- Data 2021-11-23
Dodatkowy nabór na fotowoltaikę
Ogłaszamy dodatkowy nabór do programu pn. „Instalacja systemów odnawialnych źródeł energii na terenie Gminy Lubicz”. Wnioski można składać wyłącznie osobiście w biurze podawczym w terminie od 23 do 26 listopada. Decyduje kolejność zgłoszeń.
Przedmiotem dofinansowania jest zakup i montaż instalacji fotowoltaicznych na budynku mieszkalnym o maksymalnej powierzchni 300 m 2 zlokalizowanym na terenie naszej gminy.
Wypełnione i podpisane kompletne wnioski wraz z załącznikami należy składać bezpośrednio w Biurze Podawczym Urzędu Gminy Lubicz (składający powinien mieć przy sobie kopię wniosku w celu otrzymania potwierdzenia jego przyjęcia) w terminie od 23 do 26 listopada. Liczy się kolejność zgłoszeń.
Po wyczerpaniu limitu wolnych miejsc zostanie utworzona lista rezerwowa.
Szczegółowych informacji dotyczących naboru wniosków można uzyskać w urzędzie pod nr tel. 56 621 21 00 wew. 198.
Projekt jest przewidziany do realizacji w ramach Działania 3.1: „Wspieranie wytwarzania i dystrybucji energii pochodzącej ze źródeł odnawialnych" z Regionalnego Programu Operacyjnego Województwa Kujawsko-Pomorskiego na lata 2014 - 2020.
drukuj (Dodatkowy nabór na fotowoltaikę)
Metryka
- Data 2021-11-16
- Regulamin dodatkowego naboru (PDF) 269.39kB
- Wniosek o udział w projekcie (PDF) 307.55kB
- Materiały (PDF) 2425.95kB
Informacja dla hodowców drobiu
Przedstawiamy informację Powiatowego Lekarza Weterynarii w Toruniu związaną z dużym zagrożeniem wystąpienia wysoce zjadliwej grypy ptaków HPAI na terenie województwa kujawsko-pomorskiego, w tym w powiecie toruńskim.
W związku z wystąpieniem wysoce zjadliwej grypy ptaków w Polsce hodowcy drobiu powinni zachowywać szczególną ostrożność i stosować odpowiednie środki bioasekuracji minimalizujące ryzyko przeniesienia wirusa grypy ptaków do gospodarstwa, w szczególności:
- przetrzymywać drób w sposób ograniczający jego kontakt z dzikim ptactwem;
- przechowywać paszę w pomieszczeniach zamkniętych lub pod szczelnym przykryciem, uniemożliwiającym kontakt z dzikim ptactwem;
- karmić i poić drób w pomieszczeniach zamkniętych, do których nie mają dostępu ptaki dzikie;
- stosować w gospodarstwie odzież i obuwie ochronne oraz po każdym kontakcie z drobiem lub dzikimi ptakami umyć ręce wodą z mydłem;
- stosować maty dezynfekcyjne w wejściach i wyjściach z budynków, w których utrzymywany jest drób.
Hodowco!!!
Pamiętaj o zgłaszaniu niezwłocznie do odpowiednich osób i instytucji (lekarz weterynarii prywatnej praktyki, powiatowy lekarz weterynarii, wójt/burmistrz/prezydent miasta) podejrzenia wystąpienia choroby zakaźnej drobiu.
Objawy kliniczne wysoce zjadliwej grypy ptaków (HPAI) u drobiu:
zwiększona śmiertelność; znaczący spadek pobierania paszy i wody; objawy nerwowe: drgawki, skręt szyi, paraliż nóg i skrzydeł, niezborność ruchów; duszności, sinica, wybroczyny, biegunki, nagły spadek nieśności.
aktualizacja WIW Bydgoszcz listopad 2021 r.
drukuj (Informacja dla hodowców drobiu)
Metryka
- Data 2021-11-15
Świętowaliśmy rocznicę odzyskania niepodległości
Dawno (choć może wcale nie tak dawno) temu na Drwęcy była granica zaborów. Dziś spotkaliśmy się nad rzeką, która kiedyś nas dzieliła, świętując rocznicę odzyskania niepodległości, wspólnie, bez względu na jakiekolwiek różnice, z szacunkiem dla każdego człowieka.
Fotorelację z wydarzenia znajdziecie Państwo na FB Gmina Lubicz
drukuj (Świętowaliśmy rocznicę odzyskania niepodległości)
Metryka
- Data 2021-11-11
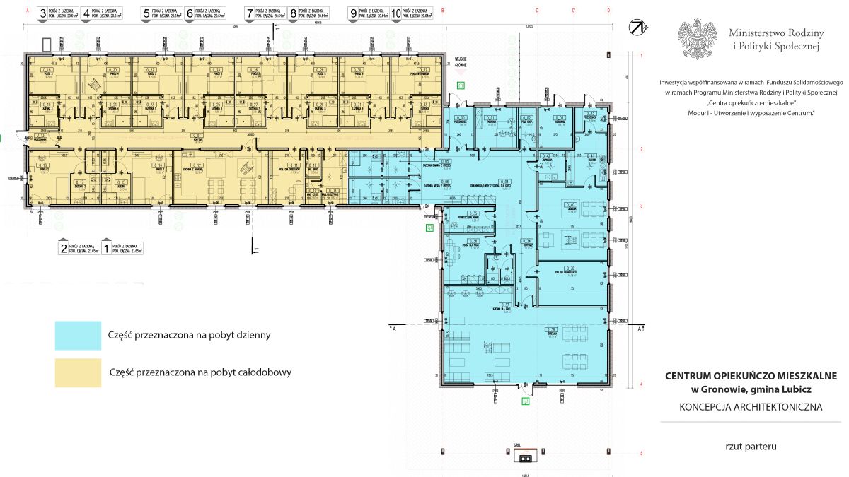
Budujemy Centrum Opiekuńczo-Mieszkalne
W Gronowie powstanie Centrum Opiekuńczo-Mieszkalne. Obecnie w naszym województwie nie ma takiego miejsca. Oferta gronowskiego Centrum będzie skierowana do mieszkańców naszej gminy. Co to za placówka?
Centrum Opiekuńczo-Mieszkalne to ośrodek dla osób niepełnosprawnych. Dotychczas na terenie gminy Lubicz nie funkcjonował żaden obiekt ściśle dedykowany tej grupie.
W Gronowie na terenie byłej szkoły podstawowej zbudujemy nowy obiekt z 20 miejscami dla dorosłych osób niepełnosprawnych ze znacznym lub umiarkowanym stopniem niepełnosprawności, podzielony na dwa sektory: pobyt dzienny (10 miejsc) oraz całodobowy (10 miejsc w pokojach jednoosobowych z łazienką i minianeksem kuchennym).
- Pobyt w ośrodku ma pomóc tym osobom rozwinąć kompetencje społeczne, nawiązywać relacje interpersonalne, ale także zapewnić regularną rehabilitację, czyli poprawić ich codzienny komfort życia – wyjaśnia Anna Sikorska, kierownik Gminnego Ośrodka Pomocy Społecznej w Lubiczu
Planowane Centrum Opiekuńczo-Mieszkalne znajdzie swoją siedzibę w odrębnym, nowo wybudowanym budynku parterowym o powierzchni użytkowej 630 m2, który wyrośnie w miejscu byłego boiska szkolnego. Będzie to zupełnie nowy, niezależny ośrodek wsparcia.
- Budynek zostanie zaprojektowany i wybudowany w sposób zapewniający dostępność i możliwość korzystania przez każdego człowieka, bez względu na wiek, płeć czy stopień niepełnosprawności – wyjaśnia wójt Marek Nicewicz. - W szczególności Centrum będzie dostępne dla osób poruszających się na wózkach inwalidzkich oraz dla osób niewidomych i niesłyszących. Przed wejściem postawimy makietę brailowską obrazującą kształt obiektu i powiązania funkcjonalno-przestrzenne z otoczeniem. Wewnątrz zostanie umieszczony plan tylfograficzny odwzorowujący rozkład i funkcję pomieszczeń. W budynku będzie również dostępna nawigacja głosowa. A na posadzkach przewidujemy specjalne oznaczenia poziome dla osób niewidomych.
Placówka powstanie w sąsiedztwie kilku innych instytucji świadczących usługi społeczne dla mieszkańców gminy Lubicz. Przypomnijmy, już drugi rok w dotychczasowej szkole, dzięki modernizacji obiektu, działa nowoczesne i kolorowe przedszkole. Obecnie prowadzone są prace adaptacyjne części budynku na Dzienny Dom „Senior+”. W przyszłym roku w innej części tego obiektu dołączą: filia biblioteki gminnej oraz świetlica - siedziba Koła Gospodyń Wiejskich.
Zlokalizowanie instytucji obok siebie będzie sprzyjało wzajemnej integracji uczestników i odbudowaniu więzi międzypokoleniowych, a także umożliwi skorzystanie z szerokiej, łatwo dostępnej oferty różnych placówek dla osób mniej sprawnych, czyli seniorów i niepełnosprawnych.
Na terenie należącym do Centrum przewiduje się również lokalizację siłowni zewnętrznej, organizację terenów rekreacyjnych z zielenią urządzoną, wyznaczenie miejsca aktywności z grillem i meblami ogrodowymi dla aktywności w plenerze oraz wydzielenie działki pod ogródki kwiatowe i warzywne dla użytkowników, tzw. „ogrody wyniesione” (podniesione z łatwiejszym dostępem).
Gmina może zbudować Centrum dzięki uzyskaniu dofinansowania prawie 3 mln zł w ramach ogłoszonego przez Ministerstwo Rodziny i Polityki Społecznej Programu „Centra opiekuńczo-mieszkalne” finansowanego z Funduszu Solidarnościowego. Tylko dwa samorządy z naszego województwa otrzymały takie dofinansowanie, zresztą w ogóle jako pierwsze z Kujawsko-Pomorskiego w historii tego programu.
Realizacja przedsięwzięcia rozpocznie się jeszcze w tym roku. Koncepcja musi otrzymać formę projektu, konieczne są także prace przygotowawcze i uzyskanie decyzji pozwalającej na budowę, więc robotnicy budowlani na placu pojawią się w przyszłym roku. Zakończenie inwestycji planowane jest na 31 sierpnia 2023 roku.
Pieniądze na późniejsze funkcjonowanie placówki również można pozyskać w ramach Programu „Centra opiekuńczo-mieszkalne”.
Misją Centrum w Gronowie będzie stworzenie miejsca, w którym osoby niepełnosprawne poczują się jak w domu.
Jeśli interesują Państwa szczegóły projektu, to zapraszamy do obejrzenia i wysłuchania wczorajszej sesji Rady Gminy Lubicz, gdzie dokładnie omówiła je pani kierownik lubickiego GOPS-u (od ok. 46 minuty) – tutaj.
Wartość projektu: 4 699 847,71
Kwota dofinansowania: 2 956 338,15
Wkład własny gminy Lubicz: 1 743 509,56
drukuj (Budujemy Centrum Opiekuńczo-Mieszkalne)
Metryka
- Data 2021-11-10
Nagrody sportowe. Wnioski do końca listopada
Przypominamy, że czekamy na wnioski o nagrody sportowe wójta. Wyróżnienia mogą być przyznane zarówno zawodnikom w sportach indywidualnych, jak i osobom wchodzącym w skład sztafety czy załogi.
Uchwałę, na której podstawie są przyznawane nagrody oraz wyróżnienia za osiągnięte wyniki sportowe znajdziecie tutaj.
Wzór wniosku w załączeniu do pobrania pod tym linkiem.
drukuj (Nagrody sportowe. Wnioski do końca listopada)
Metryka
- Data 2021-11-10
Szkoła Inicjatyw Strażniczych
drukuj (Szkoła Inicjatyw Strażniczych)
Metryka
- Data 2021-11-09
Nadzwyczajna sesja Rady Gminy Lubicz
9 listopada w świetlicy wiejskiej w Krobi odbędzie się XXXVI sesja nadzwyczajna Rady Gminy Lubicz, na której pod głosowanie zostaje poddana uchwała w sprawie przystąpienia do realizacji Programu „Centra opiekuńczo-mieszkalne” realizowanego ze środków Funduszu Solidarnościowego.
Początek godz. 11.00.
Proponowany porządek obrad >>> tutaj.
Transmisja na żywo >>> tutaj.
drukuj (Nadzwyczajna sesja Rady Gminy Lubicz)
Metryka
- Data 2021-11-08
Święto Niepodległości. Spotkajmy się nad Drwęcą
- Zachęcamy całe rodziny do udziału w naszej plenerowej lekcji historii – zaprasza wójt Lubicza Marek Nicewicz. 11 listopada na dawnej granicy zaborów nad Drwęcą odbędzie się ognisko niepodległościowe.
Po niezwykle pozytywnych doświadczeniach sprzed dwóch lat, kiedy spotkaliśmy się po raz pierwszy, świętując rocznicę odzyskania niepodległości w warunkach plenerowych na dawnej granicy między zaborami, chcieliśmy kontynuować tę tradycję.
Dlatego w ubiegłym roku planowaliśmy podobną imprezę, ale po drugiej stronie rzeki, bo wówczas przypadała 100. rocznica odzyskania wolności po stronie Lubicza Dolnego. Niestety, pandemia pokrzyżowała nam te plany. Z tym większą chęcią, ale i niepokojem (bo liczba zakażonych koronawirusem rośnie z dnia na dzień), organizujemy tegoroczne obchody.
W czwartek 11 listopada (dzień wolny) o godz. 16.00, na łące Krzysztofa Walterskiego w Lubiczu Górnym nad Drwęcą, a zatem na końcu ul. Lipnowskiej pod mostem, odbędzie się ognisko niepodległościowe dla mieszkańców gminy. Jak zawsze będzie specjalna scenografia, śpiewanie pieśni patriotycznych, gorąca grochówka, poczęstunek przygotowany przez KGW, a każdy uczestnik otrzyma pamiątkową chorągiewkę i baloniki.
Teren jest podmokły, dlatego koniecznie prosimy zaopatrzyć się w odpowiednie obuwie, a także ciepłe kurtki. Impreza potrwa około dwóch godzin.
drukuj (Święto Niepodległości. Spotkajmy się nad Drwęcą)
Metryka
- Data 2021-11-05
Zmiana terminu odbioru śmieci
Miejskie Przedsiębiorstwo Oczyszczania Sp. z o. o. w Toruniu informuje, że ze względu na Święto Niepodległości zmienią się terminy odbioru odpadów zmieszanych w okresie między 10 a 12 listopada.
Środa 10.11 – odbiór tak, jak w każdą środę oraz trasa czwartkowa:
- Lubicz Dolny - Ciemna, Dworcowa od 19, Dworcowa od 36, Grębocka od 1-5, Grębocka od 2-6, Kolejowa, Konwaliowa, Krótka, Magnoliowa, Narcyzowa, Niezapominajki, Spółdzielcza bloki, Szkolna, Topolowa, Toruńska, Wilczy Młyn, Zbożowa;
- Lubicz Górny - Kołłątaja bloki, Paderewskiego bloki, Rataja bloki;
Czwartek 11.11 – dzień wolny;
Piątek 12.11 – odbiór tak, jak w każdy piątek oraz pozostała część trasy czwartkowej:
Lubicz Dolny – Akacjowa, Brzozowa, Jesionowa, Kasztanowa, Klonowa, Leśna, Liliowa, Lipowa, Młyńska, Różana, Sosnowa, Tulipanowa, Podgórna, Leśna Polana.
Jak złożyć reklamację? O tym informujemy tutaj.
drukuj (Zmiana terminu odbioru śmieci)
Metryka
- Data 2021-11-04
Deklaracja źródeł ciepła i spalania paliw
Każdy właściciel lub zarządca nieruchomości do końca czerwca 2022 r. musi złożyć deklarację źródeł ciepła i spalania paliw do Centralnej Ewidencji Emisyjności Budynków (CEEB). To obowiązek ogólnopolski.
Budowę systemu powierzono Głównemu Urzędowi Nadzoru Budowlanego.
Deklarację składamy:
- w formie elektronicznej, czyli przez internet na stronie https://zone.gunb.gov.pl. – jest to najszybszy oraz najwygodniejszy sposób. Oprócz tego, że umożliwia on oszczędność czasu, a także pieniędzy, niewątpliwą jego zaletą jest również fakt, że deklarację można złożyć nie wychodząc z domu;
- lub w formie papierowej – wypełniony dokument będzie można wysłać listem albo przynieść osobiście do Urzędu Gminy Lubicz.
Na wysłanie deklaracji jest czas do końca czerwca 2022 r. w przypadku budynków już istniejących, a w przypadku nowo powstałych obiektów 14 dni od uruchomienia nowego źródła ciepła lub spalania paliw.
Stosowne wzory deklaracji oraz informator dla właścicieli i zarządców budynków znajdziecie Państwo tutaj.
drukuj (Deklaracja źródeł ciepła i spalania paliw)
Metryka
- Data 2021-11-04
Wernisaż wystawy lubickich seniorów
"Jesienne Pejzaże" - pod taką nazwą dziś w świetlicy w Krobi odbył się wernisaż wystawy malarstwa uczestników Klubu Wsparcia Seniora „Nad Drwęcą” w Lubiczu oraz Klubu Wsparcia Seniora w Lubiczu Senior +.
- Myślałam, że jadę na wystawę amatorów, a to są profesjonalne obrazy - mówiła Anna Sikorska, kierownik GOPS w Lubiczu. Oba kluby działają pod opieką lubickiego ośrodka i są realizowane w formie projektów, dzięki pieniądzom pozyskanym z funduszy europejskich oraz rządowego programu Senior +.
- Większość osób miała pędzle w ręku po raz pierwszy - chwaliła artystów Urszula Gajtkowska z Galerii Autorskiej Gaj w Grębocinie, która poprowadziła dla seniorów warsztaty malarskie.
Uczestnicy klubów nie kryli dumy z efektów swojej pracy, chętnie fotografując się ze swoimi pracami i podziwiając prace koleżanek i kolegów.
Wystawę z zainteresowaniem obejrzeli także goście klubów wójt Lubicza Marek Nicewicz oraz Tomasz Krasicki, wójt gminy Czernikowo.
Więcej zdjęć FB Gmina Lubicz
drukuj (Wernisaż wystawy lubickich seniorów)
Metryka
- Data 2021-11-03
Oddając krew, pomagasz potrzebującym [AKTUALIZACJA]
Klub Honorowych Dawców Krwi Gminy Lubicz zaprasza na kolejne akcje poboru krwi w Lubiczu Dolnym.
Krew będzie można oddać w godz. 10.00-14.00 (parking przed urzędem gminy).
Kolejne akcje są zaplanowane w następujących terminach:
29 stycznia 2022 r.
9 kwietnia
25 czerwca
27 sierpnia
29 października
Więcej informacji dla krwiodawców znajdziecie tutaj.
drukuj (Oddając krew, pomagasz potrzebującym [AKTUALIZACJA])
Metryka
- Data 2021-11-03
Październikowe wydanie "Gońca gminnego"
Dziś przyjechał do nas z drukarni szósty w tym roku numer biuletynu informacyjnego gminy. Rozpoczęliśmy jego dystrybucję, więc w najbliższych dniach znajdziecie go w naszych stałych punktach, a już teraz możecie przeczytać na naszej stronie internetowej.
"Goniec" dostępny jest tutaj.
Przypominamy, że trafia on m.in. do sołtysów, do skrzynek gońcowych jak np. w Nowej Wsi czy Kopaninie, do parafii, a także niektórych sklepów i ośrodków zdrowia, a w części sołectw także bezpośrednio do domów.
drukuj (Październikowe wydanie "Gońca gminnego")
Metryka
- Data 2021-10-28
W sprawie dowodu zapraszamy do godz. 11.00
5 listopada (piątek) przyjmowanie wniosków o wydanie dowodu osobistego, a także odbiór dowodów osobistych będą możliwe tylko do godz. 11.00. Jest to spowodowane wdrożeniem 7 listopada w całej Polsce rozwiązań technicznych umożliwiających wydawanie dowodu osobistego zawierającego odciski palców.
drukuj (W sprawie dowodu zapraszamy do godz. 11.00)
Metryka
- Data 2021-10-28
Na konkurs nadesłaliście aż 165 prac!
Dzieciom i młodzieży z przedszkoli i szkół z naszej gminy postawiliśmy wyzwanie wykonania eko-ulotki. Okazało się, że ich kreatywność i znajomość tematu postawiły komisję konkursową przed dużym dylematem. Jak spośród tylu ciekawych prac wybrać te najlepsze?
Komisja po długiej analizie prac konkursowych, zgodnie z regulaminem konkursu, ostatecznie przyznała I, II, III miejsca w kilku kategoriach oraz po siedem wyróżnień.
W kategorii I (ODDZIAŁY PRZEDSZKOLNE oraz ZERÓWKI):
- Wojciechowska Aniela, SP Lubicz Dolny, OP
- Przybylska Ewa, Przedszkole Publiczne ”Chatka Puchatka”
- Syrocki Krystian, Przedszkole Publiczne ”Chatka Puchatka”
Wyróżnienia:
- Ciepiela Oliwier, Przedszkole Publiczne ”Chatka Puchatka”
- Bożek Julian, SP Grębocin, OP
- Karpiński Oskar, Przedszkole Publiczne ”Chatka Puchatka”
- Getor Filip, Przedszkole Publiczne ”Chatka Puchatka”
- Waszczuk Szymon, Przedszkole Publiczne ”Chatka Puchatka”
- Depczyńska Jaśmina, Przedszkole Publiczne ”Chatka Puchatka”
- Dolega Aleksandra, Przedszkole Publiczne ”Chatka Puchatka”
W kategorii II (KLASY I-IV SZKOŁY PODSTAWOWEJ):
- Roman Natalia, SP Złotoria, kl. 3
- Bożek Jan, SP Grębocin, kl. 3
- Leszczyńska Lena, SP Lubicz Górny, kl. 2
Wyróżnienia:
- Mamrot Pola, SP Lubicz Dolny, kl. 3
- Nowakowska Adrianna, SP Młyniec Pierwszy, kl. 1
- Nowicki Antoni, SP Lubicz Dolny, kl. 2
- Dąbrosz Sebastian, SP Lubicz Dolny, kl. 2
- Łęgowska Julia, SP Lubicz Górny, kl. 2
- Bacławska Dominika, SP Lubicz Dolny, kl. 3
- Łęgowska Nikola, SP Lubicz Górny, kl. 2
W kategorii III (KLASY V-VIII SZKOŁY PODSTAWOWEJ):
- Hassek Patrycja, SP Lubicz Górny, kl. 5
- Bożek Jakub, SP Grębocin, kl. 6
- Kalinowska Natalia, SP Lubicz Dolny, kl. 7
Wyróżnienia:
- Kalinowska Helena, SP Lubicz Górny, kl. 5
- Smolińska Nadia, SP Złotoria kl. 5
- Małysza Alicja, SP Lubicz Dolny, kl. 8
- Huzakowska Laura, SP Lubicz Dolny, kl. 7
- Wybult Liliana, SP Złotoria, kl. 5
- Wielewicka Marta, SP Złotoria, kl. 5
- Mamrot Lena, SP Lubicz Dolny, kl. 5
Gratulujemy! Nagrody, współfinansowane przez Wojewódzki Fundusz Ochrony Środowiska i Gospodarki Wodnej w Toruniu, dostarczymy do szkół w listopadzie.
drukuj (Na konkurs nadesłaliście aż 165 prac!)
Metryka
- Data 2021-10-28
Zmiany w terminach odbioru śmieci
- poniedziałek (01.11) – dzień wolny
- wtorek (02.11) – odbiór odpadów tak, jak w każdy poniedziałek oraz Lubicz Dolny, Brzezinko i Jedwabno z trasy wtorkowej
- środa (03.11) – odbiór odpadów tak, jak w każdą środę oraz dokończenie trasy z wtorku: Grębocin, Gronowo i Gronówko.
drukuj (Zmiany w terminach odbioru śmieci)
Metryka
- Data 2021-10-28
Służba zdrowia w gminie Lubicz
Od wielu lat do władz gminy Lubicz docierają krytyczne głosy tych mieszkańców, którzy są niezadowoleni z funkcjonowania przychodni CITOMED w Lubiczu Górnym. Co mogą zrobić pacjenci?
Pomimo tego, że wójt jest gospodarzem gminy, na terenie której funkcjonują gabinety i placówki medyczne, to w ich przypadku to nie wójt może być i jest adresatem skarg i zażaleń na ich funkcjonowanie. Temat był wielokrotnie omawiany z mieszkańcami, zarówno podczas zebrań wiejskich jak i za pośrednictwem mediów. Niestety, w dalszym ciągu skargi kierowane są do wójta gminy, dlatego też koniecznym jest ponowne wyjaśnienie i przypomnienie kilku ważnych kwestii.
W powszechnej świadomości mieszkańców ciągle panuje przekonanie, że przychodnia w Lubiczu Górnym, prowadzona przez firmę CITOMED, ma dalej charakter gminnego ośrodka zdrowia, a w związku z tym to na wójcie gminy spoczywa odpowiedzialność za wszystko, co jest związane z funkcjonowaniem tej placówki. Tak nie jest. Żadna z przychodni zdrowia działających obecnie w naszej gminie nie jest publicznym zakładem podstawowej opieki zdrowotnej (POZ). Są to prywatne podmioty.
Jeszcze na początku pierwszej dekady bieżącego wieku na terenie gminy Lubicz funkcjonowały trzy samodzielne publiczne zakłady opieki zdrowotnej (SPZOZ) – w Grębocinie, w Lubiczu Górnym oraz w Złotorii. W roku 2003 rozpoczął się proces likwidacji tych publicznych placówek. Ówczesna rada gminy zdecydowała o rezygnacji z prowadzenia gminnych przychodni, stawiając na wypełnienie tej luki przed niepubliczną służbę zdrowia, świadczącą usługi w ramach kontraktów z Narodowym Funduszem Zdrowia. W roku 2003 nastąpiła likwidacja SPZOZ w Złotorii, w roku 2005 SPZOZ w Grębocinie, a w roku 2006 likwidacja SPZOZ w Lubiczu Górnym. W tym ostatnim przypadku likwidowana przychodnia została przejęta przez Lecznice CITOMED Sp. z o.o. w Toruniu, zapewniając ciągłość funkcjonowania tej placówki.
Od tego momentu wójt gminy Lubicz nie jest już organem prowadzącym dla tego podmiotu, a co za tym idzie nie podlega on żadnej kontroli czy nadzorowi ze strony wójta, więc kierowane przez niego pisma mają wyłącznie charakter próśb, a nie poleceń. Przychodnia CITOMED w Lubiczu Górnym jest jedną z ponad 70 podmiotów prywatnych o charakterze medycznym, funkcjonujących na terenie gminy Lubicz i działających na tych samych zasadach. Nie oznacza to jednakże, że podmioty te działają bez żadnej kontroli.
Sposobem zwracania uwagi na niezadowolenie pacjentów z powodu funkcjonowania placówek ochrony zdrowia jest składanie oficjalnych skarg do:
- Kierownictwa spółki w przypadku Lecznicy CITOMED Sp. z o.o.
- osobiście poprzez wpis do księgi skarg dostępnej w rejestracji przychodni w Lubiczu lub siedzibie przy Skłodowskiej-Curie w Toruniu,
- poprzez formularz kontaktowy na stronie internetowej citomed.pl,
- e-mailowo na adres: sekretariat@citomed.pl,
- pisemnie, listownie na adres: Lecznice CITOMED Sp. z o.o. ul. M. Skłodowskiej-Curie 73, 87-100 Toruń.
- W przypadku wszystkich podmiotów do Narodowego Funduszu Zdrowia nadzorującego świadczenie usług lub do Rzecznika Praw Pacjenta.
Szerszą informację na ten temat z wyjaśnieniem z jakich powodów można złożyć skargę zamieściliśmy w załączniku.
drukuj (Służba zdrowia w gminie Lubicz)
Metryka
- Data 2021-10-28
Gmina Lubicz Liderem Czystego Powietrza!
Gmina Lubicz zwyciężyła w konkursie Eko-Orły, pomagając w otrzymaniu dofinansowania na wymianę pieca największej liczbie chętnych w swojej kategorii.
Taką informację wraz z nagrodą przywieźliśmy wczoraj z Torunia, gdzie odbyło się podsumowanie IV edycji konkursu Eko-Orły Wojewódzkiego Funduszu Ochrony Środowiska i Gospodarki Wodnej. Gmina Lubicz, wśród średnich gmin, zwyciężyła w kategorii ochrona powietrza, otrzymując tytuł Lidera Czystego Powietrza oraz statuetkę konkursową. Nagrody odebrał wójt Marek Nicewicz w towarzystwie Danuty Suchorzyńskiej, kierownik Referatu Rolnictwa i Ochrony Środowiska Urzędu Gminy Lubicz.
W urzędzie gminy od kilku miesięcy działa Punkt Programu „Czystego Powietrza”. - Obserwujemy duże zainteresowanie programem i wszystkim chętnym staramy się służyć wsparciem – mówi pani kierownik.
- To pokazuje, że zachęcanie mieszkańców do wymiany kopciuchów poprzez pomoc im w formalnościach przynosi rezultaty – mówi wójt Marek Nicewicz. – Nagroda w konkursie Eko-Orły jest więc przede wszystkim zasługą profesjonalnego, skutecznego i życzliwego Referatu Rolnictwa i Ochrony Środowiska, a także wszystkich mieszkańców, którzy skorzystali z programu. To zwycięstwo uznajemy za cenne, ponieważ zostało przyznane za konkretne efekty, czyli liczbę złożonych wniosków, a nie uznaniowo.
W gminnym Punkcie „Czystego Powietrza” mieszkańcy uzyskują informacje o zasadach programu oraz bezpłatne wsparcie w zakresie przygotowywania wniosku o dofinansowanie. Można także skorzystać ze stanowiska komputerowego z dostępem do Internetu, wypełnić wnioski i je wydrukować. Wnioski te, za pośrednictwem gminy, trafiają następnie do Wojewódzkiego Funduszu Ochrony Środowiska i Gospodarki Wodnej w Toruniu. Punkt pomaga również w rozliczaniu przyznanych dofinansowań.
Pomoc w wypełnianiu wniosków odbywa się w poniedziałki, wtorki, środy i piątki w godz. 11.00 – 13.30, po wcześniejszym telefonicznym uzgodnieniu terminu. Szczegółowych informacji udzielają pracownicy Urzędu Gminy Lubicz pod numerami telefonów: 56 621 21 29 bądź poprzez e-mail: czystepowietrze@lubicz.pl. Dodatkowo na naszej stronie internetowej znajduje się specjalna zakładka, gdzie umieściliśmy wszelkie niezbędne informacje o programie, m.in. o wymaganych dokumentach, kalkulator dotacji czy listę urządzeń i materiałów spełniających wymagania techniczne określone w programie itp.
Rezultaty są konkretne, ponieważ z programu można otrzymać nawet do 37 tys. zł. Dotychczas (dane z 31.07.21) z terenu naszej gminy z „Czystego Powietrza” skorzystało prawie 500 osób, a łączna suma dotacji przekroczyła 7,6 mln zł.
Dodatkowo w październiku, w związku z kolejnym sezonem grzewczym, monitorowanie powietrza w gminie rozpoczął policyjny dron, który Lubicz zakupił wraz z Obrowem i Czernikowem.
Wykorzystanie drona jest kolejnym etapem konsekwentnie realizowanego programu poprawiającego jakość powietrza.
Dron ma niezależny mobilny system pomiarowy gazowych i pyłowych zanieczyszczeń powietrza w trybie wymuszonym. Wystarczy, że wleci w smugę dymu, a ciąg wirników zassie dym w kierunku czujnika. Pomiary zapisywane są w postaci pliku, gdzie znajdą się informacje o stężeniu poszczególnych substancji, czasie i współrzędnych, zaś wynik dostępny jest od ręki.
- W naszej gminie mieszka dużo świadomych osób, doskonale zdających sobie sprawę z tego, jak na nasze zdrowie wpływa wdychanie smogu. Potwierdzają to nie tylko rozmowy z mieszkańcami, ale także telefony i e-maile do urzędu czy wiadomości na gminnym profilu fejsbukowym, których w sezonie grzewczym zawsze mamy bardzo dużo. Dlatego, aby wszystkie uwagi dotyczące wykorzystania niewłaściwych substancji do palenia w piecach trafiały w jedno miejsce, uruchomiliśmy specjalnie do tego przeznaczony adres e-mailowy stop.smog@lubicz.pl – wyjaśnia wójt Marek Nicewicz.
drukuj (Gmina Lubicz Liderem Czystego Powietrza!)
Metryka
- Data 2021-10-27
Wsparcie dzieci i wnuków byłych pracowników PGR w rozwoju cyfrowym
W ramach "Grantów PGR" uczniowie spokrewnieni w linii prostej z osobami, które kiedyś pracowały w PGR-ach mogą otrzymać dofinansowanie na zakup sprzętu komputerowego.
O dofinansowanie mogą się starać:
- Dzieci (w imieniu niepełnoletnich ich opiekunowie prawni) zamieszkałe na terenie gminy Lubicz
- Będący członkiem rodziny osoby, która pracowała niegdyś w zlikwidowanym PPGR (krewnym w linii prostej, tj rodzicem, dziadkami czy pradziadkami)
- Dziecko wskazane we wniosku nie otrzymało na własność lub w drodze użyczenia, w ostatnim roku oraz roku poprzedzającym rok złożenia przedmiotowego wniosku (tj. w roku 2020 i 2021), sprzętu komputerowego zakupionego ze środków publicznych lub środków organizacji pozarządowych lub zwrotu kosztów, lub dofinansowania zakupu tych rzeczy.
Dofinansowanie będzie można otrzymać na:
- sprzęt komputerowy z urządzeniami peryferyjnymi i akcesoriami oraz niezbędnym oprogramowaniem, umożliwiający pracę zdalną, w tym niezbędne akcesoria i oprogramowanie dla osób z niepełnosprawnościami (w przypadku zakupu komputera powyżej 3,5 tys. zł oraz tabletu powyżej 1,5 tys. zł niezbędne będzie uzasadnienie przez wnioskodawcę wysokości kosztów zakupów takiego sprzętu);
- ubezpieczenie zakupionego sprzętu komputerowego;
- usługę zapewniającą dostęp do Internetu na sprzęcie komputerowym zakupionym w ramach projektu, w przypadku gdy opiekun prawny w oświadczeniu wskaże na brak możliwości zapewnienia usługi dostępu do Internetu.
W związku z możliwością przystąpienia gminy Lubicz do projektu „Granty PPGR” zachęcamy do składania uzupełnionych oświadczeń w Urzędzie Gminy Lubicz (ul. Toruńska 21 - Biuro Podawcze, w godzinach urzędowania) w nieprzekraczalnym terminie do 03.11.2021 r.
Poszczególne oświadczenia znajdują się w załącznikach.
Szczegółowe informacje dostępne są na stronie: https://www.gov.pl/web/cppc/wsparcie-ppgr
UWAGA: W celu ułatwienia weryfikacji Oświadczeń, prosimy o dołączanie wszelkiej dokumentacji potwierdzającej fakt zatrudnienia członka rodziny w PPGR.
Spełnienie warunków programu i terminowe złożenie prawidłowo wypełnionych dokumentów nie jest równoznaczne z otrzymaniem wsparcia. Sprzęt komputerowy zostanie zakupiony i przekazany na własność Beneficjentom jedynie w przypadku otrzymania przez gminę Lubicz dofinansowania na ten cel.
drukuj (Wsparcie dzieci i wnuków byłych pracowników PGR w rozwoju cyfrowym)
Metryka
- Data 2021-10-26
Październikowe obrady Rady Gminy Lubicz
28 października o godz. 10.00 w świetlicy wiejskiej w Krobi (ul. Olimpijska 14) odbędzie się XXXV sesja Rady Gminy Lubicz. Zainteresowanych zachęcamy do zapoznania się z proponowanym porządkiem obrad.
Proponowany porządek obrad >>> tutaj.
Transmisja sesji >>> tutaj.
drukuj (Październikowe obrady Rady Gminy Lubicz)
Metryka
- Data 2021-10-26
Mural, który połączył teraźniejszość z przeszłością
Na sygnał trębaczy opadła kurtyna, odsłaniając ścianę, na której ukazała się scena upamiętniająca I pokój toruński, ale także współczesne postacie związane ze Złotorią.
23 października w Złotorii został odsłonięty historyczny mural autorstwa wybranego w nieformalnym konkursie Cezarego Mazurkiewicza. Ten uliczny obraz o powierzchni 120 m2 powstawał przez dwa tygodnie, a jego głównym przesłaniem jest upamiętnienie przekazania aktów I pokoju toruńskiego na łąkach Złotorii pod zamkiem w 1411 roku.
Inauguracja muralu miała charakter festynu historycznego, w którym wzięli udział nie tylko mieszkańcy Złotorii i innych sołectw, ale także inni znamienici goście. Jednak bohaterami tego popołudnia byli: artysta grafik Cezary Mazurkiewicz, autor murala oraz sołtys Złotorii Barbara Kisielewska, inicjatorka przedsięwzięcia.
Odsłonięcie poprzedzono wystąpieniami organizatorów, władz, nadzoru merytorycznego, pokazem filmu ilustrującego wydarzenie historyczne sprzed ponad 600 lat oraz podziękowaniami dla wielu współpracujących i pomagających w realizacji pomysłu.
Do odsłonięcia malowidła, o wiele większego niż słynny obraz Matejki „Bitwa pod Grunwaldem”, poszedł orszak prowadzony przez króla Władysława Jagiełłę, mistrza krzyżackiego von Plauena, trębaczy i szlachcianki w historycznych strojach.
W jego skład weszło kilkunastu przedstawicieli wszystkich ważnych dla społeczności Złotorii środowisk integrujących życie mieszkańców wsi. Byli to: Maria Błaszczyk - prezes OSP, ks. proboszcz kan. dr Marian Wróblewski, Zbigniew Szczepanowski - prezes Koła Myśliwskiego "Młodnik" i założyciel Klubu Piłkarskiego "Flisak", Lucyna Ciborska - przewodnicząca KGW "Przebojowe Złotorianki", Elżbieta Szczepaniec - lider Koła "Miłośników Historii Złotorii", Wiesława Geras - dyrektor Szkoły Podstawowej, Tomasz Wojnar - lider "Wieśniackiego Klubu Biegackiego", Grzegorz Adamski - trener Klubu Sportowego "Flisak", Marcin Cieślewicz - lider Klubu Tenisa Stołowego, Damian Tarczykowski - lider Klubu "Morsy Złotoria", Jakub Pietkiewicz - przedstawiciel Klubu Motorowego, art. graf. prof. Edward Saliński i wykonawca muralu Cezary Mazurkiewicz, a także sołtys Barbara Kisielewska, wójt Lubicza Marek Nicewicz i starosta Marek Olszewski.
Złotoriański mural w nowoczesnej formie przedstawia scenę przekazania dokumentów I pokoju toruńskiego, ale również sceny z życia mieszkańców Złotorii. Na kolorowej ścianie znaleźć można myśliwych z koła w Złotorii, flisaków, wędkarzy znad Drwęcy, kajakarzy, sportowców KS Flisak, rowerzystów, motocyklistów, strażaków, bibliotekarzy, panie z KGW i wielu innych.
Po odsłonięciu malowidła Król Jagiełło przyjął od Wielkiego Mistrza Krzyżackiego von Plauena worki ze srebrem i przekazał je, dzieląc sprawiedliwie, pani sołtys, wójtowi i staroście na dalsze działania przyczyniające się do rozwoju wsi, gminy, powiatu. Również przybyli otrzymali pamiątkowe jagiellońskie dukaty.
Po części historycznej był czas na zdjęcia, sąsiedzkie spotkania, jesienny stół pełen owoców, gorącą grochówkę i pyszne ciasta.
W najbliższych dniach na muralu znajdzie się kod QR, dzięki któremu po zeskanowaniu telefonem będzie można wejść na nową stronę internetową Sołectwa Złotoria: www.solectwo.zlotoria.eu.
Barbara Kisielewska, sołtys Złotorii: "Podziękowania za realizację muralu i pomoc organizacyjną kieruję do: Cezarego Mazurkiewicza za oddanie w ręce złotorian wspaniałego świadectwa historii naszej miejscowości, które dzięki mistrzowskiemu talentowi będzie wspierać naszą pamięć o przeszłości; prof. Edwarda Salińskiego, przewodniczącego komisji konkursowej i opiekuna merytorycznego muralu za nieocenioną pomoc w urzeczywistnianiu złotoriańskich marzeń o przywracaniu dawnego blasku naszej wyjątkowej miejscowości; wójta gminy Lubicz Marka Nicewicza za wsparcie realizacji muralu, który rozsławi Złotorię i gminę Lubicz; Anny i Janusza Koroniewskich za nieodpłatne udostępnienie powierzchni swoich budynków, na których powstał mural na chwałę Złotorii i ku radości gości; właścicieli Firmy Davos Wojciecha Górnego i Artura Sadowskiego za nieodpłatne użyczenie farb do pokolorowania nie tylko muralu, ale i całego złotoriańskiego świata; Jarosława Nadolskiego, kierownika Referatu Promocji w gminie Lubicz za zaangażowanie i pomoc w realizacji muralu, który łączy przeszłość Złotorii z przyszłością gminy i jej mieszkańców; Krzysztofa Kisielewskiego, twórcy i administratora złotoriańskiej witryny internetowej za otwarcie Złotorii okna na świat, a światu danie radości obcowania ze Złotorią; Wojciecha Kulwickiego, który użyczył nam swojego budynku do umieszczenia kamery monitorującej mural. Bardzo dziękuję strażakom OSP w Złotorii za bezcenną pomoc w przygotowaniu uroczystości - na Was panowie zawsze można liczyć. Słowa podziękowania kieruję także do niezawodnych “Przebojowych Złotorianek" z naszego KGW, podawane przez Was potrawy, z sercem i uśmiechem, smakują zawsze wyśmienicie”.
drukuj (Mural, który połączył teraźniejszość z przeszłością)
Metryka
- Data 2021-10-26
Ostrzeżenie. Silny wiatr z południowego zachodu [Aktualizacja 2]
OSTRZEŻENIE METEOROLOGICZNE Nr 108/10/2021
Zjawisko: Silny wiatr
Stopień zagrożenia: 1
Ważność: od godz. 12:00 dnia 21.10.2021 r. do godz. 20:00 dnia 21.10.2021 r.
Obszar: Miasto Toruń, powiat toruński
Przebieg; Prognozuje się wystąpienie wiatru o średniej prędkości od 35 km/h do 50 km/h, w porywach do 90 km/h, z południowego zachodu.
Źródło informacji: Kujawsko – Pomorski Urząd Wojewódzki w Bydgoszczy. Wydział Bezpieczeństwa i Zarządzania Kryzysowego
Aktualizacja: Stopień został podniesiony do 2
OSTRZEŻENIE METEOROLOGICZNE Nr 110/10/2021
Zjawisko: Silny wiatr
Stopień zagrożenia: 1
Ważność: od godz. 10:00 dnia 22.10.2021 do godz. 20:00 dnia 22.10.2021
Obszar: Miasto Toruń, powiat toruński
Przebieg; Prognozuje się wystąpienie silnego wiatru o średniej prędkości od 35 km/h do 50 km/h, w porywach do 90 km/h, z południowego zachodu i zachodu.
Źródło informacji: Kujawsko – Pomorski Urząd Wojewódzki w Bydgoszczy. Wydział Bezpieczeństwa i Zarządzania Kryzysowego
drukuj (Ostrzeżenie. Silny wiatr z południowego zachodu [Aktualizacja 2])
Metryka
- Data 2021-10-21
Uwaga. Fotowoltaikę w gminie zakłada jedna firma
W związku z docierającymi do nas informacjami o powoływaniu się na współpracę z gminą przez różne firmy zajmujące się fotowoltaiką, przypominamy, że naszym jedynym wykonawcą tego typu instalacji jest wyłącznie Pro-eco Sp. z o.o. z Gdyni.
Lubicki urząd realizuje projekt „Instalacja systemów odnawialnych źródeł energii na terenie Gminy Lubicz". Zadanie dofinansowane jest w ramach Działania 3.1 „Wspieranie wytwarzania i dystrybucji energii pochodzącej ze źródeł odnawialnych" z Regionalnego Programu Operacyjnego Województwa Kujawsko – Pomorskiego (RPO WK-P) na lata 2014 – 2020. Właścicielom domów zakwalifikowanych do projektu instalacje wykona wyłoniona przez gminę w przetargu firma Pro-eco Sp. z o.o. z Gdyni.
Gmina Lubicz nie ma podpisanych umów z innymi firmami zajmującymi się fotowoltaiką, w związku z czym powoływanie się przez nie na współpracę z urzędem nie jest prawdą.
drukuj (Uwaga. Fotowoltaikę w gminie zakłada jedna firma)
Metryka
- Data 2021-10-20
Uwaga! W piątek GOPS pracuje krótko
- 501 957 906 (Dawid Lewandowski)
- 509 485 803 (Anna Warlikowska)
- 506 133 337 (Sabina Weber)
drukuj (Uwaga! W piątek GOPS pracuje krótko)
Metryka
- Data 2021-10-20
Ciekawi? Mural w Złotorii odsłonimy w sobotę
Wygląd historycznego muralu w Złotorii na razie jest jeszcze tajemnicą, ale w najbliższą sobotę wszystko stanie się jasne, ponieważ o 15.30 nastąpi oficjalne odsłonięcie malowidła.
Autor muralu Cezary Mazurkiewicz ze Złotorii od kilkunastu dni uwija się przy ścianach budynku prowadzącego do ruin zamku w Złotorii. Teren pracy jest osłonięty siatką, ale ciekawskich nie brakuje. – Zainteresowanie jest ogromne, tym bardziej milo nam zaprosić chętnych na oficjalne odsłonięcie muralu – mówi Barbara Kisielewska, sołtys Złotorii.
Spotykamy się 23 października o godz. 15.30 na parkingu przy kościele w Złotorii.
Uwaga, tego dnia parking będzie wyłączony z użytkowania, dlatego samochody prosimy postawić przy szkole lub w innych dozwolonych miejscach.
Na telebimie ustawionym na parkingu obejrzymy krótki film dokumentalny opowiadający o I pokoju toruńskim, do którego nawiązuje historyczny mural. Przypomnijmy, że właśnie na polach w okolicach zamku w Złotorii w 1411 roku nastąpiło oficjalne przekazanie dokumentów traktatu. Do średniowiecznych czasów nawiąże także oprawa wydarzenia, a jej wagę podkreśli obecność trębaczy. Nie obędzie się także bez króla i mieszczek, z którymi będzie można zrobić sobie zdjęcie. A na koniec sołtys i Rada Sołecka zapraszają na poczęstunek.
Barbara Kisielewska nie ukrywa radości z faktu, że jej marzenie o historycznym muralu w historycznej Złotorii w końcu dojdzie do skutku. – Nie ma przyszłości bez przeszłości – twierdzi. Bo to właśnie na polach Złotorii doszło do przekazania dokumentów I pokoju toruńskiego. Mural jest natomiast kolejnym elementem nawiązującym do tradycji. – Mamy Flisaka, jest już Zakątek Rybaka, będzie mural, lecz to nie wszystko – mówi pani sołtys. Sołectwo uruchomi też stronę internetową poświęconą Złotorii, w szczególności jej historii, a w planach, zarówno sołeckich, jak i gminnych, jest m.in. stworzenie makiety zamku w czasach jego świetności oraz prace wokół ruin.
drukuj (Ciekawi? Mural w Złotorii odsłonimy w sobotę)
Metryka
- Data 2021-10-18
W Lubiczu Dolnym jest nowa agencja pocztowa
Mieszkańcy Grębocina i Rogówka awizowane przez listonoszy przesyłki odbierają teraz w nowo powstałej Agencji Pocztowej w Lubiczu Dolnym przy ul. Mostowej 40.
Jak się dowiedzieliśmy, Agencja Pocztowa przy ul. Mostowej 40 działa w Lubiczu Dolnym od kilku dni. Mieści się w budynku mieszkalnym koło skupu palet. Czynna jest od poniedziałku do czwartku w godzinach 9.00-17.30, a w piątki w godz. 12.00-20.00. Awizowane przesyłki listowe i paczkowe odbierają w niej aktualnie adresaci zamieszkali w Grębocinie i Rogówku. Ma to rozładować kolejki w Urzędzie Pocztowym przy ul. Widokowej 8 w Lubiczu Górnym.
W przypadku pytań można kontaktować się z UP w Lubiczu Górnym pod nr 56 678 22 00.
Poczta Polska jest spółką Skarbu Państwa.
drukuj (W Lubiczu Dolnym jest nowa agencja pocztowa)
Metryka
- Data 2021-10-15
Nie trujmy siebie i innych
Obserwujesz ciemny i gęsty dym z komina? Napisz do Urzędu Gminy Lubicz na adres stop.smog@lubicz.pl. Dbajmy wspólnie o nasze zdrowie i środowisko, w którym żyjemy.
Przypomnijmy, że trzy gminy Lubicz, Obrowo i Czernikowo złożyły się dla Komisariatu Policji w Dobrzejewicach na drona, który będzie wykorzystywany m.in. do monitorowania jakości powietrza.
– Teraz w końcu pojawiło się narzędzie, które - mam nadzieję - pozwoli nam skutecznie przeciwdziałać zanieczyszczaniu powietrza – mówi wójt Lubicza Marek Nicewicz.
Dlatego, jeżeli podejrzewacie Państwo, obserwując ciemny i gęsty dym z komina, że ktoś w domowym piecu spala odpady, trując siebie i innych, to poinformujcie nas o tym, pisząc na adres stop.smog@lubicz.pl.
Wszystkie zgłoszenia zostaną przekazane policji.
Więcej na temat drona pisaliśmy tutaj.
Przypominamy również, że w urzędzie funkcjonuje specjalny punkt Programu „Czyste Powietrze”, a gmina pomaga w uzyskaniu dofinansowania na wymianę pieca. W naszej specjalnej zakładce na stronie przeczytacie o tym więcej – tutaj.
Jeżeli jednak macie Państwo jakieś pytania czy chcielibyście rozwiać swoje wątpliwości, zapraszamy na kolejne ze spotkań w sprawie Programu i możliwości uzyskania wsparcia finansowego: 19 października, świetlica w Krobi, godz. 17.
drukuj (Nie trujmy siebie i innych)
Metryka
- Data 2021-10-15
Zastrzyk gotówki dla sali w Lubiczu Dolnym
W Dniu Edukacji Narodowej wójt Marek Nicewicz podpisał w Urzędzie Marszałkowskim w Toruniu umowę na dofinansowanie budowy sali gimnastycznej w Lubiczu Dolnym.
Budowa sali gimnastycznej wraz łącznikiem i pomieszczeniami towarzyszącymi w Lubiczu Dolnym rozpoczęła się w wakacje. Teraz na placu intensywnie pracują murarze, a sala rośnie z dnia na dzień. To ważna, długo oczekiwana inwestycja, ponieważ w tej chwili lekcje wychowania fizycznego w Lubiczu Dolnym odbywają się w sali przy remizie oddalonej od szkoły o kilkaset metrów.
Społeczność szkoły nie może doczekać się efektu końcowego, z uwagą obserwując postępy prac. Właśnie wylano strop nad częścią socjalną.
- Chodziłam do tej szkoły i jej minusem był właśnie brak sali gimnastycznej i długie wycieczki "do remizy". Cieszę się, że moi chłopcy będą już mieli salę na miejscu – napisała na naszym gminnym FB jedna z mam.
- Bardzo się cieszymy z budowy sali gimnastycznej – dodaje sołtys Lubicza Dolnego Alicja Zielińska.
Sala ma być gotowa na przyszły rok szkolny. Jej koszt to 2 mln zł.
– Decyzję o budowie sali, przy aprobacie Rady Gminy Lubicz, podjąłem mimo braku dofinansowania z programów rządowych, na które to bardzo liczyliśmy, ponieważ sytuacja finansowa samorządów jest coraz trudniejsza – mówi wójt Marek Nicewicz. – Dlatego ucieszyło nas wsparcie marszałka Piotra Całbeckiego i Sejmiku Województwa Kujawsko-Pomorskiego, do czego znacznie przyczynił się radny Jacek Gajewski, obecny na dzisiejszej gali.
Dziś, czyli w Dniu Edukacji Narodowej, oficjalnie podpisano w Toruniu umowę na dofinansowanie lubickiej inwestycji na 250 tys. zł.
Po jej zakończeniu gmina planuje aktualną salę przystosować na potrzeby społeczności lokalnej. Prace nad koncepcją już trwają.
drukuj (Zastrzyk gotówki dla sali w Lubiczu Dolnym)
Metryka
- Data 2021-10-14
Życzenia i nagrody dla nauczycieli
Kto został nagrodzony przez wójta, a kto otrzymał medal resortowy i państwowy? Zdradzamy w tym tekście, ponieważ zaplanowana na dziś uroczystość związana z Dniem Edukacji Narodowej ze względów covidowych musiała zostać przeniesiona na inny termin.
Mówi wójt Lubicza Marek Nicewicz: - To kolejny Dzień Edukacji Narodowej, który obchodzimy w trudnej sytuacji pandemicznej, powodującej strach o zdrowie i przyszłość, dlatego zastanawiam się, co powiedzieć, aby moje słowa nie zabrzmiały banalne. Czego zatem Państwu życzyć? Jednak zacznę od zdrowia, bo zdrowie, jak nam pokazało ostatnie kilkanaście miesięcy, naprawdę jest najważniejsze. Zdrowia dla Państwa, ale także dla Waszych rodzin. Życzę także, abyście mogli Państwo pracować w spokoju, bez presji, realizując swoje cele zawodowe, a także spełniać marzenia prywatne. Dziękuję też za zaangażowanie w tym trudnym czasie.
Do życzeń dołącza Zbigniew Barcikowski, przewodniczący Rady Gminy Lubicz wraz z radnymi.
Niestety, zaplanowana na 13 października uroczystość związana z Dniem Edukacji Narodowej ze względów bezpieczeństwa została odwołana. Zdradzamy, kto miał być na niej wyróżniony.
Nagrody wójta gminy Lubicz dla nauczycieli otrzymali:
Iwona Bartczak z SP w Grębocinie
Agata Marchlik z SP w Grębocinie
Magdalena Czajkowska z SP w Lubiczu Górnym
Justyna Sadowska z SP w Lubiczu Górnym
Teresa Szatkowska z SP w Złotorii
Barbara Lefelbajn-Saja z SP w Lubiczu Dolnym
Danuta Jankowska z Przedszkola Publicznego "Chatka Puchatka" w Lubiczu Górnym
Żaneta Kozioziembska z SP w Młyńcu Pierwszym
Nagrody wójta gminy Lubicz dla dyrektorów:
Joanna Ardanowska – dyrektor Szkoły Podstawowej im. Tadeusza Kościuszki w Lubiczu Górnym
Aleksandra Lisiecka – dyrektor Szkoły Podstawowej im. Jana Pawła II w Grębocinie
Wioletta Pawłowska – dyrektor Szkoły Podstawowej im. bł. ks. Władysława Bukowińskiego w Lubiczu Dolnym
Wiesława Geras – dyrektor Szkoły Podstawowej w Złotorii
Mariola Marcinkowska – dyrektor Szkoły Podstawowej w Młyńcu Pierwszym
Elżbieta Światowska – dyrektor Przedszkola Publicznego "Chatka Puchatka" w Lubiczu Górnym
Nagrody wójta gminy Lubicz dla uczniów
w ramach „Programu wspierania edukacji uzdolnionych dzieci i młodzieży w dziedzinie nauki i kultury dla uczniów pobierających naukę na terenie gminy Lubicz, za osiągnięcia - w roku szkolnym 2020/202”:
- Filip Borowicz - klasa VII - SP w Młyńcu Pierwszym
- Helena Kalinowska - klasa IV - SP w Lubiczu Górnym
- Hubert Kilanowski - klasa VII - SP w Lubiczu Górnym
- Paweł Katarzyński - klasa VIII - SP w Złotorii
- Julia Guzowska - klasa VII - SP w Złotorii
- Emil Rau - klasa IV - SP w Lubiczu Górnym
- Klaudia Lewandowska - klasa VIII - SP w Lubiczu Górnym
Nagrody przewodniczącego Rady Gminy Lubicz dla uczniów
w ramach „Programu wspierania edukacji uzdolnionych dzieci i młodzieży w dziedzinie aktywności wolonotariackiej, społecznej i samorządowej dla uczniów szkół podstawowych pobierających naukę na terenie gminy Lubicz - w roku szkolnym 2020/2021”
- Nikola Polcyn - klasa V - SP w Młyńcu Pierwszym
- Wiktor Prowadzisz - klasa VII w SP w Lubiczu Górnym
Nowo mianowani nauczyciele to:
Emilia Olszewska - SP w Lubiczu Dolnym
Monika Michalska - SP w Lubiczu Górnym
Kinga Dymerska - SP w Grębocinie
Justyna Zalewska - SP w Złotorii
Serdecznie gratulujemy wszystkim, również osobom, które otrzymały nagrody państwowe i resortowe.
SP w Młyńcu Pierwszym
(za rok szkolny 2020/2021)
Beata Pastwa – Medal KEN
(za rok szk. 2021/2022)
Mariola Marcinkowska – Złoty Medal za Długoletnią Służbę
Urszula Witkowska – Złoty Medal za Długoletnią Służbę
Renata Szymańska – Złoty Medal za Długoletnia Służbę
SP w Lubiczu Górnym
Medale za Długoletnią Służbę (2021 r.)
Katarzyna Kwaśnicka – złoty
Wioletta Bieniewicz – srebrny
Małgorzata Gonkowska – srebrny
Dorota Imalska – brązowy
SP w Grębocinie
(za 2020 r.)
Małgorzata Rozesłaniec – Złoty Medal za Długoletnią Służbę
Małgorzata Dąbrowska – Złoty Medal za Długoletnią Służbę
Katarzyna Rzepecka – Srebrny Medal za Długoletnią Służbę
Danuta Witkowska – Srebrny Medal za Długoletnią Służbę
Jolanta Leszczyńska – Medal KEN
Justyna Miastkowska – Medal KEN
Agnieszka Witkowska – Medal KEN
Agnieszka Świerczek-Szczech – Medal KEN
(za 2021 r.)
Małgorzata Prątnicka – Srebrny Medal za Długoletnią Służbę
Ilona Bożejewicz-Gajtkowska – Srebrny Medal za Długoletnią Służbę
Agata Marchlik – Srebrny Medal za Długoletnią Służbę
Małgorzata Łukasik – Medal KEN
Beata Piórkowska – Medal KEN.
>>> Życzenia od władz gminy na FB Gmina Lubicz
drukuj (Życzenia i nagrody dla nauczycieli)
Metryka
- Data 2021-10-13
Przyjdź i złóż wniosek o wymianę pieca
19 października zapraszamy do Krobi na kolejne spotkanie informacyjne w sprawie Programu "Czyste Powietrze". Przypominamy, że Urząd Gminy Lubicz pomaga w wypełnieniu i rozliczeniu takich wniosków. Do tej pory złożyło je w programie kilkaset osób z naszej gminy.
Spotkanie rozpocznie się o godz. 17.00 w świetlicy wiejskiej.
Więcej na temat programu znajdziecie w naszej specjalnej zakładce.
drukuj (Przyjdź i złóż wniosek o wymianę pieca)
Metryka
- Data 2021-10-13
Dojrzałe życie można przeżywać śpiewająco
Na piątkowym IV Przeglądzie Piosenki Biesiadnej w Lubiczu Dolnym wystąpili seniorzy z Lubicza Dolnego, Lubicza Górnego i Grębocina. W ubiegłym roku przegląd nie odbył się ze względu na obostrzenia związane z pandemią.
Ta przerwa spowodowała, że nasi seniorzy byli bardzo spragnieni wspólnego towarzystwa i zabawy, dlatego licznie wzięli udział w wydarzeniu, prezentując swoją pasję.
W przeglądzie wystąpili:
- Chór Arka z Lubicza Dolnego
- Chór Stowarzyszenia Kulturalnego Pokolenia z Lubicza Dolnego
- Kapela Dolina Drwęcy z Lubicza Górnego
- Chór Klubu Seniora Lubiczanie z Lubicza Górnego
- Chór Klubu Seniora Złota Jesień z Grębocina
- Chór Klubu Seniora Dolina Drwęcy z Lubicza Górnego
- Zespół Eden z Grębocina.
Publiczność chętnie podchwycała piosenki, wspierając występujących swoim głosem.
Mieszkańcy mogli przy okazji porozmawiać z wójtem Markiem Nicewiczem, który oklaskiwał występujących, a na koniec wręczył każdemu zespołowi symboliczne podziękowanie.
Plan polowań koła ze Złotorii i Leśna
Plany polowań zbiorowych na sezon 2021/2022 koła łowieckiego „Młodnik” w Złotorii oraz "Daniel" w Leśnie".
drukuj (Plan polowań koła ze Złotorii i Leśna)
Metryka
- Data 2021-10-11
Parking już jest, można korzystać
Naprzeciwko parafii w Lubiczu Dolnym powstał tymczasowy bezpłatny parking dla mieszkańców, który będzie przede wszystkim służył osobom biorącym udział w uroczystościach w kościele.
Teren został wykoszony, wyrównany i ogrodzony. Przygotowaniem parkingu zajął się Zakład Usług Komunalnych w Lubiczu. W przyszłym tygodniu parking będzie oznakowany.
Parkowanie samochodów w tym miejscu jest darmowe i ma nieco usprawnić ruch na ul. Dworcowej. - Próba podjechania samochodów pod kościół z jednocześnie wbijającymi się między auta tirami ze strefy przemysłowej powoduje bowiem bardzo niebezpieczne sytuacje – wyjaśnia wójt Lubicza Marek Nicewicz.
To rozwiązanie tymczasowe, ponieważ działka, na której urządzono parking jest własnością prywatną, kupioną od innego prywatnego właściciela w celu budowy Lidla. Właściciel terenu użyczył go gminie na pół roku ze względu na przedłużające się procedury związane z uzyskaniem pozwolenia na budowę.
Gmina cały czas pracuje nad ostatecznym rozwiązaniem problemów komunikacyjnych na ulicy Dworcowej.
drukuj (Parking już jest, można korzystać)
Metryka
- Data 2021-10-08
Mistrzowie kolarstwa w Lubiczu Górnym
Michał Kwiatkowski, Michał Gołaś, Daniel Rochna czy Olga Wankiewicz – m.in. takich mistrzów będzie można najprawdopodobniej spotkać w niedzielę w Lubiczu Górnym na Kryterium Asów. To będzie gratka dla wszystkich fanów kolarstwa.
To są nazwiska, które niewątpliwie znają wszyscy miłośnicy sportu. Kwiatkowski, Gołaś, Rochna, Wankiewicz ścigają się na całym świecie, a w najbliższą niedzielę (10 października) będzie można zdobyć ich autograf w Lubiczu Górnym na Kryterium Asów Województwa Kujawsko-Pomorskiego i Mistrzostwach Województwa Kujawsko-Pomorskiego.
Chętnych zapraszamy do udziału w zawodach, a pozostałych mieszkańców do kibicowania.
10.45 -12.00 – zapisy zawodników w biurze zawodów w szkole w Lubiczu Górnym
12.05 – odprawa techniczna
12.15 – wyścig dzieci(dzieci powyżej 2014 r.)
12.25 – wyścig rodzinny(rodzic/opiekun + dziecko uczęszczające do szkoły podstawowej)
12.50 – start kategorii żakini
13.15 – start kategorii żak
13.40 – start kategorii młodziczka
14.10 – start kategorii młodzik
14.40 – start kategorii VIP/samorządowiec, elita kobiet, juniorki, juniorki mł.
15.15 – start kategorii junior młodszy, junior, orlik, elita, nauczyciel/trener, VIP
16.30 – zakończenie zawodów i wręczenie nagród w miejscu startu/mety.
Uwaga kierowcy i pasażerowie MZK!
W godzinach 11.50 - 16.30 nastąpią utrudnienia w ruchu na ulicach Lipnowskiej, Polnej, Piaskowej i Bankowej; zostanie też zmieniona trasa przejazdu autobusów linii nr 35 – autobusy ominą przystanki Lubicz Osiedle i Lubicz Bankowa.
Autobusy z pętli w Krobi odjadą z pięciominutowym opóźnieniem, a w Lubiczu Górnym skorzystają tylko z przystanku przy ulicy Warszawskiej (Droga Krajowa nr 10). Autobusy w kierunku Krobi skręcą tam bezpośrednio z DK 10 (przystanek tymczasowy za skrzyżowaniem), a kończące trasę w Lubiczu Górnym zatrzymają się na przystanku PKS.
drukuj (Mistrzowie kolarstwa w Lubiczu Górnym)
Metryka
- Data 2021-10-08
Do kogo trafią nagrody sportowe?
Wójt gminy Lubicz ogłasza nabór wniosków o nagrody sportowe. Takie wyróżnienia mogą być przyznawane zawodnikom w sportach indywidualnych, a także osobom wchodzącym w skład sztafety czy załogi.
Uchwałę, na której podstawie są przyznawane nagrody oraz wyróżnienia za osiągnięte wyniki sportowe znajdziecie tutaj.
Dokumenty prosimy dostarczyć do Biura Podawczego (parter, budynek główny) lub Referatu Promocji i Komunikacji Społecznej (budynek B, pok. nr 8).
Termin składania wniosków (wzór w załączeniu) to 30 listopada.
Kontakt w przypadku pytań: Monika Lewandowska, nr tel. 674 40 16 lub m.lewandowska@lubicz.pl.
drukuj (Do kogo trafią nagrody sportowe?)
Metryka
- Data 2021-10-07
- Wzór wniosku (DOC) 44kB
Parking w Lubiczu Dolnym
Przy Dworcowej w Lubiczu Dolnym, naprzeciwko kościoła, powstanie tymczasowy bezpłatny parking dla mieszkańców. Nowe miejsca postojowe powinny być przygotowane w ciągu tygodnia.
Parking ma nieco usprawnić ruch na ulicy w Dworcowej, poprzez możliwość postawienia auta w bezpiecznym miejscu, szczególnie dla osób przyjeżdżających do kościoła. – Dotyczy to nie tylko niedziel, ale także innych dni, zwłaszcza tych, w których odbywają się rożne uroczystości, jak pogrzeby, śluby czy chrzciny, ponieważ próba podjechania samochodów pod kościół z jednocześnie wbijającymi się między auta tirami ze strefy przemysłowej powoduje bardzo niebezpieczne sytuacje – mówi wójt Lubicza Marek Nicewicz.
To rozwiązanie tymczasowe, tym bardziej, że działka, na której parking powstanie jest własnością prywatną, kupioną od innego prywatnego właściciela w celu budowy Lidla. Właściciel terenu użyczył go gminie na pół roku ze względu na przedłużające się procedury związane z uzyskaniem pozwolenia na budowę.
Parking powinien być gotowy w ciągu tygodnia.
Gmina cały czas pracuje również nad ostatecznym rozwiązaniem problemów komunikacyjnych na ulicy Dworcowej.
drukuj (Parking w Lubiczu Dolnym)
Metryka
- Data 2021-10-05
Dron zbada dym z kominów
Trzy gminy Lubicz, Obrowo i Czernikowo złożyły się dla Komisariatu Policji w Dobrzejewicach na drona, który będzie wykorzystywany m.in. do monitorowania jakości powietrza i poszukiwania osób zaginionych.
Sezon grzewczy zbliża się wielkimi krokami, co oznacza zanieczyszczenie powietrza związane z paleniem w piecach niedozwolonymi materiałami. – Teraz w końcu pojawiło się skuteczne narzędzie, które - mam nadzieję - pozwoli nam na wyeliminowanie takich niewłaściwych i szkodliwych zachowań – mówi wójt Lubicza Marek Nicewicz.
Na wartego 75 tys. zł drona złożyły się gminy Lubicz, Czernikowo i Obrowo, znajdujące się na terenie działania Komisariatu Policji w Dobrzejewicach. Obsługą urządzenia zajmą się specjalnie przeszkoleni policjanci, tym bardziej, że to właśnie policja posiada uprawienia do karania za wykroczenia.
Zakupiony przez mundurowych dron ma niezależny mobilny system pomiarowy gazowych i pyłowych zanieczyszczeń powietrza w trybie wymuszonym. Wystarczy, że wleci w smugę dymu, a ciąg wirników zassie dym w kierunku czujnika. Pomiary zapisywane są w postaci pliku, gdzie znajdą się informacje o stężeniu poszczególnych substancji, czasie i współrzędnych.
Zakup drona jest kolejnym krokiem na drodze do dbałości o jakość powietrza w gminie, dla tych osób, które mimo zachęt nadal trują siebie i innych. W czerwcu gmina Lubicz uruchomiła w urzędzie Punkt „Czystego Powietrza”. Jego cel to poprawa jakości powietrza oraz zmniejszenie emisji gazów cieplarnianych poprzez wymianę źródeł ciepła i poprawę efektywności energetycznej budynków mieszkalnych jednorodzinnych.
- Obserwujemy duże zainteresowanie programem, czasami na termin trzeba poczekać kilka dni, ale nie dłużej, ponieważ staramy się jak najszybciej służyć wsparciem – mówi Danuta Suchorzyńska, kierownik Referatu Rolnictwa i Ochrony Środowiska Urzędu Gminy Lubicz.
Pomoc w wypełnianiu wniosków odbywa się w poniedziałki, wtorki, środy i piątki w godz. 11.00 – 13.30, po wcześniejszym telefonicznym uzgodnieniu terminu. Szczegółowych informacji udzielają pracownicy Urzędu Gminy Lubicz pod numerem telefonu: 56 621 21 29 lub 500 280 473 i 500 280 657 bądź poprzez e-mail: czystepowietrze@lubicz.pl.
W Punkcie uzyskamy informacje o zasadach programu „Czyste Powietrze” oraz bezpłatne wsparcie w zakresie przygotowywania wniosku o dofinansowanie. Zainteresowani mieszkańcy mogą także skorzystać ze stanowiska komputerowego z dostępem do Internetu, przy którym wypełnią wnioski i je wydrukują. Wnioski te za pośrednictwem gminy trafiają następnie do Wojewódzkiego Funduszu Ochrony Środowiska i Gospodarki Wodnej w Toruniu. Punkt pomaga także przy rozliczaniu przyznanych dofinansowań, w tym przy poprawnym wypełnianiu wniosków o płatność oraz kompletowaniu wymaganych załączników.
Z terenu naszej gminy z Programu „Czyste Powietrze” dotychczas (dane sprzed miesiąca) skorzystało prawie 500 osób, łączna suma dotacji przekroczyła 7,6 mln zł, na co zapewne wpłynęło uproszczenie procedur i zwiększenie puli środków.
- To dobitnie pokazuje, że jak najszybciej warto zainteresować się programem – mówi wójt.
Tym bardziej, iż sezon grzewczy tuż przed nami, a dron pozwoli skuteczniej monitorować sytuację w gminie i wykrywać przypadki niezgodnego z prawem palenia w piecach materiałami szkodliwymi dla zdrowia.
Urządzenie posiada również m.in. kamerę termowizyjną, która pomoże policji w innych działaniach prewencyjnych i kryminalnych, np. w poszukiwaniach osób zaginionych.
Więcej na temat programu "Czyste Powietrze" przeczytacie tutaj.
drukuj (Dron zbada dym z kominów)
Metryka
- Data 2021-10-01
Rekruci na start. Ruszyła kwalifikacja
Od wczoraj trwa kwalifikacja wojskowa dla poborowych z gminy Lubicz. Komisja prosi o właściwe przygotowanie się na spotkanie, a zwłaszcza zabranie ze sobą zdjęcia legitymacyjnego.
Kwalifikacja wojskowa dotyczy rocznika podstawowego 2002 oraz osób z roczników 1997-2001, które z różnych powodów nie przystąpiły do niej wcześniej.
- Prosimy o dokładne przeczytanie wezwania, również na drugiej stronie i zabranie odpowiednich dokumentów oraz zdjęcia – mówi Kamil Czop, inspektor Obrony Cywilnej, Nadzwyczajnych Zagrożeń i Ochrony P. Pożarowej z Urzędu Gminy Lubicz. – Pierwszego dnia duża grupa mężczyzn zgłosiła się bez zdjęcia, co powoduje utrudnienia, dlatego, że takie osoby muszą znaleźć fotografa i wrócić do nas, dezorganizując pracę, ponieważ każdy wcześniej ma wyznaczoną datę i godzinę poboru.
Kwalifikacja mężczyzn skończy się 6 października, a dla kilku wytypowanych z terenu gminy kobiet odbędzie się 8 listopada (Klub Kameleon, ul. Tuwima 9, Toruń).
drukuj (Rekruci na start. Ruszyła kwalifikacja)
Metryka
- Data 2021-09-30
Złotoriański mural będzie niespodzianką
Historyczny mural na ścianach budynku prowadzącego do ruin zamku w Złotorii namaluje mieszkaniec tej miejscowości artysta grafik Cezary Mazurkiewicz. Co znajdzie się na muralu?
To jest pytanie, które sołtys Złotorii Barbara Kisielewska ostatnio słyszy bardzo często. – Nie zdradzam, ponieważ mural ma być niespodzianką. Powiem tylko, że naszej komisji, pod kierunkiem art. graf. prof. Edwarda Salińskiego, pomysł pana Cezarego bardzo się spodobał – mówi pani sołtys.
28 września Cezary Mazurkiewicz otrzymał od wójta Marka Nicewicza list gratulacyjny będący potwierdzeniem zwycięstwa jego projektu. Autor chciałby, aby mural pojawił się w Złotorii jeszcze w październiku, jeżeli tylko pozwolą na to warunki pogodowe.
Barbara Kisielewska nie ukrywa radości z faktu, że jej marzenie o historycznym muralu w historycznej Złotorii w końcu dojdzie do skutku. – Nie ma przyszłości bez przeszłości – twierdzi. Bo to właśnie na polach Złotorii doszło do przekazania dokumentów I pokoju toruńskiego. Mural jest natomiast kolejnym elementem nawiązującym do tradycji. – Mamy Flisaka, jest już Zakątek Rybaka, będzie mural, lecz to nie wszystko – mówi pani sołtys. Sołectwo pracuje już nad stroną internetową poświęconą Złotorii, w szczególności jej historii, a w planach, zarówno sołeckich i gminnych, jest m.in. stworzenie makiety zamku w czasach jego świetności oraz prace wokół ruin.
drukuj (Złotoriański mural będzie niespodzianką)
Metryka
- Data 2021-09-30
Strategia rozwoju gminy. Ruszają konsultacje!
Wójt Gminy Lubicz ogłasza przeprowadzenie konsultacji społecznych projektu „Strategii rozwoju Gminy Lubicz na lata 2021-2028”.
Konsultacje społeczne skierowane są do:
- mieszkańców Gminy Lubicz,
- lokalnych partnerów społecznych i gospodarczych, w szczególności działających na terenie Gminy Lubicz organizacji pozarządowych i przedsiębiorców,
- sąsiednich gmin: Ciechocin, Kowalewo Pomorskie, Łysomice, Obrowo, Toruń, Wielka Nieszawka, a także ich związków,
- Stowarzyszenia „Lokalna Grupa Działania Podgrodzie Toruńskie”,
- Dyrektora Regionalnego Zarządu Gospodarki Wodnej w Gdańsku – Państwowe Gospodarstwo Wodne Wody Polskie.
Formy konsultacji:
- w przypadku sąsiednich gmin, Stowarzyszenia „Lokalna Grupa Działania Podgrodzie Toruński” oraz Dyrektora Regionalnego Zarządu Gospodarki Wodnej w Gdańsku – Państwowe Gospodarstwo Wodne Wody Polskie – poprzez przesłanie pisma, wraz z załączonym do niego formularzem konsultacyjnym, z prośbą o wydanie opinii.
- W pozostałych przypadkach – poprzez udostepnienie treści projektu Strategii rozwoju Gminy Lubicz na lata 2021 – 2028, wraz z formularzem konsultacyjnym w Biuletynie Informacji Publicznej Urzędu Gminy Lubicz: bip.lubicz.pl, w zakładce Strategia rozwoju Gminy Lubicz na lata 2021 – 2028 oraz w biurze podawczym Urzędu Gminy Lubicz, Lubicz Dolny, ul. Toruńska 21 - w godzinach jego urzędowania.
Opinie do Strategii należy dostarczyć do Urzędu Gminy Lubicz do 5 listopada 2021 r. w następujący sposób:
- do biura podawczego Urzędu Gminy Lubicz, Lubicz Dolny, ul. Toruńska 21
- pocztą na adres Urzędu Gminy Lubicz, ul. Toruńska 21, 87 – 162 Lubicz Dolny (decyduje data wpływu do urzędu)
- pocztą elektroniczną na adres info@lubicz.pl (wpisując w tytule e-maila „Uwagi do Strategii) lub poprzez system ePUAP, adres skrytki Urzędu Gminy Lubicz /5f5cvll25v/SkrytkaESP
Ważne uznaje się stanowiska przesłane na formularzu do składania uwag do projektu „Strategii rozwoju Gminy Lubicz na lata 2021 – 2028” w formie skanu podpisanego formularza lub dokumentu podpisanego elektronicznie (za pomocą podpisu zaufanego, bezpiecznego kwalifikowanego podpisu elektronicznego lub podpisu osobistego z e-dowodu).
Raport z konsultacji zostanie opublikowany na tablicy ogłoszeń Urzędu Gminy Lubicz, na stronie internetowej Urzędu oraz w Biuletynie Informacji Publicznej.
Pełna treść ogłoszenia, zarządzenie w sprawie przeprowadzenia konsultacji oraz formularze znajdują się tutaj.
drukuj (Strategia rozwoju gminy. Ruszają konsultacje!)
Metryka
- Data 2021-09-29
Młyniec Drugi ma gest. Podsumowanie konkursu witaczy
Sołectwo Młyniec Drugi - zwycięzca etapu gminnego konkursu na najbardziej pomysłowy witacz przekazało swoją nagrodę Gronowu, którego witacz został spalony.
Wczoraj w najnowszej w gminie świetlicy wiejskiej w Młyńcu Drugim odbyło się oficjalne podsumowanie konkursu witaczy dożynkowych. O jego wynikach już informowaliśmy w tekście Słomiane dekoracje w sześciu sołectwach. W naszej gminie przygotowano sześć witaczy w Brzeźnie, Grębocinie, Gronowie, Mierzynku, Młyńcu Drugim i Młyńcu Pierwszym. Do konkursu wojewódzkiego komisja konkursowa wytypowała witacz Młyńca Drugiego. Warto zaznaczyć, że w akcję zaangażowało się tu wiele osób od sołtysa z radą sołecką, radnego, koło gospodyń po innych mieszkańców.
Komisja podkreśliła jednak ogromny wkład pracy oraz pomysłowość mieszkańców każdej z sześciu miejscowości, które wykonały witacze. Dlatego wójt Marek Nicewicz postanowił nagrodzić wszystkie słomiane dekoracje voucherami finansowymi do wydania na potrzeby własne środowisk w przyszłym roku budżetowym. Niespodziewanie, zwycięzca Młyniec Drugi w geście solidarności z Gronowem przekazał swój voucher twórcom spalonego gronowskiego witacza, czyli radnemu Krzysztofowi Zającowi oraz KGW Gronowo. Sołtys Kazimierz Smoliński wyjaśnił, że Młyniec Drugi w ten sposób chce zaznaczyć, że sprzeciwia się wszelkim aktom wandalizmu. Tym bardziej, że to nie był pierwszy tego typu przypadek, ponieważ w ubiegłym roku podobny los spotkał witacz Grębocina, a dewastacje w miejscach publicznych, np. na placach zabaw, niszczenie ławek czy przystanków, niestety, nie należą do rzadkości.
>>> Prezentacja witaczy [YouTube]
drukuj (Młyniec Drugi ma gest. Podsumowanie konkursu witaczy)
Metryka
- Data 2021-09-29
Rządowy gazociąg. Masz pytania?
Gaz-System, spółka akcyjna Skarbu Państwa, zaprasza do świetlicy środowiskowej w Grębocinie 7 października między 9.00 a 17.00 na spotkanie informacyjne na temat budowy gazociągu przez naszą gminę.
Gazociąg jest planowany od Gustorzyna do Wicka. Na naszym terenie zostanie zbudowane 16 km sieci w ośmiu sołectwach: Grabowiec, Kopanino, Nowa, Wieś, Lubicz Dolny, Grębocin, Rogówko, Rogowo i Złotoria.
Budowa infrastruktury gazowej, umożliwiająca zróżnicowanie źródeł i kierunków dostaw gazu ziemnego, a także związana z tym rozbudowa krajowej sieci przesyłowej, są traktowane jako inwestycje strategiczne, kluczowe dla bezpieczeństwa energetycznego kraju.
Inwestor planowanego gazociągu rządowego zaprasza do świetlicy środowiskowej w Grębocinie 7 października w godz. 9.00-17.00 na spotkanie informacyjne dla mieszkańców naszej gminy, gdzie będzie można dopytać o wszelkie szczegóły.
Materiały dotyczące inwestycji zamieściliśmy tutaj.
drukuj (Rządowy gazociąg. Masz pytania?)
Metryka
- Data 2021-09-28
Ostatnie godziny narodowego spisu powszechnego
Pamiętacie? 30 września kończy się Narodowy Spis Powszechny Ludności i Mieszkań 2021. Udział w spisie jest obowiązkowy.
Spisujemy się poprzez specjalną stronę internetową – tutaj.
Możecie także skorzystać z pomocy punktu spisowego w Urzędzie Gminy Lubicz, który czynny jest w godzinach pracy urzędu. Telefony kontaktowe to 56 674 40 14, 621 21 36 lub 501 927 579.
Przypominamy, że na terenie naszej gminy działa również kilku rachmistrzów. Uwaga! rachmistrz zawsze dzwoni z numeru 22 828 88 88.
Udział w spisie jest obowiązkowy.
drukuj (Ostatnie godziny narodowego spisu powszechnego)
Metryka
- Data 2021-09-28
Miłośnicy kolarstwa, mali i duzi. Jedziemy!
Zbliża się kolejne, już 13. Integracyjne Kryterium Asów. Do udziału zapraszamy zarówno ścigających się od dawna, jak i rodziców z dziećmi, dzieci oraz samorządowców. Spotykamy się 10 października w Lubiczu Górnym.
Integracyjne Kolarskie Kryterium Asów to impreza, która od lat jest w październiku w kalendarzu naszej gminy. Wydarzenie organizuje CCC Copernicus Akademia Michała Kwiatkowskiego Toruń i KS Sprint Grębocin we współpracy m.in. z gminą Lubicz.
Po raz kolejny zapraszamy więc kolarzy do rywalizacji w ramach mistrzostw województwa. Wszystkie szczegóły znajdziecie w załączonym regulaminie, choć przypuszczamy, że kolarze doskonale je znają.
Kryterium to także okazja do wspólnej zabawy amatorów i miłośników kolarstwa. Zachęcamy więc także do udziału w wyścigach w kategoriach: dzieci poniżej 2014 r., rodzic + dziecko oraz samorządowiec. Zapisy w szkole w Lubiczu Górnym w dniu zawodów w godz.10.45 -12.00; wyjątkowo samorządowców prosimy o wcześniejsze zgłoszenie chęci startu na maila pr@lubicz.pl.
Nagrody czekają!
drukuj (Miłośnicy kolarstwa, mali i duzi. Jedziemy!)
Metryka
- Data 2021-09-27
- Regulamin Kryterium Asów (PDF) 586.91kB
Kanalizacja. Lubicz Górny, Lubicz Dolny i Krobia
Ta inwestycja kosztowała prawie 13 mln zł, z których ponad 7 mln zł gmina pozyskała z Unii Europejskiej. Gmina Lubicz zakończyła ważną inwestycję infrastrukturalną - budowę sieci wodociągowo-kanalizacyjnej na terenie tzw. aglomeracji Lubicz.
Co zakładał projekt p.n. „Uporządkowanie gospodarki wodno-ściekowej na terenie Aglomeracji Lubicz"? W Krobi obejmował budowę sieci kanalizacji sanitarnej wraz z odgałęzieniami bocznymi oraz przewodu tłocznego z przepompownią ścieków w obrębie następujących ulic: Okrągłej, Olszynowej, Olimpijskiej, Pod Dębami, Cisowej, Osikowej, Osiedlowej, Żytniej, Makowej, Poprzecznej, Długiej, Cytrynowej, Krótkiej, Jaśminowej, Oliwkowej, Leszczynowej i Malinowej.
W Lubiczu Górnym wybudowano wodociąg i sieć kanalizacji sanitarnej wraz z przewodem tłocznym oraz przepompownią ścieków na ulicach: Przy Skarpie, Niteckiego, Trzaskalskiego, Bażantowej, Nad Strugą oraz Gajowej.
W Lubiczu Dolnym projekt uwzględniał budowę sieci wodociągowej, sieci kanalizacji sanitarnej, przewodu tłocznego z odgałęzieniami bocznymi oraz przepompowniami ścieków w obrębie ulic: Kolejowej, Ogrodowej, Magnoliowej, Leśnej, Klonowej, Toruńskiej, Jesionowej i Kasztanowej.
Dzięki inwestycji gminna sieć kanalizacyjna zyskała ponad 14 km, a wodociągowa przeszło pół kilometra.
- Poprawa stanu infrastruktury technicznej na terenie gminy bezpośrednio wpłynie na komfort życia mieszkańców – mówi wójt Marek Nicewicz. – Nie można też zapominać o poprawie stanu środowiska naturalnego, co przekłada się nie tylko na jakość naszego życia, ale także życia przyszłych pokoleń.
Projekt został dofinansowany z Europejskiego Funduszu Rozwoju Regionalnego w ramach Regionalnego Programu Operacyjnego Województwa Kujawsko-Pomorskiego na lata 2014-2020.
To nie koniec inwestowania w sieci wodno-kanalizacyjne na terenie naszej gminy. Obecnie lubicki Zakład Usług Komunalnych jest w trakcie budowy kanalizacji w Lubiczu Dolnym na ulicach: Cichej, Rekreacyjnej, Źródlanej, Szmaragdowej, Podgórnej, Miodowej, Ceramicznej, Spokojnej, Strumykowej i Dworcowej o czym pisaliśmy tutaj. Prace potrwają do końca bieżącego roku. Inwestycja ta współfinansowana jest z Programu Rozwoju Obszarów Wiejskich.
Dalsze prace związane z budową kanalizacji będą prowadzone, w miarę możliwości finansowych gminy, zgodnie z planem rozwoju i modernizacji urządzeń wodociągowych i urządzeń kanalizacyjnych będących w posiadaniu Zakładu Usług Komunalnych w Lubiczu Sp. z o.o., przyjętym uchwałą Rady Gminy Lubicz nr XXX/408/21 z dnia 29 kwietnia 2021 r.
drukuj (Kanalizacja. Lubicz Górny, Lubicz Dolny i Krobia)
Metryka
- Data 2021-09-24
XXXI Olimpiada Wiedzy Rolniczej
Ośrodek Doradztwa Rolniczego w Minikowie zaprasza na eliminacje powiatowe do XXXI Olimpiady Wiedzy Rolniczej, która odbędzie się 1 października o godz. 10.00 w auli szkoły muzycznej w Czernikowie.
drukuj (XXXI Olimpiada Wiedzy Rolniczej)
Metryka
- Data 2021-09-23
Przewonienie gazu ziemnego "Jesień 2021"
PSG sp. z o.o Oddział Zakład Gazowniczy w Bydgoszczy informuje, że w dniach 19-21 października przeprowadzi akcję przewonienia gazu ziemnego „Jesień 2021”, która ma na celu wykrycie i usuniecie nieszczelności na gazowej sieci rozdzielczej i instalacjach wewnętrznych w budynkach.
Wykryte nieszczelności na gazowej sieci rozdzielczej do kurka głównego i przy gazomierzach zostaną usunięte przez pracowników spółki. Służby Pogotowia Gazowego w czasie trwania akcji będą pracowały przez całą dobę.
Jednocześnie, jak zaznacza dyrektor oddziału Zakładu Gazowniczego, usuwanie stwierdzonych nieszczelności na instalacjach wewnętrznych i urządzeniach gazowych w budynkach należy do obowiązku właścicieli lub administratorów obiektów.
drukuj (Przewonienie gazu ziemnego "Jesień 2021")
Metryka
- Data 2021-09-21
Gminny serwis placów zabaw
Widząc jak wiele jest dewastacji, śmiecenia i zniszczeń na naszych sołeckich placach zabaw, zorganizowaliśmy gminny serwis placów zabaw. To mobilny jednoosobowy punkt odpowiednio oznakowany i wyposażony w narzędzia oraz podstawowe materiały.
Jego zadaniem jest interweniowanie w sytuacjach uszkodzeń czy zagrożenia bezpieczeństwa. Aby serwis pojawił się na placu zabaw i zaradził problemowi, wystarczy zadzwonić pod nr tel. 500 280 543. Odpowiednie tabliczki z tą informacją wkrótce pojawią się na każdym placu zabaw.
drukuj (Gminny serwis placów zabaw)
Metryka
- Data 2021-09-21
Wrześniowy numer "Gońca gminnego"
Wrześniowe wydanie "Gońca gminnego" jest już w druku, a jeszcze w tym tygodniu w papierowej wersji powinno być również u Państwa. Na razie proponujemy więc elektroniczną wersję naszego gminnego biuletynu. O czym piszemy w tym numerze?
Zwykle przygotowujemy osiem stron numeru, ale tak wiele się dzieje, że tym razem zapełniliśmy 12, co i tak okazało się niewystarczające. Piszemy o inwestycjach, zarówno tych dużych gminnych, jak i masie mniejszych, ale istotnych dla poszczególnych sołectw. A jeśli o sołectwach mowa, to również podsumowujemy cykl 17 zebrań wiejskich. Wyjaśniamy wątpliwości, proponujemy nowe rzeczy. Zapraszamy na fotorelacje z wydarzeń, piszemy o społecznych inicjatywach mieszkańców i o ich sukcesach sportowych.
Zachęcamy do poczytania. Wrześniowy numer "Gońca" znajdziecie tutaj.
Następne wydanie w październiku.
drukuj (Wrześniowy numer "Gońca gminnego")
Metryka
- Data 2021-09-20
Kreatywna Złotoria. Nie tylko mural
W Złotorii tuż za mostem na Drwęcy, w pobliżu kościoła powstanie historyczny mural upamiętniający zawarcie w XV wieku I pokoju toruńskiego. Kto go wykona? Już wiemy.
Przekazanie dokumentów traktatu nastąpiło w maju 1411 roku w okolicach tutejszego zamku. Mural ma pokazywać to właśnie wydarzenie. Z propozycją zaprojektowania i wykonania „dzieła” rada sołecka zwróciła się za pomocą mediów do osób o zacięciu artystycznym, studentów, pasjonatów sztuki ulicznej.
- To doskonała okazja do artystycznego spełnienia marzeń i pozostawienia po sobie trwałego śladu – komentuje Barbara Kisielewska, sołtys Złotorii.
Ściana budynku, użyczonego na te potrzeby od prywatnych właścicieli Anny i Janusza Koroniewskich, została już otynkowana i zagruntowana, a na apel rady sołeckiej odpowiedziało siedmiu autorów, przesyłając swoje wizualizacje.
- Bardzo dziękujemy wszystkim państwu, którzy odpowiedzieli na naszą propozycję – mówi pani sołtys.
Społeczna rada artystyczna pod kierunkiem art. graf. prof. Edwarda Salińskiego, powołana przez panią sołtys Złotorii, przeanalizowała nadesłane projekty, uwzględniając nie tylko walory artystyczne, ale także połączenie historii z teraźniejszością i możliwości techniczne realizacji. Ostatecznie zdecydowano się na podjęcie współpracy z Cezarym Mazurkiewiczem ze Złotorii. Jak wskazała komisja, jego pomysł na mural w Złotorii spełnia wszelkie oczekiwania mieszkańców i może się podobać przybywającym tu turystom. Efekt ma być niespodzianką, dlatego nie prezentujemy projektu.
– Postaramy się, aby mural powstał jeszcze w tym roku, ale tutaj dużo zależy od pogody. Potrzebne jest minimum 10 dni bez deszczu – wyjaśnia pani sołtys.
Przy okazji tej inicjatywy zdecydowano się także na założenie złotoriańskiej witryny internetowej, na której znajdą się teksty, opisy, ryciny, grafiki, fotografie opisujące bogatą historię miejscowości oraz jej tradycje i mieszkańców. Na witrynie będzie też można znaleźć filmy promocyjne ukazujące dzieje tego pięknego miejsca u dorzecza Drwęcy. Na nowo powstającym muralu zostanie umieszczony specjalny QR kod odsyłający widzów do witryny, dzięki czemu będzie można online zapoznać się z historią Złotorii. W planach sołectwa jest również pozyskanie makiety pokazującej zamek w czasach jego świetności oraz dalsze prace wokół ruin zamku.
drukuj (Kreatywna Złotoria. Nie tylko mural)
Metryka
- Data 2021-09-17
Czyste powietrze. Spotkanie informacyjne
Chcesz wymienić stary piec? Możesz dostać na to dofinansowanie. Jakie warunki trzeba spełnić? 21 września zapraszamy mieszkańców do Kopanina na spotkanie informacyjne w tej sprawie.
Spotkanie odbędzie się o godz. 16.00 w świetlicy i jest skierowane do mieszkańców Kopanina, Grabowca, Nowej Wsi i Złotorii. Planuje się także spotkania dla mieszkańców pozostałych miejscowości, ale jeżeli ktokolwiek ma ochotę udzestniczyć w spotkaniu w Kopaninie, to serdecznie zapraszamy.
Więcej na temat Programu i działającego w naszej gminie Punktu tego Programu można przeczytać tutaj.
drukuj (Czyste powietrze. Spotkanie informacyjne)
Metryka
- Data 2021-09-17
Słomiane dekoracje w sześciu sołectwach
Młyniec Drugi będzie reprezentował naszą gminę w konkursie wojewódzkim na najbardziej pomysłowy witacz.
Konkurs ogłosiło województwo kujawsko-pomorskie. Każda gmina może zgłosić tylko jeden witacz, dlatego postanowiliśmy zrobić wewnętrzne eliminacje – W naszej gminie przygotowano aż sześć witaczy, a każdy z nich to efekt wielu godzin pracy, na dodatek efekt bardzo ciekawy – mówi Aneta Kaczmarek, sekretarz Urzędu Gminy Lubicz.
Słomiane dekoracje wykonano w Brzeźnie, Grębocinie, Gronowie, Mierzynku, Młyńcu Drugim i Młyńcu Pierwszym.
Aby werdykt był jak najbardziej obiektywny powołano dwie, niezależne komisje. Pierwsza miała za zadanie wyłonić dwa najciekawsze witacze, którymi okazały się witacze Brzeźna i Młyńca Drugiego. Zadaniem drugiej komisji było wskazanie tego witacza, który zostanie zgłoszony do konkursu wojewódzkiego. Wybór padł na witacz Młyńca Drugiego.
Niestety, gronowskie Minionki cieszyły mieszkańców i przejezdnych tylko kilka dni, ponieważ spłonęły. W ubiegłym roku podobna sytuacja spotkała Grębocin. Sprawą podpalenia w Gronowie zajęła się policja. - Piętnujemy wszelkie akty wandalizmu. Bardzo nam też przykro z uwagi na twórców witacza, którzy poświęcili swój czas na jego przygotowanie – mówi Aneta Kaczmarek, sekretarz Urzędu Gminy Lubicz. To nie wykluczyło jednak witacza z udziału w naszym konkursie.
- Widząc zaangażowanie mieszkańców, wójt postanowił nagrodzić wszystkie wykonane witacze voucherami finansowymi do wydania na potrzeby własne środowisk w przyszłym roku budżetowym – dodaje pani sekretarz.
Oficjalne podsumowanie gminnego etapu konkursu odbędzie się pod koniec września na spotkaniu w Młyńcu Drugim.
>>> Prezentacja witaczy [YouTube]
drukuj (Słomiane dekoracje w sześciu sołectwach)
Metryka
- Data 2021-09-16
Pieniądze podzielone przez mieszkańców
Ponad 730 tys. zł. Tyle w przyszłym roku wnosi fundusz sołecki w naszej gminie. To pieniądze, które rozdzielili sami mieszkańcy, przychodząc na zebrania wiejskie.
Od 30 sierpnia do 13 września w gminie Lubicz trwał cykl zebrań wiejskich, których najważniejszym punktem programu było uchwalenie przyszłorocznego funduszu sołeckiego. Sołectwa miały do podziału od 25 413,78 zł dla najmniejszego Brzezinka aż do 53 502,70 zł dla największych miejscowości, m.in. Złotorii, Lubicza Dolnego czy Grębocina.
Skąd wzięto te kwoty?
Dla każdej miejscowości są one przydzielane na podstawie wzoru podanego w ustawie o funduszu sołeckim, w którym największe znaczenie ma liczba osób zamieszkujących sołectwo.
Cały fundusz sołecki na 2022 rok w gminie Lubicz wynosi 735 448,11 zł – to pieniądze specjalnie wydzielone dla sołectw z budżetu gminy Lubicz na ich najpilniejsze potrzeby.
- O tym jakie są te potrzeby, czyli co zdaniem mieszkańców powinno być wykonane, decydują sami mieszkańcy, oczywiście w oparciu o zapisy ustawy o funduszu sołeckim – wyjaśnia wójt Marek Nicewicz. – Często są to bardzo pożyteczne inicjatywy, jak na przykład w Młyńcu Pierwszym, gdzie od kilku lat fragmentami budowany jest chodnik przez wieś. Z funduszu sołeckiego kupujemy materiał, a gmina zapewnia wykonawstwo. Podobnie zdecydowało Rogowo, gromadząc co roku kolejną porcję materiału na oddany do użytku w sierpniu parking przed kościołem. Cieszy mnie to podejście inwestycyjne.
Takie od dawna prezentuje także Mierzynek, sukcesywnie remontujący swoją świetlicę. W tym roku na jej docieplenie to sołectwo postanowiło przeznaczyć swój fundusz sołecki w całości. – Dzięki temu, że modernizowaliśmy i wyposażaliśmy świetlicę, to teraz nasze prężnie działające koło gospodyń oraz straż wypracowują pieniądze na imprezy integracyjne dla mieszkańców, więc nie musimy brać na nie z funduszu i możemy przeznaczyć go na poprawę naszej infrastruktury – mówi sołtys Mariusz Filuś.
Z zaproszenia na zebranie wiejskie i prawa do głosowania nad podziałem środków sołeckich w każdej miejscowości skorzystało po kilkadziesiąt osób, np. w Grębocinie ok. 80.
Warto zaznaczyć, że wprowadzenie w gminie funduszu sołeckiego nie jest obowiązkowe.
drukuj (Pieniądze podzielone przez mieszkańców)
Metryka
- Data 2021-09-14
Myślę, więc nie śmiecę. Posprzątajmy razem
Śmieci wokół nas jest coraz więcej. W sobotę 18 września w ramach akcji „Sprzątanie Świata” będziemy porządkować las wokół jeziora w Józefowie.
Niestety, nie wszyscy wyrzucają śmieci do przeznaczonych do tego pojemników. W czasach, kiedy wydałoby się, że każdy wie, jak rozrzucanie odpadów wpływa na środowisko i nasze zdrowie, wciąż pozwalamy sobie na śmiecenie w miejscach publicznych. Jezioro Józefowo jest jednym z najbardziej urokliwych miejsc na terenie naszej gminy, a jednak wciąż nie szanujemy tego, co mamy. 18 września z okazji kolejnego „Sprzątania Świata” o godz. 15.00 zapraszamy mieszkańców do wspólnej akcji sprzątania lasu wokół jeziora.
- Przyjemne, czyli maksymalnie dwugodzinny spacer po lesie połączymy z pożytecznym, a więc zebraniem śmieci – mówi wójt Marek Nicewicz.
Każda osoba otrzyma od nas rękawiczki i worki, specjalną przypinkę okolicznościową oraz drobne gadżety gminy i MPO. Po sprzątaniu zaprosimy na wspólne spotkanie, na którym na uczestników będzie czekał drobny poczęstunek oraz rozstrzygnięcie konkursów na: największy śmieć, najdziwniejszy śmieć oraz najmłodszego i najstarszego uczestnika akcji.
- Jestem niemal przekonany, że akurat ci, co sprzątają w takich akcjach, to nie śmiecą – mówi wójt Marek Nicewicz. – Mam nadzieję, że do tych, którzy śmiecą w końcu dotrze jak wstydliwe i nieodpowiedzialne jest to zachowanie.
W akcji „Sprzątanie świata” chodzi również o to, by nie śmiecić oraz poprawnie segregować odpady.
Przy okazji przypominamy więc, że w naszej gminie funkcjonuje bezpłatny dla mieszkańców Punkt Selektywnej Zbiórki Odpadów Komunalnych i jak prawidłowo segregować śmieci.
Hasło tegorocznej akcji brzmi: „Myślę, więc nie śmiecę”. Mając je na uwadze zachęcamy, aby każdy z nas podjął także działania, dzięki którym zmniejszymy ilość wytwarzanych tworzyw sztucznych, np. foliową reklamówkę na zakupy zastępując materiałową torbą. Zmiany zaczynają się od małych rzeczy, które w perspektywie czasu wielokrotnie powtarzane stają się wielkie.
drukuj (Myślę, więc nie śmiecę. Posprzątajmy razem)
Metryka
- Data 2021-09-14
Wrześniowa sesja Rady Gminy Lubicz
XXXIV sesja Rady Gminy Lubicz odbędzie się 16 września o godz. 12.00 w świetlicy wiejskiej w Krobi (ul. Olimpijska 14). Zapraszamy do zapoznania się ze szczegółami.
Proponowany program sesji >>> tutaj
Transmisja z obrad sesji >>> tutaj
drukuj (Wrześniowa sesja Rady Gminy Lubicz)
Metryka
- Data 2021-09-13
Kąpielisko zamknięte, a w przyszłym roku…
Skończyły się wakacje, kąpielisko nad jeziorem w Józefowie nieczynne, lecz już dziś zdradzamy jaką nowość szykujemy dla mieszkańców w następnym sezonie.
Za nami trzeci sezon plażowania w Józefowie. Na nowo przygotowaliśmy parkingi, kąpielisko i plażę z toaletami, miejscem do siatkówki i na grilla. Funkcjonował bar. Naszym priorytetem było zapewnienie mieszkańcom bezpieczeństwa, stąd obecność ratowników. W tym roku nie odnotowano żadnych niebezpiecznych sytuacji, poza drobnymi incydentami.
- Chciałbym podziękować mieszkańcom za stosowanie się do zasad, ale także toruńskiemu WOPR za nieodpłatne użyczenie łódki ratowniczej – mówi wójt Marek Nicewicz.
Mieszkańcom na plaży zaproponowaliśmy również dodatkowe atrakcje, jak cztery seanse kina letniego oraz atrakcje sportowe przygotowane przez Stowarzyszenie One Passion One Love WP. Można było m.in. wziąć udział w Biegu Run Lubicz wokół jeziora i w turniejach siatkówki plażowej, a także otrzymać pomoc w Mobilnym Namiocie Wsparcia.
Lato się kończy, ale to nie znaczy, że zapominamy o Józefowie. Od momentu ożywienia tego terenu zauważyliśmy, że staje się ono dla wielu mieszkańców, niczym toruńska Barbarka, miejscem relaksu i oazą spokoju. Jesienią wiele osób odwiedza plażę podczas grzybobrania, zimą w Józefowie spotkamy wciąż rosnącą grupę morsów, a wiosną to właśnie tutaj chętnie czerpiemy energię ze słońca.
– Dlatego już dziś możemy zapowiedzieć nową atrakcję w Józefowie, która powstanie tam na przyszłe wakacje, czyli plac zabaw dla najmłodszych – zdradza z uśmiechem wójt Marek Nicewicz.
9 września wójt podpisał umowę z Urzędem Marszałkowskim na dofinansowanie budowy placu z Programu Rozwoju Obszarów Wiejskich.
W przyszłym sezonie na plaży, pod lasem, dzieci będą mogły również skorzystać ze zjeżdżalni, huśtawek i linarium.
drukuj (Kąpielisko zamknięte, a w przyszłym roku…)
Metryka
- Data 2021-09-10
Pozbądź się starych mebli
Co zrobić ze starą sofą, niepotrzebnymi meblami czy zepsutymi krzesłami? Na przełomie września i października organizujemy jesienny odbiór odpadów gabarytowych.
Harmonogram wywozu:
- 27 września w Brzezinku, Brzeźnie, Grębocinie, Gronowie, Gronówku, Rogowie i Rogówku;
- 28 września w Grabowcu, Jedwabnie i Kopaninie;
- 29 września w Lubiczu Dolnym,
- 30 września w Lubiczu Górnym;
- 1 października Nowej Wsi i Złotorii;
- 4 października w pozostałych miejscowościach.
Chęć wywozu należy zgłosić najpóźniej pięć dni przed planowanym terminem pod nr 56 621 21 28. Do gabarytów nie należy sprzęt elektryczny, elektroniczny, odpady budowlane i opony.
drukuj (Pozbądź się starych mebli)
Metryka
- Data 2021-09-10
Uwaga! Ostrzeżenie hydrologiczne
Zjawisko: wezbranie z przekroczeniem stanów ostrzegawczych
Stopień zagrożenia: 2
Obszar: Dolna Wisła i ujście Wisły (pomorskie, kujawsko-pomorskie)
Ważność: od godz. 14:00 dnia 08.09.2021 do godz. 15:00 dnia 10.09.2021
Przebieg: W związku z przemieszczaniem się fali wezbraniowej na dolnym odcinku Wisły i w jej ujściu, przewiduje się wzrosty stanów wody do górnej granicy strefy stanów wysokich, lokalnie powyżej stanów ostrzegawczych.
Prawdopodobieństwo wystąpienia zjawiska: 90%
Uwagi: brak
Dyżurny synoptyk: Arkadiusz Fabrycki
Źródło informacji: Biuro Prognoz Hydrologicznych w Gdyni, Wydział Prognoz i Opracowań Hydrologicznych w Gdyni
drukuj (Uwaga! Ostrzeżenie hydrologiczne)
Metryka
- Data 2021-09-08
Konkurs "Nasza Gmina – Nasze Środowisko 2021" III edycja
Referat Rolnictwa i Ochrony Środowiska Urzędu Gminy Lubicz zaprasza dzieci i młodzież w wieku od 3 do 15 lat do wzięcia udziału w trzeciej edycji konkursu ekologicznego.
Prace powinny zawierać treści ekologiczne ukazujące prawidłowe postawy wobec środowiska przyrodniczego, np.: odnawialne źródła energii, ekologiczne postawy mieszkańców, piękno przyrody, czyste powietrze, zieleń i krajobraz, las, wodę itp.
Zgłoszenia przyjmujemy w trzech kategoriach.
Kategoria I – dzieci z oddziałów przedszkolnych oraz zerówki,
Kategoria II – dzieci z klas I-IV szkół podstawowych,
Kategoria III – dzieci z klas V-VIII szkół podstawowych.
Przedmiotem konkursu jest wykonanie „EKO – ULOTKI”, w formacie A4, dowolną techniką (np. malowanie/rysowanie/wyklejanie) z wykorzystaniem materiałów naturalnych, surowców wtórnych itp. Liczy się wyobraźnia, ciekawy pomysł oraz styl wykonania.
Prace konkursowe należy dostarczyć do siedziby Urzędu Gminy Lubicz do 30 września.
Wszystkie szczegóły znajdziecie w regulaminie.
W razie wątpliwości prosimy o kontakt z Edytą Sekretarską pod nr tel. 56 621 21 29.
drukuj (Konkurs "Nasza Gmina – Nasze Środowisko 2021" III edycja)
- Formularz zgłoszeniowy (PDF) 40.75kB
- Regulamin konkursu (PDF) 170kB
Panie po przerwie wracają do pracy
1 września w naszej gminie nie był tylko dniem rozpoczęcia roku szkolnego dla dzieci, ale również pierwszym dniem staży zawodowych dla niektórych mam.
W projekcie aktywizującym zawodowo, na który gmina Lubicz pozyskała dotację ze środków europejskich, biorą udział mieszkanki naszej gminy wracające na rynek pracy po przerwie związanej z opieką nad dziećmi. W ramach projektu kilkanaście pań, po wnikliwej diagnozie zawodowej, zostało skierowane na półroczne, płatne staże zawodowe m.in. do szpitala, przedszkola, żłobka, firmy cateringowej, firmy transportowej czy kwiaciarni. Pozostałe uczestniczki projektu ukończą szkolenia zawodowe z modułem praktyk u pracodawców.
Projekt „Aktywizacja w KIS Nad Drwęcą” jest realizowany przez Gminny Ośrodek Pomocy Społecznej w Lubiczu w okresie od 1.04.2020 do 31.03.2022r. Kwota dofinansowana z Funduszy Europejskich: 329 904,38 zł.
drukuj (Panie po przerwie wracają do pracy)
Metryka
- Data 2021-09-03
Drugi punkt spisowy w naszej gminie
W świetlicy wiejskiej w Krobi został uruchomiony drugi w gminie punkt Narodowego Spisu Powszechnego Ludności i Mieszkań, gdzie można spisać się w godzinach od 15.00 do 20.00 u rachmistrza Jadwigi Rafińskiej (tel. kontaktowy 609 839 994).
Nadal jest dostępny dla mieszkańców punkt spisowy w Urzędzie Gminy Lubicz czynny w godzinach pracy urzędu. Telefony kontaktowe 56 674 40 14, 621 21 36 lub 501 927 579.
Przypominamy, że rachmistrz dzwoni z numeru 22 828 88 88.
Ponadto można spisać się u rachmistrza osobiście na każdym zebraniu sołeckim.
Udział w spisie jest obowiązkowy.
drukuj (Drugi punkt spisowy w naszej gminie)
Metryka
- Data 2021-09-03
Opaski bezpieczeństwa dla naszych seniorów
Prawie 30 starszych osób z naszej gminy otrzyma specjalne opaski dyskretnie monitorujące funkcje życiowe ich użytkowników.
Reprezentacja seniorów z gminy Lubicz wraz z wójtem Markiem Nicewiczem uczestniczyła dziś w Toruńskiej Agencji Rozwoju Regionalnego w otwarciu Kujawsko-Pomorskiego Centrum Teleopieki. Projekt powołało województwo wraz z 78 partnerami, m.in. Gminnym Ośrodkiem Pomocy Społecznej w Lubiczu.
- Starszych osób będzie przybywać, a bez zaangażowania samorządów ten projekt by się nie udał – mówił marszałek Piotr Całbecki, dziękując m.in. wójtowi Markowi Nicewiczowi.
Dzięki przystąpieniu przez gminę Lubicz do projektu 28 starszych osób z naszego terenu otrzyma opaski dyskretnie monitorujące funkcje życiowe użytkowników.
Co daje taka opaska? Opaska ma specjalne funkcje pozwalające na natychmiastową reakcję w przypadku pogorszenia stanu zdrowia osoby, która ją nosi. Dwusekundowe przytrzymanie przycisku SOS pozwala na połączenie się z ratownikiem z telecentrum. Do telecentrum zostaje wysłana wiadomość składająca się z komunikatu SOS, lokalizacji i aktualnego pulsu użytkownika opaski. Ratownik na tej podstawie oraz wywiadu z seniorem podejmuje decyzję o interwencji. Na opaskę może również zadzwonić sam ratownik z telecentrum - w momencie, w którym wykryje ona nietypowe odczyty. W telecentrum personel medyczny będzie dyżurował przez 24 h na dobę 7 dni w tygodniu.
Opaski są bezpłatne dla użytkowników. Projekt jest finansowany ze środków Unii Europejskiej oraz budżetu gminy Lubicz.
W Polsce z pomocy opasek korzysta ok. 40 tys. osób. W tamtym roku dzięki sygnałowi opaski zostało przeprowadzone ok. 500 akcji ratunkowych.
drukuj (Opaski bezpieczeństwa dla naszych seniorów)
Metryka
- Data 2021-09-02
Gazociąg. Inwestycja rządowa przebiegnie przez gminę Lubicz
Gazociąg planowany od Gustorzyna do Wicka ma na celu podniesienie bezpieczeństwa energetycznego kraju. Na naszym terenie zostanie zbudowane 16 km sieci w ośmiu sołectwach.
Budowa ok. 128 km gazociągu jest bezpośrednio związana z realizacją Programu FSRU (ang. Floating Storage Regasification Unit), w ramach którego planowane jest posadowienie w rejonie Gdańska pływającego terminalu LNG, służącego do odbioru dostarczanego drogą morską skroplonego gazu ziemnego. Nowy gazociąg zapewni możliwość rozprowadzenia gazu z rejonu Gdańska do odbiorców w kraju i regionie.
Budowa infrastruktury gazowej, umożliwiająca zróżnicowanie źródeł i kierunków dostaw gazu ziemnego, a także związana z tym rozbudowa krajowej sieci przesyłowej, są traktowane jako inwestycje strategiczne, kluczowe dla bezpieczeństwa energetycznego kraju.
Przedsięwzięcie zostało podzielone na dwa etapy. Etap drugi, który obejmuje gminę Lubicz, jest zaplanowany w latach 2024-2026. Gazociąg ma przebiegać przez następujące sołectwa: Grabowiec, Kopanino, Nowa, Wieś, Lubicz Dolny, Grębocin, Rogówko, Rogowo i Złotoria. Na sierpniowo-wrześniowych zebraniach wiejskich w tych miejscowościach będziemy informowali o planach dotyczących inwestycji.
Inwestor, którym jest spółka akcyjna Skarbu Państwa Gaz-System, zaprasza do świetlicy środowiskowej w Grębocinie 7 października w godz. 9.00-17.00 na spotkanie informacyjne dla mieszkańców naszej gminy, gdzie będzie można dopytać o wszelkie szczegóły.
W załączeniu przygotowane przez spółkę Gaz-System materiały dotyczące inwestycji.
drukuj (Gazociąg. Inwestycja rządowa przebiegnie przez gminę Lubicz)
Metryka
- Data 2021-08-30
Pobierz pliki
- Program FSRU (PDF) 5124.53kB
Komediowe kino letnie
Gmina Lubicz trzeci rok z rzędu zaprosiła mieszkańców do Józefowa nad urokliwy, otoczony lasem akwen, tworząc strzeżone kąpielisko, na którym przygotowała także inne atrakcje, np. kino letnie.
Dwa pierwsze seanse odbyły się w lipcu. Teraz przyszedł czas na drugą i ostatnią turę.
W piątek 27 sierpnia Lubicz zaprasza na komedię „Sokół z masłem orzechowym”, a w sobotę 28 sierpnia także na komedię „Teraz albo nigdy”. Gmina zapewnia 100 leżaków. Ze względu na coraz chłodniejsze wieczory warto zabrać cieplejsze kurtki i/lub koce.
Początek seansów o godz. 21.00. Wstęp bezpłatny.
drukuj (Komediowe kino letnie)
Metryka
- Data 2021-08-26
Sołectwa same rozdzielą przeszło 735 tys. zł!
Nowe ławki, lampy, urządzenia na placu zabaw, zagospodarowanie skwerku czy jeszcze coś innego? Decyzja należy do mieszkańców. Wystarczy przyjść na zebranie i zagłosować.
30 sierpnia w gminie Lubicz rozpoczyna się cykl zebrań wiejskich, których najważniejszy punkt programu to uchwalenie przyszłorocznego funduszu sołeckiego. Sołectwa będą miały do podziału od 25 413,78 zł dla najmniejszego Brzezinka aż do 53 502,70 zł dla największych miejscowości, m.in. Złotorii, Lubicza Dolnego czy Grębocina.
Skąd wzięto te kwoty?
Dla każdej miejscowości są one przydzielane na podstawie wzoru podanego w ustawie o funduszu sołeckim, w którym największe znaczenie ma liczba osób zamieszkujących sołectwo. W drugim załączniku prezentujemy wysokość funduszu dla poszczególnych sołectw oraz dokładnie wyjaśniamy zasady jego obliczenia.
Cały fundusz sołecki na 2022 rok w gminie Lubicz wyniesie 735 448,11 zł, czyli o ponad 50 tys. zł więcej niż w tym roku.
Skąd biorą się te pieniądze?
Fundusz sołecki to pula środków wyodrębniona dla sołectw z budżetu gminy Lubicz. O większych inwestycjach i innych zadaniach co roku decyduje rada gminy, uchwalając ów budżet gminny. W nim właśnie, w oparciu o przepisy, ustalana jest kwota funduszu sołeckiego na mniejsze sołeckie potrzeby.
- O tym jakie są te potrzeby, czyli co zdaniem mieszkańców powinno być wykonane, decydują sami mieszkańcy, oczywiście w oparciu o zapisy ustawy o funduszu sołeckim – wyjaśnia wójt Marek Nicewicz. – Dlatego zachęcam wszystkich do udziału w zebraniach. To dokładnie ten moment, gdzie wyrażenie swojego zdania może realnie przełożyć się na realizację. Fundusz sołecki jest bowiem przyjmowany w formie uchwały zebrania wiejskiego, a uchwała musi być wykonana.
Warto zaznaczyć, że nie każda gmina taki specjalny fundusz dla mieszkańców posiada.
Na zebraniach poinformujemy Państwa również m.in. o inwestycjach gminnych, stanie zaawansowania różnych prac na terenach sołectw, możliwości uzyskania dofinansowania do wymiany źródła energii czy o szczepieniach. Osoby, które dotąd nie spisały się w Narodowym Spisie Powszechnym Ludności i Mieszkań mogą to zrobić na godzinę przed każdym ze spotkań.
W zebraniach weźmie także udział wójt Marek Nicewicz, więc będzie można z nim bezpośrednio porozmawiać także o innych interesujących mieszkańców sprawach dotyczących gminy.
W pierwszym załączniku podajemy terminy zebrań. W razie nieobecności liczny mieszkańców wystarczającej do podjęcia uchwał zebranie odbędzie się w drugim terminie ustalonym pół godziny po pierwszym, np. w przypadku Złotorii – pierwszy termin to (załącznik nr 2) godzina 17.00, a drugi 17.30.
drukuj (Sołectwa same rozdzielą przeszło 735 tys. zł!)
Metryka
- Data 2021-08-23
Do zamknięcia spisu pozostało tylko kilka tygodni
Do 30 września Trwa Narodowy Spis Powszechny Ludności i Mieszkań NSP 2021. Przypominamy, że udział w spisie jest dla wszystkich obowiązkowy.
Jak można się spisać? Przede wszystkim poprzez formularz spisowy dostępny na stronie GUS lub ogólnopolską infolinię spisową dla respondentów 22 279 99 99. Na terenie naszej gminy pracuje też kilku rachmistrzów, którzy od 23 czerwca działają także w terenie.
Kontakt z Gminnym Biurem Spisowym w Urzędzie Gminy: 56 674 40 14 lub 501 927 579.
drukuj (Do zamknięcia spisu pozostało tylko kilka tygodni)
Metryka
- Data 2021-08-06
Czyste Powietrze. Wnioski o zaświadczenia złożone po 1 sierpnia
Komunikat dotyczy wydania zaświadczenia o wysokości przeciętnego miesięcznego dochodu przypadającego na jednego członka gospodarstwa domowego, niezbędnego do złożenia wniosku o przyznanie podwyższonego dofinansowania w ramach programu "Czyste powietrze" dla wnioskodawców będących rolnikami lub posiadających członków rodzinny będących rolnikami.
Informujemy, że rolnicy lub posiadający w swoim gospodarstwie domowym osoby uzyskujące dochody z gospodarstwa rolnego wnioskujący po 1 sierpnia o wydanie zaświadczenia uprawniającego do ubiegania się o przyznanie podwyższonego dofinansowania w ramach programu "Czyste Powietrze", otrzymają je dopiero po ogłoszeniu przez prezesa Głównego Urzędu Statystycznego obwieszczenia o wysokości dochodu z 1ha przeliczeniowego z gospodarstwa rolnego za 2020 r.
Obwieszczenie publikowane jest nie później niż do 23 września każdego roku.
Zatem wnioski złożone przez rolnika lub mającego członka rodziny będącego rolnikiem po 1 sierpnia, zostaną rozpatrzone niezwłocznie po ogłoszeniu obwieszczenia GUS.
drukuj (Czyste Powietrze. Wnioski o zaświadczenia złożone po 1 sierpnia)
Metryka
- Data 2021-08-05
Ten mural przypomni wydarzenia z XV wieku
Gmina Lubicz wraz z sołectwem Złotoria poszukują osoby, która zechce zaprojektować i namalować nawiązujący do I pokoju toruńskiego mural na budynkach przy drodze wjazdowej do Złotorii.
W Złotorii, pięknej podtoruńskiej miejscowości z gminy Lubicz, tuż za mostem na Drwęcy, w pobliżu kościoła powstanie historyczny mural upamiętniający zawarcie w XV wieku I pokoju toruńskiego. Przekazanie dokumentów traktatu nastąpiło w maju 1411 roku w okolicach tutejszego zamku. Mural ma pokazywać to właśnie wydarzenie.
Nasza propozycja jest więc okazją dla osób o zacięciu artystycznym, studentów, pasjonatów sztuki ulicznej do artystycznego spełnienia marzeń i pozostawienia po sobie trwałego śladu.
Budynek, którego ściany pokryje mural prezentujemy na zdjęciach. Sołectwo Złotoria zapewnia przygotowanie techniczne powierzchni, zabezpieczenie logistyczne, wszelkie materiały potrzebne do wykonania obrazu. Oferuje także finansową gratyfikację dla tego projektu (i jego realizacji), który zyska aprobatę mieszkańców.
Chętni, bez względu na wykształcenie i dotychczasowe dokonania, mogą zgłaszać się do Referatu Promocji i Komunikacji Społecznej Urzędu Gminy Lubicz e-mailowo: pr@lubicz.pl, przesyłając wstępną koncepcję lub wizualizację swojego pomysłu na oddanie tamtej historycznej chwili z początku XV wieku. Rada Sołecka Złotorii skontaktuje się z autorami interesujących prac i przeprowadzi z nimi negocjacje. W sprawie dodatkowych informacji można dzwonić do UG, pod tel. 56 674 40 15 lub 16.
Na e-mailowe, wstępne zgłoszenia organizatorzy przedsięwzięcia czekają do końca sierpnia.
drukuj (Ten mural przypomni wydarzenia z XV wieku)
Metryka
- Data 2021-08-04
Konkurs ofert dla klubów sportowych
Wójt gminy Lubicz ogłasza otwarty konkurs ofert dla klubów sportowych na dofinansowanie zadań w ramach wspierania rozwoju sportu w naszej gminie.
Termin składania ofert mija 17 sierpnia o godz. 14.00. Ogłoszenie dostępne jest tutaj.
drukuj (Konkurs ofert dla klubów sportowych)
Metryka
- Data 2021-07-26
Uwaga kierowcy, tu zaszła zmiana!
Nie jeździmy na pamięć! Istotne zmiany dotyczą skrzyżowań w Złotorii i Kopaninie. Ma to wpłynąć na bezpieczeństwo mieszkańców w tamtej okolicy. Patrzmy na znaki.
W Złotorii na drodze wyjazdowej w kierunku Kopanina i Obór zaszła istotna zmiana w organizacji ruchu. Skrzyżowanie ul. Leśnej i Lipowej jest teraz równorzędne, co oznacza zmianę pierwszeństwa, a więc konieczność innego niż dotychczas zachowania kierowców. To wymusza także ograniczenie prędkości na tym odcinku.
Podobna sytuacja jest w Kopaninie. Tam, zjeżdżając z wiaduktu nad autostradą, najpierw musimy dostosować się do ograniczenie prędkości do 30km/godz. i pokonać próg zwalniający w nowej lokalizacji, a potem uważać na nowe oznakowanie skrzyżowania Alei Dębów z ul. Kalinową. Jest ono teraz równorzędne, a więc obowiązuje zasada pierwszeństwa z prawej strony.
Obydwie zmiany mają wpłynąć na bezpieczeństwo mieszkańców w tamtej okolicy. Uwaga! Nie jeździmy na pamięć, to jest niebezpieczne również dla Was – kierowców.
drukuj (Uwaga kierowcy, tu zaszła zmiana!)
Metryka
- Data 2021-08-03
Alarm. Rocznica Powstania Warszawskiego
W ramach ćwiczeń dotyczących systemu alarmowania, jednocześnie w celu upamiętnienia 77. rocznicy wybuchu Powstania Warszawskiego, 1 sierpnia o godz. 17.00 na terenie gminy Lubicz nastąpi włączenie syren alarmowych.
drukuj (Alarm. Rocznica Powstania Warszawskiego)
Metryka
- Data 2021-07-30
Pomoc prawna już na miejscu
Od poniedziałku 2 sierpnia doradca oraz prawnicy, którzy w Urzędzie Gminy Lubicz udzielają nieodpłatnej pomocy prawnej powracają do spotkań osobistych: od poniedziałku do piątku (poza środą) w godz. 10.00-14.00 (budynek B, pok. nr 3).
Więcej szczegółów w Informatorze.
drukuj (Pomoc prawna już na miejscu)
Metryka
- Data 2021-07-30
Wakacyjny spływ kajakowy Drwęcą
Chcielibyście obejrzeć tereny naszej gminy z perspektywy kajaka? Zapraszamy chętnych na wakacyjny spływ kajakowy Drwęcą, który odbędzie się w niedzielę 8 sierpnia i jest bezpłatną propozycją dla mieszkańców.
Proponujemy spływ na dwóch trasach:
- dłuższej, 4-godzinnej z Młyńca Drugiego do ruin zamku w Złotorii, (uwaga, zmiana!) start ok. godz. 10.00 pod mostem na Drwęcy w Młyńcu Drugim
- oraz krótszą, 2-godzinną z Lubicza Dolnego do zamku w Złotorii. Start (uwaga, zmiana!) ok. 11.00 z przystani „Kapitanówka” obok tamy Toruńskich Wodociągów (ujęcie wody).
- Zakończenie spływu planowane jest na godz. 14.30-15.00.
Każdy uczestnik spływu otrzyma miejsce w kajaku, kapok, pamiątkowy znaczek i drobny upominek oraz poczęstunek na mecie spływu. Spływ poprowadzi doświadczony kajakarz-przewodnik, a zabezpieczą ratownicy WOPR.
Aby wziąć udział w wydarzeniu, należy zapisać się (wyłącznie) e-mailowo na adres: pr@lubicz.pl, podając imię i nazwisko, kontakt, określając czy zgłoszenie dotyczy osób dorosłych czy niepełnoletnich oraz wybierając trasę: krótsza lub dłuższa. Ponieważ liczba miejsc i liczba kajaków jest ograniczona, liczy się kolejność zgłoszeń. Jesteśmy przygotowani na ok. 30 kajaków, czyli 60 osób. Każda osoba, która na wskazany adres wyśle zgłoszenie, w ciągu kilku dni, otrzyma potwierdzenie udziału lub e-maila o wyczerpaniu się limitu miejsc.
Uczestnik spływu bierze w nim udział na własną odpowiedzialność, a osoby niepełnoletnie na całkowitą odpowiedzialność opiekunów prawnych. Szczegółowe informacje znajdują się w załączonym regulaminie, z którym prosimy zapoznać się przed wysłaniem zgłoszenia.
Gminna kawalkada kajaków będzie częścią 60. Międzynarodowego Spływu Kajakowego PTTK.
Warto wiedzieć, że Drwęca, stanowiąca oś gminy Lubicz jest malowniczą i doskonale nadającą się do turystyki kajakowej rzeką. Od kilku lat gmina Lubicz sukcesywnie przystosowuje brzegi Drwęcy do turystyki. W Lubiczu Dolnym i Złotorii zamontowane są specjalne pływające pomosty, została zmodernizowana droga dojazdowa dla pojazdów organizatorów spływów do ruin zamku w Złotorii, a niebawem ma zacząć się rewitalizacja terenów zielonych wokół zamku, właśnie pod katem turystów. Ostatnio we współpracy z Toruńskimi Wodociągami wyremontowaliśmy też przyczółek przy tamie, który służy wychodzeniu z wody przy przenosce i ustawiliśmy dodatkowe oznakowanie. W planach jest powstanie nowych miejsc odpoczynku w Młyńcu Drugim i Nowej Wsi.
drukuj (Wakacyjny spływ kajakowy Drwęcą)
Metryka
- Data 2021-07-30
- Regulamin spływu (PDF) 153.95kB
- Obowiązek informacyjny (DOCX) 24.52kB
Zakładamy 78 instalacji fotowoltaicznych
- Dołożymy wszelkich starań, aby do końca roku wykonać i uruchomić te instalacje – mówi wójt Marek Nicewicz. Umowa z wykonawcą jest już podpisana.
Nabór wniosków do projektu „Instalacja systemów odnawialnych źródeł energii na terenie Gminy Lubicz" odbył się na przełomie kwietnia i maja zeszłego roku. Zadanie dofinansowane jest w ramach Działania 3.1 „Wspieranie wytwarzania i dystrybucji energii pochodzącej ze źródeł odnawialnych" z Regionalnego Programu Operacyjnego Województwa Kujawsko – Pomorskiego (RPO WK-P) na lata 2014 – 2020.
Wymogi formalne spełniły 102 wnioski, ale z uwagi na ograniczoną pulę pieniędzy w publicznym losowaniu wyłoniono 78 uczestników. Z powodu rezygnacji części uczestników do projektu ostatecznie dostała się także część osób z listy rezerwowej.
Mówi Dorota Pruszyńska, p.o. kierownika Referatu Inwestycji Urzędu Gminy Lubicz: - Umowa o dofinansowanie zadania została zawarta z Urzędem Marszałkowskim 31 marca 2021 r. Po jej podpisaniu od razu przystąpiliśmy do przygotowania i ogłoszenia przetargu. Jednakże z uwagi na wymogi projektów unijnych sam przetarg trwał ponad miesiąc, ponieważ konieczne było ogłoszenie go w Biuletynie Zamówień Publicznych Unii Europejskiej na co najmniej 35 dni. Kolejny miesiąc zajęło wybranie najkorzystniejszej oferty wraz z uzupełnieniem po stronie oferenta.
Ostatecznie 27 lipca wójt Marek Nicewicz podpisał umowę z Aleksandrą Kostuch, prezes zarządu firmy Pro-eco Sp. z o.o. z Gdyni, która będzie wykonawcą zadania.
W przyszłym tygodniu firma ma przedstawić gminie harmonogram prac. Dopiero po jego uzyskaniu znana będzie kolejność montażu oraz kwota poszczególnych instalacji. W najbliższym czasie przedstawiciele Pro-eco skontaktują się z zakwalifikowanymi mieszkańcami w celu umówienia się na wizję lokalną przed wykonaniem indywidualnych projektów instalacji.
Mieszkańcom zostanie sfinansowana połowa kosztów netto związanych m.in. z przygotowaniem projektu, dostarczeniem i montażem paneli. Zainteresowani pokryją drugą część oraz podatek VAT.
drukuj (Zakładamy 78 instalacji fotowoltaicznych)
Metryka
- Data 2021-07-29
Zadbaj o siebie. Zbadaj się
LUX MED zaprasza panie w wieku 50-69 lat na bezpłatne badania mammograficzne, które odbędzie się 30 sierpnia w Lubiczu Górnym.
W mammografii finansowanej przez NFZ, w ramach Programu Profilaktyki Raka Piersi, można wziąć udział niezależnie od miejsca zamieszkania i bez skierowania lekarskiego.
Do badania uprawnione są panie w wieku 50-69 lat, które są ubezpieczone, nie były leczone z powodu raka piersi a także:
- nie miały wykonanej mammografii w ramach Programu w ciągu ostatnich 24 miesięcy
- lub są w grupie ryzyka i w roku poprzedzającym otrzymały pisemne wskazanie do wykonania ponownej mammografii po upływie 12 miesięcy.
Mobilna pracownia mammograficzna LUX MED będzie do dyspozycji pań w Lubiczu Górnym 30 sierpnia w godzinach od 10.00 do 16.00 przy Szkole Podstawowej, ul. Piaskowa 23.
Organizator prosi o wcześniejszą rejestrację pod nr tel. 58 666 24 44 lub na http://www.mammo.pl/formularz. Przed połączeniem telefonicznym należy przygotować dowód osobisty w celu weryfikacji uprawnień do badania. Na mammografię zabieramy ze sobą zdjęcia z poprzednich wizyt.
Ze względów bezpieczeństwa należy stawić się w maseczce i wyznaczonym czasie, co zapewnia możliwość utrzymania niezbędnego dystansu.
drukuj (Zadbaj o siebie. Zbadaj się)
Metryka
- Data 2021-07-29
Zagraj z reprezentacją Polski w piłkę nożną uliczną!
W pierwszy weekend sierpnia w Lubiczu Górnym odbędzie się II półfinał Mistrzostw Polski w piłkę nożną uliczną osób bezdomnych i środowisk trzeźwościowych. Drużyny zgłoszone do tego turnieju zmierzą się też z reprezentacją Polski w piłkę nożną uliczną.
To będzie wielkie wydarzenie piłkarskie. Trzy imprezy w jeden weekend i w jednym miejscu:
- 7 sierpnia - Wolę grać niż Brać - II półfinał Mistrzostw Polski w piłkę nożną uliczną osób bezdomnych i środowisk trzeźwościowych
- 8 sierpnia - Turniej Open - drużyny zgłoszone do tego turnieju zmierzą się z reprezentacją Polski w piłkę nożną uliczną
- 8 sierpnia - Letnia edycja Let's Play Lubicz na orliku.
Szczegóły tutaj.
Wydarzenia są dofinansowane przez gminę Lubicz z programu Profilaktyki i Przeciwdziałania Problemom Alkoholowym, a ich organizatorem jest Stowarzyszenie One Passion One Love WP, które promuje zdrowy i trzeźwy styl życia.
Stowarzyszenie w ostatnich tygodniach zaprosiło mieszkańców do udziału w kilku imprezach, m.in. biegu Run Lubicz i turnieju siatkówki plażową w Józefowie.
Przede wszystkim jednak zawsze służy potrzebującym wsparciem. Jeśli więc potrzebujecie zwykłej rozmowy albo wskazówek jak zacząć walkę z uzależnieniem, to również możecie liczyć na członków stowarzyszenia. Kontakty do nich oraz relacje z minionych imprez znajdziecie na ich profilu FB Stowarzyszenie One Passion One Love WP.
drukuj (Zagraj z reprezentacją Polski w piłkę nożną uliczną!)
Metryka
- Data 2021-07-29
Meteorolodzy ostrzegają przed burzą z gradem
Zjawisko: Burze z gradem
Stopień zagrożenia: 2
Ważność: od godz. 13:00 dnia 28.07.2021 r. do godz. 0:00 dnia 29.07.2021 r.
Obszar: Miasto Toruń, powiat toruński
Przebieg; Prognozowane są burze, którym miejscami będą towarzyszyć ulewne opady deszczu od 30 mm do 40 mm oraz porywy wiatru do 100 km/h. Miejscami grad.
Źródło informacji: Instytut Meteorologii i Gospodarki Wodnej – Państwowy Instytut Badawczy. Biuro Meteorologicznych Prognoz Morskich w Gdyni.
drukuj (Meteorolodzy ostrzegają przed burzą z gradem)
Metryka
- Data 2021-07-28
Kolejne miejsce dla mieszkańców. W Gronowie
Budynek po zlikwidowanej Szkole Podstawowej w Gronowie będzie wykorzystany na potrzeby społeczności tego sołectwa – tak zapowiadały władze gminy. I właśnie zaczynają realizację tej obietnicy.
To był ostatni sezon funkcjonowania tej szkoły. Powód? Lawinowy odpływ uczniów ze szkoły w Gronowie do innych szkół - o czym szerzej pisaliśmy tutaj. W tym roku do gronowskiej szkoły z możliwych 96 dzieci uczęszczało zaledwie 27, czyli 28 proc., co oznacza, że zdecydowana większość mieszkańców z obwodu szkoły (72 proc.) już w poprzednich latach podjęła decyzję o przeniesieniu dzieci do innych placówek. Aż 39 dzieci z Gronowa uczyło się w Turznie (w gm. Łysomice), 5 w Młyńcu Pierwszym, a 25 dojeżdżało do Grębocina.
Władze gminy Lubicz obiecały, że budynek po zlikwidowanej szkole będzie przeznaczony na potrzeby społeczności lokalnej. W pierwszej kolejności obiekt zostanie poddany termomodernizacji. Dziś odbyło się przekazanie placu budowy wykonawcy zlecenia, czyli Zakładowi Usług Komunalnych w Lubiczu. Wykonawca roboty poprowadzi w taki sposób, aby nie utrudniać działalności przedszkola. W wyremontowanej ponad rok temu części budynku szkoły mieści się bowiem 10-godzinne przedszkole (oddziały Szkoły Podstawowej w Grębocinie), a jego kolorowe sale właśnie wzbogaciły się o monitory interaktywne. Dzieci po wakacyjnej przerwie wracają tu od poniedziałku.
Część obiektu byłej szkoły jeszcze w tym roku gmina zaadoptuje na potrzeby Dziennego Domu „Senior+”. Pieniądze na jego prowadzenie Gminny Ośrodek Pomocy Społecznej pozyskał z programu wieloletniego „Senior+” na lata 2021-2025 edycja 2021. Poza tym do budynku szkoły, z piwnicy prywatnego domu, zostanie przeniesiona filia biblioteki gminnej, z możliwością organizowania spotkań środowiskowych. Obiekt poszkolny stanie się także miejscem spotkań stowarzyszeń, pełniąc również funkcję świetlicy, której Gronowo dotąd nie miało.
Termomodernizacja budynku zostanie dofinansowana z Europejskiego Funduszu Rozwoju Regionalnego w ramach Regionalnego Programu Operacyjnego Województwa Kujawsko-Pomorskiego.
drukuj (Kolejne miejsce dla mieszkańców. W Gronowie)
Metryka
- Data 2021-07-27
Uwaga! Z wtorku na środę nie będzie wody
Zakład Usług Komunalnych w Lubiczu Sp. z o.o. informuje, że w związku z pracami na sieci wodociągowej, prowadzonymi przez Toruńskie Wodociągi z wtorku na środę (27-28.07.2021 r.) w godzinach 22.00 - 6.00 nie będzie wody w całej gminie Lubicz oraz w miejscowości Obory w gminie Obrowo.
Za utrudnienia przepraszamy
drukuj (Uwaga! Z wtorku na środę nie będzie wody)
Metryka
- Data 2021-07-26
Telefony i Internet mogą tam nie działać
W związku z prowadzoną przebudową urządzeń telekomunikacyjnych z budynku OSP Złotoria na grunt (do szafy ONU), Orange Polska informuje, że wystąpią krótkotrwałe przerwy w świadczeniu usług telekomunikacyjnych dla abonentów w Złotorii i Grabowcu w następujących terminach:
- 27 lipca w godz. 1.00 - 6.00 - połączenia telefoniczne i Internet
- 29 lipca w godz. 5.00 - 6.00 - Internet
drukuj (Telefony i Internet mogą tam nie działać)
Metryka
- Data 2021-07-26
Krew ratuje życie. Pomożesz?
14 sierpnia (sobota) do Lubicza Dolnego przyjedzie krwiobus. Na chętnych, którzy chcą oddać krew dla potrzebujących, będzie czekał na parkingu przed urzędem gminy w godz. 10.00-14.00.
Jeśli masz wątpliwości czy możesz być krwiodawcą, zrób ankietę.
>>> Tutaj przeczytacie o tym jak przygotować się do oddania krwi.
drukuj (Krew ratuje życie. Pomożesz?)
Metryka
- Data 2021-07-23
Z Brzeźna do Turzna będzie bezpieczniej
Droga wojewódzka nr 646 przebiegająca przez Brzeźno w końcu będzie przebudowa. Dla bezpieczeństwa mieszkańców powstanie również ciąg pieszo-rowerowy do Turzna. W tej sprawie porozumiały się trzy samorządy.
Mieszkańcy Brzeźna od dawna wnioskowali o modernizację drogi wojewódzkiej i budowę chodnika. Choć wcześniej pojawiały się sygnały dotyczące realizacji inwestycji, to teraz wreszcie mamy konkrety.
20 lipca Rada Gminy Lubicz podjęła uchwałę „w sprawie wspólnej realizacji zadania polegającego na budowie ciągu pieszo-rowerowego w ciągu drogi wojewódzkiej nr 646 oraz przebudowy drogi wojewódzkiej nr 646". To efekt rozmów i ustaleń pomiędzy wójtami Lubicza i Łysomic z przedstawicielami Urzędu Marszałkowskiego Województwa Kujawsko-Pomorskiego, który jest właścicielem drogi.
Kolejnym krokiem będzie podpisanie porozumienia określającego wkład każdego z samorządów w I etapie (projektowania) zadania z Brzeźna do Turzna, czyli inwestycji zlokalizowanej na terenie dwóch gmin: Lubicza (ok. 2 tys. mb) i Łysomic (ok. 700 mb).
- Ta inwestycja, usprawniająca warunki jazdy na terenach gminnych, przede wszystkim poprawi bezpieczeństwo ruchu drogowego i komfort życia mieszkańców – mówi wójt Lubicza Marek Nicewicz.
Gmina Lubicz ogłosi przetarg na wykonanie dokumentacji projektowej, finansując 74 proc. kosztów, czyli szacunkowo ok. 150 tys. zł. Resztę pokryją Łysomice. Dokumenty powinny być gotowe wiosną przyszłego roku. Wówczas inwestor, czyli województwo, w oparciu o dokumentację, wystąpi o decyzję zezwalającą na realizację inwestycji drogowej (ZRID).
- Szacunkowe koszty wykonania samej inwestycji poznamy po otrzymaniu dokumentacji projektowej wraz z kosztorysem inwestorskim – mówi Dorota Pruszyńska, p.o. kierownika Referatu Inwestycji i Rozwoju Urzędu Gminy Lubicz.
Modernizacja drogi rozpocznie się prawdopodobnie w przyszłym roku, a odpowiedzialnym za realizację będzie Zarząd Dróg Wojewódzkich.
drukuj (Z Brzeźna do Turzna będzie bezpieczniej)
Metryka
- Data 2021-07-22
Gdzie można zaszczepić się przeciwko Covid-19?
Od piątku 23 lipca Punkt Szczepień Masowych usytuowany w Szkole Podstawowej w Lubiczu Górnym zostanie przeniesiony do przychodni Lecznic Citomed przy ul. Paderewskiego 3 w Lubiczu Górnym.
Pacjenci przeciwko Covid-19 są szczepieni w przychodni bez wcześniejszej rejestracji:
od poniedziałku do środy w godz. 8-14
w czwartki w godz. 8-17
w piątki w godz. 8-14.
Od 24 lipca na szczepienie można się także zgłosić do Punktu Szczepień Powszechnych w Centrum Handlowym Copernicus przy ul. Żółkiewskiego 15 w Toruniu: od poniedziałku do piątku w godz. 15-19, a w soboty 11-18.
W okresie wakacyjnym szczepienia w weekendy odbędą się również w toruńskim Ratuszu (Rynek Staromiejski 1) w dniach 25 i 31 lipca oraz 8, 15, 22 i 29 sierpnia w godz. 10-18, a także 1 sierpnia w godz. 10-16 w Szkole Podstawowej nr 14 (ul. Gen. J.Hallera 79).
Pacjenci nadal mogą szczepić się także w przychodniach Citomed w Toruniu.
A jeśli chcecie się zaszczepić, a nie jesteście w stanie samodzielnie dotrzeć do punktu szczepień, to zadzwońcie pod nr 782 500 207.
Dostępne szczepionki: Pfizer oraz Johnson&Johnson.
drukuj (Gdzie można zaszczepić się przeciwko Covid-19?)
Metryka
- Data 2021-07-21
Vouchery dla OSP Grębocin i Gronowo
Dwie jednostki OSP z gminy Lubicz otrzymały dofinansowanie z Narodowego i Wojewódzkiego Funduszu Ochrony Środowiska i Gospodarki Wodnej. Na co będzie ono przeznaczone?
11 900 zł trafi do OSP Grębocin na remont centralnego ogrzewania, a za 15 000 zł OSP Gronowo zakupi potrzebny sprzęt.
Vouchery wójtowi Markowi Nicewiczowi i prezesom Jackowi Guranowskiemu i Pawłowi Kuczkowskiemu, 16 lipca w Komendzie Powiatowej PSP w Wąbrzeźnie, uroczyście przekazał Ireneusz Stachowiak prezes zarządu WFOŚiGW w Toruniu w asyście st. bryg. Jacka Kaczmarka Kujawsko-Pomorskiego KW PSP. Wydarzenie swoją obecnością zaszczyciła m.in. pani Iwona Michałek Poseł na Sejm RP, sekretarz stanu w Ministerstwie Rozwoju, Pracy i Technologii.
Na naszym terenie działa aż dziewięć jednostek Ochotniczych Straży Pożarnych.
drukuj (Vouchery dla OSP Grębocin i Gronowo)
Metryka
- Data 2021-07-20
Komunikat GOPS w sprawie świadczeń
Gminny Ośrodek Pomocy Społecznej w Lubiczu informuje, że w wyniku awarii systemu obsługującego świadczenia rodzinne, spowodowanej niekorzystnymi warunkami atmosferycznymi, wypłata świadczeń rodzinnych i opiekuńczych nie nastąpi w przewidywanym i ustalonym terminie, tj. do dnia 20 lipca.
Przyznane świadczenia zostaną wypłacone niezwłocznie po usunięciu awarii, nie później niż do 31 lipca.
Za zaistniałą sytuację przepraszamy.
drukuj (Komunikat GOPS w sprawie świadczeń)
Metryka
- Data 2021-07-19
We wtorek sesja nadzwyczajna
XXXIII sesja nadzwyczajna (w trybie hybrydowym) Rady Gminy Lubicz rozpocznie się 20 lipca (wtorek) o godz. 12.00, a jej część stacjonarna odbędzie się w świetlicy wiejskiej w Krobi.
Porządek obrad - tutaj.
Transmisja na żywo - tutaj.
drukuj (We wtorek sesja nadzwyczajna)
Metryka
- Data 2021-07-19
Profilaktyka. Zatroszcz się o swoją wątrobę
Mieszkańców naszej gminy w wieku 20-64 lata zapraszamy do wzięcia udziału w projekcie „Profilaktyka WZW typ B i C w województwie kujawsko-pomorskim”.
Wirusowe zapalenie wątroby (WZW) to cichy zabójca, dlatego ważne jest szybkie wykrycie choroby i wdrożenie leczenia.
Zbadaj się. Szczególnie, jeśli masz za sobą wielokrotne hospitalizacje, transfuzję krwi czy tatuaż.
Projekt zakłada bezpłatne wykłady, bezpłatne badania diagnostyczne krwi w kierunku WZW oraz bezpłatne szczepienia. Realizuje go Europejskie Centrum Szkoleń Sp. z o.o w ramach Europejskiego Funduszu Społecznego.
Zgłoszenia: www.stopwzw.pl/działania-edukacyjne, nr tel. 533 334 851.
drukuj (Profilaktyka. Zatroszcz się o swoją wątrobę)
Metryka
- Data 2021-07-14
To tutaj zawróci autobus MZK
Przy ul. Polnej w Lubiczu Górnym do końca tego roku ma powstać pętla autobusowa. Wykonawca przejął już plac budowy. Dodatkowo zostanie przebudowana ulica Piaskowa.
Pętla autobusowa, usprawniająca ruch w Lubiczu Górnym, będzie miała długość ok. 80 m. Wzdłuż jej części zostanie ułożony chodnik.
O planach budowy pętli po raz pierwszy informowaliśmy jesienią ub.r., kiedy gmina wprowadziła jednostronne parkowanie na ul. Lipnowskiej. Było to spowodowane brakiem bezpiecznego przejazdu dla autobusów MZK, które często przeciskały się wśród zaparkowanych samochodów, powodując stłuczki.
Poza budową pętli zostanie również przebudowana ul. Piaskowa, od ul. Zdrojowej do ul. Polnej. Od strony ul. Polnej na długości ok. 70 m powstanie odcinek jezdni z jednostronnym chodnikiem, a w dalszej części, do ul. Zdrojowej, pieszo-jezdnia. Na połączeniu pieszo-jezdni i jezdni jest planowany próg zwalniający.
Przetarg na inwestycję wygrała firma Transbruk Barczyńscy. Prace rozpoczną się na przełomie sierpnia i września.
Zadanie zostanie sfinansowane z Rządowego Funduszu Rozwoju Dróg (dawny Fundusz Dróg Samorządowych).
drukuj (To tutaj zawróci autobus MZK)
Metryka
- Data 2021-07-13
Świetlica w Młyńcu Drugim oddana mieszkańcom
Symboliczny klucz do nowo wybudowanej świetlicy w Młyńcu Drugim i tablica z nazwą zostały przekazane Kazimierzowi Smolińskiemu, sołtysowi Młyńca Drugiego w czasie uroczystego otwarcia obiektu.
3 lipca w wydarzeniu przekazania świetlicy w użytkowanie społeczności sołectwa Młyniec Drugi wzięło udział wielu znamienitych gości.
Nowo wybudowana świetlica w Młyńcu Drugim była od wielu lat wyczekiwana przez mieszkańców. Powstała w ubiegłym roku u zbiegu ul. Dolina Drwęcy i drogi z Mierzynka na wcześniej niezagospodarowanym terenie. Obiekt posiada system fotowoltaicznego zabezpieczenia w energię, jest wyposażony w sprzęt audio-wizualny i zaplecze sanitarne. Dzięki temu może służyć wszelkim niekomercyjnym wydarzeniom, warsztatom, zajęciom, zebraniom, spotkaniom, próbom itp.
Świetlica kosztowała 950 tys. zł, z czego pół miliona to dotacja ze środków unijnych – z Programu Rozwoju Obszarów Wiejskich. Dlatego właśnie, zgodnie z przepisami, świetlicy przez 5 lat nie można wykorzystywać w celach komercyjnych.
Przy tej okazji ogromne podziękowania składamy wszystkim tym, którzy przyczynili się do powstania obiektu i zagospodarowania terenu wokół.
drukuj (Świetlica w Młyńcu Drugim oddana mieszkańcom)
Metryka
- Data 2021-07-13
Dyżury eksperckie pracowników ZUS
Placówki ZUS w regionie organizują kolejne telefoniczne dyżury z ekspertami, które odbędą się od 14 do 23 lipca. Podczas dyżurów będzie można zapytać ekspertów m.in. o zasady przyznawania zasiłków i świadczeń.
Pierwszy dyżur zaplanowano na 14 lipca. Odbędzie się on pod hasłem „Bezpłatnie, zdrowo, bezgotówkowo – jak dokonać zmiany sposobu wypłaty świadczenia". Podczas dyżuru ekspert przedstawi korzyści, jakie- zwłaszcza w obecnej sytuacji związanej z COVID-19 - niesie wykorzystanie bezgotówkowej formy pobierania świadczeń. Będzie można również dowiedzieć się jak zmienić sposób wypłaty świadczeń w ZUS. Eksperci dyżurować będą w godz. 8-10.00 pod nr. tel. 56 498 35 81.
Dzwoniąc 15 lipca w godz. 9-11.00 pod nr. tel. 56 610 93 59 będzie można dowiedzieć się, komu przysługuje rehabilitacja lecznicza w ramach prewencji rentowej ZUS i jak się o nią starać, a także co zrobić w sytuacji, gdy przed samym wyjazdem do sanatorium wynik testu na COVID-19 jest pozytywny. Z kolei dyżur telefoniczny na temat zasad przyznawania i wypłaty zasiłków chorobowych, opiekuńczych czy macierzyńskich odbędzie się 16 lipca w godz. 8-10.00 pod nr tel. 56 498 35 81 oraz w godz. 9-11.00 pod nr tel. 54 230 73 77. O zasiłki pytać będzie można również 20 lipca w godz. 8-10.00 pod nr tel. 502 008 688 oraz 21 lipca w godz. 9-11.00 pod nr tel. 56 610 93 24. Natomiast o świadczenia emerytalno-rentowe będzie można zapytać ekspertów 20 lipca w godz. 9-11.00 pod nr tel. 56 610 93 32.
Na pytania jak zarezerwować e-wizytę w ZUS, czy jak założyć konto i z niego korzystać na Platformie Usług Elektronicznych ZUS i platformie ePUAP, eksperci odpowiadać będą podczas telefonicznych dyżurów, które odbędą się 15 i 16 lipca w godz. 9-10.30 pod nr tel. 54 280 28 34. Dyżur odbędzie się również 22 lipca w godz. 8-10.00 pod nr tel. 502 008 688 oraz w godz. 9-11.00 pod nr tel. 56 45 06 855, a także 23 lipca w godz. 9-10.30 pod nr tel. 54 288 61 58 oraz w godz. 9-11.00 pod nr tel. 54 230 73 80. Zainteresowane osoby mogą również wziąć udział w bezpłatnym szkoleniu online, które odbędzie się 21 lipca o godz. 9.00. Zgłoszenia do udziału w szkoleniu przyjmowane są do 20 lipca, pod adresem sylwia.bratkowska-gburek@zus.pl.
Informacja prasowa ZUS
drukuj (Dyżury eksperckie pracowników ZUS)
Metryka
- Data 2021-07-13
Ostrzeżenie: upały i burze [Aktualizacja4]
Komunikat nr 4
Zjawisko: Upał
Stopień zagrożenia: 2
Ważność: od godz. 21:30 dnia 15.07.2021 r. do godz.19:30 dnia 17.07.2021 r.
Obszar: Miasto Toruń, powiat toruński
Przebieg: Prognozuje się upały. Temperatura maksymalna w dzień od 29°C do 31°C.
Temperatura minimalna w nocy około 20°C.
Źródło informacji: Instytut Meteorologii i Gospodarki Wodnej – Państwowy Instytut Badawczy. Biuro Meteorologicznych Prognoz Morskich w Gdyni.
Komunikat nr 3
Zjawisko: Silny deszcz z burzami
Stopień zagrożenia: 2
Ważność: od godz. 04:00 dnia 15.07.2021 r. do godz.24:00 dnia 15.07.2021 r.
Obszar: Miasto Toruń, powiat toruński
Przebieg: Prognozowane są opady deszczu o natężeniu umiarkowanym, okresami silnym. Wysokość opadu miejscami od 50 mm do 90 mm. Opadom towarzyszyć będą burze z porywami wiatru do 90 km/h. Lokalnie grad.
Źródło informacji: Instytut Meteorologii i Gospodarki Wodnej – Państwowy Instytut Badawczy. Biuro Meteorologicznych Prognoz Morskich w Gdyni.
Komunikat nr 2
Zjawisko: Burze z gradem
Stopień zagrożenia: 2
Ważność: od godz. 14:00 dnia 14.07.2021 r. do godz.4:00 dnia 15.07.2021 r.
Obszar: Miasto Toruń, powiat toruński
Przebieg: Prognozowane są burze, którym miejscami będą towarzyszyć opady deszczu od 30 mm do 50 mm, lokalnie do 60 mm oraz porywy wiatru do 100 km/h. Miejscami grad.
Uwagi: W związku z dynamiczną sytuacją synoptyczną ostrzeżenie może ulec zmianie lub wydłużeniu.
Źródło informacji: Instytut Meteorologii i Gospodarki Wodnej – Państwowy Instytut Badawczy. Biuro Meteorologicznych Prognoz Morskich w Gdyni.
Komunikat nr 1
Zjawisko: Upał
Stopień zagrożenia: 2
Ważność: od godz. 13:00 dnia 13.07.2021 r. do godz.20:00 dnia 15.07.2021 r.
Obszar: Miasto Toruń, powiat toruński
Przebieg: Prognozuje się upały. Temperatura maksymalna w dzień od 30°C do 33°C. Temperatura minimalna w nocy od 18°C do 21°C.
Źródło informacji: Instytut Meteorologii i Gospodarki Wodnej – Państwowy Instytut Badawczy. Biuro Meteorologicznych Prognoz Morskich w Gdyni.
drukuj (Ostrzeżenie: upały i burze [Aktualizacja4])
Metryka
- Data 2021-07-13
Wniosek o 300+ tylko elektronicznie [Aktualizacja3]
W tym roku wnioski o 300+ na wyprawkę szkolną przyjmowane są wyłącznie online. Jeśli masz problem ze złożeniem wniosku, pomoże Ci pracownik ZUS na dyżurze w Lubiczu Dolnym 11 i 25 sierpnia.
Od 1 lipca świadczenie 300+ przysługujące w ramach rządowego programu „Dobry start” jest obsługiwane i wypłacane przez ZUS. Wnioski o tzw. 300+ dla ucznia na rok szkolny 2021/2022 można składać tylko elektronicznie – za pomocą Platformy Usług Elektronicznych (PUE) ZUS, portalu Emp@tia lub bankowości elektronicznej.
Na wniosku – oprócz innych danych – należy podać: numer rachunku bankowego, adres mailowy oraz numer telefonu. Te dane będą potrzebne do kontaktu w sprawie wniosku
i ewentualnie do założenia profilu na portalu Platformy Usług Elektronicznych (PUE) ZUS.
Osoby, które złożą wniosek o 300+ dla ucznia przez bankowość elektroniczną lub portal Emp@atia będą miały automatycznie założony swój profil na PUE ZUS. Informacje na temat wniosku i jego obsługi będą tylko na portalu PUE ZUS. Tam również będzie korespondencja w sprawie wniosku np. wezwanie do jego uzupełnienia lub dosłania załączników, a także informacja o przyznaniu świadczenia czy decyzja odmawiająca przyznania świadczenia – informuje Krystyna Michałek, regionalny rzecznik prasowy ZUS województwa kujawsko-pomorskiego.
- Klienci mogą liczyć na naszą pomoc w założeniu profilu na PUS ZUS i poprawnym wypełnieniu wniosku o 300+. Jednocześnie chciałabym przestrzec, że pracownicy ZUS nie będą chodzić po domach, zachęcać do złożenia wniosku czy założenia profilu na PUE. Wszelkie tego typu działania są nielegalne i zapewne będą inicjowane przez oszustów - przestrzega Krystyna Michałek.
Pomoc można uzyskać bezpośrednio w każdej placówce ZUS, a także w wybranych punktach w regionie.
W związku z powyższym dział świadczeń rodzinnych GOPS Lubicz zaprasza osoby mające utrudniony dostęp do internetu i nie posiadające internetowego konta bankowego bądź konta PUE ZUS, do skorzystania z pomocy pracownika ZUS przy złożeniu wniosku „Dobry Start” tzw. 300+.
Taki dyżur odbył się już w Lubiczu Dolnym 16 i 22 lipca, a następne planowane są w sierpniu 11 i 25 w godz. 13.00 – 15.00 (GOPS Lubicz ul. Toruńska 24, budynek B urzędu gminy, parter).
Na podstawie Informacji prasowej ZUS
drukuj (Wniosek o 300+ tylko elektronicznie [Aktualizacja3])
Metryka
- Data 2021-07-12
Wójt Lubicza podpisał deklarację "dbajMY o H2O"
No i przepłynęli. W niedzielę 4 lipca gościliśmy uczestników spływu kajakowego z Wąbrzeźna do Bałtyku przez Strugę Wąbrzeską, Drwęcę i Wisłę. Na gminnym odcinku Drwęcy płynęli również nasi kajakarze z wójtem Markiem Nicewiczem na czele.
Spływ pod hasłem „Dbajmy o H2O” zorganizowany przez władze Wąbrzeźna pod honorowym patronatem Koalicji Ratujmy Rzeki jest inicjatywą burmistrza Wąbrzeźna i miał na celu podkreślenie znaczenia dostępu do dobrej jakości wody, a także upamiętnienie obchodów 100-lecia powrotu Pomorza i Kujaw do Wolnej Polski. Kajakarze w ciągu 9 dni mają do przepłynięcia 298 km rzek wspólnie z przedstawicielami 12 samorządów, przekonanych o potrzebie wspólnych działań na rzecz ochrony wód w Polsce.
To przekonanie mają wójtowie, burmistrzowie i prezydenci Bydgoszczy, Chełmna, Gdańska, Gniewu, Golubia-Dobrzynia, Grudziądza, Lubicza, Solca Kujawskiego, Stegny, Świecia, Tczewa i Torunia.
- Podejmujemy wyzwanie dziewięciodniowego spływu kajakowego, aby zachęcać samorządy Kujaw i Pomorza do dbałości o wodę w Polsce. Tylko podejmując wspólne działania mamy realny wpływ na wodny ekosystem w Polsce – podkreśla Tomasz Zygnarowski, burmistrz Wąbrzeźna.
Trzy kluczowe działania, które może podjąć każdy samorząd w Polsce aby zadbać o jakość wód w Polsce, burmistrz Tomasz Zygnarowski zebrał w deklarację „dbajMY o H2O” i postanowił, że nie tylko sam podejmie inicjatywy na rzecz poprawy jakości wód w okolicy, ale także namówi do tego innych samorządowców. Wśród nich są także władze gminy Lubicz.
- My także podjęliśmy kroki w kierunku dbałości o wodę - podkreśla wójt Marek Nicewicz. - Nie tylko poprzez włączenie się do inicjatywy kolegów z Wąbrzeźna. Obecnie kończą się przygotowania projektowe i dokumentacyjne dotyczące modernizacje sieci wodociągowej w miejscowościach naszej gminy, od ponad dwóch lat budujemy w kilku lokalizacjach kanalizacje, a już niebawem nasze ścieki popłyną kolektorem do Torunia, pozwalając wyłączyć z codziennej eksploatacji coraz mniej wydajną oczyszczalnię w Lubiczu.
Samorządowców na trasie spływu wspierali w kajakach m.in. Dawid Putto, złoty medalista mistrzostw świata w kajakarstwie, zawodnik Kopernika Bydgoszcz, w Chełmnie do spływu dołączy Lech Flaczyński, polski podróżnik, wspinacz, laureat nagrody Kolosy, a w Gdańsku uczestników spływu powitał pod Żurawiem Marek Kamiński, słynny polski podróżnik ekstremalny.
drukuj (Wójt Lubicza podpisał deklarację "dbajMY o H2O")
Metryka
- Data 2021-07-12
Wakacyjny numer "Gońca gminnego"
Ostatnio wydany "Goniec gminny" dotarł do mieszkańców na przełomie czerwca i lipca. Jeśli jednak nie mieliście Państwo okazji mieć go w ręce, to zachęcamy do przeczytania pisma w formacie pdf.
Najnowszy "Goniec" dostępny jest tutaj.
drukuj (Wakacyjny numer "Gońca gminnego")
Metryka
- Data 2021-07-12
Jeśli potrzebujesz pomocy, nie zwlekaj
W gminie Lubicz pracuje psycholog, u którego wizyta dla mieszkańców jest bezpłatna. Jesteście zainteresowani spotkaniem? Wyjaśniamy w jaki sposób należy się umówić.
Dostępność psychologa w Gminnym Ośrodku Pomocy Społecznej w Lubiczu od 1 lipca wygląda następująco:
wtorek 7.00 – 17.00
czwartek 7.00 – 17.00
piątek 7.00 – 16.00
Spotkanie z psychologiem można umówić bezpośrednio, kontaktując się z psychologiem (Ewelina Makowska tel.: 519 577 798, e-mail: e.makowska@gopslubicz.home.pl), poprzez kontakt z pracownikiem socjalnym lub dzwoniąc do GOPS-u w Lubiczu Dolnym pod numer 56 674 21 55.
Praca psychologa jest finansowana z budżetu gminy oraz Programu Profilaktyki i Rozwiązywania Problemów Alkoholowych.
drukuj (Jeśli potrzebujesz pomocy, nie zwlekaj)
Metryka
- Data 2021-06-25
I znów mamy wakacje!
To był trudny rok dla wszystkich: uczniów, rodziców i nauczycieli. Korzystajcie z wolnego czasu. Bawcie się dobrze, ale i bezpiecznie, przestrzegając obowiązujących zasad epidemiologicznych. Życzymy Wam wspaniałego lata!
Specjalnie dla mieszkańców trzeci rok z rzędu przygotowaliśmy kąpielisko w Józefowie, a na nim kino letnie, siatkówkę plażową i animacje. Więcej o tym piszemy tutaj.
W lipcu i sierpniu wszystkie boiska przy szkołach są otwarte dla chętnych. W jakich godzinach?
Z „orlika” w Grębocinie można korzystać codziennie od 14.00 do 21.00, a w Lubiczu Górnym od 12.00 do 22.00.
W Lubiczu Dolnym część sportowa jest dostępna w tygodniu od 13.00 do 21.00, w soboty od 12.00 do 21.00, a w niedzielę od 14.00 do 21.00. Natomiast na plac zabaw dla małych dzieci, pod opieką rodziców, od poniedziałku do piątku można wejść między 8.00 do 21, zaś w weekend w tych samych godzinach jak na boisko.
W Młyńcu Pierwszym kompleks przy szkole czeka na chętnych od 8.00 do 22.00, z kolei w Złotorii od 8.00 do 21.00.
Zaglądajcie również na sołeckie profile fejsbukowe, ponieważ niektóre sołectwa przygotowują zajęcia dla dzieci.
Metryka
- Data 2021-06-25
Lipcowa sesja absolutoryjna rady
XXXII sesja Rady Gminy Lubicz odbędzie się 1 lipca (czwartek) o godz. 12.00 w świetlicy wiejskiej w Krobi. Zainteresowanych zachęcamy do śledzenia obrad.
>>> Proponowany porządek obrad
drukuj (Lipcowa sesja absolutoryjna rady)
Metryka
- Data 2021-06-25
Rusza kąpielisko nad jeziorem w Józefowie [Aktualizacja]
To był strzał w dziesiątkę! Trzeci rok z rzędu zapraszamy Was do Józefowa, nad urokliwy, otoczony lasem akwen, gdzie przygotowaliśmy dla Was także inne atrakcje, np. kino letnie.
W 2019 roku Urząd Gminy Lubicz, po raz pierwszy w historii, pilotażowo zorganizował w Józefowie „miejsce czasowo wykorzystywane do kąpieli”. Rok później, mimo trudności spowodowanych pandemią otworzyliśmy pełnoprawne kąpielisko. W tym roku zapraszamy Was na nie po raz kolejny - od 26 czerwca.
Na plażę dowieźliśmy świeży piasek. Na jeziorze wyznaczymy bezpieczne miejsca do kąpieli: dla maluchów, dla osób nieumiejących pływać, jak i dla pływających. Można też skorzystać z damskiej i męskiej przebieralni.
Gmina zapewni również kilka toalet z dostępem do wody do umycia rąk i dostęp środków dezynfekujących. Podwoimy liczbę koszy na śmieci.
Przez cały sezon nad bezpieczeństwem kąpiących się w godzinach 10.00-18.00 będą czuwać ratownicy. Do dyspozycji mają wieżę, łódkę, profesjonalną apteczkę, defibrylator, sprzęt do nurkowania oraz tubę.
Dla plażowiczów przygotowaliśmy dwa parkingi. Duży bezpłatny na polu przy wjeździe do lasu oraz mniejszy płatny (wjazd 10 zł) tuż przy plaży.
Nad jeziorem kolejny rok będzie funkcjonował bar przy ładnej pogodzie czynny w tygodniu do 20.00, a od piątku do niedzieli do 22.00 (od 10.00). Można w nim także wypożyczyć sprzęt wodny: deski sup, kajaki i rowery wodne.
Na plażę w Józefowie ponownie zawita również kino letnie. Organizujemy cztery bezpłatne seanse, które w lipcu rozpoczną się o godz. 21.30, a w sierpniu o 21.00 (wstęp wolny).
Repertuar kina letniego:
2 lipca - Wszyscy wiedzą (dramat – kryminał),
3 lipca – Nigdy Cię tu nie było (dramat – thriller),
27 sierpnia – „Sokół z masłem orzechowym” (komedia),
28 sierpnia – „Teraz albo nigdy” (komedia).
Nad jeziorem zostanie także zorganizowanych kilka inicjatyw, m.in. zabawy dla dzieci prowadzone przez Fundację „Okruszek Szczęścia” oraz skierowane do młodzieży działania profilaktyczne Stowarzyszenia One Passion One Love WP. 27 czerwca o 9.00 stowarzyszenie organizuje w Józefowie bieg Run Lubicz. Zaprasza też do „Namiotu wsparcia” 10 lipca, a także do namiotu i na siatkówkę plażową 18 lipca oraz 29 sierpnia, od godz. 10.00.
Kąpielisko będzie czynne do końca wakacji.
Apelujemy o bezpieczne zachowanie i wspólne dbanie o porządek.
drukuj (Rusza kąpielisko nad jeziorem w Józefowie [Aktualizacja])
Metryka
- Data 2021-06-24
Deklarację musi złożyć każdy właściciel
1 lipca 2021 r. zostaje wprowadzony obowiązek złożenia deklaracji źródeł ciepła i spalania paliw w budynkach mieszkalnych oraz niemieszkalnych do Centralnej Ewidencji Emisyjności Budynków (CEEB).
Deklarację będzie musiał złożyć każdy właściciel nieruchomości lub zarządca budynku.
Budowę systemu powierzono Głównemu Urzędowi Nadzoru Budowlanego.
Deklarację składamy:
- w formie elektronicznej, czyli przez internet na stronie https://zone.gunb.gov.pl. – jest to najszybszy oraz najwygodniejszy sposób. Oprócz tego, że umożliwia on oszczędność czasu, a także pieniędzy, niewątpliwą jego zaletą jest również fakt, że deklarację można złożyć nie wychodząc z domu;
- lub w formie papierowej – wypełniony dokument będzie można wysłać listem albo przynieść osobiście do Urzędu Gminy Lubicz.
Na wysłanie deklaracji obywatele mają 12 miesięcy w przypadku budynków już istniejących, a w przypadku nowo powstałych obiektów 14 dni od uruchomienia nowego źródła ciepła lub spalania paliw.
Stosowne wzory deklaracji oraz informator dla właścicieli i zarządców budynków zamieszczamy poniżej.
Więcej informacji na temat CEEB znajduje się na stronie internetowej: https://zone.gunb.gov.pl.
drukuj (Deklarację musi złożyć każdy właściciel)
Metryka
- Data 2021-06-23
- Poradnik na temat CEEB (PDF) 2564.24kB
Lipcowe szkolenia dla rolników
Kujawsko-Pomorski Ośrodek Doradztwa Rolniczego w Minikowie zaprasza rolników do udziału w dwóch szkoleniach on-line o zasadach obrotu ziemią i udzielaniu pomocy na modernizację gospodarstw.
Wirtualne spotkania ze specjalistami odbędą się 2 i 7 lipca w godz. 10.00-12.00. Linki do rejestracji oraz szczegóły znajdziecie Państwo na załączonych plakatach oraz na stronie organizatora www.kpodr.pl.
drukuj (Lipcowe szkolenia dla rolników)
Metryka
- Data 2021-06-23
Rachmistrz zapuka do drzwi
Od 23 czerwca br. rachmistrzowie spisowi rozpoczynają realizację wywiadów bezpośrednich w terenie. Rachmistrzowie skontaktują się z osobami, które nie spisały się przez Internet, nie spisały się na infolinii (22 279 99 99) ani nie zadzwonił do nich rachmistrz spisowy.
Trwa obowiązkowy Narodowy Spis Ludności i Mieszkań 2021.
Przypominamy, że zgodnie z art. 17a ust. 1-3 ustawy o narodowym spisie powszechnym ludności i mieszkań w 2021 r. (Dz. U. z 2019 r. poz. 1775), nie można odmówić przekazania danych rachmistrzowi kontaktującemu się z osobami fizycznymi objętymi spisem.
Obowiązek udziału w spisie powszechnym zapisano w art. 6 ust. 3 i art. 9 ust. 1 ustawy o statystyce publicznej (Dz. U z 2021 r. poz. 955).
Ze względu na sytuację epidemiczną, jeżeli respondent jest objęty kwarantanną lub izolacją domową, wywiad może odbyć się telefonicznie, pod warunkiem przekazania rachmistrzowi numeru telefonu kontaktowego.
Wywiady bezpośrednie prowadzone będą przez rachmistrzów spisowych z zachowaniem wszelkich procedur sanitarnych i dystansu społecznego.
Informacja: Urząd Statystyczny w Bydgoszczy – Kujawsko-Pomorski Ośrodek Badań Regionalnych
drukuj (Rachmistrz zapuka do drzwi)
Metryka
- Data 2021-06-22
W kranach ledwo leci. Co z tą wodą?
Problemy z ciśnieniem wody w Lubiczu Górnym i Krobi uprzykrzają życie mieszkańców. Wszystko wskazuje na to, że to już ostatni taki sezon. W połowie przyszłego roku sytuacja znacząco się poprawi.
Infrastruktura wodociągowa zasilająca domy i bloki w górę od Drwęcy w Lubiczu wymaga przebudowy od wielu lat z uwagi na niskie średnice rurociągów. Nie wykorzystano nawet szansy, jaką dawała przebudowa mostu i drogi DK10 kilka lat temu, pozostawiając starą, stalową, wielokrotnie naprawianą rurę podwieszoną pod mostem oraz nie dokonano przebudowy rurociągu zasilającego
w wodę domy na wspomnianych terenach przy tak wysokim wskaźniku rozbudowy budownictwa mieszkaniowego.
Takich sytuacji na terenie gminy Lubicz jest niestety więcej, dlatego już w 2019 roku nowe władze gminy podjęły decyzję o modernizacji sieci wodociągowych. W wyniku przeprowadzonego wówczas audytu (pisaliśmy o tym m.in. w „Gońcu” w nr 5/2019, 6/2019 i 3/2020) ustalono najpilniejsze potrzeby modernizacyjne.
Na pierwszym miejscu znalazło się wykonanie pod dnem Drwęcy metodą przecisku zupełnie nowej rury zasilającej o przekroju fi 300 wraz z nową nitką doprowadzającej wodę od pompowni do Lubicza Górnego i Krobi (teraz jest to tylko fi 160, zbyt mała na tak duże zapotrzebowanie wody). Stara podwieszana rura zostanie zdemontowana. Dokumentacja na dokonanie przewiertu pod Drwęcą jest już w fazie uzgodnień z gestorami, obecnie trwają prace projektowe nad pozostałym odcinkiem tej sieci. Przygotowania projektowe przy takich inwestycjach są skomplikowane i długotrwałe, ale jak zapewnia Grzegorz Karpiński, prezes ZUK-u wiosną powinny ruszyć prace budowlane, a ich zakończenie planowane jest na połowę 2022 roku. Ta modernizacja znacząco poprawi dostawy wody do mieszkań i domów w tym rejonie Lubicza Górnego i Krobi.
- Rozumiem żal i rozgoryczenie mieszkańców z powodu niskiego ciśnienia wody lub czasami jej braku, sam je również odczuwam – mówi prezes. - Mogę w tym miejscu jedynie przeprosić i zapewnić, że sytuacja poprawi się w połowie przyszłego roku. Nie ma bowiem na teraz innego sposobu niż ten, który zaproponowaliśmy, czyli wybudowanie nowych odcinków sieci. Jak alarmuje wiele samorządów w całej Polsce, kłopoty z zaopatrzeniem mieszkańców w wodę są wszędzie, nasilają się szczególnie w upalne dni. Pracujemy, aby je zminimalizować.
Aby zlikwidować inne słabe ogniwa sieci wodociągowej na terenie gminy, trwają także prace projektowe nad połączeniem sieci wodociągowych od strony Młyńca Pierwszego z Młyńcem Drugim oraz nad rozwiązaniem problemów Grabowca oraz Kopanina. O efektach będziemy informować.
drukuj (W kranach ledwo leci. Co z tą wodą?)
Metryka
- Data 2021-06-21
Kończymy kanalizację w Krobi i Lubiczu Dolnym
W wakacje gmina Lubicz planuje zakończyć ważną inwestycję infrastrukturalną - budowę sieci wodociągowo-kanalizacyjnej na terenie tzw. aglomeracji Lubicz.
To nie oznacza jednak końca prac związanych z kanalizacją gminy. Kończy się natomiast duży projekt rozpoczęły w 2019 roku, realizowany w Lubiczu Górnym, Lubiczu Dolnym i Krobi.
Stan prac na dziś? Zakończono budowę magistrali kanalizacyjnej wraz z przepompownią na ul. Długiej w Krobi, do której wpięte zostaną ulice: Cytrynowa, Krótka, Poprzeczna, Jaśminowa, Olszynowa, Oliwkowa, Leszczynowa, Osiedlowa i Malinowa. Budowa kanalizacji w ciągu wymienionych ulic jest ostatnim już etapem do wykonania w tym roku w Krobi. Rozpoczęły się już także ostatnie prace w Lubiczu Dolnym na ulicach Kolejowej i Ogrodowej w Lubiczu Dolnym.
Dzięki inwestycji gminna sieć kanalizacyjna zyska ponad 14 km, a wodociągowa przeszło pół kilometra.
Inwestycja powoduje czasowe utrudnienia w ruchu. Prosimy jeszcze o kilka tygodni cierpliwości. Prace mają skończyć się w wakacje.
Po wybudowaniu całego zakresu pozostanie jeszcze kwestia rozliczenia dotacji z Urzędem Marszałkowskim Województwa Kujawsko-Pomorskiego.
drukuj (Kończymy kanalizację w Krobi i Lubiczu Dolnym)
Metryka
- Data 2021-06-21
Komunikat ZUK w sprawie poboru wody
"W związku z wysokimi temperaturami powietrza oraz brakiem opadów, które mają wpływ na zwiększony pobór wody, zwracamy się z prośbą do mieszkańców Gminy Lubicz korzystających z wody z sieci wodociągowej o racjonalne i oszczędne korzystanie z wody. Na chwilę obecną zauważalny jest spadek ciśnienia w sieci wodociągowej, a nawet przerwy w dostawie wody.
Zakład Usług Komunalnych w Lubiczu Sp. z o.o. apeluje o ograniczenie lub zrezygnowanie z podlewania ogródków i trawników, napełniania basenów czy mycia samochodów. W godzinach 6:00-23:00 woda z wodociągu gminnego powinna być używana jedynie do celów spożywczych i higienicznych mieszkańców oraz zwierząt gospodarskich".
drukuj (Komunikat ZUK w sprawie poboru wody)
Metryka
- Data 2021-06-16
„Czyste Powietrze”. Zanim przyjdziesz, wypełnij ankietę [Aktualizacja]
Od 1 czerwca, w ramach porozumienia z Wojewódzkim Funduszem Ochrony Środowiska i Gospodarki Wodnej w Toruniu, mieszkańcy gminy Lubicz mogą skorzystać z pomocy pracowników Urzędu Gminy w procesie składania wniosków o dofinansowanie z programu „Czyste Powietrze”, jak również uzyskać niezbędne informacje na temat programu, zasad ubiegania się o dofinansowanie czy wymaganych dokumentów.
Pomoc w wypełnianiu wniosków odbywa się w Gminnym Punkcie Konsultacyjno-Informacyjnym w dniach:
poniedziałek, wtorek, środa, piątek – w godz. 11.00 – 13:30
po wcześniejszym telefonicznym uzgodnieniu terminu.
Szczegółowych informacji udzielają pracownicy Urzędu Gminy Lubicz:
pod numerem telefonu 56 621 21 29 bądź poprzez e-mail: czystepowietrze@lubicz.pl
W Punkcie uzyskamy informacje o zasadach programu „Czyste Powietrze” oraz bezpłatne wsparcie w zakresie przygotowywania wniosku o dofinansowanie. Zainteresowani mieszkańcy mogą także skorzystać ze stanowiska komputerowego z dostępem do Internetu, przy którym można wypełnić wnioski, wydrukować je i od razu złożyć wypełniony wniosek o dofinansowanie, który zostanie przekazany do WFOŚiGW w Toruniu. Punkt pomaga także przy rozliczaniu przyznanych dofinansowań, w tym przy poprawnym wypełnianiu wniosków o płatność oraz kompletowaniu wymaganych załączników.
Podstawowe informacje o programie "Czyste Powietrze"
To kompleksowy program, którego celem jest poprawa jakości powietrza oraz zmniejszenie emisji gazów cieplarnianych poprzez wymianę źródeł ciepła i poprawę efektywności energetycznej budynków mieszkalnych jednorodzinnych.
Narzędziem w osiągnięciu celu jest dofinansowanie przedsięwzięć realizowanych przez beneficjentów uprawnionych do podstawowego poziomu dofinansowania oraz beneficjentów uprawnionych do podwyższonego poziomu dofinansowania.
Program skierowany jest do osób fizycznych, które są:
– właścicielami/współwłaścicielami budynku mieszkalnego jednorodzinnego lub
– wydzielonego w takim budynku lokalu mieszkalnego z wyodrębnioną księgą wieczystą
Program obejmuje dwie grupy beneficjentów:
– uprawnionych do podstawowego poziomu dofinansowania – osoby, których roczny dochód nie przekracza 100 000 zł. W tej grupie brany jest pod uwagę tylko dochód wnioskodawcy.
– uprawionych do podwyższonego poziomu dofinansowania – osoby, których przeciętny średni miesięczny dochód na osobę w gospodarstwie domowym nie przekracza: 1564 zł w gospodarstwie wieloosobowym lub 2189 zł w gospodarstwie jednoosobowym. Przed złożeniem wniosku o podwyższone dofinansowanie wnioskodawca występuje z żądaniem o wydanie zaświadczenia do gminy. W żądaniu wnioskodawca wskazuje swoje dane oraz dane członków swojego gospodarstwa domowego, zaznacza też rodzaj gospodarstwa tzn. czy jest ono wieloosobowe czy jednoosobowe. Zaświadczenie jest niezbędne, żeby ubiegać się o podwyższony poziom dofinansowania w programie „Czyste Powietrze”. To załącznik obowiązkowy do składanego wniosku.
Zaświadczenia wydaje kierownik Gminnego Ośrodka Pomocy Społecznej w Lubiczu z upoważnienia wójta gminy.
W sprawie pytań dotyczących złożenia wniosku o zaświadczenie o dochodach należy skontaktować się z pracownikami Ośrodka pod następującymi numerami telefonów 500 280 473 i 500 280 657
Informacje jakie należy przygotować przed wizytą w Urzędzie Gminy w Lubiczu:
- Dane właściciela nieruchomości (wnioskodawcy): Imię i nazwisko, pesel, nr telefonu, adres zamieszkania, adres email – potrzebny do założenia konta na Portalu. Wskazane jest aby przed wizytą założyć konto na Portalu Beneficjenta na stronie: https://portal.wfosigw.torun.pl/strona-glowna-programu – w wyjątkowych sytuacjach istnieje możliwość założenia konta na miejscu,
- Czy wnioskodawca pozostaje w związku małżeńskim, jeżeli tak to informacja o współmałżonku: imię i nazwisko, pesel.
- Wspólnota majątkowa: Tak/Nie.
- Współwłasność, jeżeli tak to dane współwłaścicieli: imię i nazwisko, adres.
- Numer rachunku bankowego wnioskodawcy (do wypłaty dotacji).
- Adres budynku, w którym będzie prowadzone przedsięwzięcie.
- Numer Księgi Wieczystej i numer ewidencyjny działki.
- Rok wystąpienia o zgodę na budowę/rok zgłoszenia budowy.
- Powierzchnia budynku/lokalu.
- Czy na nieruchomości prowadzona jest działalność gospodarcza, jeżeli tak to należy określić procent powierzchni przeznaczonej na działalność, powyżej 30% brak dotacji.
- Dochód wnioskodawcy za 2020 rok wraz z wskazaniem podstawy (PIT, działalność gospodarcza, gospodarstwo rolne, świadczenia rodzinne itp.)
- Pełna informacja o zakresie prac, jakie mają być dofinansowane – np. rodzaj pieca, powierzchnia okien, powierzchnia docieplanych stropów/ścian itp.
PRZYDATNE LINKI:
Wymagana dokumentacja https://portal.wfosigw.torun.pl/wymagana-dokumentacja
Kalkulator dotacji https://czystepowietrze.gov.pl/kalkulator-dotacji/
Kalkulator grubości izolacji https://kalkulatorczystepowietrze.kape.gov.pl/
Lista urządzeń i materiałów, spełniających wymagania techniczne określone w programie https://lista-zum.ios.edu.pl/
Instruktaż wypełniania wniosku http://czystepowietrze.gov.pl/akademiaczystegopowietrza/
W celu ułatwienia wypełnienia wniosku o dofinansowanie przed wizytą w urzędzie prosimy o wypełnienie załączonej ankiety.
drukuj („Czyste Powietrze”. Zanim przyjdziesz, wypełnij ankietę [Aktualizacja])
Metryka
- Data 2021-06-15
- Ankieta (DOCX) 306.54kB
Dyżury telefoniczne ZUS
Placówki ZUS w regionie organizują kolejne telefoniczne dyżury z ekspertami, które odbędą się w dniach od 21 do 30 czerwca. - Pytać będzie można m.in. o zasady podlegania ubezpieczeniom społecznym, o zgłaszanie do ZUS-u umów o dzieło, e-usługi w ZUS, rentę socjalną, rentę rodzinną, świadczenia międzynarodowe, emerytury czy zasiłek macierzyński z tytułu urodzenia dziecka po ustaniu ubezpieczenia chorobowego - informuje Krystyna Michałek, regionalny rzecznik prasowy ZUS województwa kujawsko-pomorskiego.
Harmonogram dyżurów telefonicznych:
- Zasady podlegania ubezpieczeniom społecznym osób prowadzących pozarolniczą działalność gospodarczą (ubezpieczenia obowiązkowe, dobrowolne)
- 21 czerwca w godz. 9-12.00 tel. 56 450 69 28
- 25 czerwca w godz. 9-11.00 tel. 54 230 73 83
- Nowe zasady zgłaszania do ZUS-u umów o dzieło
- 22 czerwca w godz. 10-11.30 tel. 54 280 28 34
- E-usługi w ZUS ( Platforma Usług Elektronicznych ZUS, e-PUAP, e-wizyty)
- 23 czerwca w godz. 9-11.00 tel. 56 450 68 55
- 24 czerwca w godz. 8-10.00 tel. 56 498 35 81
- 30 czerwca w godz. 9-11.00 tel. 54 230 73 36
- Renta socjalna
- 23 czerwca w godz. 9-10.00 tel. 54 282 83 33
- Renta rodzinna
- 23 czerwca w godz. 10-12.00 tel. 56 610 93 12
Na pytania czy pełnoletnie dziecko ma prawo do renty rodzinnej i jakie musi spełniać warunki, czy pobierając rentę rodzinną, można równocześnie pobierać rentę socjalną, do kiedy dziecko może pobierać rentę rodzinną,
kiedy wdowa ma prawo do renty rodzinnej i czy pobierając to świadczenie, może pracować, odpowiadać będą Wanda Stróżyk, Zastępca Dyrektora ds. świadczeń Oddziału ZUS w Toruniu oraz Renata Kotas z Wydziału Świadczeń Emerytalno-Rentowych.
- Świadczenia międzynarodowe
- 24 czerwca w godz. 10-12.00 tel. 56 450 67 01
W trakcie dyżuru będzie można zapytać eksperta, jakie należy spełnić warunki, aby otrzymać świadczenie międzynarodowe, jakie dokumenty i gdzie należy złożyć, kiedy można liczyć na dopłatę do minimum
w przypadku przyznania świadczenia w wysokości niższej niż minimalna emerytura, jakie świadczenia ZUS może przekazywać za granicę, a także co trzeba zrobić, aby otrzymać świadczenie z ZUS, gdy mieszka się za granicą, gdzie złożyć wniosek.
Dyżur telefoniczny będzie pełniła Jolanta Tesz, Naczelnik Wydziału Realizacji Umów Międzynarodowych Oddziału ZUS w Toruniu
- Emerytury dla osób urodzonych po 1948 r.
- 25 czerwca w godz. 9-10.30 tel. 54 288 61 58
- Zasiłek macierzyński z tytułu urodzenia dziecka po ustaniu ubezpieczenia chorobowego
- 25 czerwca w godz. 8-10.00 tel. 56 498 35 81.
Informacja prasowa ZUS
drukuj (Dyżury telefoniczne ZUS)
Metryka
- Data 2021-06-15
Instalacja słoweńskiej pasieki w Grębocinie
Grębocin jest pierwszą miejscowością w Polsce, w której stanął tradycyjny, kolorowy słoweński ul. W oficjalnej uroczystości inauguracji projektu wzięła udział JE Ambasador Republiki Słowenii Pani Božena Forštnarič Boroje.
Słoweński ul został ustawiony w pasiece w Grębocinie, którą pani ambasador Republiki Słowenii zwizytowała i zaakceptowała wraz konsulem honorowym Słowenii w Toruniu Janem Walczakiem w marcu tego roku.
Słowenia znana jest z edukacji na temat znaczenia pszczół dla przyrody i ludzkości. To właśnie ten kraj był inicjatorem ustanowienia Światowego Dnia Pszczoły, w 2017 r. przyjętego przez wszystkie państwa członkowskie ONZ. Od tej pory Światowy Dzień Pszczoły jest obchodzony co roku 20 maja.
Jednym ze sposobów, w jaki Słowenia stara się szerzyć przesłanie Światowego Dnia Pszczół i podnosić świadomość w kwestii ogólnego znaczenia pszczół dla przyrody i ludzkości, jest instalacja tradycyjnych słoweńskich pasiek zdobionych charakterystycznymi deskami malowanymi w różne motywy i umieszczonymi nad wejściem do ula (tzw. panjskimi končnicami), we współpracy z lokalnymi partnerami na całym świecie. Taka pasieka została w ostatnim czasie podarowana Papieżowi Franciszkowi w Watykanie, inne stanęły przy siedzibie ONZ w Nowym Jorku, siedzibie Organizacji Narodów Zjednoczonych ds. Wyżywienia i Rolnictwa.
Oficjalnie słoweńską pasiekę w Grębocinie otwarto 14 czerwca. Warto zaznaczyć, że w słoweńskim nazewnictwie pasieką są specjalne domki dla pszczół, które jak blokowisko mogą być rozbudowane i mieścić kilkanaście, a nawet kilkadziesiąt pszczelich rodzin. W polskiej tradycji jednak pasieką jest zbiorowisko wielu domków – uli. W Grębocinie stanął zdobiony słoweński ul z dwoma rojami, zasiedlonymi słoweńskimi pszczołami Kranjska sivka (Apis mellifera carnica), które doskonale poznały już grębocińskie pola, łąki i ogrody, ponieważ bytują u nas od 13 maja. Dzięki temu podczas dzisiejszej uroczystości mogliśmy naszych gości obdarować pierwszym miodem wyprodukowanym przez słoweńskie pszczoły.
Dlaczego słoweński ul zagościł akurat w Grębocinie w gminie Lubicz? Kujawsko-Pomorskie, jak i Toruń z powodzeniem współpracują ze słoweńskim miastem Nove Mesto, a istniejący w grodzie Kopernika konsulat słoweński ma najdłuższy staż w Polsce. Ustawienie słoweńskiej pasieki w podtoruńskim Grębocinie jest więc efektem współpracy ambasady, konsulatu oraz otwartości na działania edukacyjno-ekologiczne władz województwa, Torunia i gminy Lubicz. - To właśnie w Grębocinie wspólnie znaleźliśmy dom dla słoweńskich pszczół w istniejącej od ponad 10 lat pasiece prowadzonej przez państwa Jakubowskich – wielkich miłośników i znawców pszczół – mówi wójt Marek Nicewicz, którego jednym z celów jest stwarzanie warunków do wspierania aktywności proekologicznych różnych podmiotów i organizacji, a także indywidualnej mieszkańców gminy.
Miód ze słoweńskiego ula trafi do placówek dyplomatycznych wszystkich krajów UE w postaci gadżetu promującego pszczelarstwo, rolę pszczół dla świata, a także samą Słowenię jako kraj z bogatymi tradycjami pszczelarskimi. Ponadto w tym roku Słowenia obchodzi jubileusz 30-lecia odzyskania niepodległości, a w drugiej połowie roku obejmuje prezydencję Rady UE.
- Fakt posiadania pierwszej w Polsce słoweńskiej pasieki chcielibyśmy również jak najlepiej wykorzystać w naszej społeczności – mówi wójt Marek Nicewicz. - Przy słoweńskiej pasiece m.in. planowane są lekcje biologii dla uczniów naszych szkół i przedszkoli. - Teren ten zostanie także wyposażony w dodatkowe tablice edukacyjne jako atrakcyjne miejsce do odwiedzenia przez gości przebywających w Toruniu i gminie Lubicz, np. zwiedzających słynne i uznane grębocińskie Muzeum Drukarstwa i Piśmiennictwa. Słoweński ul, w odległości ok. tysiąca kilometrów od miejsca pochodzenia, będzie zatem niezwykłą ciekawostką na mapie turystycznej naszej gminy.
drukuj (Instalacja słoweńskiej pasieki w Grębocinie)
Metryka
- Data 2021-06-14
Złotoria. Tu będzie centrum sołectwa
Za kilka dni rozpocznie się przebudowa remizy w Złotorii. Po modernizacji w budynku, poza remizą, znajdzie się świetlica wiejska oraz biblioteka.
Przetarg na wykonanie inwestycji wygrała spółka ARS Renowacje z Torunia. Wczoraj wójt Marek Nicewicz podpisał umowę w tej sprawie z prezesem firmy Janem Rodziewiczem. Dzisiaj w Złotorii w szerszym gronie odbyło się przekazanie placu budowy. Omawiano m.in. funkcjonowanie jednostki OSP podczas rozbudowy remizy.
Prace ruszą w ciągu kilku dni. Inwestycja ma być gotowa w niecały rok.
Gmina Lubicz modernizację budynku przeprowadzi w partnerstwie z liderem zadania, czyli Urzędem Marszałkowskim w Toruniu. Przyznane dofinansowanie w ramach Europejskiego Funduszu Rozwoju Regionalnego wynosi 2 mln zł, a cała wartość zadania ponad 4 mln zł.
W zmodernizowanym budynku znajdą się: remiza, świetlica dla lokalnej społeczności z zapleczem kuchennym i sanitarnym oraz przeniesiona ze szkoły filia biblioteki publicznej.
drukuj (Złotoria. Tu będzie centrum sołectwa)
Metryka
- Data 2021-06-11
Wyścig kolarski. Utrudnienia w ruchu. Odbiór bioodpadów
W sobotę 12 czerwca w godz. 10.30 do 14.00 odbędzie się wyścig kolarski Międzywojewódzkie Mistrzostwa w Jeździe Indywidualnej na Czas, którego trasa przebiega przy ruchu całkowicie zamkniętym drogą powiatową z Młyńca do Krobi i z powrotem.
W tym czasie ruch pojazdów zostanie skierowany przez Lubicz, Jedwabno, Młyniec Pierwszy; Młyniec Pierwszy, Jedwabno, Lubicz.
Prosimy o zachowanie szczególnej ostrożności w trakcie trwania wyścigu.️
Uwaga! W związku z wyścigiem bioodpady na trasie zawodów będą odbierane przez MPO Sp. z o.o. we wczesnych godzinach porannych. Pojemniki proponujemy wystawić już w piątek wieczorem.
Główny organizator wydarzenia KS „Sprint” Grębocin przeprasza za wszelkie utrudnienia.
Zapraszamy do kibicowania kolarzom.
drukuj (Wyścig kolarski. Utrudnienia w ruchu. Odbiór bioodpadów)
Metryka
- Data 2021-06-11
Grafika i rysunek dla każdego
Galeria Autorska Gaj zaprasza młodzież kl. IV- VII Szkoły Podstawowej w Grębocinie do udziału w cyklu bezpłatnych warsztatów graficznych „Grafika i rysunek dla każdego” realizowanych podczas wakacji i w roku szkolnym od 5 lipca do 23 września.
- Podczas projektu będziemy poznawać techniki graficzne, drukować na papierze, torbach, koszulkach, rysować. Stworzymy własną książkę, plakat. Będziemy uczestniczyć w warsztatach papierniczych, piśmienniczych i drukarskich w muzeum - mówi Urszula Gajtkowska z Galerii Autorskiej Gaj.
Zajęcia zostaną przeprowadzone w szkole, w Muzeum Piśmiennictwa i Drukarstwa w Grębocinie i w bibliotece.
W związku z tym, że projekt „Grafika i rysunek dla każdego” zakłada aktywność kulturową uczniów oraz ich rodziców i dziadków, to w trzech zajęciach do wyboru wymagany jest także udział jednej osoby dorosłej (w formie wolontariatu) z rodziny uczestnika projektu.
Grupa będzie liczyć 20 osób. Terminy i godziny zajęć na Facebooku Galeria Autorska Gaj Urszula Gajtkowska w zakładce wydarzenia.
Zapisy: Urszula Gajtkowska tel. 609 728 152, e-mail u.gajtkowska@wp.pl.
Projekt dofinansowano ze środków Ministra Kultury, Dziedzictwa Narodowego i Sportu w ramach programu „Bardzo Młoda Kultura 2019-2020”
drukuj (Grafika i rysunek dla każdego)
Metryka
- Data 2021-06-09
Szkoła w końcu doczeka się sali
Dziś gmina przekazała plac budowy pod nową salę gimnastyczną w Lubiczu Dolnym. Uczniowie będą mogli z niej korzystać od września 2022 roku.
W tej chwili dzieci i młodzież z Lubicza Dolnego ćwiczą z sali przy remizie OSP oddalonej o kilkaset metrów, tracąc czas na dotarcie do niej i powrót.
Budową nowej sali zajmie się Zakład Usług Komunalnych w Lubiczu. Prace rozpoczną się za kilka dni od robót ziemnych. – Chcielibyśmy, aby sala była gotowa do końca czerwca przyszłego roku, po to, aby w wakacje załatwić wszelkie niezbędne formalności i od września 2022 r. oddać obiekt do użytku – mówi Dorota Pruszyńska, p.o. kierownika Referatu Inwestycji.
Wioletta Pawłowska, dyrektor szkoły nie ukrywa zadowolenia z faktu, że lubicka szkoła doczeka się sali, a duża część prac budowlanych odbędzie się w wakacje. Wykonawca poinformował, że miejsce budowy zostanie zabezpieczone w taki sposób, aby nadal można było korzystać z "orlika" oraz placu zabaw.
Nowa sala gimnastyczna wraz z łącznikiem i pomieszczeniami towarzyszącymi przeznaczonymi na potrzeby socjalne: toalety (w tym dla niepełnosprawnych), natryski, szatnie, pomieszczenie trenerskie i magazyn sprzętu, będzie miała 420 m kw. powierzchni.
Na wyposażenie samej sali złożą się boisko do koszykówki, wielkości 20 m x 11 m, a także boisko do siatkówki – 18 m x 9 m - wyposażone w słupki z regulacją zawieszenia siatki, co umożliwi wykorzystanie ich także do gry w badmintona oraz tenisa. Miejsce na judo, o wymiarach 10 m x 10 m, na całości zostanie wyłożone profesjonalną matą. Nie zabraknie również nagłośnienia, równoważni gimnastycznej z regulacją wysokości i konia gimnastycznego bez łęków, drabinek mocowanych wzdłuż ściany okiennej, a także ławek gimnastycznych.
Budowa sali w Lubiczu Dolnym zostanie w pełni sfinansowana z budżetu gminy Lubicz i będzie kosztowała ponad 2 mln zł. - Mieszkańcy już od wielu lat zabiegali o tę inwestycję. Rozumiem ich potrzebę i uważam ją za ważną. Sala tuż przy szkole zdecydowanie poprawi komfort nauki w Lubiczu Dolnym – mówi wójt Marek Nicewicz.
drukuj (Szkoła w końcu doczeka się sali)
Metryka
- Data 2021-06-07
Spis Powszechny. Nie daj się naciągnąć oszustom!
Rachmistrze spisowi Narodowego Spisu Powszechnego Ludności i Mieszkań dzwonią z dwóch numerów telefonów: 22 828 88 88 oraz 22 279 99 99. Sprawdź to i nikomu nie udzielaj informacji na temat numeru konta i cennych przedmiotów w domu.
Rachmistrz spisowy ma nadany oficjalny identyfikator wydany przez Wojewódzkie Biuro Spisowe zawierający imię i nazwisko, numer, godło, informację o przetwarzaniu danych osobowych.
W naszej gminie rachmistrzami spisowymi są w tej chwili: Jadwiga Rafińska, Justyna Piasecka, Agnieszka Janiaczyk-Dąbrowska, Renata Strzelecka, Monika Kulesza i Aleksandra Sugalska.
Tożsamość rachmistrza można sprawdzić na infolinii spisowej pod numerem 22 279 99 99 i również poprzez aplikację dostępną na stronie https://rachmistrz.stat.gov.pl/
Z uwagi na panującą pandemię koronawirusa, decyzją Generalnego Komisarza Spisowego rachmistrzowie nie będą realizować wywiadów bezpośrednich (i odwiedzać respondentów w domach) aż do odwołania. Osoby, które pukają do drzwi i podają się za rachmistrzów mogą być oszustami. Prosimy zgłaszać takie przypadki na policję.
WAŻNE! Osoby, które do momentu w którym skontaktował się z nimi rachmistrz spisowy nie dopełniły obowiązku spisowego muszą odpowiedzieć na pytania rachmistrza. Nie może wówczas odmówić mówiąc, że spisze się później z wykorzystaniem aplikacji czy Infolinii.
Pamiętajmy, że za odmowę udzielenia odpowiedzi bądź podanie danych niezgodnych ze stanem faktycznym grozi kara.
Rachmistrz nie zapyta o zarobki, oszczędności, cenne przedmioty w domu, numer konta, PIN do karty czy dane logowania do bankowości internetowej. Takich pytań w formularzu spisowym nie ma!
drukuj (Spis Powszechny. Nie daj się naciągnąć oszustom!)
Metryka
- Data 2021-06-02
Geoportal. Problem z wyszukiwarką działek ewidencyjnych
Od kilku dni docierają do nas sygnały, że nie działa, stanowiąca część naszego geoportalu gminnego, wyszukiwarka działek ewidencyjnych. Prosimy o zapoznanie się z wyjaśnieniami w tej sprawie przygotowanymi przez Referat Gospodarki Przestrzennej.
Problem jest nam znany i dotyczy również, a może szczególnie, pracowników urzędu korzystających na co dzień z tego geoportalu. Problem został oczywiście zgłoszony do obsługującej nasz geoportal firmy GEO-SYSTEM. Dodatkowo skontaktowaliśmy się z odpowiedzialnym za udostępnianie danych ewidencyjnych Starostwem Powiatowym w Toruniu. Z informacji tam uzyskanych wynika, że problem leży w błędnej komunikacji sytemu powiatowego udostępniającego dane z realizowaną przez Główny Urząd Geodezji i Kartografii usługą lokalizacji działek katastralnych (ULDK) i nie dotyczy tylko naszego, toruńskiego, powiatu.
Jak dowiedzieliśmy się nieoficjalnie, trwają ustalenia po czyjej stronie leży wina. Należy przypuszczać, że autorzy oprogramowania systemu powiatowego i GUGIK wkrótce to ustalą i zajmą się rozwiązywaniem problemu. Do tego czasu pozostaje nam wyszukiwanie „ręczne” lub za pomocą bliskiego znanego adresu – wyszukiwarka adresów działa na naszym geoportalu bezbłędnie. Dodatkowo można się posłużyć działającą wewnętrzną wyszukiwarką działek na geoportalu powiatowym.
Za utrudnienia przepraszamy i tak jak Państwo z niecierpliwością oczekujemy na usunięcie usterki.
drukuj (Geoportal. Problem z wyszukiwarką działek ewidencyjnych)
Metryka
- Data 2021-06-02
W piątek urząd będzie zamknięty. W poniedziałek USC czynne przez część dnia [Aktualizacja]
Uwaga! W piątek 4 czerwca Urząd Gminy Lubicz nie pracuje. W poniedziałek 7 czerwca USC (dowody i akty) będzie nieczynny w godz. 9.30 -12.00. Zapraszamy rano (od 7.15) lub od 12.00 do 15.00.
Przypominamy też, że w związku z czwartkowym Bożym Ciałem, który jest świętem, zmianie uległy terminy wywozu odpadów. Pisaliśmy o tym tutaj.
drukuj (W piątek urząd będzie zamknięty. W poniedziałek USC czynne przez część dnia [Aktualizacja])
Metryka
- Data 2021-06-01
Pozbądź się szkodliwego azbestu
Urząd Gminy Lubicz ogłasza uzupełniający termin naboru wniosków na dofinansowanie w zakresie demontażu, transportu oraz unieszkodliwiania wyrobów zawierających azbest z terenu gminy Lubicz.
Wnioski należy składać – na formularzu, który można pobrać tutaj – w terminie od 15 czerwca do 15 lipca 2021 roku:
1) bezpośrednio w Biurze Podawczym Urzędu Gminy Lubicz, od poniedziałku do piątku, w godzinach przyjmowania interesantów;
2) pocztą na adres Urzędu Gminy Lubicz, ul. Toruńska 21, 87-162 Lubicz Dolny, z dopiskiem na kopercie „DOFINANSOWANIE AZBEST” (decyduje data wpływu korespondencji do Urzędu);
3) drogą elektroniczną poprzez elektroniczną Platformę Usług Administracji Publicznej (EPUAP) po podpisaniu certyfikatem kwalifikowanym lub profilem zaufanym.
Złożony wniosek powinien zawierać następujące załączniki:
- Kserokopię dokumentu potwierdzającego tytuł prawny do nieruchomości[1];
- Kopię zgłoszenia robót w Starostwie Powiatowym;
- Zaświadczenie/Oświadczenie o pomocy de minimis – (druk do pobrania w Urzędzie Gminy Lubicz - pokój nr 1, lub na stronie internetowej urzędu).
Z darmowego odbioru azbestu mogą skorzystać mieszkańcy, których posesje są ujęte w „Bazie azbestowej zawierającej informację z inwentaryzacji wyrobów zawierających azbest”.
Z uwagi na ograniczone środki decyduje kolejność zgłoszeń.
Wnioski niekompletne i nie uzupełnione w wyznaczonym terminie oraz złożone po terminie pozostaną bez rozpatrzenia.
Szczegółowych informacji udzielą pracownicy Referatu Gospodarki Odpadami - Urząd Gminy Lubicz, pok. nr 1, e-mail go@lubicz.pl, nr tel. 56 621 21 28.
[1] W przypadku współwłaścicieli należy dołączyć zgodę od wszystkich właścicieli na realizację zadania. W przypadku, gdy posiadacz nieruchomości nie jest jej właścicielem/użytkownikiem wieczystym, do wniosku dołącza się zgodę właściciela/i nieruchomości na wykonanie inwestycji.
drukuj (Pozbądź się szkodliwego azbestu)
Metryka
- Data 2021-05-31
Można dostać do 30 tys. zł!
1 czerwca w Urzędzie Gminy Lubicz uruchamiamy specjalne stanowisko, gdzie będzie można otrzymać pomoc w wypełnieniu i złożeniu wniosku o dotację na wymianę starego źródła ciepła.
- Podjęcie w 2018 roku, przez Radę Gminy Lubicz, uchwały w sprawie zasad udzielania i rozliczania dotacji celowej na dofinansowanie zakupu, montażu i uruchomienia źródła ciepła wówczas było bardzo dobrym pomysłem – mówi Zbigniew Barcikowski, przewodniczący Rady Gminy Lubicz. - Program ten, w swoich założeniach jasny, przejrzysty i niewymagający nadmiernych formalności, stał się popularnym sposobem na dofinansowanie wymiany źródeł ciepła wśród mieszkańców naszej gminy. Wtedy nie można było tego powiedzieć o raczkujących wówczas programach rządowych, wymagających wypełniania obszernych i skomplikowanych wniosków.
W oparciu o tę uchwałę rady gminy, we wspomnianym 2018 roku, na wymianę „kopciuchów” w budżecie gminy Lubicz przeznaczono 135 tys. zł, z czego skorzystało 45 beneficjentów. Rok później wsparcie ze środków własnych gminy urosło do 252 tys. zł (84 beneficjentów), a w 2020 było to kolejne 165 tys. zł (55 beneficjentów).
Przez ten czas łącznie na dopłaty do wymiany pieców gmina przeznaczyła ponad pół miliona złotych.
Jednakże w ostatnim czasie nastąpiły zmiany w przepisach, dotyczące m.in. kwalifikowania i oceny wniosków, które to zmiany wymusiły konieczność modyfikacji dotychczasowych zasad funkcjonowania programu gminnego. - Po głębokiej analizie uznano, że najwłaściwszym rozwiązaniem będzie uchylenie uchwały, ponieważ i tak nie miałaby ona zastosowania z uwagi na decyzję o nieprzeznaczaniu w tym roku środków finansowych na dofinansowanie starych źródeł ciepła. Taka też uchwała uchylająca została podjęta – mówi przewodniczący. - Nie oznacza to jednakże odejścia od idei wspierania przedsięwzięć mających na celu ochronę środowiska i nie zamyka drogi podjęcia stosownej uchwały w przyszłości.
W ostatnim czasie w funkcjonującym od kilku lat rządowym programie pn. „Czyste Powietrze” znaczącej zmianie uległy procedury przyznawania środków, dzięki czemu stał się on wiodącym narzędziem w walce z otaczającym nas smogiem. Uproszczono procedury i zwiększono pulę środków, dzięki czemu, wymieniający źródło ciepła może otrzymać dużo lepsze wsparcie niż w programie gminnym, a ilość beneficjentów nie jest w tym przypadku ograniczona. Również i ten czynnik brany był pod uwagę przy podejmowaniu decyzji o zawieszeniu funkcjonowania gminnego programu.
Co istotne, na mocy porozumienia zawartego przez wójta gminy Lubicz z Wojewódzkim Funduszem Ochrony Środowiska i Gospodarki Wodnej w Toruniu, od 1 czerwca zostanie uruchomione w urzędzie specjalne stanowisko, gdzie będzie można otrzymać pomoc w wypełnieniu i złożeniu wniosku o dotację na wymianę starego źródła ciepła. Wsparcie, jakie mieszkańcy mogą uzyskać w ramach tego programu to ok. 30 proc. inwestycji, maksymalnie do kwoty 30 tys. zł. Nie ma też ograniczenia w ilości gospodarstw domowych, które o takie wsparcie mogą się ubiegać. Na spotkanie w tej sprawie można się umawiać pod nr tel. 56 621 21 29.
Wszystkich zainteresowanych programem „Czyste Powietrze” zapraszamy także na spotkanie on-line, które odbędzie się 8 czerwca. O szczegółach pisaliśmy tutaj.
Należy również podkreślić, że Marek Nicewicz, wójt gminy Lubicz przyjął nowe założenia polityki proekologicznej. Obok funkcjonującego nadal systemu dopłat do zakupu przydomowych oczyszczalni ścieków oraz programu usuwania azbestu z pokryć dachowych (dodatkowy nabór rusza w czerwcu, o czym szerzej napiszemy po weekendzie), pozyskano kwotę 971 tys. zł. na realizację programu budowy instalacji fotowoltaicznych, dedykowanego odbiorcom indywidualnym (po raz pierwszy w historii gminy). Podjęto również działania mające na celu sprawdzanie jakości powietrza, szczególnie w zimowym okresie grzewczym. W tym celu, we współpracy z policją i w porozumieniu z dwoma sąsiednimi gminami, zostanie zakupiony dron wyposażony w specjalistyczne urządzenia pomiarowe monitorujące jakości powietrza na terenie naszej gminy.
drukuj (Można dostać do 30 tys. zł!)
Metryka
- Data 2021-05-28
Śmieci. Zmiany w wywozie i pracy PSZOK
Od 1 czerwca do 31 sierpnia wywóz śmieci zmieszanych w zabudowie rozproszonej będzie raz w tygodniu, a PSZOK będzie już otwarty codziennie. Zmieniają się też terminy odbioru odpadów w związku ze świętem Bożego Ciała.
W okresie pomiędzy 2 a 4 czerwca zmieniają się terminy odbioru odpadów w związku ze świętem Bożego Ciała, który jest dniem wolnym.
Środa, 2 czerwca:
- Lubicz Dolny (trasa czwartkowa) -
Ciemna, Dworcowa od 19, Dworcowa od 36, Grębocka od 1-5, Grębocka od 2 -6, Kolejowa, Konwaliowa, Krótka, Magnoliowa, Narcyzowa, Niezapominajki, Spółdzielcza bloki, Szkolna, Topolowa, Toruńska, Wilczy Młyn, Zbożowa;
- Lubicz Górny (trasa czwartkowa) –
Kołłątaja bloki, Paderewskiego bloki, Rataja bloki;
- Młyniec Pierwszy;
- Młyniec Drugi.
Piątek, 4 czerwca:
- Lubicz Dolny (trasa czwartkowa) -
Akacjowa, Brzozowa, Jesionowa, Kasztanowa, Klonowa, Leśna, Liliowa, Lipowa, Młyńska, Różana, Sosnowa, Tulipanowa, Podgórna, Leśna Polana;
- Józefowo;
- Mierzynek.
Od 1 czerwca do 31 sierpnia odbiór odpadów zmieszanych w zabudowie rozproszonej będzie raz w tygodniu. Harmonogram znajdziecie tutaj.
Informacje na temat reklamacji nieodebranych śmieci przeczytacie tutaj.
Od 1 czerwca zmieniają się także godziny otwarcia Punktu Selektywnej Zbiórki Odpadów Komunalnych, który teraz będzie czynny od poniedziałku do piątku, od 10.00 do 18.00, a w soboty od 9.00 do 14.00.
drukuj (Śmieci. Zmiany w wywozie i pracy PSZOK)
Metryka
- Data 2021-05-28
500 +. Komunikat dla rodziców
Gminny Ośrodek Pomocy Społecznej w Lubiczu przypomina o konieczności złożenia wniosku o ustalenie prawa do świadczenia wychowawczego (tzw. 500+) na okres świadczeniowy 2021/2022, który rozpoczyna się 1 czerwca br.
drukuj (500 +. Komunikat dla rodziców)
Metryka
- Data 2021-05-27
Czyste Powietrze. Spotkanie informacyjne dla mieszkańców
8 czerwca w godz. 15.00 -16.30 odbędzie się spotkanie informacyjne na temat rządowego programu "Czyste Powietrze". dzięki któremu mieszkańcy gminy Lubicz mogą uzyskać dofinansowanie do wymiany źródeł ciepła w domach jednorodzinnych i termomodernizacji budynków.
Spotkanie odbędzie się w formie zdalnej z użyciem platformy Microsoft Teams.
W trakcie spotkania zostaną omówione m.in. zasady Programu, proces składania wniosków, kwoty dotacji. Przewidziany jest także czas na zadawanie pytań.
Zgłoszenia prosimy przesyłać do 7 czerwca do godz. 10.00 na adres: osw@lubicz.pl. W treści należy podać: imię, nazwisko, miejsce zamieszkania oraz adres mailowy do korespondencji.
Przed szkoleniem, na podany przez Państwa adres e-mail, zostanie wysłany link do szkolenia. Po zalogowaniu będzie możliwy udział on-line.
Udział w wydarzeniu jest bezpłatny.
Liczba miejsc (ze względu na ograniczenia techniczne platformy Microsoft Teams) jest ograniczona (decyduje kolejność zgłoszeń).
drukuj (Czyste Powietrze. Spotkanie informacyjne dla mieszkańców)
Metryka
- Data 2021-05-27
Majowa sesja Rady Gminy Lubicz
XXXI sesja Rady Gminy Lubicz odbędzie się 27 maja (czwartek) o godz. 12.00 w świetlicy wiejskiej w Krobi (ul. Olimpijska 14). Zainteresowanych zachęcamy do zapoznania się z proponowanym porządkiem obrad.
>>> Planowany porządek obrad znajduje się tutaj.
>>> Transmisja sesji - klikamy tutaj.
drukuj (Majowa sesja Rady Gminy Lubicz)
Metryka
- Data 2021-05-27
Uwaga! W najbliższą sobotę i niedzielę nie będzie szczepień
Z ostatniej chwili! W weekend 22 i 23 maja Punkt Szczepień Powszechnych w Lubiczu Górnym będzie nieczynny, ponieważ nie dotarł transport szczepionek. Osobom, które miały zaplanowaną wizytę na sobotę lub niedzielę zostanie wyznaczony inny termin.
drukuj (Uwaga! W najbliższą sobotę i niedzielę nie będzie szczepień)
Metryka
- Data 2021-05-21
Majowy numer "Gońca gminnego"
Mamy już dla Was najnowsze wydanie gminnego biuletynu "Goniec gminny". A w nim m.in. informacje o budowie kolektora ściekowego do Torunia i dwóch pętli autobusowych w Lubiczu Górnym oraz w Grabowcu, a także przegląd prac w naszych sołectwach.
"Goniec" jest dostępny tutaj, a w formie papierowej powinien być u Was na początku przyszłego tygodnia.
drukuj (Majowy numer "Gońca gminnego")
Metryka
- Data 2021-05-20
Spisz się w Narodowym Spisie Powszechnym
Pamiętacie? Do 30 września mamy obowiązek spisać się w Narodowym Spisie Powszechnym Ludności i Mieszkań 2021. Zachętą do samospisu jest loteria z nagrodami. Na terenie gminy pracują również rachmistrzowie.
Najbardziej popularnym i wskazanym sposobem spisania się jest wypełnienie formularza w internecie. Możecie to zrobić tutaj.
Jeśli już dokonałeś samospisu? Weź udział w Loterii i zdobądź jedną z setek nagród. Zarejestruj otrzymany kod do 7 lipca na stronie Loterii. Oglądaj transmisje online z losowań i sprawdź, czy wygrałeś! Im szybciej zarejestrujesz się w Loterii, tym więcej szans masz na wygraną!
Na terenie naszej gminy pracę rozpoczęli również rachmistrzowie na chwilę obecną przeprowadzają tylko wywiady telefoniczne. Są to następujące osoby:
Jadwiga Rafińska
Justyna Piasecka
Agnieszka Janiaczyk-Dąbrowska
Renata Strzelecka
Monika Kulesza
Aleksandra Sugalska.
drukuj (Spisz się w Narodowym Spisie Powszechnym)
Metryka
- Data 2021-05-20
Wieczorny objazd gminy przez radnych
Radni gminy Lubicz objechali całą gminę po to, aby przyjrzeć się gminnej infrastrukturze technicznej, w tym m.in. oświetleniu naszych ulic.
Uwagi napływające do radnych od sołtysów i mieszkańców są weryfikowane w ramach takich cyklicznych objazdów. Dzięki temu skuteczniej i sprawniej można zarządzać wydatkami publicznymi, najpierw sprawy najpilniejsze wpływające na bezpieczeństwo mieszkańców, w następnej kolejności te wpływające na komfort, estetykę i wygodę.
Działanie oświetlenia trzeba było sprawdzić o zmroku, dlatego radni na objazd w tej sprawie wybrali się późnym wieczorem, przeznaczając na to cztery dni w tym i w poprzednim tygodniu.
Przegląd dotyczył całej gminy. Wnioski zostaną spisane jako propozycje aktualnych działań oraz podczas planowania przyszłorocznego budżetu.
drukuj (Wieczorny objazd gminy przez radnych)
Metryka
- Data 2021-05-20
Centralna Ewidencja Emisyjności Budynków
1 lipca 2021 r. zostanie wprowadzony obowiązek złożenia deklaracji źródeł ciepła i spalania paliw w budynkach do Centralnej Ewidencji Emisyjności Budynków (CEEB). Deklarację będzie musiał złożyć każdy właściciel nieruchomości.
Utworzenie Centralnej Ewidencji Emisyjności Budynków (CEEB) przewiduje nowelizacja ustawy o wspieraniu termomodernizacji i remontów z 17 września 2020 r.
Budowę systemu powierzono Głównemu Urzędowi Nadzoru Budowlanego. Celem stworzenia centralnej bazy jest poprawa jakości powietrza w Polsce - likwidacja głównej przyczyny zanieczyszczeń - emisji substancji powodujących smog z pieców węglowych. CEEB będzie ważnym narzędziem wspierającym wymianę starych kotłów grzewczych, ale również miejscem, gdzie dostępne znajdą się informacje na temat wszystkich programów finansowania wymiany pieców. CEEB będzie stanowić także narzędzie dla organów administracji centralnej i samorządowej do realizacji polityki niskoemisyjnej. Dla obywateli zostaną uruchomione usługi, które przyczynią się do poprawy stanu technicznego budynków w zakresie bezpieczeństwa, np. zamówienie przeglądu kominiarskiego czy inwentaryzacji budynku.
Zgodnie z ustawą o termomodernizacji w deklaracji trzeba będzie zawrzeć poszczególne informacje:
- imię i nazwisko oraz nazwę właściciela lub zarządcy budynku lub lokalu oraz adres miejsca zamieszkania lub siedziby
- adres nieruchomości, w obrębie której eksploatowane jest źródło ciepła lub źródło spalania paliw
- numer telefonu właściciela lub zarządcy (opcjonalnie)
- adres numer (opcjonalnie)
- informacje o liczbie i rodzaju eksploatowanych w obrębie nieruchomości źródeł ciepła i źródeł spalania spalin oraz o ich przeznaczeniu i wykorzystywanych w nich paliwach.
W jaki sposób będzie można złożyć deklaracje?
- W formie elektronicznej, czyli przez internet – jest to najszybszy oraz najwygodniejszy sposób. Umożliwia on oszczędność czasu i pieniędzy, a deklarację składamy bez wychodzenia z domu;
- w formie papierowej – wypełniony dokument wysyłamy listem lub składamy osobiście w urzędzie gminy.
Na wysłanie deklaracji obywatele będą mieli 12 miesięcy w przypadku budynków już istniejących, a w przypadku nowo powstałych obiektów 14 dni od uruchomienia nowego źródła ciepła lub spalania paliw.
Stosowne wzory deklaracji zamieścimy na naszej stronie internetowej z chwilą ich opublikowania przez Główny Urząd Nadzoru Budowlanego.
drukuj (Centralna Ewidencja Emisyjności Budynków)
Metryka
- Data 2021-05-19
Konkurs na realizację zadań z zakresu zdrowia publicznego
Wójt Gminy Lubicz ogłasza konkurs ofert na realizację zadań z zakresu zdrowia publicznego prowadzonego w ramach Gminnego Programu Profilaktyki i Rozwiązywania Problemów Alkoholowych i Przeciwdziałania Narkomanii na rok 2021.
Zainteresowanych zachęcamy do zapoznania się ze szczegółami - tutaj.
drukuj (Konkurs na realizację zadań z zakresu zdrowia publicznego)
Metryka
- Data 2021-05-17
Wyłożenie planu Nowej Wsi
Do 18 czerwca trwa wyłożenie projektu miejscowego planu zagospodarowania przestrzennego części wsi Nowa Wieś. 1 czerwca odbędzie się dyskusja publiczna, która zostanie przeprowadzona z wykorzystaniem platformy Microsoft Teams.
Wyłożony plan obejmuje obszar ograniczony od zachodu i północy granicą obrębu ewidencyjnego Nowa Wieś, od wschodu i południa granicą obowiązującego planu miejscowego wraz z prognozą oddziaływania na środowisko.
Z projektem można zapoznać się od dnia wyłożenia w siedzibie Urzędu Gminy Lubicz w Lubiczu Dolnym przy ul. Toruńskiej 21, w sali obsługi interesantów (parter, wejście z tyłu budynku), w godzinach pracy urzędu po uprzednim umówieniu się telefonicznym pod nr tel. 56 621 21 06.
Ponadto, projekt planu został udostępniony w Biuletynie Informacji Publicznej pod adresem: https://www.bip.lubicz.pl/7779,2021
Zainteresowani uwagi i wnioski dotyczące planu powinni złożyć w formie pisemnej w Biurze Podawczym Urzędu Gminy Lubicz lub przesłać je pocztą w terminie do dnia 9 lipca, o czym mówi art. 40 ustawy z dnia 3 października 2008 r. o udostępnianiu informacji o środowisku i jego ochronie, udziale społeczeństwa w ochronie środowiska oraz o ocenach oddziaływania na środowisko.
Dodatkowo, 1 czerwca o godzinie 11.00 odbędzie się dyskusja publiczna, która z powodu pandemii Covid-19 zostanie przeprowadzona za pomocą środków porozumiewania się na odległość (zgodnie z art. 8d ust. 2 ustawy o planowaniu i zagospodarowaniu przestrzennym) z wykorzystaniem platformy Microsoft Teams. Udział w tej debacie możliwy jest wyłącznie po wcześniejszym zgłoszeniu do godz. 9.00 na adres e-mail: info@lubicz.pl. Szczegółowy sposób postępowania dla chętnych do udziału w dyskusji opisany jest w ogłoszeniu "OGŁOSZENIE GP.6721.1.2019.VK" dostępnym na stronie bip.lubicz.pl.
drukuj (Wyłożenie planu Nowej Wsi)
Metryka
- Data 2021-05-17
Renegade. Ćwiczenia Sił Zbrojnych [AKTUALIZACJA]
W dniach 17-21 maja 2021 odbywa się ćwiczenie RENEGADE z wykorzystaniem systemów alarmowania ludności. Nadany zostanie sygnał alarmowy (syrena) dotyczący zagrożenia z powietrza.
Aktualizacja z 20.05. Praktyczna część ćwiczenia RENEGADE jest aktualnie realizowana w gminie Lubicz. Mieszkańcy są informowani o zagrożeniu z powietrza poprzez modulowany sygnał puszczany przez syreny ochotniczych straży pożarnych. Po usłyszeniu takiego sygnału mieszkańcy powinni schronić się w bezpiecznym miejscu. Przypominamy, że są to ćwiczenia. Odwołanie alarmu nastąpi poprzez ciągły sygnał przez 3 minuty.
drukuj (Renegade. Ćwiczenia Sił Zbrojnych [AKTUALIZACJA])
Metryka
- Data 2021-05-17
MŚP - instrumenty zwrotne, tarcza antykryzysowa
Stowarzyszenie Europa Kujaw i Pomorza zaprasza przedsiębiorców do udziału w spotkaniu informacyjnym za pomocą pomocą platformy Microsoft Teams, które odbędzie się 20 maja od godziny 10.00.
Będzie to pierwsze ze spotkań dla przedsiębiorców w ramach projektu "Usytuowanie na poziomie samorządów lokalnych instrumentów wsparcia dla MŚP, działających w oparciu o model wielopoziomowego zarządzania regionem" finansowanego z Narodowego Centrum Badań i Rozwoju w ramach Programu Strategicznego Gospostrateg.
Podczas spotkania będą szczegółowo omówione zwrotne produkty finansowe, tarcza antykryzysowa oraz instrumenty rynku pracy dostępne dla MŚP. Na koniec zostaną przedstawione założenia i planowane rezultaty Projektu Regiogmina.
Rejestracja na szkolenie: http://ekip.kujawsko-pomorskie.pl/index.php/szkolenia
drukuj (MŚP - instrumenty zwrotne, tarcza antykryzysowa)
Metryka
- Data 2021-05-17
„Sołtys Roku Powiatu Toruńskiego". Zgłoś swojego kandydata!
Sołtys to wyjątkowa postać w życiu społeczności lokalnej. Potrafi słuchać mieszkańców, motywować ich do działania, jest najbliżej ich trosk i problemów, dba o rozwój swojej małej ojczyzny. Na czele wsi położonych na terenie powiatu toruńskiego stoi 131 sołtysów. Konkurs „Sołtys Roku Powiatu Toruńskiego" to doskonała okazja do zaprezentowania wyjątkowych gospodarzy naszych miejscowości.
Jest to już 9. edycja konkursu organizowanego przez Starostwo Powiatowe w Toruniu. Konkursu, do którego może zostać zgłoszony sołtys pełniący tę funkcję przez co najmniej jedną pełną kadencję i piastujący to stanowisko w momencie zgłoszenia. Sołtysi wyróżnieni w poprzednich edycjach konkursu (ale nie laureaci) mogą kandydować ponownie.
Kandydatów zgłaszać mogą zarówno mieszkańcy sołectwa, rady sołeckie i parafialne, koła gospodyń wiejskich czy organizacje pozarządowe, jak również władze samorządowe oraz radni.
Zgłoszenia do 31 maja br. – decyduje data stempla pocztowego.
Wyboru laureata konkursu oraz osób wyróżnionych dokona komisja, do pracy w której zaproszeni zostaną m.in.: laureat poprzedniej edycji konkursu, przedstawiciele Kujawsko-Pomorskiego Ośrodka Doradztwa Rolniczego, Powiatowej Izby Rolniczej, gmin powiatu toruńskiego, Zarządu czy Rady Powiatu Toruńskiego.
Zwycięzca otrzyma nagrodę finansową lub rzeczową o wartości 1 tys. zł, natomiast dwie osoby wyróżnione nagrody o wartości 500 zł każda.
Regulamin konkursu oraz formularz zgłoszeniowy znajduje się na stronie internetowej powiatu - tutaj.
Rozstrzygnięcie konkursu i wręczenie nagród planowane jest podczas XIII Zjazdu Sołtysów.
Może to właśnie w twojej miejscowości działa aktywnie sołtys, który zasługuje na ten zaszczytny tytuł? Nie wahaj się, zgłoś go już dziś!
Źródło: Starostwo Powiatowe w Toruniu
drukuj („Sołtys Roku Powiatu Toruńskiego". Zgłoś swojego kandydata!)
Metryka
- Data 2021-05-17
Uwaga na spacerujące łosie
W ostatnich dniach na do Urzędu Gminy Lubicz docierają zgłoszenia od mieszkańców miejscowości Nowa Wieś, Złotoria, Kopanino i Grabowiec o pojawiających się w okolicy łosiach. Informujemy, że zwierzęta te nie należą do zwierząt niebezpiecznych i rzadko atakują człowieka. Może się jednak zdarzyć, że w obliczu zagrożenia, w celu ochrony swojego terenu lub potomstwa, łoś taki może zachować się niebezpiecznie.
Bez względu na okoliczności spotkania z łosiem, należy zachować bezpieczną odległość i pozwolić mu spokojnie najeść się lub odejść.
Jeżeli ktoś spotka łosia, nie powinien zbyt blisko do niego podchodzić, bo co prawda rzadko, ale jeśli ma w okolicy młode może zachować się niebezpiecznie.
Łosie zaliczane są do tzw. grubej zwierzyny, która objęta jest okresem ochronnym. W Polsce od 2001 roku obowiązuje tzw. moratorium, czyli zawieszenie polowań i całoroczny okres ochronny.
Szczególną uwagę kierujemy do właścicieli psów, którzy odbywają spacery ze swoimi podopiecznymi w terenach leśnych. Pamiętajmy - spacerując z psem po lesie, należy trzymać go na uwięzi!
drukuj (Uwaga na spacerujące łosie)
Metryka
- Data 2021-05-14
Urząd Gminy Lubicz. Wizyta bez umawiania
Od poniedziałku 17 maja znosimy w urzędzie konieczność wcześniejszego umawiania się na wizyty, choć w przypadku głównego budynku nadal zalecamy telefon uprzedzający, co znacząco usprawni proces obsługi.
Kontakty >>> referaty i samodzielne stanowiska
Do budynku B (m.in. USC) zapraszamy już bez konieczności zapowiadania się, ale z drugiej strony, ze względu na jednoosobowe stanowiska, może się zdarzyć, że tutaj trzeba będzie poczekać w kolejce.
Oczywiście w każdym przypadku prosimy o zachowanie obowiązujących zasad epidemicznych (dystans, dezynfekcja, maseczka).
drukuj (Urząd Gminy Lubicz. Wizyta bez umawiania)
Metryka
- Data 2021-05-14
Gminne spacery nordic walking
Wszyscy jesteśmy głodni ruchu, aktywności i spotkań, więc wraz z poluzowaniem obostrzeń mamy dla Was pierwszą propozycję. To cykl „Gminnych spacerów nordic walking” pod kierunkiem instruktora. Będziemy spotykać się przez cztery soboty od 15 maja.
Instruktor zrobi wprowadzenie, pomoże ustawić kilki, przeprowadzi rozgrzewkę i poprowadzi marsz, służąc radami w wypracowaniu właściwej techniki chodzenia.
Pierwsza z proponowanych tras ma długość 7,5 km.
Zbiórka w najbliższą sobotę 15 maja o godz. 10.00.
Start: na końcu ulicy Dworcowej w Lubiczu Dolnym na skrzyżowaniu z drogą prowadzącą do ujęcia wody Toruńskich Wodociągów, gdzie można zostawić swój samochód.
Będziemy poruszać się m.in. Traktem Jedwabno, przez geometryczny środek gminy w Jedwabnie, śladem dawnej drogi królewskiej, zataczając pętlę do Lubicza Dolnego – do miejsca startu.
Czas – 1,5 do 2 godzin, spalonych ok. 500 kcal (nordic walking to sport angażujący ok. 90 proc. wszystkich mięśni).
Obowiązuje aktualny reżim sanitarny.
Uczestnictwo bezpłatne. Wydarzenie jest finansowane z Gminnego Programu Profilaktyki, Rozwiązywania Problemów Alkoholowych i Przeciwdziałania Narkomanii. Przypominamy o zabraniu kijków.
Więcej na temat traktu Jedwabno przeczytacie tutaj.
drukuj (Gminne spacery nordic walking)
Metryka
- Data 2021-05-12
Place zabaw. Jak korzystać z nich bezpiecznie?
Prosimy o zapoznanie się z wytycznymi epidemiologicznymi dla funkcjonowania placów zabaw w trakcie epidemii przygotowane przez Głównego Inspektora Sanitarnego w celu zwiększenia bezpieczeństwa i ochrony zdrowia dzieci i ich opiekunów.
Zasady organizacji i funkcjonowania placów zabaw w dobie COVID-19.
- Uczestnikiem placu zabaw może być dziecko zdrowe, bez objawów chorobowych sugerujących chorobę zakaźną (dotyczy to również opiekunów).
- Opiekunowie powinni zachować dystans społeczny między sobą wynoszący co najmniej 2 m (dotyczy to osób, które wspólnie nie zamieszkują lub nie gospodarują).
- W sytuacji, gdy na placu zabaw nie można zachować dystansu społecznego wynoszącego 2 m z uwagi na dużą liczbę przebywających osób, zaleca się rezygnację z rekreacji lub jej kontynuację w późniejszym czasie.
- Zaleca się, aby opiekunowie wyposażeni byli w środki pozwalające na utrzymanie higieny dziecka np. chusteczki do umycia rąk oraz czuwali, nad przestrzeganiem podstawowych zasad higieny (np. unikanie bliskiego kontaktu twarzą w twarz z innymi uczestnikami podczas zabawy, kasłanie/kichanie w chusteczkę lub zgięcie łokciowe – nie w kierunku innych).
- Należy bezwzględnie pamiętać o higienie rąk dziecka oraz opiekuna każdorazowo
po zakończonej zabawie na placu zabaw[1]. - Nie zaleca się angażowania w opiekę nad dzieckiem (lub dziećmi) korzystającym z placu zabaw osób powyżej 60 roku życia lub z istotnymi problemami zdrowotnymi.
- Nie jest wskazane spożywanie posiłków oraz napoi w trakcie zabawy.
- W przypadku gdy dziecko manifestuje bądź przejawia niepokojące objawy choroby należy niezwłocznie przerwać pobyt na placu zabaw.
- W przypadku gdy dziecko podczas zabawy korzysta z własnych zabawek, opiekunowie powinni na bieżąco pilnować, aby nie były one udostępniane innym dzieciom, a po powrocie do domu zostały przynajmniej umyte z użyciem detergentu lub wyprane.
- Dezynfekcję zabawek używanych na placu zabaw przeprowadza się zgodnie z przeznaczeniem danego produktu biobójczego. Wykaz produktów biobójczych przeznaczonych również do dezynfekcji powierzchni zabawek znajduje się pod linkiem : http://bip.urpl.gov.pl/pl/biuletyny-i-wykazy/produkty-biob%C3%B3jcze
- Informacji dotyczącej bezpieczeństwa stosowania produktu biobójczego, jak również niezbędnych czasów w zakresie samej dezynfekcji, czy konieczności przewietrzenia pomieszczenia po zastosowaniu produktu, w tym również konieczności odłożenia danego przedmiotu (zabawki) przed kolejnym użyciem należy szukać na oznakowaniu opakowania danego produktu biobójczego.
- Właściciel lub zarządca placu zabaw utrzymuje i użytkuje go zgodnie z przeznaczeniem, w szczególności dotyczy to zachowania należytego stanu sanitarno-technicznego i estetycznego poprzez nie dopuszczanie do nadmiernego pogorszenia jego właściwości użytkowych i sprawności technicznej[2].
- W przypadku korzystania z placów zabaw przez grupy zorganizowane (np. grupy żłobkowe/przedszkolne/wczesnoszkolne nieposiadające własnego terenu do rekreacji) zaleca się, aby właściciel lub zarządca placu zabaw w regulaminie obiektu wskazał godziny użytkowania dedykowane tym grupom, wywieszając go w widocznym miejscu na tablicy ogłoszeń. Zaleca się korzystanie z placu zabaw przez dzieci z jednej grupy, środowiska.
- Właściciel lub zarządca placu zabaw zapewnia właściwy stan sanitarno-higieniczny obiektu[3]in. poprzez zlokalizowanie odpowiedniej liczby pojemników na odpady komunalne, zależnie od wielkości obiektu i liczby przebywających osób.
- Właściciel lub zarządca placu zabaw monitoruje codziennie prace porządkowe,
ze szczególnym uwzględnieniem regularnego czyszczenia sprzętu i wyposażenia placu zabaw z użyciem detergentu i/lub dezynfekowania powierzchni dotykowych. Dezynfekcja przestrzeni placu zabaw powinna odbywać się w czasie, gdy nie będzie na jego terenie innych osób. - W przypadku gdy na placu zabaw zlokalizowana jest piaskownica, właściciel lub zarządca zobowiązany jest do zapewnienia spełnienia wymagań higienicznych
poprzez:
- ogradzanie terenów placów zabaw,
- zasłanianie piaskownic na noc i w innych okresach, gdy nie jest użytkowana,
- wymienianie piasku w piaskownicy co najmniej przed oraz w trakcie sezonu letniego,
- wymienianie piasku w piaskownicy każdorazowo po stwierdzeniu w nim obecności widocznych zanieczyszczeń (odpadów, odchodów zwierzęcych i innych).
- Zaleca się (w miarę możliwości) wywieszanie na tablicy ogłoszeń przy placu zabaw ogólnych zasad zachowania bezpieczeństwa epidemiologicznego, oraz numerów telefonów do stacji sanitarno-epidemiologicznej właściwej ze względu na lokalizację placu zabaw, w tym również do służb medycznych.
- Zaleca się bieżące śledzenie informacji Głównego Inspektora Sanitarnego i Ministra Zdrowia, dostępnych na stronach gov.pl lub https://www.gov.pl/web/koronawirus/, a także obowiązujących przepisów prawa.
[1] https://gis.gov.pl/zdrowie/zasady-prawidlowego-mycia-rak/
[2] art. 61 ustawy Prawo budowlane https://www.arslege.pl/obowiazki-wlasciciela-lub-zarzadcy-przy-utrzymywaniu-obiektu/k36/a8004/
[3] Art. 22 ust. 1 ustawy o zapobieganiu oraz zwalczaniu zakażeń i chorób zakaźnych u ludzi https://www.lexlege.pl/ustawa-o-zapobieganiu-oraz-zwalczaniu-zakazen-i-chorob-zakaznych-u-ludzi/art-22/
Źródło: gov.pl
drukuj (Place zabaw. Jak korzystać z nich bezpiecznie?)
Metryka
- Data 2021-05-11
"Teleopaski" dla osób niesamodzielnych
Nasza gmina bierze udział w projekcie, który zakłada utworzenie Kujawsko-Pomorskiego Telecentrum oraz świadczenie usług teleopieki w trybie 24 godziny na dobę, 7 dni w tygodniu.
Gmina Lubicz jako partner przystąpiła do projektu „Kujawsko-Pomorska Teleopieka” współfinansowanego ze środków UE, a realizowanego przez województwo. Projekt ma na celu zwiększenie dostępu do usług społecznych świadczonych w środowisku lokalnym przy wykorzystaniu nowoczesnych technologii. Skierowany jest do osób potrzebujących wsparcia w codziennym funkcjonowaniu. Zakłada utworzenie Kujawsko-Pomorskiego Telecentrum oraz świadczenie usług teleopieki w trybie 24 godziny na dobę, 7 dni w tygodniu.
Osoby chętne zainteresowane udziałem w projekcie zapraszamy do kontaktu z Gminnym Ośrodkiem Pomocy Społecznej w Lubiczu, nr tel. 56 647 21 55.
Więcej na ten temat można przeczytać na stronie lubickiego GOPS-u.
drukuj ("Teleopaski" dla osób niesamodzielnych)
Metryka
- Data 2021-05-05
Krwiodawcy, w sobotę spotykamy się w Lubiczu Dolnym
Kolejny raz na zaproszenie Klubu Honorowych Dawców Krwi Gminy Lubicz przyjedzie do nas krwiobus. Wszystkich, którzy mogą pomóc, oddając krew zapraszamy w godzinach 10.00-14.00.
Specjalistyczny autobus będzie czekał na chętnych 8 maja na parkingu przy USC w Lubiczu Dolnym.
Jeśli nie wiesz jak przygotować się do oddania krwi, zapoznaj się z informacjami Regionalnego Centrum Krwiodawstwa i Krwiolecznictwa w Bydgoszczy.
drukuj (Krwiodawcy, w sobotę spotykamy się w Lubiczu Dolnym)
Metryka
- Data 2021-05-04
Szczepimy się w środy, czwartki i weekendy
Ze względu na dostawy szczepionek obecnie szczepienia w Punkcie Szczepień Powszechnych w Lubiczu Górnym odbywają się cztery dni w tygodniu. Zainteresowanie jest bardzo duże.
Przypominamy zasady. Rejestracja na szczepienia odbywa się na ogólnych zasad ogłaszanych przez rząd m.in. za pomocą platformy pacjent.gov.pl lub poprzez ogólnopolską infolinię 989.
Dziennie w PSP w Lubiczu Górnym szczepionych jest kilkaset osób. Każdy pacjent powinien zjawić się z wyraźnie wypełnionym w domu kwestionariuszem (pobierz druk), aby nie powodować opóźnień i przesunięć w kolejce. Proszę zabrać też ze sobą dowód osobisty, własny długopis i ubrać się w luźny strój (np. bez koszul z guzikami, krawatów i innych elementów garderoby wpływających na wydłużenie czasu szczepienia). Ważne jest sprawne i terminowe przyjmowanie kolejnych osób, ponieważ wizyty są wyznaczone na konkretne godziny w odstępach kilkuminutowych, dlatego prosimy nie tylko nie spóźniać się, ale też nie przychodzić dużo wcześniej.
Punkt Szczepień Powszechnych zlokalizowany w hali szkoły w Lubiczu Górnym (ul. Piaskowa 23) obecnie jest czynny w środy i czwartki w godz. 14.00-22.00, a w soboty i niedziele w godz. 9.00-19.00. Do Punktu wejdziemy: od strony ul. Piaskowej - drzwiami prowadzącymi do ZEASiP-u lub z tyłu szkoły; parkingi - przed szkołą, na jej terenie (wjazd przy sali gimnastycznej) oraz na Placu Niepodległości.
Dlaczego warto się szczepić? Zachęcamy do zapoznania się z materiałami przygotowanymi przez Państwowego Powiatowego Inspektora Sanitarnego w Toruniu.
drukuj (Szczepimy się w środy, czwartki i weekendy)
Metryka
- Data 2021-05-04
Metryka
- Data 2021-05-04
Majówka. Co świętujemy i jak można ją spędzić?
Przed nami majówka. Nie ma co ukrywać, że przede wszystkim to czas wolny od pracy. Wykorzystywany w zależności od preferencji i potrzeb na spotkania ze znajomymi, wyjazdy, aktywność fizyczną, odsypianie, oglądanie seriali czy czytanie książek lub przygotowywanie się do egzaminu.
Niestety, pogoda nie zapowiada się najlepiej, co pewnie wiedzą już wszyscy.
To kilka przypominajek:
- w związku z majówką zmieniają się niektóre terminy wywozu odpadów
- inaczej kursuje też MZK
- dzieciom proponujemy, aby w tym wolnym czasie wzięły udział w naszej zabawie
- a między deszczem i deszczem może uda się Wam skorzystać z naszego nowego kompleksu rekreacyjnego dla dzieci i młodzieży w Lubiczu Górnym
- dorosłych zachęcamy do aktywności fizycznej, np. spaceru z kijkami lub jazdy na rowerze - tu znajdziecie propozycje tras
- zaś jeśli lubicie czytanie książek, to weźcie udział w akcji "Szczepmy się kulturą" oferowanej przez gminną bibliotekę w Lubiczu Dolnym, która zaopatrzyła się w znakomite nowości i chętnie Wam je wypożyczy (dziś do godz. 16.00)
- natomiast tym z Was, którzy w majówkę mają być zaszczepieni przeciwko Covid-19 przypominamy jak należy się do tego przygotować
- a maturzystom przesyłamy dużżżżo ciepłych myśli.
Przypomnijmy sobie też, co w zasadzie w majówkę świętujemy?
1 maja - Święto Pracy
2 maja - Dzień Flagi Rzeczpospolitej Polskiej - dlatego zapraszamy do wywieszenia biało-czerwonych flag
3 maja - to rocznica uchwalenia Konstytucji z 1791 roku.
Zatem miłego świętowania i odpoczywania.
drukuj (Majówka. Co świętujemy i jak można ją spędzić?)
Metryka
- Data 2021-04-30
Zabawa. Mój wymarzony bohater
Już za miesiąc będziemy obchodzili Dzień Dziecka, dlatego wszystkie chętne dzieci zapraszamy do zabawy, której finał zobaczymy na wystawie planowanej na 1 czerwca.
Zadanie jest bardzo proste. Narysujcie swojego wymarzonego bohatera – takiego, którego najpierw stworzycie w swojej wyobraźni, a potem na kartce. To może być np. postać łącząca charakterystyczne cechy już istniejących bohaterów, np. Supermana z Batmanem czy księżniczki z wróżką i Czerwonym Kapturkiem. Jeżeli chcecie, to możecie tę postać także podpisać.
Zasady: prace powinny być wykonane w formacie A3 pastelami lub farbami.
Praca może (ale nie musi) być podpisana Waszym imieniem (bez nazwiska) i wiekiem (jeśli chcecie). Żadnych innych danych nie podajemy ze względu na RODO (dorośli wiedzą o co chodzi).
Rysunek należy dostarczyć do Gminnej Biblioteki Publicznej w Lubiczu Dolnym do 14 maja.
Każde dziecko otrzyma od gminy upominek – maskotkę misia lub sowę (prezentujemy je na kolażu).
W okolicach 1 czerwca prace zostaną zaprezentowane na publicznej wystawie w gablotach na Placu Niepodległości w Lubiczu Górnym.
drukuj (Zabawa. Mój wymarzony bohater)
Metryka
- Data 2021-04-30
Na szczepienie przyjdź z wypełnionym kwestionariuszem
Pierwszych 360 osób zostało wczoraj zaszczepionych w nowo uruchomionym Punkcie Szczepień Powszechnych/Masowych w hali Szkoły Podstawowej w Lubiczu Górnym (ul. Piaskowa 23).
Punkt utworzyła gmina Lubicz przy współpracy ze Starostwem Powiatowym w Toruniu oraz Lecznicami Citomed.
Wykwalifikowanemu personelowi medycznemu, który jest bezpośrednio odpowiedzialny za prowadzenie szczepień, logistycznego wsparcia udzielają dyrekcja i pracownicy Szkoły Podstawowej w Lubiczu Górnym oraz strażacy z części gminnych jednostek OSP - Lubicza Dolnego, Mierzynka, Rogówka, Rogowa i Brzezinka.
W pierwszym dniu akcji zostało zaszczepionych 360 osób (frekwencja 100 proc.). Relację można obejrzeć w „Zbliżeniach” na TVP3 Bydgoszcz (minuty: 4:11 – 7:27).
>>> Zobacz materiał [TVP3]
Wszystkich, którzy są już zarejestrowani na szczepienie prosimy o zapoznanie się z informacją, jak należy się do tego przygotować. Pisaliśmy o tym w tekście Lubicki Punkt Szczepień Powszechnych [FILM]. Najważniejsze to, aby:
- do punktu szczepień przyjść w wyznaczonym przez system informatyczny terminie (a nie godzinę wcześniej),
- a także z wypełnionym już w domu kwestionariuszem, co usprawni cały proces i znacząco skróci czas oczekiwania na szczepienie.
Kwestionariusz jest do pobrania tutaj.
drukuj (Na szczepienie przyjdź z wypełnionym kwestionariuszem)
Metryka
- Data 2021-04-29
MZK w majówkę i specjalny kurs dla maturzystów
W związku z egzaminami maturalnymi w dniach od 4 do 11 maja zostanie uruchomiony dodatkowy kurs autobusu linii nr 35 z przystanku Lubicz Osiedle.
Mamy dobrą informację dla osób zdających maturę. Specjalnie dla was w związku z egzaminami od 4 do 11 maja rano pojedzie dodatkowy kurs autobusu nr 35 – z przystanku Lubicz Osiedle o 7.20 (na Pl. Św. Katarzyny).
drukuj (MZK w majówkę i specjalny kurs dla maturzystów)
Metryka
- Data 2021-04-29
Majówka. Jak będzie wyglądał wywóz śmieci?
Miejskie Przedsiębiorstwo Oczyszczania Sp. z o. o. w Toruniu informuje, że ze względu na długi weekend majowy zmianie ulegną terminy odbioru odpadów między 30 kwietnia a 5 maja.
ODBIÓR ODPADÓW BIO
Piątek (30.04) – Odbieramy odpady wg harmonogramu przypadającego na sobotę (01.05) od godziny 6 do 18.
Sobota (01.05) – dzień wolny.
ODBIÓR ZMIESZANYCH ODPADÓW KOMUNALNYCH
Poniedziałek (03.05) – dzień wolny.
Wtorek (04.05) – odbieramy odpady tak, jak w każdy poniedziałek oraz Lubicz Dolny z trasy wtorkowej.
Środa (05.05) – odbieramy odpady według harmonogramu środowego oraz kończymy trasę z wtorku Grębocin.
Czwartek (06.05) – odbieramy odpady tak, jak w każdy czwartek.
Piątek (07.04) – odbieramy odpady tak, jak w każdy piątek.
drukuj (Majówka. Jak będzie wyglądał wywóz śmieci?)
Metryka
- Data 2021-04-28
Lubicki Punkt Szczepień Powszechnych [FILM]
W środę 28 kwietnia w hali Szkoły Podstawowej w Lubiczu Górnym (ul. Piaskowa 23) rusza Punkt Szczepień Powszechnych. Nie zapomnijcie zabrać ze sobą wypełnionego kwestionariusza. Jak jeszcze przygotować się na wizytę?
Dziś (27 kwietnia) pracownicy Citomedu, który jest operatorem Punktu zapoznali się ze swoim tymczasowym miejscem pracy. Lokal przygotowała gmina.
>>> Zobacz FILM [FB]
Wszystko jest dopięte na ostatni guzik. Pierwsze osoby zostaną zaszczepione jutro o 14.00.
Rejestracja na szczepienia odbywa się na ogólnych zasad ogłaszanych przez rząd za pomocą platformy pacjent.gov.pl lub poprzez ogólnopolską infolinię 989.
Dziennie w PSP w Lubiczu Górnym zostanie zaszczepionych kilkaset osób. Każdy pacjent powinien mieć przy sobie wyraźnie wypełniony kwestionariusz – druk załączamy niżej w pdf, aby nie powodować opóźnień i przesunięć w kolejce. Proszę zabrać też ze sobą dowód osobisty, własny długopis i ubrać się w luźny strój (np. bez koszul z guzikami, krawatów i innych elementów garderoby wpływających na wydłużenie czasu szczepienia). Ważne jest sprawne i terminowe przyjmowanie kolejnych osób, ponieważ wizyty są wyznaczone na konkretne godziny w odstępach kilkuminutowych.
Punkt Szczepień Powszechnych zlokalizowany w hali szkoły w Lubiczu Górnym będzie czynny od wtorku do piątku w godz. 14.00-22.00, a w soboty i niedziele w godz. 9.00-19.00. Do Punktu wejdziemy: od strony ul. Piaskowej - drzwiami prowadzącymi do ZEASiP-u lub z tyłu szkoły; parkingi - przed szkołą, na jej terenie (wjazd przy sali gimnastycznej) oraz na Placu Niepodległości.
drukuj (Lubicki Punkt Szczepień Powszechnych [FILM])
Metryka
- Data 2021-04-27
Pobierz plik
Uwaga! Brak prądu 29 kwietnia
29 kwietnia w godzinach 8.30 – 12.30 kontakt z Urzędem Gminy Lubicz może być utrudniony w związku ze spodziewanym brakiem prądu w budynkach A i B. Tymczasowy (czynny w tym czasie) nr tel. komórkowego do USC to 501 927 549.
drukuj (Uwaga! Brak prądu 29 kwietnia)
Metryka
- Data 2021-04-27
Uprawa maku i konopi włóknistych
Sejmik Województwa Kujawsko-Pomorskiego 8 lutego 2021 r. podjął Uchwałę Nr XXIX/422/21 w sprawie określenia ogólnej powierzchni przeznaczonej pod uprawę maku i konopi włóknistych oraz rejonizacji tych upraw w roku 2021. Uchwała została opublikowana w dniu 12 lutego 2021 r. w Dzienniku Urzędowym Województwa Kujawsko-Pomorskiego pod poz. 734.
W związku z tym Urząd Gminy Lubicz uprzejmie informuje, że powierzchnia przeznaczona na obszarze gminy w roku 2021 pod:
- uprawę maku niskomorfinowego wynosi 1,00 ha,
- uprawę konopi włóknistych wynosi 64,00 ha.
Najważniejsze zasady uprawy maku i konopi włóknistych:
1. Uprawa maku i konopi włóknistych może być prowadzona na określonej powierzchni gruntów rolnych położonych na terenie gminy.
2. Uprawa maku może być prowadzona na podstawie zezwolenia na uprawę (przy zastosowaniu materiału siewnego kategorii elitarny lub kategorii kwalifikowany w rozumieniu przepisów o nasiennictwie, potwierdzonego fakturą zakupu tego materiału oraz etykietą z opakowań materiału siewnego tych roślin).
2a. Uprawa konopi włóknistych może być prowadzona na podstawie zezwolenia na uprawę (przy zastosowaniu materiału siewnego kategorii elitarny lub kategorii kwalifikowany w rozumieniu przepisów o nasiennictwie, potwierdzonego faktura zakupu tego materiału oraz etykietą z opakowań materiału siewnego tych roślin) oraz umowy kontraktacji zawartej z podmiotem posiadającym zezwolenie marszałka województwa na prowadzenie działalności w zakresie skupu konopi włóknistych lub zobowiązania do przetwarzania tych roślin.
3. Zezwolenie na uprawę maku i konopi włóknistych wydaje wójt.
4. Za wydanie decyzji (zezwolenia) opłata skarbowa wynosi 30 zł
Wnioski o wydanie zezwolenia na uprawę maku /konopi włóknistych należy składać do Urzędu Gminy Lubicz na załączonym formularzu.
Referat Rolnictwa i Ochrony Środowiska
drukuj (Uprawa maku i konopi włóknistych)
Metryka
- Data 2021-04-26
Pobierz plik
Kwietniowa sesja Rady Gminy Lubicz
Kolejna sesja Rady Gminy Lubicz odbędzie się w trybie zdalnym 29 kwietnia 2021 r. (czwartek). XXX obrady rozpoczną się o godz. 16.00. Tutaj znajdziecie Państwo linki do porządku obrad i transmisji na żywo.
>>> Proponowany porządek obrad sesji 29 kwietnia
drukuj (Kwietniowa sesja Rady Gminy Lubicz)
Metryka
- Data 2021-04-26
W środę ruszają masowe szczepienia w Lubiczu Górnym
W Szkole Podstawowej w Lubiczu Górnym trwają przygotowania do uruchomienia Punktu Szczepień Powszechnych. Punkt będzie otwarty sześć dni w tygodniu.
W naszym powiecie powstają dwa Punkty Szczepień Powszechnych (PSP) – w Chełmży i Lubiczu Górnym. Punkt w lubickiej szkole przygotowuje gmina, a obsługę medyczną zapewnia Citomed.
PSP w Lubiczu Górnym przeszedł już m.in. pozytywną kontrolę Narodowego Fundusz Zdrowia, a dziś otrzymaliśmy informację, że szczepienia ruszają w środę 28 kwietnia.
Co istotne, rejestracja na szczepienia odbywa się na ogólnych zasad ogłaszanych przez rząd za pomocą platformy pacjent.gov.pl lub poprzez ogólnopolską infolinię 989.
Dziennie w PSP w Lubiczu Górnym zostanie zaszczepionych kilkaset osób. Każdy pacjent powinien mieć przy sobie wyraźnie wypełniony kwestionariusz – druk załączamy niżej w pdf, aby nie powodować opóźnień i przesunięć w kolejce. Proszę zabrać też ze sobą dowód osobisty, własny długopis i ubrać się w luźny strój (np. bez koszul z guzikami, krawatów i innych elementów garderoby wpływających na wydłużenie czasu szczepienia). Ważne jest sprawne i terminowe przyjmowanie kolejnych osób, ponieważ wizyty są wyznaczone na konkretne godziny w odstępach kilkuminutowych.
Punkt Szczepień Powszechnych zlokalizowany w hali szkoły w Lubiczu Górnym będzie czynny od wtorku do piątku w godz. 14.00-22.00, a w soboty i niedziele w godz. 9.00-19.00. Do Punktu wejdziemy: od strony ul. Piaskowej - drzwiami prowadzącymi do ZEASiP-u lub z tyłu szkoły; parkingi - przed szkołą, na jej terenie (wjazd przy sali gimnastycznej) oraz na Placu Niepodległości.
drukuj (W środę ruszają masowe szczepienia w Lubiczu Górnym)
Metryka
- Data 2021-04-23
Spis powszechny. Tu rozwiejesz wątpliwości
Czy wypełnienie formularza spisowego jest trudne? Zapraszamy na spotkanie, na którym eksperci odpowiedzą na pojawiające się pytania i wątpliwości dotyczące Narodowego Spisu Powszechnego 2021.
Przypominamy, że do końca września (termin został przedłużony) każdy z nas powinien wziąć udział w tegorocznym spisie. Więcej na ten temat możemy dowiedzieć się ze specjalnej strony internetowej - czytaj tutaj.
23 kwietnia o godzinie 11.00 online odbędzie się spotkanie dotyczące Narodowego Spisu Powszechnego Ludności i Mieszkań 2021. Czy rzeczywiście mamy obowiązek spisania się? Jak najlepiej to zrobić? Jak interpretować pytania? Jeśli macie wątpliwości, zachęcamy do udziału w spotkaniu, do którego można dołączyć, klikając w wyznaczonym czasie w tym miejscu.
drukuj (Spis powszechny. Tu rozwiejesz wątpliwości)
Metryka
- Data 2021-04-21
Świetlica w Grębocinie gotowa dla mieszkańców
W ubiegłym tygodniu w wyremontowanej świetlicy w Grębocinie zamontowano kuchnię. Teraz pozostaje czekać na zniesienie obostrzeń, co pozwoli na rozpoczęcie użytkowania nowej grębocińskiej świetlicy.
Świetlica w Grębocinie wygląda już zupełnie inaczej. Po wyprowadzce poradni psychologiczno-pedagogicznej - dla której gmina zaadaptowała miejsce w szkole - i gruntownym remoncie, świetlica w końcu w całości będzie służyła mieszkańcom i Radzie Sołeckiej, a także KGW, Klubowi Kobiet Kreatywnych i harcerzom.
Świetlica zyskała: nowe okna, podłogę, niezbędne instalacje oraz łazienkę. W ubiegłym tygodniu zamontowano funkcjonalne meble kuchenne i szafy. Wyposażenie zostało sfinansowane z funduszu sołeckiego wyodrębnionego z budżetu gminy.
Mieszkańcy Grębocina od lat czekali na tę inwestycję. Teraz czekają na zniesienie obostrzeń pandemicznych i otwarcie świetlicy.
W realizację przedsięwzięcia zaangażowali się sołtys, rada sołecka, wójt i ZUK.
drukuj (Świetlica w Grębocinie gotowa dla mieszkańców)
Metryka
- Data 2021-04-20
Potrzebujesz pomocy? Przeczytaj koniecznie
Gminny Ośrodek Pomocy Społecznej w Lubiczu od maja do końca grudnia 2021 r. będzie realizował dla mieszkańców wsparcie w ramach dwóch programów „Opieka wytchnieniowa” – edycja 2021 oraz „Asystent osobisty osoby niepełnosprawnej” – edycja 2021.
Pierwszy program skierowany jest do członków rodzin lub opiekunów, którzy wymagają wsparcia w postaci doraźnej, czasowej przerwy w sprawowaniu bezpośredniej opieki nad dziećmi z orzeczeniem o niepełnosprawności, a także nad osobami posiadającymi orzeczenie o znacznym stopniu niepełnosprawności lub orzeczeniem równoważnym.
>>> Szczegóły
Z kolei pomoc w postaci usługi asystenta osobistego osoby niepełnosprawnej ma na celu zapewnienie wsparcia w wykonywaniu codziennych czynności w miejscu zamieszkania oraz funkcjonowaniu w życiu społecznym osób niepełnosprawnych.
>>> Szczegóły
Oba programy są realizowane dzięki dotacji Ministerstwa Rodziny i Polityki Społecznej w ramach Solidarnościowego Funduszu Wsparcia Osób Niepełnosprawnych.
drukuj (Potrzebujesz pomocy? Przeczytaj koniecznie)
Metryka
- Data 2021-04-20
Monitorowany kompleks dla dzieci i młodzieży [FILM]
Kolorowy i niestandardowy plac zabaw dla najmłodszych w Lubiczu Górnym oficjalnie uznajemy za otwarty. To ostatnia część gminnego kompleksu rekreacyjnego.
Trochę historii. Zaczęło się od jednej z mieszkanek, która w 2019 r. zwróciła się do urzędu gminy z wnioskiem o utworzenie placu zabaw dla dzieci w pobliżu Amfiteatru. Pomysł w mediach społecznościowych poparli też inni mieszkańcy, proponując również stworzenie miejsca rekreacji dla młodzieży.
- Nad tym placem pracujemy z inicjatywy mieszkańców, ale też dostrzeganej przez nas wyraźnej potrzeby jego powstania – mówił wówczas wójt Lubicza Marek Nicewicz. – Zrobimy wszystko, aby nasze wspólne marzenia się spełniły.
Wójt powołał zespół, który zajął się opracowaniem koncepcji placu ze strefą dla najmłodszych oraz strefą dla młodzieży.
W skład grupy weszli rodzice: pracownicy urzędu gminy, ośrodka pomocy społecznej, a także wspomniana mieszkanka Lubicza Górnego – mama dwójki dzieci.
Ustalono, że poza placem zabaw dla dzieci, złożonym z ciekawych i nowoczesnych elementów, w projektowanej przestrzeni ma znaleźć się też duży pumptrack dla młodzieży oraz wydzielony ze względów bezpieczeństwa minitor dla mniejszych dzieci, a także rampy i poręcz dla rolkarzy. Wizja lokalna z przedstawicielem jednej z firm budujących takie urządzenia potwierdziła, że założenia zespołu są możliwe do realizacji.
Koncepcję „obiektu” prezentowaliśmy publicznie na stronie, FB gminnym i „Gońcu”, konsultowaliśmy ją także z młodzieżą z naszej gminy.
Pod koniec ubiegłego roku gmina zbudowała pumptrack ze skateparkiem, teren został też zagospodarowany w zieleń oraz małą architekturę, a niedawno urządzono plac zabaw. Możemy oficjalnie ogłosić. że cały gminny kompleks sportowo-rekreacyjnego przy Placu Niepodległości w Lubiczu Górnym jest już oficjalnie otwarty. Od 19 kwietnia bowiem rząd pozwolił na korzystanie z obiektów sportowych na powietrzu, ale przypominamy o konieczności zachowania reżimu sanitarnego.
>>> Zobacz Film [YouTube]
Na kompleksie znajduje się także m.in. street workout i parkour park, który powstał wraz z budową Amfiteatru.
Ostatnim elementem, który właśnie uruchomiliśmy, jest składający się z dziewięciu kamer monitoring całego placu.
- Już w trakcie powstawania kompleksu zdarzyło się kilka incydentów dewastacji, więc mamy nadzieję, że monitoring skutecznie odstraszy chuliganów – mówi wójt Marek Nicewicz.
Dostęp do monitoringu ma Urząd Gminy Lubicz, zarządzający kompleksem Zakład Usług Komunalnych w Lubiczu oraz Komisariat Policji w Dobrzejewicach. Dzisiaj m.in. w tej sprawie wójt Marek Nicewicz spotkał się z komendantem nadkomisarzem Szymonem Bartnikiem oraz jego zastępcą aspirantem sztabowym Tomaszem Markowskim.
- Monitoring jest dobrym pomysłem – mówi komendant. – Z moich wcześniejszych doświadczeń zawodowych wynika, ze w miejscach, w których został zainstalowany dewastacje praktycznie się nie zdarzają.
Teren będzie również pod opieką pracownika ZUK odpowiedzialnego za utrzymanie zieleni.
Projekt „Urządzenie przestrzeni publicznej w Lubiczu Górnym na potrzeby rewitalizacji społecznej. Etap II” został sfinansowany z pieniędzy unijnych pozyskanych za pośrednictwem LGD „Podgrodzie Toruńskie”.
drukuj (Monitorowany kompleks dla dzieci i młodzieży [FILM])
Metryka
- Data 2021-04-19
Złotoria. Nowy obiekt dla mieszkańców
Gmina Lubicz przygotowuje się do rozbudowy remizy w Złotorii. Budynek po modernizacji będzie pełnił funkcję remizy, świetlicy wiejskiej oraz biblioteki.
Mamy dokumentację, a przetarg na wykonanie inwestycji zostanie ogłoszony w przyszłym tygodniu, dlatego wczoraj w Złotorii odbyło się kolejne ze spotkań, przygotowujących logistykę tej inwestycji. Omawiano m.in. funkcjonowanie jednostki OSP podczas rozbudowy remizy.
Gmina Lubicz modernizację budynku przeprowadzi w partnerstwie z liderem zadania, czyli Urzędem Marszałkowskim w Toruniu. Przyznane dofinansowanie w ramach Europejskiego Funduszu Rozwoju Regionalnego wynosi 2 mln zł.
- Mamy potwierdzenie, że środki unijne na rozbudowę remizy w Złotorii zostały nam przyznane. Obecnie kompletujemy dokumenty do podpisania umowy o dofinansowanie z Urzędem Marszałkowskim Województwa Kujawsko-Pomorskiego – mówi Dorota Pruszyńska, p.o. kierownika Referatu Inwestycji i Rozwoju Urzędu Gminy Lubicz.
Szacowania wartość zadania to ponad 4 mln zł, ostateczny koszt poznamy po rozstrzygnięciu przetargu.
W zmodernizowanym budynku znajdą się: remiza, świetlica dla lokalnej społeczności z zapleczem kuchennym i sanitarnym oraz przeniesiona ze szkoły filia biblioteki publicznej.
Zakończenie inwestycji planowane jest we wrześniu 2022 roku.
drukuj (Złotoria. Nowy obiekt dla mieszkańców)
Metryka
- Data 2021-04-14
Co z rondem w Grębocinie?
W Grębocinie na skrzyżowaniu drogi krajowej nr 15 i drogi wojewódzkiej nr 552 pojawili się geodeci. Czy to oznacza, że rozpoczyna się planowana od wielu lat rozbudowa?
Mieszkańcy Grębocina od wielu lat są informowani o planach rozbudowy skrzyżowania w centrum swojej miejscowości.
Na początku 2018 r. doszło do spotkania informacyjnego władz gminy, mieszkańców oraz Generalnej Dyrekcji Dróg Krajowych i Autostrad wraz z projektantami skrzyżowania. Na tym spotkaniu okazało się m.in., że w Grębocinie ma powstać dwupasmowa droga z tzw. pasem rozdziału, drogami rowerowymi i chodnikami. Na skrzyżowaniu DK15 i DW 552 byłoby tzw. rondo turbinowe, bez sygnalizacji świetlnej. Na całym odcinku planowano ograniczyć tzw. lewoskręty i wyeliminować bezpośredni dostęp do drogi głównej z posesji, z których dojazd do DK 15 miał prowadzić drogami dojazdowymi i zbiorczymi. Koncepcja taka wywołała sprzeciw mieszkańców Grębocina. Podkreślali, że nowe rozwiązania, ich zdaniem, nie poprawią bezpieczeństwa, podzielą miejscowość na dwie odrębne części i utrudnią codzienne funkcjonowanie jej mieszkańcom. Tyle historii.
Rozmowy gminy z GDDKiA
Obecny wójt Marek Nicewicz od początku swojej kadencji wznowił rozmowy z GDDKiA, przekonując że proponowane pierwotnie rozwiązania nie poprawią bezpieczeństwa. Dlatego postulował zmianę założeń do koncepcji przebudowy skrzyżowania w Grębocinie. W tej chwili powstaje ona na nowo. W minionych miesiącach wójt Lubicza m.in. trzykrotnie był w tej sprawie w siedzibie generalnej dyrekcji w Bydgoszczy, dodatkowo z dyrektorem oddziału bydgoskiego odbył dwie telekonferencje i dwie telekonferencje z nowym wykonawcą projektu.
– Jestem drogowcem, wiem o czym rozmawiam, dlatego ta współpraca jest rzeczowa i zaczęła przynosić efekty – mówi wójt Marek Nicewicz. - W tej całej sprawie jedno jest pewne, że żadne z rozwiązań nie może przeczyć przepisom ruchu drogowego.
Pierwszy z efektów współdziałania wójta z GDDKiA i projektantami to przedłużenie zakresu opracowania projektowego. Ma ono dotyczyć odcinka od granicy z Toruniem aż do skrzyżowania z ulicą Nad Strugą, co było jednym z postulatów mieszkańców.
Drugim efektem rozmów obecnych władz gminy Lubicz z inwestorem ma być pozostawienie przejścia dla pieszych w pobliżu ul. Szkolnej w bezpiecznej odległości od zjazdu z ronda. Jest ono niezwykle istotne dla mieszkańców, ponieważ prowadzi do szkoły podstawowej oraz do kościoła.
Trzeci efekt to obietnica rozważenia odstąpienia od planowanego przebiegu drogi odbarczającej (tzw. agrafki) na rzecz innego, bardziej akceptowalnego przez mieszkańców, rozwiązania drogowego.
- Mamy też możliwość składania innych propozycji i sugestii, co wcześniej pozostawało bez echa – mówi wójt.
Takie propozycje zostały omówione na spotkaniu wójta i mieszkańców w październiku 2019 r., a następnie przedstawione GDDKiA i projektantowi.
Są jednak problemy trudne do rozwiązania, jak chociażby wjazd i wyjazd z galerii Grębocin. Rozwiązanie tej sprawy, ze względu na ukształtowanie terenu, istniejącą infrastrukturę lokalną oraz przepisy i zasady organizacji ruchu obowiązujące na drogach krajowych.
Projektanci pracują nad nową koncepcją
Obecnie inwestycja jest na etapie przygotowania koncepcji potrzebnej do powtórnego zaprojektowania skrzyżowania przez nowe biuro projektowe. Dokumentacja projektowa ma być gotowa do 30 grudnia 2022. Stąd w Grębocinie pojawili się geodeci, którzy zbierają informacje w terenie służące do opracowania mapy do celów projektowych.
Jak się dowiedzieliśmy, poprzedni projekt rozbudowy skrzyżowania był wykonywany w oparciu o dawne badania natężenia ruchu w Grębocinie, więc zdaniem władz gminy należy zrobić nowe, ponieważ zmienił się przepływ samochodów przez skrzyżowanie z DK nr 15 w związku z otwarciem całego północnego odcinka Amber One. To może mieć kluczowe znaczenie dla projektu, co podnosili także w postulatach mieszkańcy.
- Na razie zatem, ponownie jesteśmy na samym początku planowania inwestycji. Trudno mówić o jej szczegółach, skoro w tej chwili sprawdzane są informacje i możliwości, analizowane sugestie, a nowa koncepcja dopiero się rodzi – mówi wójt i dodaje: - Będę zabiegał, aby koncepcja została zaprezentowana radnym i Radzie Sołeckiej Grębocina.
Jak przewidują projektanci może to mieć miejsce w wakacje tego roku.
Skoro dokumentacja projektowa powinna być wykonana do końca 2022 roku, to oznacza, że jakiekolwiek kroki związane z wbiciem pierwszej łopaty mogą nastąpić w roku 2023. Pod warunkiem, że w programie inwestycyjnym budowy dróg krajowych na lata 2023-2025 znajdą się pieniądze na tę inwestycję.
drukuj (Co z rondem w Grębocinie?)
Metryka
- Data 2021-04-14
Kustosz lubickiej książnicy Bibliotekarzem Roku 2020 województwa
Marzenna Wojnar, dyrektor Gminnej Biblioteki Publicznej w Lubiczu została Bibliotekarzem Roku 2020 województwa kujawsko-pomorskiego!
Opinia o tym, że połowa Polaków nie czyta książek w gminie Lubicz nie ma zastosowania. Marzenna Wojnar dyrektorem gminnej biblioteki jest od ośmiu lat, a lubicka książnica rozwija się, nie tylko wzbogacając się w książki i audiobooki czy proponując dostęp do e-booków. Podejmuje także wiele interesujących inicjatyw, organizuje spotkania autorskie i warsztaty dla różnych grup wiekowych. Efekt? Wciąż rosnąca liczba czytelników.
Pani dyrektor przyznaje, że wzruszył ją serdeczny odzew mieszkańców, którzy w odpowiedzi na zamieszczoną dziś na gminnym fanpage'u informację zareagowali lawiną gratulacji.
- Bardzo się cieszę z tytułu Bibliotekarza Roku 2020 województwa kujawsko-pomorskiego - mówi Marzenna Wojnar. - To ukoronowanie 30 lat pracy w zawodzie, który kocham i wykonuję z pasją. Dla mnie bardzo ważna jest działalność w naszym gminnym środowisku, ale również na rzecz środowiska bibliotekarskiego.
Więcej na temat pracy Marzenny Wojnar można przeczytać tutaj.
Zachęcamy także do przeczytania ostatniego wywiadu z panią dyrektor zamieszczonego w styczniowym wydaniu "Gońca" (str. 8).
drukuj (Kustosz lubickiej książnicy Bibliotekarzem Roku 2020 województwa)
Metryka
- Data 2021-04-13
Medal dla stuletniej Pani Cecylii
Cecylia Marta Kowalska dołączyła do grona rówieśników Niepodległej uhonorowanych marszałkowskim medalem dla najstarszych mieszkańców naszego województwa. Mieszkankę Złotorii z najlepszymi życzeniami odwiedził także wójt Marek Nicewicz.
W setną rocznicę odzyskania przez Polskę niepodległości samorząd województwa rozpoczął wybijanie specjalnej edycji medalu Unitas Durat Palatinatus Cuiaviano-Pomeraniensis przyznawanego mieszkańcom naszego regionu, którzy ukończyli sto lat.
Medal stulatce ze Złotorii 9 kwietnia wręczył wicemarszałek Zbigniew Sosnowski. Więcej na ten temat można przeczytać tutaj.
Tego samego dnia panią Cecylię z najlepszymi życzeniami urodzinowymi i gratulacjami odwiedził wójt Marek Nicewicz oraz sołtys Barbara Kisielewska i Rada Sołecka Złotorii.
Pani Cecylia urodziła się 16 marca 1921 roku w Grabówku (powiat świecki). Po szkole podstawowej w Grucznie uczyła się krawiectwa i pomagała rodzicom w prowadzeniu gospodarstwa rolnego.
W trakcie drugiej wojny światowej została wywieziona na roboty przymusowe do Niemiec. Tam poznała swojego przyszłego męża, z którym po powrocie do kraju w 1945 r. zamieszkała w Osieku nad Wisłą (powiat toruński), a następnie w pobliskim Grabowcu, gdzie urodziła syna i trzy córki.
Pani Cecylia ma ośmioro wnucząt i 15 prawnuków. - Jest ciepła, pogodna i zawsze uśmiechnięta. Dba o całą rodzinę. Nigdy z nikim się nie kłóciła, zawsze łagodziła spory, potrafi rozśmieszyć nawet największego ponuraka – mówią jej dzieci.
Jubilatka zawsze bardzo lubiła szyć, jeździć rowerem, spędzać czas nad polskim morzem i górach. Należała do KGW. Przed setnymi urodzinami pokonała Covid-19.
drukuj (Medal dla stuletniej Pani Cecylii)
Metryka
- Data 2021-04-12
Punkt Szczepień Masowych
Trwają przygotowania do rozpoczęcia szczepień masowych w powiecie toruńskim. Jeden z punktów ma być zlokalizowany w hali Szkoły Podstawowej w Lubiczu Górnym.
Wczoraj odbyła się wideokonferencja starosty toruńskiego Marka Olszewskiego m.in. z samorządowcami z miasta i gminy Chełmża, gminy Lubicz, Państwowym Powiatowym Inspektorem Sanitarnym w Toruniu i prezesem Szpitala Powiatowego w Chełmży, dyrekcją Lecznic Citomed. Spotkanie dotyczyło organizacji i przygotowań Punktów Szczepień Masowych na terenie powiatu toruńskiego pod względem sanitarnym, spełniania warunków technicznych, postępowania z odpadami i zapobiegania chorobom zakaźnym.
Punkty szczepień zostały zgłoszone za pośrednictwem wojewody i czekają na akceptację Narodowego Funduszu Zdrowia. Będą zlokalizowane i przygotowywane w już istniejących budynkach, znajdujących się pod nadzorem Powiatowej Stacji Sanitarno-Epidemiologicznej w Toruniu:
- w Hali Sportowo-Widowiskowej w Chełmży - organizowany pod względem medycznym przez Szpital Powiatowy w Chełmży
- w sali gimnastycznej SP w Lubiczu Górnym - organizowany pod względem medycznym przez Lecznice Citomed.
Punkty przygotowywane przez medyków wspólnie z samorządami, zostaną udostępnione dla chcących się zaszczepić mieszkańców powiatu toruńskiego w sposób spełniający wymagane standardy sanitarne i epidemiczne. Planowane uruchomienie wskazanych Punktów Szczepień Masowych przewidywane jest w ostatnich dniach kwietnia 2021.
Gmina Lubicz jest gotowa do technicznego uruchomienia punktu.
- Zaznaczmy, że w przypadku uruchomienia Punktu Szczepień Masowych w Lubiczu Górnym realizacja szczepień odbywać się będzie na dotychczasowych, ogólnopolskich zasadach, czyli poprzez rejestrację (zgodnie z obowiązującym harmonogramem) na portalu pacjent.gov.pl, ogólnopolską infolinię 989 lub dedykowane ku temu numery telefonów Citomedu: 503 081 084 lub 503 081 195. Osoby zakwalifikowane do szczepienia są szczepione w miejscu i w terminie wskazanym przez system i zaakceptowanym przez samego pacjenta – mówi Wojciech Rakowiecki, zastępca wójta gminy Lubicz.
Więcej informacji przekażemy po oficjalnym potwierdzeniu uruchomienia punktu PSM.
Na podstawie informacji Starostwa Powiatowego w Toruniu
drukuj (Punkt Szczepień Masowych)
Metryka
- Data 2021-04-09
Informacja dotycząca pracy Gminnego Biura Spisowego
Trwa Narodowy Spis Powszechny Ludności i Mieszkań NSP 2021. Pracownicy urzędu oddelegowani do pracy w Gminnym Biurze Spisowym są dostępni od poniedziałku do piątku w godzinach pracy pod nr tel.: 56 674 40 14 i 56 62 121 36, natomiast po tym czasie do godziny 20.00 pod numerem 501 927 579.
Podane kontakty nie służą do przeprowadzenia spisu telefonicznie, a przede wszystkim są dedykowane mieszkańcom, którzy nie posiadają dostępu do Internetu, celem umówienia się na wizytę w urzędzie, gdzie zostało utworzone stanowisko komputerowe do samospisu.
Ze względu na sytuację epidemiologiczną prosimy o korzystanie z punktu spisowego jedynie w wyjątkowych sytuacjach, gdy spisanie w inny sposób nie jest możliwe.
Obecnie obowiązkowa metoda to samospis internetowy poprzez formularz spisowy dostępny na stronie GUS lub ogólnopolska infolinia spisowa dla respondentów 22 279 99 99 – tutaj można spisać się przez telefon i uzyskać potrzebne informacje na temat spisu.
Rachmistrzowie spisowi rozpoczną pracę z początkiem maja br. Będzie to również głównie wywiad telefoniczny (osobisty spis w domu respondenta przez rachmistrza zostanie uzależniony od sytuacji epidemicznej).
drukuj (Informacja dotycząca pracy Gminnego Biura Spisowego)
Metryka
- Data 2021-04-09
Czyja to droga?
Przez teren gminy Lubicz przebiegają drogi krajowe, wojewódzkie, powiatowe, gminne, a także prywatne. W zależności od tego, kto jest ich właścicielem, administrowane są przez różne instytucje publiczne, które odpowiadają także za stan, remonty oraz bieżące utrzymanie swoich dróg.
Zatem jaka droga do kogo należy?
Tutaj znajdziecie Państwo mapkę z takim podziałem oraz kontakty do instytucji zarządzających poszczególnymi drogami.
Dodatkowo zachęcamy także do zaglądania na strony internetowe Zakładu Gospodarki Komunalnej w Lubiczu oraz Powiatowego Zarządu Dróg w Toruniu.
Metryka
- Data 2021-04-08
Marcowy numer "Gońca gminnego"
Zachęcamy do lektury najnowszego wydania naszego biuletynu informacyjnego. Przeczytacie w nim m.in. o inwestycjach, naprawach i remontach w sołectwach, inicjatywach, a także planach gminy na wakacje.
"Goniec" powinien być już dostępny w większości stałych miejsc jego dystrybucji. Można go także przeczytać na naszej stronie internetowej - tutaj.
drukuj (Marcowy numer "Gońca gminnego")
Metryka
- Data 2021-04-02
W gminie Lubicz powstaną mieszkania czynszowe
26 samorządów, w tym gmina Lubicz, podpisało dziś w Krobi porozumienia o chęci współpracy z Krajowym Zasobem Nieruchomości. To pierwszy krok do wspólnego założenia spółki, która zajmie się budową mieszkań.
Z propozycją współpracy do samorządów przy tworzeniu nowych lokali czynszowych wyszedł Krajowy Zasób Nieruchomości, oferując m.in. określony model finasowania. Gminy, przekazując teren pod zabudowę, mogą liczyć na kwotę do 3 mln zł, dzięki której będą nowe mieszkania.
Gmina Lubicz ma już taką działkę – w Lubiczu Górnym nad Drwęcą w okolicach wylęgarni ryb.
– Planujemy postawienie dwóch bloków, każdy po ok. 24-25 mieszkań, czyli łącznie mówimy o 50 lokalach – wyjaśnia wójt Lubicza Marek Nicewicz.
Porozumienie wstępne o chęci współpracy z Krajowym Zasobem Nieruchomości w świetlicy środowiskowej w Krobi (gm. Lubicz), w reżimie sanitarnym i odstępach kilkuminutowych, podpisało 26 burmistrzów i wójtów z okręgu toruńsko-włocławsko-grudziądzkiego. Byli to przedstawiciele następujących samorządów: Lubicz, Brzuze, Skępe, Chrostkowo, Brześć Kujawski, Zakrzewo, Ciechocin, Czernikowo, Wielgie, Brzozie, Zbiczno, Osiek, Fabianki, Bobrowo, miasto Golub-Dobrzyń, Wąpielsk, Jabłonowo Pomorskie, Świecie nad Osą, Skrwilno, Kijewo Królewskie, Książki, Zławieś Wielka, gmina Aleksandrów Kujawski, Lubraniec, a także gminy Brodnica i Golub-Dobrzyń. Ze strony KZN dokumenty parafował jego wiceprezes Jarosław Pucek w towarzystwie od początku zaangażowanej w projekt minister Iwony Michałek – sekretarza stanu w Ministerstwie Rozwoju, Pracy i Technologii.
Przygotowania do inwestycji będzie można rozpocząć po podjęciu przez gminy odpowiednich uchwał i zawiązaniu spółki Społecznej Inicjatywy Mieszkaniowej, co planowane jest do końca czerwca.
Jarosław Pucek zaznaczył, że spółka „toruńska”, w której do tej pory udział zadeklarowały 42 samorządy, prawdopodobnie będzie największą w kraju. – Tutaj zainteresowanie jest rekordowe – podkreślał wiceprezes KZN.
- Świadczy to o atrakcyjności tego programu rządowego, a jednocześnie skierowaniu środków finansowych w tę jakże ważną sferę życia, jaką jest zaspokajanie potrzeb mieszkaniowych – przyznaje wójt Marek Nicewicz.
drukuj (W gminie Lubicz powstaną mieszkania czynszowe)
Metryka
- Data 2021-04-01
W Wielki Piątek pracujemy do 12.00
Uwaga, w piątek 2 kwietnia urząd gminy będzie czynny do godz. 12.00. Przypominamy też o ograniczeniach w bezpośredniej obsłudze mieszkańców związanych z rozpowszechnianiem się koronowirusa.
>>> Planujesz wizytę w urzędzie? Przeczytaj koniecznie
drukuj (W Wielki Piątek pracujemy do 12.00)
Metryka
- Data 2021-03-31
Wywóz odpadów. Ściągawka świąteczna
Miejskie Przedsiębiorstwo Oczyszczania Sp. z o. o. w Toruniu informuje, że ze względu na Święta Wielkanocne zmianie ulegną terminy odbioru odpadów między 5 a 7 kwietnia.
Zmieszane odpady komunalne
Poniedziałek (5.04) – święto.
Wtorek (6.04) – odbieramy odpady tak, jak w każdy poniedziałek oraz Lubicz Dolny z trasy wtorkowej.
Środa (7.04) – odbieramy odpady według harmonogramu środowego oraz kończymy trasę z wtorku (Grębocin).
Czwartek (8.04) – odbieramy odpady tak, jak w każdy czwartek.
Piątek (9.04) – odbieramy odpady tak, jak w każdy piątek.
drukuj (Wywóz odpadów. Ściągawka świąteczna)
Metryka
- Data 2021-03-31
Bioodpady, gabaryty i aplikacja "Kiedy śmieci?"
Od kwietnia zmienia się system wywozu bioodpadów. W tym miesiącu organizujemy także odbiór gabarytów. Do tego dochodzi wywóz śmieci zmieszanych i segregowanych. Jak to wszystko zapamiętać? O zbliżających się terminach może przypomnieć aplikacja na telefon.
Od 3 kwietnia bioodpady z miejscowości zwartych, czyli z Lubicza Dolnego, Lubicza Górnego, Krobi, Złotorii, Nowej Wsi i Grębocina będą wywożone co sobotę. Natomiast z pozostałych miejscowości odbiór nastąpi co drugą sobotę, począwszy od 10 kwietnia.
W kwietniu mamy także odbiór odpadów gabarytowych, zgodnie z harmonogramem wysłanym do mieszkańców i zamieszczonym również tutaj. Chęć wywozu należy zgłosić najpóźniej pięć dni przed planowanym terminem pod nr tel. 56 621 21 28 lub e-mailem go@lubicz.pl. Dotyczy to m.in. starych mebli, kanap czy krzeseł. Do gabarytów nie należy sprzęt elektryczny, elektroniczny, odpady budowlane i opony.
Przypominamy, że dla osób preferujących nowoczesne rozwiązania, w styczniu 2021 roku uruchomiliśmy dostęp do aplikacji na telefon: Kiedy śmieci?, która informuje o zbliżającym się terminie wywozu odpadów. Ściągniecie ją za pośrednictwem Google Play czy App Store. Tutaj przeczytacie o niej więcej.
Przypominamy również, że od wielu lat w Lubiczu Górnym funkcjonuje bezpłatny dla mieszkańców Punkt Selektywnej Zbiórki Odpadów Komunalnych (wjazd od ul. Promowej w Nowej Wsi). W okresie od 1 marca do 31 października PSZOK jest otwarty we wtorki i czwartki w godz. 10.00–18.00, a w soboty 9.00–14.00, nr tel. 797 999 886 (czynny w godzinach pracy).
drukuj (Bioodpady, gabaryty i aplikacja "Kiedy śmieci?")
Metryka
- Data 2021-03-30
Lampa nie świeci? Gdzie to zgłaszać
Informujemy, że na terenie gminy Lubicz usługę konserwacji i bieżącego utrzymania oświetlenia ulicznego realizuje firma ENERGA-Oświetlenie Sp. z o.o. Wszelkie przypadki nieświecących lub uszkodzonych lamp ulicznych należy zgłaszać bezpośrednio za pomocą poczty elektronicznej: awarie.oswietlenie@energa.pl lub telefonicznie pod nr 801 800 103, 58 760 72 40.
Przypominamy też, że aktualnie planowane wyłączenia prądu można sprawdzić w stałej zakładce bezpośrednio poprzez naszą stronę internetową - tutaj. Staramy się także informować o nich na profilach FB poszczególnych sołectw i w Newsletterze Gminy Lubicz.
drukuj (Lampa nie świeci? Gdzie to zgłaszać)
Metryka
- Data 2021-03-29
Płatności bezpośrednie w 2021 roku. Zmiany
Teraz rolnicy składają wnioski do Agencji Restrukturyzacji i Modernizacji Rolnictwa wyłącznie w formie elektronicznej, za pośrednictwem aplikacji eWniosekPlus.
W roku 2021 nie ma możliwości składania do ARMiR oświadczeń potwierdzających brak zmian w 2021 roku w odniesieniu do wniosku o przyznanie płatności obszarowych złożonego w roku 2020. Teraz wnioski przyjmowane są wyłącznie w formie elektronicznej, za pośrednictwem aplikacji eWniosekPlus, do 17 maja.
Wniosek może być także złożony po tym terminie, w ciągu 25 dni kalendarzowych, tj. do 11 czerwca, jednak za każdy dzień roboczy opóźnienia płatność będzie zmniejszona o 1 proc. należnej kwoty.
Zgłoszenia zmian we wnioskach dokonujemy do 31 maja.
Pomoc w tym zakresie będzie świadczył Kujawsko-Pomorski Ośrodek Doradztwa Rolniczego w Minikowie - Powiatowy Zespół Doradztwa Rolniczego w Chełmży, również podczas dyżuru w siedzibie Urzędzie Gminy Lubicz (Biuro podawcze) w każdą środę, zaczynając od 31 marca.
Doradca rolniczy obsługujący gminę Lubicz to Agnieszka Janiaczyk-Dąbrowska, tel. 723 692 550. Termin spotkania koniecznie należy uzgodnić telefonicznie pod nr 56 621 21 29. Osoby nieumówione nie będą mogły skorzystać z pomocy doradcy.
drukuj (Płatności bezpośrednie w 2021 roku. Zmiany)
Metryka
- Data 2021-03-26
Koronawirus. Jak zapisać się na szczepienie?
Na szczepienie przeciwko SARS-CoV-2 w Lecznicy Citomed należy zapisywać się pod numerami: 503 081 084 lub 503 081 195. Tam dokonujemy też wyboru miejsca, w którym chcemy zostać zaszczepieni.
Do wyboru mamy następujące ośrodki należące do Citomedu:
- w Lubiczu Górnym przy ul. Paderewskiego 3,
- w Toruniu przy ul. Skłodowskiej-Curie 73,
- w Toruniu przy ul. Rakowicza 4.
Decyzją wojewody wójt gminy Lubicz został zobowiązany do transportu osób mających trudności w samodzielnym dotarciu do punktów szczepień przeciwko SARS-CoV-2, w tym osób niepełnosprawnych.
Osoby, o których mowa muszą być mieszkańcami gminy Lubicz oraz spełniać następujące kryteria:
- posiadać aktualne orzeczenie o niepełnosprawności w stopniu znacznym o kodzie R lub N lub odpowiednio I grupę z w/w schorzeniami;
- posiadać obiektywne i niemożliwe do przezwyciężenia we własnym zakresie trudności w samodzielnym dotarciu do najbliższego punktu szczepień.
Szczegółowe informacje na temat organizacji przez gminę Lubicz transportu do punktu szczepień można uzyskać u koordynatora gminy Lubicz ds. szczepień Anny Szatkowskiej pod nr tel. 609 707 168.
drukuj (Koronawirus. Jak zapisać się na szczepienie?)
Metryka
- Data 2021-03-24
Marcowa sesja Rady Gminy Lubicz
XXIX sesja Rady Gminy Lubicz odbędzie się w trybie zdalnym 25 marca (czwartek) o godz. 12.00. Proponowany porządek obrad zamieszczamy pod linkiem.
>>> Proponowany porządek obrad
>>> Link do transmisji na żywo
drukuj (Marcowa sesja Rady Gminy Lubicz)
Metryka
- Data 2021-03-24
Słoweńska pasieka w Grębocinie
Wczoraj naszą gminę odwiedziła JE Ambasador Republiki Słowenii Pani Božena Forštnarič Boroje, aby omówić wspólne plany umiejscowienia na terenie gminy Lubicz tradycyjnego słoweńskiego ula. Ma być to pierwsze takie miejsce w Polsce.
Słoweński ul będzie ustawiony w Grębocinie w pasiece Państwa Jakubowskich, którą JE Ambasador Republiki Słowenii zwizytowała wraz Konsulem Honorowym Republiki Słowenii w Toruniu Janem Walczakiem i władzami gminy Lubicz wójtem Markiem Nicewiczem, przewodniczącym rady Zbigniewem Barcikowskim i zastępcą wójta Wojciechem Rakowieckim.
Słowenia znana jest z edukacji na temat znaczenia pszczół dla przyrody i ludzkości. To właśnie ten kraj był inicjatorem ustanowienia Światowego Dnia Pszczoły, w 2017 r. przyjętego przez wszystkie państwa członkowskie ONZ. Od tej pory Światowy Dzień Pszczoły obchodzony jest co roku 20 maja.
Jak powiedziała JE Ambasador, w tym roku Słowenia świętuje także 30-lecie niepodległości, a w połowie roku obejmie przewodnictwo w Unii Europejskiej. Wśród wielu zaplanowanych w związku z tym wydarzeń jest właśnie utworzenie kolorowych pasiek słoweńskich w różnych krajach Unii. Grębocin byłby pierwszy w Polsce. Pani Božena Forštnarič Boroje zauważyła z zadowoleniem, że gmina Lubicz pod względem liczby ludności i krajobrazu przypomina jej rodzinne strony.
Miód ze słoweńsko-grębocińskiej pasieki mógłby stanowić doskonały i zdrowy prezent w kontaktach międzynarodowych.
Wójt Marek Nicewicz ma dalsze plany związane z zagospodarowaniem terenu wokół pasieki, o których więcej napiszemy w przedświątecznym wydaniu "Gońca gminnego".
drukuj (Słoweńska pasieka w Grębocinie)
Metryka
- Data 2021-03-23
Strategia. Ogłoszenie o konsultacjach społecznych
Wójt Gminy Lubicz ogłasza przeprowadzenie konsultacji społecznych dotyczących wstępnego badania na potrzeby opracowywania „Strategii Rozwoju Gminy Lubicz na lata 2021-2028”.
>>> Link do ankiety dla osób fizycznych
>>> Link do ankiety dla przedsiębiorców
drukuj (Strategia. Ogłoszenie o konsultacjach społecznych)
Metryka
- Data 2021-03-22
Można wygrać nagrody indywidualne lub pieniądze na projekty
Wojewoda zaprasza miłośników przyrody i fotografii do udziału w kolejnej edycji konkursu fotograficznego, a zarządca Autostrady A1 proponuje sfinansowanie projektu wspierającego społeczności lokalne.
Prace fotograficzne (nie więcej niż 15) na konkurs wojewody można przesyłać do 5 maja. Spośród zgłoszonych fotografii zostanie wyłonionych do 220 prac, które w najbardziej atrakcyjny i oryginalny sposób przedstawiać będą piękno przyrody i krajobrazu regionu Kujaw i Pomorza.
Zwieńczenie konkursu to przyznanie cennych nagród rzeczowych oraz umieszczenie zwycięskich fotografii i nazwisk laureatów w publikacjach wojewody kujawsko-pomorskiego, m.in. w albumie.
Regulamin konkursu i formularz zgłoszeniowy jest dostępny na stronie internetowej Kujawsko-Pomorskiego Urzędu Wojewódzkiego w Bydgoszczy: tutaj.
Z kolei w ramach konkursu „AmberOne Blisko Nas” zostaną nagrodzone projekty realizowane przez organizacje lokalne mające swoja siedzibę na terenie gmin, przez które przebiega AmberOne Autostrada A1, tj. na 152 km odcinku Autostrady A1 od Rusocina do Nowej Wsi w gminie Lubicz.
Ideą konkursu jest wspieranie oddolnych inicjatyw społecznych, realizowanych wspólnie przez lokalną społeczność i jeśli to możliwe pracowników GTC, a przyczyniających się do polepszenia jakości życia tych społeczności.
Dodatkowe punkty uzyskają projekty zawierające działania związane z bezpieczeństwem (np. edukacja w kwestiach bezpieczeństwa ruchu drogowego, zwiększanie bezpieczeństwa w ruchu poprzez wprowadzanie rozwiązań technicznych infrastrukturalnych itp.) oraz działania proekologiczne (związane np. z sadzeniem zieleni, oczyszczaniem wód czy terenów).
Uczestnikami konkursu mogą być fundacje, stowarzyszenia, komitety społeczne, koła gospodyń wiejskich, ośrodki kultury, biblioteki, parafie, ochotnicze straże pożarne, koła łowieckie oraz inne organizacje społeczne.
Wnioski należy składać do 30 kwietnia. Realizacja projektów musi nastąpić w terminie od 1 czerwca do 31 października 2021r.
W konkursie przewidziano nagrody pieniężne przeznaczone na sfinansowanie nagrodzonych nimi projektów: 5 nagród po 5.000 złotych każda.
Więcej szczegółów: tutaj.
drukuj (Można wygrać nagrody indywidualne lub pieniądze na projekty)
Metryka
- Data 2021-03-19
Była kaplica czeka na remont
Była kaplica przy ul. Bocznej 4 w Lubiczu Górnym zostanie zaadaptowana na salkę świetlicową dla lokalnej społeczności, głównie seniorów. Przetarg na modernizację budynku planujemy rozstrzygnąć pod koniec marca.
W obiekcie mieściła się komora celna po stronie rosyjskiej, potem należał on do Państwowej Służby Uzupełnień, a do lat 70. XX w. była tu kaplica katolicka.
Projekt na modernizację obiektu został skonsultowany i opracowany zgodnie z ustaleniami konserwatora zabytków.
W budynku planowane są prace remontowo-budowlane, m.in. malowanie ścian, położenie posadzek, zamontowanie grzejników i wstawiene dwóch okien witrażowych, wymiana drzwi, a także wydzielenie toalety przystosowanej dla osób niepełnosprawnych. W pomieszczeniu będzie ułożona instalacja elektryczna, nagłośnieniowa i alarmowa oraz zamontowany monitoring zewnętrzny.
Budynek zostanie też ocieplony. Od strony wejścia będzie ułożona kostka brukowa, a przyległy teren wyposażony w elementy małej architektury.
Cały zakres prac gmina planuje wykonać do jesieni. Dodatkowo wyposażymy salkę w sprzęt RTV, meble biurowe (stoły i krzesła) oraz w przenośną rozkładaną scenę.
Inwestycja będzie sfinansowana z budżetu gminy oraz Europejskiego Funduszu Rozwoju Regionalnego, Działanie 7.1 Rozwój lokalny kierowany przez społeczność. Środki unijne pozyskano za pośrednictwem Lokalnej Grupy Działania „Podgrodzie Toruńskie".
drukuj (Była kaplica czeka na remont)
Metryka
- Data 2021-03-18
Planujesz wizytę w urzędzie? Przeczytaj [Aktualizacja 3]
Trzecia fala pandemii dotyka coraz większą grupę pracowników Urzędu Gminy Lubicz. W dniach od 29 marca do 16 kwietnia bezpośrednią obsługę zawiesza Referat Podatkowy.
W tej chwili na izolacji lub kwarantannie znajduje się spora grupa urzędników, co oznacza znaczne ograniczenie naszego gminnego zespołu i utrudnienia dla mieszkańców. Rozumiemy, że może to powodować irytację, jednak jest też jedynym sposobem zapobiegania rozpowszechniania się koronawirusa, zarówno wśród Państwa, jak i urzędników.
Dlatego przypominamy, że na każdą wizytę w urzędzie należy się umówić – tutaj podajemy szczegóły.
Uwaga! Do 16 kwietnia (włącznie) nie dotyczy to jednak Referatu Podatkowego, który zawiesza bezpośrednią obsługę interesantów z powodu najtrudniejszej sytuacji kadrowej. - Mamy nadzieję, że to już ostatnie zawieszenie z naszej strony - mówi kierownik referatu Magdalena Lisewska. W sprawach pilnych prosimy o kontakt e-mailowy na adres podatki@lubicz.pl lub telefoniczny pod nr 56 621 21 37, 56 621 21 36. - Zaręczamy, że odniesiemy się do każdego telefonu i wiadomości mailowej - dodaje pani kierownik. Wszystkie wnioski zostaną rozpatrzone w pierwszym możliwym terminie.
Przepraszamy za niedogodności i prosimy o zrozumienie.
drukuj (Planujesz wizytę w urzędzie? Przeczytaj [Aktualizacja 3])
Metryka
- Data 2021-03-17
Rolniku, te szkolenia są dla ciebie
Powiatowy Zespół Doradztwa Rolniczego w Toruniu z/s w Chełmży zaprasza rolników do udziału w szkoleniach on-line. Aby wziąć udział w wybranym wydarzeniu należy zarejestrować się przez internet.
Następnie na podany adres e-mail zainteresowani otrzymają potwierdzenie rejestracji i możliwość dołączenia do spotkania.
Proponowane spotkania:
1. Dobrostan zwierząt w ramach PROW 2014-2020 i ochrona zwierząt w gospodarstwie rolnym- prawa i obowiązki (26 marca, godz. 10.00).
Kliknij tutaj
2. Porównanie metod uprawy zbóż ozimych i jarych - zalety i wady (tradycyjne, uproszczone, siew bezpośredni), (29 marca, godz. 10.00).
Kliknij tutaj
3. Wdrażanie programu działań mających na celu zmniejszenie zanieczyszczenia wód azotanami pochodzącymi ze źródeł rolniczych (30 marca, godz. 10.00).
Kliknij tutaj
4. Wsparcie w ramach PROW 20214-2020 dla gospodarstw rolnych (31 marca, godz.10.00)
Kliknij tutaj
Powiatowy Zespół Doradztwa Rolniczego w Toruniu z/s w Chełmży informuje też, w dniach 7 i 8 kwietnia organizuje dwudniowy kurs podstawowy dotyczący zakupu i stosowania środków ochrony roślin przy użyciu sprzętu naziemnego. Chętne osoby proszone są o kontakt pod numerami tel. 56 675 22 60, 723 340 220, 723 340 227 lub 723 692 550.
drukuj (Rolniku, te szkolenia są dla ciebie)
Metryka
- Data 2021-03-16
Gronowo. Kuratorium zdecydowało
Kujawsko-Pomorski Kurator Oświaty w Bydgoszczy wydał pozytywną opinię w sprawie zamiaru likwidacji Szkoły Podstawowej w Gronowie.
Przypomnimy, uchwałę intencyjną Rada Gminy Lubicz podjęła 21 stycznia. Od sześciu lat liczba uczniów w szkole w Gronowie regularnie maleje. W tym roku uczęszcza do niej tylko 27 uczniów, chodzących do klas II, V, VI i VIII. Istniejące oddziały liczą od 6 do 8 osób, a pozostałych klas w ogóle nie ma.
Zgoda kuratorium otwiera proces zmierzający do likwidacji Szkoły Podstawowej w Gronowie z dniem 31 sierpnia. Budynek tej szkoły nadal będzie służył celom oświatowym (kontynuacja działalności oddziałów przedszkolnych) i społecznym (placówka Dziennego Domu Seniora) środowiska lokalnego.
Więcej na ten temat pisaliśmy tutaj.
drukuj (Gronowo. Kuratorium zdecydowało)
Metryka
- Data 2021-03-16
Zamień swoje hobby na pracę
Toruńska Agencja Rozwoju Regionalnego S.A. zaprasza do składania wniosków w ramach projektu „Dotacja na start”. Projekt dotyczy wsparcia na założenie działalności gospodarczej m.in. dla bezrobotnych i biernych zawodowo.
Dokładne informacje o projekcie znajdują się na stronie internetowej TARR - tutaj.
Więcej szczegółów uzyskacie też pod numerem telefonu: 56 699 54 77, lub pisząc emaila na adres: dotacjanastart@tarr.org.pl.
drukuj (Zamień swoje hobby na pracę)
Metryka
- Data 2021-03-15
Budujemy salę przy szkole w Lubiczu Dolnym
W tym tygodniu Urząd Gminy Lubicz ogłosi przetarg na budowę długo wyczekiwanej przez społeczność Lubicza Dolnego sali gimnastycznej przy Szkole Podstawowej.
To dla społeczności Lubicza Dolnego bardzo ważna inwestycja, ponieważ w tej chwili uczniowie ze szkoły w tej miejscowości korzystają z sali przy remizie OSP, która jest oddalona o kilkaset metrów. Sala tuż przy szkole zdecydowanie poprawi więc komfort nauki w tej placówce.
Nowa sala gimnastyczna wraz z łącznikiem i pomieszczeniami będzie miała prawie 500 m kw. powierzchni.
Zaprojektowany, a wkrótce budowany, obiekt przeznaczono na stały pobyt do 200 osób. Na wyposażenie samej sali złożą się boisko do koszykówki, wielkości 20m x 11m, a także boisko do siatkówki - 18m x 9m - wyposażone w słupki z regulacją zawieszenia siatki, co umożliwi wykorzystanie ich także do gry w badmintona oraz tenisa. Miejsce na judo, o wymiarach 10m x 10m, na całości zostanie wyłożone profesjonalną matą. Nie zabraknie również nagłośnienia, równoważni gimnastycznej z regulacją wysokości i konia gimnastycznego bez łęków, drabinek mocowanych wzdłuż ściany okiennej, a także ławek gimnastycznych.
Pomieszczenia przyległe do sali gimnastycznej są przeznaczone na potrzeby socjalne. W ich skład wejdą toalety (w tym dla niepełnosprawnych), natryski, szatnie, pomieszczenie trenerskie i magazyn sprzętu.
Przetarg na budowę sali gimnastycznej dla szkoły w Lubiczu Dolnym zostanie ogłoszony w pierwszej połowie tego tygodnia. Realizacja zależy od rozwoju pandemii. Jeżeli nauka zdalna potrwa do końca roku, to wyłoniony wykonawca na plac budowy wejdzie jak najszybciej.
Budowa sali w Lubiczu Dolnym będzie kosztowała ok. 2 mln zł. - Staramy się o dofinansowanie tego zadania z dwóch programów rządowych - mówi wójt Lubicza Marek Nicewicz. - Na razie oba programy nie ogłosiły wyników, mimo to, niezależnie od tego jakie one będą, podjąłem decyzję, że sala zostanie zbudowana. Mieszkańcy już od wielu lat zabiegali o tę inwestycję. Rozumiem ich potrzebę i uważam ją za ważną. Dlatego według mnie, ze względu na dobro uczniów, nie możemy dłużej czekać z rozpoczęciem tej inwestycji.
drukuj (Budujemy salę przy szkole w Lubiczu Dolnym)
Metryka
- Data 2021-03-15
Narodowy Spis Powszechny Ludności i Mieszkań NSP 2021
To największe badanie statystyczne realizowane raz na 10 lat. W tym roku Narodowy Spis Powszechny będzie przeprowadzony w całej Polsce od 1 kwietnia 2021 r. do 30 czerwca 2021.
Warto dodać, że jeżeli wejdzie w życie obecnie procedowana nowelizacja ustawy o spisie, to NSP 2021 potrwa dłużej, do 30 września 2021.
Dane podawane w spisie dotyczą stanu na dzień 31 marca 2021 r.
Obowiązkiem spisowym są objęte:
- wszystkie osoby fizyczne (Polacy i cudzoziemcy) stale zamieszkałe oraz czasowo przebywające na terenie Polski;
- Polacy przebywający czasowo za granicą;
- przedmiotem spisu są również mieszkania, budynki, obiekty zbiorowego zakwaterowania i inne zamieszkane pomieszczenia nie będące mieszkaniami
Cel realizacji spisu powszechnego:
- Spis dostarcza najbardziej aktualnych i szczegółowych informacji m.in. o liczbie ludności i jej rozmieszczeniu, strukturze demograficznej i zawodowej, a także sytuacji ekonomicznej i społecznej gospodarstw domowych wraz z informacją o ich warunkach mieszkaniowych.
- Dane wynikowe ze spisu umożliwiają władzom krajowym i lokalnym podejmowanie strategicznych decyzji opartych na analizie danych.
- Na podstawie wyników spisów również mieszkańcy Polski mogą podejmować istotne decyzje mające wpływ na ich życie, np. miejsce zamieszkania czy wybór zawodu
Organizację i przeprowadzenie spisu ludności w Polsce regulują:
- ustawa z dnia 29 czerwca 1995 r. o statystyce publicznej (Dz. U. z 2020 r. poz. 443, z późn. zm.);
- ustawa z dnia 9 sierpnia 2019 r. o powszechnym spisie ludności i mieszkań w 2021 r. (Dz. U z 2019 r. poz. 1175, z późn. zm.)
Metody zbierania danych:
- Podstawowa i obowiązkowa metoda samospis internetowy poprzez formularz spisowy dostępny na stronie Spisu od 1 kwietnia 2021 r.
- Metody uzupełniające: z osobami, które nie spiszą się samodzielnie skontaktuje się rachmistrz, aby zrealizować spis w formie wywiadu telefonicznego lub wywiadu bezpośredniego
Zagadnienia, które podlegają spisowi:
1. Charakterystyka demograficzna
2. Aktywność ekonomiczna osób
3. Poziom wykształcenia
4. Niepełnosprawność
5. Migracje wewnętrzne i zagraniczne
6. Charakterystyka etniczno-kulturowa
7. Gospodarstwa domowe i rodziny
8. Stan i charakterystyka zasobów mieszkaniowych (mieszkania i budynki)
Jeśli nie ma dostępu do Internetu w domu:
W gminnych biurach spisowych będzie zapewniony bezpłatny dostęp do sprzętu komputerowego.
Telefony kontaktowe do pracowników zajmujących się spisem w naszej gminie są dostępne dla respondentów (mieszkańców) w godzinach pracy Urzędu Gminy: Barbara Zarębska 56 674 40 14 i Andżelika Solińska 56 621 21 36.
Od 15 marca GUS uruchomi infolinię spisową dla respondentów pod numerem 22 279 99 99.
Więcej informacji na temat NSP 2021 można znaleźć na stronie Spisu.
drukuj (Narodowy Spis Powszechny Ludności i Mieszkań NSP 2021)
Metryka
- Data 2021-03-10
Złotoria ma nowy rodzinny park
To było marzenie sołtys Złotorii i wielu jej mieszkańców - Rodzinny Park Rekreacji i Wypoczynku. Wczoraj odbył się odbiór wewnętrzny parku.
W nowym parku w Złotorii są m.in.: huśtawki, bujaki sprężynowe, piaskownica, linarium, tory sprawnościowe, stół do ping ponga, betonowe piłkarzyki, a także wiaty, ławki, kosze na śmieci i na psie odchody oraz nowe nasadzenia.
Wczoraj odbył się odbiór wewnętrzny inwestycji, więc gmina może już zawiadomić Powiatowego Inspektora Nadzoru Budowlanego o zakończeniu budowy.
Warto dodać, że park znajduje się w pobliżu ścieżki rowerowej Złotoria – Osiek. W przyszłości planowane jest jej połączenie z budowaną na terenie gminy ścieżką Złotoria – Lubicz Górny, właśnie poprzez ul. 8 Marca. Będzie to zatem doskonałe miejsce postojowe na odpoczynek lub ćwiczenia na świeżym powietrzu.
Szerzej o parku w Złotorii niedawno pisaliśmy tutaj.
Gmina Lubicz sfinansowała inwestycje z własnego budżetu oraz funduszy europejskich przekazanych przez Urząd Marszałkowski w Toruniu z Programu Rozwoju Obszarów Wiejskich za pośrednictwem Lokalnej Grupy Działania „Podgrodzie Toruńskie".
drukuj (Złotoria ma nowy rodzinny park)
Metryka
- Data 2021-03-09
Dobra wiadomość dla miłośników dwóch kółek
Jeszcze w tym roku powinniśmy bezpiecznie przejechać się nową ścieżką rowerową, która będzie się rozpoczynała przy "Biedronce" w Lubiczu Dolnym, a kończyła w pobliżu przystanku autobusowego w Rogówku.
Wzdłuż drogi powiatowej 2010C powstaje ścieżka dla rowerów o nawierzchni bitumicznej, z elementami kostki. Inwestycję realizuje powiat toruński, który jest liderem zadania, w partnerstwie z gminą Lubicz, przy współudziale środków unijnych z Europejskiego Funduszu Rozwoju Regionalnego w ramach Regionalnego Programu Operacyjnego Województwa Kujawsko - Pomorskiego na lata 2014-2020.
W ubiegłym tygodniu przedstawiciele instytucji zaangażowanych w budowę omawiali w terenie szczegóły inwestycji.
Ścieżka dla rowerów o długości około 4,3 km zostanie zlokalizowana na całym odcinku po lewej stronie pasa drogowego - od Biedronki w Lubiczu Dolnym do przystanku autobusowego w Rogówku. Będzie to droga rowerowa jednopasowa dwukierunkowa o szerokości od 2 m do 2,5 m. W części zaprojektowano również towarzyszący ścieżce chodnik, a także wykonanie wyniesionych zjazdów do posesji. Udało się uratować, kolidujący z inwestycją, dąb rosnący przy sklepie "Biedronka". Ostatecznie w tym miejscu ścieżka zostanie zwężona tak, by omijała drzewo.
Zakończenie budowy ścieżki planowane jest do połowy listopada.
drukuj (Dobra wiadomość dla miłośników dwóch kółek)
Metryka
- Data 2021-03-08
Życzenia z okazji Dnia Kobiet [FILM]
Tradycją gminy Lubicz jest marcowe spotkanie mieszkanek z okazji Dnia Kobiet. Władze Lubicza na Gminnym Święcie Kobiet co roku goszczą blisko 1000 Pań, które integrują się, biorąc udział w kiermaszu, konkursach i zabawach, a potem w finałowym koncercie. W 2021 roku pandemia i związane z nią obostrzenia nie pozwalają na zorganizowanie takiego spotkania. Dlatego wójt gminy Lubicz Marek Nicewicz i przewodniczący rady gminy Zbigniew Barcikowski, zamiast ze sceny, złożyli Paniom życzenia za pośrednictwem gminnych mediów społecznościowych.
>>> Film z życzeniami [YouTube]
drukuj (Życzenia z okazji Dnia Kobiet [FILM])
Metryka
- Data 2021-03-07
ZUS i PFRON razem szkolą online
Już w najbliższą środę, 10 marca w godz. 10.00-11.30 odbędzie się bezpłatne szkolenie online prowadzone przez pracowników bydgoskiego i toruńskiego oddziału ZUS oraz Państwowego Funduszu Rehabilitacji Osób Niepełnosprawnych. Dla kogo?
Szkolenie adresowane jest do pracodawców, biur rachunkowych, a także osób z niepełnosprawnościami prowadzących własną działalność gospodarczą. W trakcie szkolenia eksperci obu instytucji postarają się wytłumaczyć pracodawcom m.in. jakie korzyści mogą, osiągnąć zatrudniając osoby niepełnosprawne. Będzie można również dowiedzieć się, komu przysługuje dofinansowanie z PFRON i jakie warunki trzeba spełnić. - Eksperci wyjaśnią także czy osoby z niepełnosprawnością, które pobierają świadczenia emerytalno-rentowe mogą wykonywać pracę zarobkową - informuje Krystyna Michałek, rzecznik regionalny ZUS województwa kujawsko-pomorskiego.
Aby wziąć udział w szkoleniu, należy do 8 marca, przesłać zgłoszenie uczestnictwa na adres mailowy mkucinska@pfron.org.pl. W zgłoszeniu należy, podać swój numer kontaktowy oraz ilość osób deklarujących udział. Po otrzymaniu zgłoszenia zostanie wysłany link do szkolenia.
drukuj (ZUS i PFRON razem szkolą online)
Metryka
- Data 2021-03-05
Uwaga! Ostrzeżenie hydrologiczne
Zjawisko: wezbranie z przekroczeniem stanów ostrzegawczych
Stopień zagrożenia: 2
Ważność: od godz. 9.10 dnia 4.03.2021 r. do godz. 15.00 dnia 5.03.2021 r.
Obszar: Dolna Wisła – poniżej stopnia wodnego we Włocławku
Przebieg: W związku z przemieszczaniem się fali wezbraniowej na dolnym odcinku Wisły, poniżej stopnia Włocławek, przewiduje się wzrosty stanów wody do stanów ostrzegawczych i powyżej.
Źródło informacji: Wojewódzkie Centrum Zarządzania Kryzysowego KUJAWSKO-POMORSKI URZĄD WOJEWÓDZKI W BYDGOSZCZY
drukuj (Uwaga! Ostrzeżenie hydrologiczne)
Metryka
- Data 2021-03-04
News dla młodzieży. Otwieramy pumptrack!
W środę demontujemy ogrodzenie pumptracka z elementami skateparku w Lubiczu Górnym. Od tego dnia zapraszamy do korzystania z tego miejsca, które powstało specjalnie dla Was.
To na wniosek mieszkańców władze gminy Lubicz centralny plac w Lubiczu Górnym przeznaczyły na miejsce rekreacji dla dzieci i młodzieży.
Wiemy, że ciężko było Wam doczekać się otwarcia pumptracka. Pandemia koronowirusa wpłynęła na wydłużenie procedur administracyjnych, potem pojawiły się trudności związane z rozstrzygnięciem przetargu, a na końcu atak zimy.
Pumptrack ze skateparkiem w Lubiczu Górnym powstał w ubiegłym roku. Dziś jeszcze wykonawca impregnował skatepark, a od jutra można go testować.
– Prosimy, abyście szanowali to miejsce, dbając o właściwe korzystanie i nie rozjeżdżanie trawy, a także o porządek wokół – mówi Dorota Pruszyńska, p.o. kierownika Referatu Inwestycji Urzędu Gminy Lubicz.
W najbliższych dniach rusza kolejny etap inwestycji - obok pumptracka będzie montowany nowoczesny plac zabaw z linariami. Cały teren zagospodarowano zielenią. Wszystko w ramach zadania „Urządzenie przestrzeni publicznej w Lubiczu Górnym na potrzeby rewitalizacji społecznej. Etap II".
Budowa inwestycji zostanie dofinansowana z Europejskiego Funduszu Rozwoju Regionalnego w ramach Regionalnego Programu Operacyjnego Województwa Kujawsko-Pomorskiego (Działanie 7.1 Rozwój lokalny kierowany przez społeczność). Urząd Gminy Lubicz pozyskał środki za pośrednictwem LGD „Podgrodzie Toruńskie”.
drukuj (News dla młodzieży. Otwieramy pumptrack!)
Metryka
- Data 2021-03-02
Komunikat GOPS w sprawie 500+
W związku z sytuacją epidemiczną w kraju i możliwością od 1 kwietnia składania wniosków o ustalenie prawa do świadczenia wychowawczego tzw. 500+ w formie papierowej, prosimy naszych mieszkańców:
- o pobieranie wniosków ze strony internetowej www.gopslubicz.pl (otwórz) bądź bezpośrednio z Gminnego Ośrodka Pomocy Społecznej w Lubiczu znajdującego się pod adresem ul. Toruńska 24, bud. B Urzędu Gminy
- wrzucanie wypełnionych wniosków do skrzynki z napisem GOPS znajdującej się na budynku B Urzędu Gminy
- podawanie we wnioskach aktualnych numerów telefonów oraz adresów email w celu ułatwienia kontaktu z Państwem
- w przypadku wystąpienia wątpliwości przy wypełnianiu wniosku prosimy o kontakt z pracownikami pod numerami telefonów: 500 280 473 oraz 506 133 337
- osoby umówione telefonicznie będą przyjmowane w pierwszej kolejności.
Przypominamy, że nadal jest możliwe składanie wniosku o ustalenie prawa do świadczenia wychowawczego drogą elektroniczną tj. przez ePUAP, portal Empatia, PUE ZUS oraz bankowość internetową.
drukuj (Komunikat GOPS w sprawie 500+)
Metryka
- Data 2021-03-01
Śmieci posegregowane? Wywóz w ostatnią sobotę miesiąca
W najbliższą sobotę 27 lutego MPO odbiera w naszej gminie śmieci segregowane. Worki prosimy wystawić przed godziną 6 rano. Przypominamy najważniejsze zasady dotyczące reklamacji nieodebranych odpadów.
- Jeżeli odpady nie zostały zabrane w wyznaczonym dniu albo zdarzyły się inne zakłócenia dotyczące zbiórki, należy niezwłocznie złożyć reklamację (w najbliższy dzień roboczy) w Referacie Gospodarki Odpadami Urzędu Gminy Lubicz: e-mailowo, wysyłając wiadomość na adres go@lubicz.pl, podając swoje dane oraz adres posesji lub telefonicznie pod nr 56 621 21 28. To pracownicy tego referatu w bezpośrednim kontakcie z firmami wywożącymi odpady mogą interweniować w zgłaszanej przez Państwa sprawie. Firma na zrealizowanie reklamacji ma trzy dni robocze. Zgłoszenie po dłuższym czasie wyklucza możliwość wyjaśnienia sytuacji.
- Najczęściej, jak wynika z naszych analiz (kontroli, ale także GPS-ów w śmieciarkach), odpady nie są zabierane z tych posesji, których właściciele na czas, czyli do godz. 6.00 rano, nie wystawiają pojemników lub worków. Firma nie ma możliwości wielokrotnego podjeżdżania pod jeden adres, ponieważ musi obsłużyć ok. 5.500 domostw.
- Pamiętajmy także o dokładnym zawiązaniu worków. Szkło w nich nie może być potłuczone. Worek z odłamkami podczas ładowania go na samochód pęka, a odłamki szkła ranią pracowników firmy zajmującej się odbiorem odpadów.
Więcej na temat wywozu śmieci przeczytacie tutaj.
drukuj (Śmieci posegregowane? Wywóz w ostatnią sobotę miesiąca)
Metryka
- Data 2021-02-25
Urządzamy park w Złotorii
W Złotorii w lasku przy ul. 8 Marca powstaje Rodzinny Park Rekreacji i Wypoczynku. Mieszkańcy będą mogli cieszyć się z niego już wiosną.
- Jestem przeszczęśliwa, że Lasy Państwowe użyczyły gminie ten teren i udało się ocalić zielone płuca Złotorii, zlokalizowane akurat przy gęstej zabudowie, na miejsce wypoczynku i spotkań dla naszych mieszkańców – mówi Barbara Kisielewska, sołtys Złotorii.
Wszystko zaczęło się kilka lat temu od inicjatywy pani sołtys, która zaproponowała opracowanie koncepcji parku. Jej wykonanie opłacono z pieniędzy Funduszu Sołeckiego wyodrębnionego dla sołectw z budżetu gminy Lubicz. Mieszkańcy zdecydowali również o przeznaczeniu sołeckich środków na wyznaczenie alejek i kupno pierwszych urządzeń do parku – sześciu elementów siłowni zewnętrznej. To był nieformalny początek właśnie tworzonego parku.
Gmina sfinansuje tę inwestycje z własnego budżetu oraz funduszy europejskich przekazanych przez Urząd Marszałkowski w Toruniu z Programu Rozwoju Obszarów Wiejskich za pośrednictwem Lokalnej Grupy Działania „Podgrodzie Toruńskie".
W parku znajdą się: huśtawki, bujaki sprężynowe, piaskownica, linarium, tory sprawnościowe, stół do ping ponga, betonowe piłkarzyki, a także wiaty, ławki, kosze na śmieci i na psie odchody oraz nowe nasadzenia. Każdy element tej przestrzeni zostanie w nią wkomponowany z poszanowaniem wymogów lasu.
- Większość elementów parku, poza dwiema altanami, została już zamontowana, a roślinność wykonawca zasadzi do połowy kwietnia – mówi Dorota Pruszyńska p.o. kierownika Referatu Inwestycji Urzędu Gminy Lubicz.
- Dodatkowo z funduszu sołeckiego chcielibyśmy jeszcze m.in. zamontować trampolinę. Zastanawiamy się także nad monitoringiem – mówi sołtys Barbara Kisielewska.
Warto dodać, że park znajduje się w pobliżu ścieżki rowerowej Złotoria – Osiek, która w przyszłości zostanie połączona z budowaną na terenie gminy ścieżką Złotoria – Lubicz Górny, właśnie poprzez ul. 8 Marca. Będzie to zatem doskonałe miejsce postojowe na odpoczynek lub ćwiczenia na świeżym powietrzu.
drukuj (Urządzamy park w Złotorii)
Metryka
- Data 2021-02-25
Narodowy Spis Powszechny i Mieszkań 2021
1 kwietnia rozpoczyna się Narodowy Spis Powszechny i Mieszkań 2021. Prezentujemy Państwu ulotkę na ten temat, a o szczegółach będziemy jeszcze informować.
drukuj (Narodowy Spis Powszechny i Mieszkań 2021)
Metryka
- Data 2021-02-25
- Ulotka informacyjna (PDF) 5494.08kB
Ostrzeżenie Wydziału Monitoringu Środowiska w Bydgoszczy
Zjawisko: Pył
Rodzaj zagrożenia: Pył zawieszony w powietrzu
Obszar: Miasto Toruń
Przebieg: Prognozuje się w dniu 24.02.2021 r. przekroczenie poziomu informowania
(ostrzegania) dla pyłu PM 10
Prognozowane skutki: Pogorszenie jakości powietrza powodujące ryzyko dla mieszkańców
miasta
Zalecenia: Według informacji w załączniku do niniejszego ostrzeżenia
Źródło informacji: Państwowy Monitoring Środowiska – dane z systemu monitoringu
jakości powietrza Głównego Inspektoratu Ochrony Środowiska
drukuj (Ostrzeżenie Wydziału Monitoringu Środowiska w Bydgoszczy)
Metryka
- Data 2021-02-24
- Załącznik do ostrzeżenia (PDF) 1426.36kB
Lutowa sesja Rady Gminy Lubicz
XXVIII sesja Rady Gminy Lubicz odbędzie się 25 lutego (czwartek) w świetlicy wiejskiej w Krobi. Radni obrady rozpoczną o godz. 12.00. Transmisję obejrzycie na żywo.
Proponowany porządek obrad znajduje się tutaj.
Link do transmisji - tutaj.
drukuj (Lutowa sesja Rady Gminy Lubicz)
Metryka
- Data 2021-02-24
Wójt ogłosił dwa konkursy ofert
Wójt gminy Lubicz Marek Nicewicz ogłasza dwa konkursy ofert na realizację zadań z zakresu zdrowia publicznego oraz dla klubów sportowych.
Pierwszy to konkurs ofert na realizację zadań z zakresu zdrowia publicznego prowadzonego w ramach Gminnego Programu Profilaktyki i Rozwiązywania Problemów Alkoholowych i Przeciwdziałania Narkomanii na rok 2021.
Drugi to otwarty konkurs ofert dla klubów sportowych na dofinansowanie zadań w ramach wspierania rozwoju sportu w gminie Lubicz.
Termin składania ofert: 17 marca do godz. 14.00.
drukuj (Wójt ogłosił dwa konkursy ofert)
Metryka
- Data 2021-02-24
W jakim sołectwie jest środek gminy?
Zadaliśmy sobie pytanie: gdzie w naszej gminie znajduje się jej środek? Dzięki pomocy Referatu Gospodarki Przestrzennej znamy już odpowiedź. Jaki jest Wasz typ?
W odpowiedzi na pytanie pomógł nam Sławomir Szczęśniak. Temat zbadał trzema metodami. Za każdym razem środek wypadał w okolicach skrzyżowania w Jedwabnie. Dlatego to właśnie miejsce postanowiliśmy uznać za środek gminy Lubicz.
drukuj (W jakim sołectwie jest środek gminy?)
Metryka
- Data 2021-02-19
Szkolenia online z ekspertem ZUS
Trwają zapisy na bezpłatne webinarium pod nazwą „Platforma Usług Elektronicznych, jako wygodne i bezpłatne narzędzie kontaktu z ZUS” oraz „Jak samodzielnie utworzyć potwierdzenia danych z ZUS na PUE ZUS”.
Webinarium będzie prowadzone online, za pośrednictwem platformy Cisco Webex Meeting. Odbędzie się ono 23 lutego o godz. 10.00 oraz 24 lutego o godz. 9.00. Zapisy przyjmowane są najpóźniej na dzień przed planowanym szkoleniem.
Aby wziąć udział w szkoleniu „Platforma Usług Elektronicznych, jako wygodne i bezpłatne narzędzie kontaktu z ZUS”, należy do 22 lutego przesłać zgłoszenie uczestnictwa na adres mailowy katarzyna.robakowska@zus.pl. Osoby zainteresowane udziałem w szkoleniu „Jak samodzielnie utworzyć potwierdzenia danych z ZUS na PUE ZUS” mogą zapisywać się do 23 lutego, wysyłając maila na adres: sylwia.bratkowska-gburek@zus.pl. W treści należy wskazać datę i temat webinarium, liczbę uczestników (imiona i nazwiska), a także numer telefonu do kontaktu.
Informacja prasowa ZUS
drukuj (Szkolenia online z ekspertem ZUS)
Metryka
- Data 2021-02-19
Gminę Lubicz znajdziecie też na YouTube
Zapraszamy do subskrypcji gminnego kanału na YouTube. W tej chwili mamy na nim 11 filmów i sukcesywnie będziemy go wzbogacać o kolejne.
Na kanale Gmina Lubicz znajdziecie, m.in. film, w którym wójt Marek Nicewicz wyjaśnia tajniki gminnego budżetu na ten rok, lubicki teledysk Kamila Czeszela, czytanie ballady przez mieszkańców gminy Lubicz, migawki z akcji pomagania w pandemii, a także relacje z ostatniego Lubickiego Lata, które odbyło się w 2019 r.
>>> Kanał Gmina Lubicz na Youtube
Przypominamy także, że w marcu ubiegłego roku uruchomiliśmy Newsletter Gminy Lubicz, wysyłany raz w tygodniu.
Aby zapisać się do newslettera trzeba wprowadzić swój adres e-mail w niebieskie pole po lewej stronie witryny internetowej (w wersji mobilnej znajduje się ono pod tym tekstem), a pod otrzymaniu pierwszego e-maila potwierdzić subskrypcję, klikając w link aktywacyjny.
drukuj (Gminę Lubicz znajdziecie też na YouTube)
Metryka
- Data 2021-02-17
Boiska otwarte, świetlice nadal nie
Rząd warunkowo poluzował obostrzenia dotyczące m.in. boisk zewnętrznych. Dlatego, choć w tej chwili pogoda temu nie sprzyja, to oficjalnie od poniedziałku zdejmujemy zakaz korzystania z tych miejsc.
O zasady korzystania z boisk prosimy pytać administrujących boiskami, czyli dyrekcje szkół.
Wiemy też, że z niecierpliwością czekacie na otwarcie pumptracku w Lubiczu Górnym. Jak tylko warunki pogodowe pozwolą, to pumptrack stanie przed chętnymi otworem.
Natomiast do świąt wielkanocnych nie planujemy otwierać świetlic środowiskowych na zajęcia. Jest to spowodowane przede wszystkim troską o zdrowie seniorów. Wierzymy bowiem, że do Wielkanocy nasi najstarsi mieszkańcy zostaną zaszczepieni przeciwko Covid-19.
Nadal sytuacja nie jest stabilna, więc prosimy wszystkich o zachowanie podstawowych zasad bezpieczeństwa po to, byśmy jak najszybciej wszyscy mogli wrócić do normalności.
Więcej o tym co wolno, w okresie od 12 do 28 lutego, a czego nie, przeczytacie tutaj.
drukuj (Boiska otwarte, świetlice nadal nie)
Metryka
- Data 2021-02-12
Planujesz długie życie? Zbadaj się
LUX MED jeden z największych od lat realizatorów Programu Profilaktyki Raka Piersi w ślad za ogólnopolską kampanią promocyjną Ministerstwa Zdrowia pn. Planuję Długie Życie zaprasza na bezpłatne badania mammograficzne, które odbędzie się 17 marca w Lubiczu Górnym.
W mammografii finansowanej przez NFZ w ramach Programu Profilaktyki Raka Piersi można wziąć udział niezależnie od miejsca zamieszkania i bez skierowania lekarskiego.
Do badania uprawnione są panie w wieku 50-69 lat, które są ubezpieczone, nie były leczone z powodu raka piersi a także:
- nie miały wykonanej mammografii w ramach Programu w ciągu ostatnich 24 miesięcy
- lub są w grupie ryzyka i w roku poprzedzającym otrzymały pisemne wskazanie do wykonania ponownej mammografii po upływie 12 miesięcy.
Mobilna pracownia mammograficzna LUX MED będzie do dyspozycji pań w Lubiczu Górnym 17 marca w godzinach od 10.00 do 16.00 przy Szkole Podstawowej, ul. Piaskowa 23.
W 2021 roku po raz pierwszy z badania w ramach Programu Profilaktyki Raka Piersi mogą skorzystać Panie z rocznika 1971. Zachęcamy, by nie zwlekać z decyzją o realizacji badań. Systematyczność w przestrzeganiu terminów kolejnych badań mammograficznych pozwala na wykrycie potencjalnego zagrożenia na bardzo wczesnym etapie rozwoju choroby, pozwalając rozpocząć natychmiastowe i skuteczne leczenie, które daje niemal 100 proc. gwarancję powrotu do zdrowia.
Prosimy o wcześniejszą rejestrację pod nr tel. 58 666 24 44 lub na http://www.mammo.pl/formularz. W celu weryfikacji uprawnień do badania przed połączeniem telefonicznym należy przygotować dowód osobisty. Na badanie prosimy zabrać ze sobą zdjęcia z poprzednich mammografii.
Ze względów bezpieczeństwa w pracowni mogą jednocześnie przebywać tylko trzy panie (dlatego należy stawić się w wyznaczonym czasie), co zapewnia możliwość utrzymania niezbędnego dystansu. Przed badaniem pracownicy medyczni mierzą paniom temperaturę i proszą o wypełnienie ankiety. Do dyspozycji są także środki do dezynfekcji rąk.
drukuj (Planujesz długie życie? Zbadaj się)
Metryka
- Data 2021-02-12
Lutowy numer "Gońca gminnego"
Zapraszamy do lektury pierwszego w tym roku wydania "Gońca gminnego". Biuletyn jest już dostępny na naszej stronie internetowej, a w przyszłym tygodniu będzie także u Państwa w tradycyjnej formie papierowej.
W numerze m.in. informacja o tegorocznym budżecie gminy, dlaczego gmina chce zamknąć szkołę w Gronowie, podsumowanie pierwszego roku funkcjonowania Zakładu Gospodarki Komunalnej, o pracach wykonywanych w sołectwach, relacja z lubickiego WOŚP i wywiad z dyrektor biblioteki publicznej.
Lutowy numer "Gońca" przeczytacie tutaj.
drukuj (Lutowy numer "Gońca gminnego")
Metryka
- Data 2021-02-11
Trudne warunki pogodowe. Uważajmy na drogach i chodnikach
Trwa tegoroczna akcja zima, więc cały sprzęt jakim dysponuje Zakład Usług Komunalnych codziennie rusza na drogi, a mamy ich do utrzymania ok. 200 km.
Na terenie gminy pracują dwie równiarki, które nadają się również do odśnieżania, cztery ciągniki, dwie ciężarówki z pługami i dwie koparki. Drogi nie są posypywane solą, lecz mieszanką chlorku sodu z piaskiem, do czego wykorzystuje się m.in. maszynę „piast".
- Trzeba jednak pamiętać, że ile byśmy nie mieli sprzętu, to i tak, gdy sypie śnieg wszystkiego od razu nie odśnieżymy – mówi Alicja Konieczka z ZUK. - Obowiązuje zasada, że najpierw sprzęt wyjeżdża na drogi pierwszej i drugiej kolejności odśnieżania, a na pozostałe przychodzi czas w następnej, często dopiero kiedy opady ustają. Zdajemy sobie sprawę, że każdy, jadąc rano do pracy chciałby mieć dobre warunki, ale sytuacja pogodowa nie jest łatwa. Prosimy o zrozumienie i ostrożność.
Pamiętajmy też, że za odśnieżanie chodnika bezpośrednio przylegającego do posesji odpowiada jej właściciel. Śnieg usunięty z chodnika należy pryzmować na chodniku bezpośrednio przy krawędzi jezdni wzdłuż krawężników, w taki sposób, aby odśnieżanie chodnika nie stwarzało zagrożenia w ruchu drogowym i pieszych. Przypominamy też o konieczności usuwaniu sopli i nawisów śniegu z dachów budynków. Obowiązki te wynikają przede wszystkim z zapisów ustawy o utrzymaniu czystości i porządku w gminach
- Prosimy również o niepozostawianie zaparkowanych pojazdów na osiedlowych drogach w strefie zamieszkania poza miejscami wyznaczonymi do parkowania pojazdów, które utrudniają odśnieżanie dróg - mówi Dorota Kamińska, kierownik Referatu Gospodarki odpadami. - W przypadku obfitych opadów śniegu będziemy również zwracać się do państwa o ewentualne przestawienie zaparkowanych pojazdów na drogach gminnych lub parkingach celem ich prawidłowego odśnieżenia.
drukuj (Trudne warunki pogodowe. Uważajmy na drogach i chodnikach)
Metryka
- Data 2021-02-10
Gmina Lubicz ma gorące serce
Gmina Lubicz podczas Finału Wielkiej Orkiestry Świątecznej Pomocy zebrała 118.242,40 zł. Lubicka Orkiestra, dzięki zaangażowaniu sołectw, szkół, strażaków, wolontariuszy i lokalnych przedsiębiorców, w różnej formie zagrała w każdym z 17 sołectw.
Okazało się więc, że mimo pandemii zasięg Orkiestry w gminie Lubicz w tym roku był jeszcze większy niż w ubiegłym, kiedy to Lubicz wystartował w akcji po raz pierwszy pod własnym szyldem.
- Pandemia wymusiła na wszystkich nowy styl działania, ale w naszym gronie, wystarczyło rzucić hasło i już mieliśmy wiele pomysłów na to, jak zrobić tegoroczny Finał tak, aby był ciekawy i przebiegał zgodnie z obowiązującymi obostrzeniami – mówi Katarzyna Gałka, szefowa lubickiego sztabu #5490.
W finałową niedzielę w gminę Lubicz wyruszyły cztery wesołe siemabusy (lubicki, złotoriański, grębocki i rogowski), odwiedzając wszystkie miejscowości gminy. Zachęcano do rodzinnych wyjść na spotkanie z wośpowym autem, gdzie można było dorzucić się do puszki i zabawić się w konkursie z nagrodami.
Odbył się także samochodowy Rajd od serca przygotowany przez Country Event oraz akcja krwiodawstwa, w której zebrano ok.15 litrów krwi. W działania w terenie najbardziej zaangażował się Kwartet od serca (sołectwa Złotoria, Grabowiec, Kopanino i Nowa Wieś), Grębocin, Krobia, Rogowo i Rogówko, a także szkoły w Lubiczu Dolnym i Lubiczu Górnym.
Poza tym Referat Promocji i Komunikacji Urzędu Gminy Lubicz wraz ze sztabem zaproponowali mieszkańcom udział w Morsowym wośpowaniu w jeziorze w Józefowie, indywidualnym Biegu dla WOŚP i Spacerze z pupilem. Dla wszystkich przygotowano specjalne pakiety. Zdjęcia opublikowane przez mieszkańców w fejsbukowych wydarzeniach stworzyły wirtualne albumy Finału dostępne na FB: Sztab Wośp Lubicz Dolny.
Część aktywności przenieśliśmy właśnie do Internetu, gdzie w niedzielę uruchomiliśmy studio live z finałem licytacji przedmiotów wcześniej prezentowanych na fanpage’u sztabu. A wieczorem oglądaliśmy tu „Światełko do nieba” przygotowane przez strażaków z gminy.
Lubicz również m.in. nagrał balladę Mickiewicza pt. „Pani Twardowska", której każdą ze zwrotek przeczytał ktoś inny – bardziej lub mniej znany mieszkaniec lub mieszkanka gminy, obowiązkowo wrzucając datek do orkiestrowej puszki. Premiera „spektaklu" odbyła się w dniu Finału. Powstał także lubicki teledysk do piosenki „Burze" w wykonaniu Kamila Czeszela, laureata opolskiego koncertu „Debiuty", zagrzewający do wośpowego działania.
Z kolei na FB Szkoły Podstawowej w Lubiczu Dolnym zobaczyliśmy muzyczny projekt zespołu Baader Meinhof oraz ich przyjaciół Sławomira Pawłowskiego i Bożeny Cieślik, którzy wspólnie stworzyli cover piosenki "Serce sercu" zespołu HA-DWA-O. Za zdobycie 300 lajków (a zdobyła więcej) jeden z lubickich przedsiębiorców z gminy zgodził się zasilić wośpową puszkę niezłą sumą.
- Pandemia wyzwoliła w nas wszystkich kreatywność i entuzjazm do czynienia dobra – mówi szefowa sztabu. – Dziękujemy każdemu, kto w jakikolwiek sposób zaangażował się w akcję: darczyńcom, zasilającym puszki i eSkarbonki oraz pomagającym przy organizacji Finału.
WIĘCEJ, m.in.:
>>> bezpośrednie relacje z Finału: FB Sztab Wośp Lubicz Dolny
>>> album na FB Lubicki Bieg dla WOŚP
>>> album na FB Morsowe wośpowanie w Józefowie
>>> album na FB Spacer z pupilem dla WOŚP
>>> ballada Mickiewicza "Pani Twardowska" w wykonaniu mieszkańców gminy [YouTube]
>>> lubicki teledysk Kamila Czeszela [YouTube; realizacja Marcin Klawiński]
drukuj (Gmina Lubicz ma gorące serce)
Metryka
- Data 2021-02-03
Trwa nabór na rachmistrza spisowego
Narodowy Spis Powszechny Ludności i Mieszkań odbędzie się w dniach 1 kwietnia - 30 czerwca 2021 roku. Nabór kandydatów na rachmistrzów Urząd Gminy Lubicz prowadzi do 9 lutego. Jesteście zainteresowani?
Jakie warunki trzeba spełnić, by zostać rachmistrzem? I jakie będą jego zadania?
Wszystkie informacje i wniosek znajdziecie tutaj.
drukuj (Trwa nabór na rachmistrza spisowego)
Metryka
- Data 2021-02-03
Konsultacje Planu Strategicznego dla Wspólnej Polityki Rolnej
Do 15 lutego w Ministerstwie Rolnictwa i Rozwoju Wsi potrwa I etap konsultacji projektu Planu Strategicznego dla Wspólnej Polityki Rolnej. Resort zaprasza do zapoznania się z tym projektem i zgłaszania uwag.
Jak zgłosić uwagi? Każdy zainteresowany ma możliwość zapoznania się z projektem PS dla WPR i zgłoszenia swojego stanowiska poprzez specjalny formularz. Dokumenty te dostępne są na stronie rządowej - tutaj.
drukuj (Konsultacje Planu Strategicznego dla Wspólnej Polityki Rolnej)
Metryka
- Data 2021-02-01
Komunikaty w sprawie odśnieżania dachów [AKTUALIZACJA]
Komunikat Krajowego Centrum Zarządzania Kryzysowego
"(...) w związku z opadami śniegu Rządowe Centrum Bezpieczeństwa przypomina o obowiązku odśnieżania dachów. Do wykonywania tych czynności zobowiązani są nie tylko właściciele, ale także zarządcy nieruchomości.
Szczególną uwagę należy zwrócić na obiekty tymczasowe, wykorzystywane przy szpitalach i przychodniach dla chorych na COVID-19 oraz budynki wielkopowierzchniowe, m.in.: hipermarkety, hale targowe, sportowe i magazyny".
Komunikat Powiatowego Inspektora Nadzoru Budowlanego w Toruniu
"Działając w imieniu Powiatowego Inspektora Nadzoru Budowlanego w Toruniu, przypominam Państwu o obowiązku - wynikającym z art. 62 pkt 2 ustawy z dnia 7 lipca 1994 r. Prawo budowlane (T.j. Dz. U. z 2020 r. poz. 1333 ze zm.) - zapewnienia bezpiecznego użytkowania obiektów budowlanych, w zakres czego wchodzi także obowiązek usuwania z połaci dachów obiektów (ze szczególnym naciskiem na obiekty wielkopowierzchniowe) zalegającego śniegu. Jak wskazuje Główny Inspektor Nadzoru Budowlanego, właściciel lub zarządca obiektu budowlanego nie powinien dopuszczać do przeciążenia konstrukcji obiektu przez zalegający śnieg, a w związku z tym należy zapewnić właściwe i odpowiednio częste odśnieżanie dachu oraz elementów elewacji budynku. Organ centralny wskazuje także na zagrożenie dotyczące prac związanych z usuwaniem śniegu z dachu, które mogą stwarzać ogromne zagrożenie dla osób je wykonujących a także dla samego budynku, dlatego muszą być prowadzone z zachowaniem zasad bezpieczeństwa i przepisów BHP.
Organ pragnie przy tym podkreślić, że nie jest to jedyne zagrożenie występujące w okresie jesienno-zimowym. Konieczne jest usuwanie sopli, brył, nawisów lodowych i śniegowych, które mogą zagrozić bezpieczeństwu osób znajdujących się na ciągach pieszych i jezdnych, przebiegających bezpośrednio przy budynku.
Biorąc pod uwagę powyższe, Powiatowy Inspektor Nadzoru Budowlanego w Toruniu zwraca się do Państwa o bezzwłoczne podejmowanie działań w omówionym zakresie. Organ pragnie przy tym podkreślić, że w razie natężenia zjawiska związanego ze znacznymi opadami śniegu, Inspektorzy PINB przeprowadzą (z zachowaniem wszelkich rekomendowanych zasad bezpieczeństwa w okresie panującej epidemii koronawirusa) doraźne kontrole obiektów wielkopowierzchniowych w celu ustalenia, czy właściciele i zarządcy obiektów budowlanych wypełniają obowiązki wynikające z ustawy Prawo budowlanego".
drukuj (Komunikaty w sprawie odśnieżania dachów [AKTUALIZACJA])
Metryka
- Data 2021-02-01
Przedsiębiorcy zwolnieni z opłaty za koncesję na alkohol
W sobotę 30 stycznia Rada Gminy Lubicz podjęła uchwałę w sprawie zwolnienia z należnej za rok 2021 opłaty za korzystanie z zezwoleń na sprzedaż napojów alkoholowych w gastronomii.
Możliwość całorocznego zwolnienia z tej opłaty dały samorządom przepisy, które weszły w życie zaledwie 26 stycznia 2021 r.
– Dzięki temu mieliśmy prawo zwolnić właścicieli lokali gastronomicznych i hoteli z opłat za sprzedaż alkoholu do konsumpcji – mówi wójt Marek Nicewicz. - Postanowiliśmy więc to zrobić, aby pomóc naszym przedsiębiorcom, ponieważ zamknięcie gastronomii, z powodu pandemii, spowodowało, że branża ta codziennie notuje straty.
Uchwała musiała być jednak podjęta do 31 stycznia 2021 r., dlatego zdalna sesja została zwołana w trybie nadzwyczajnej - w piątek na sobotę.
Rada przyjęła uchwałę jednogłośnie.
drukuj (Przedsiębiorcy zwolnieni z opłaty za koncesję na alkohol)
Metryka
- Data 2021-02-01
W sobotę nadzwyczajna sesja Rady Gminy Lubicz
Obrady 30 stycznia będą dotyczyć tylko jednej uchwały w sprawie zwolnienia z należnej za rok 2021 opłaty za korzystanie z zezwoleń na sprzedaż napojów alkoholowych. Początek sesji o godz. 13.00.
Możliwość całorocznego zwolnienia z opłaty za korzystanie z zezwoleń na sprzedaż napojów alkoholowych dały przepisy, które weszły w życie zaledwie 26 stycznia 2021 r.
– Dzięki temu mamy prawo zwolnić właścicieli lokali gastronomicznych i hoteli z opłat za sprzedaż alkoholu do konsumpcji – mówi wójt Marek Nicewicz. - Postanowiliśmy więc to zrobić, aby pomóc naszym przedsiębiorcom, ponieważ zamknięcie gastronomii, z powodu pandemii, spowodowało, że branża ta codziennie notuje straty. Uchwała musi zostać podjęta do 31 stycznia 2021 r., dlatego zawnioskowałem o zwołanie nadzwyczajnej sesji na jutro.
>>> Wniosek wójta, porządek obrad, projekt uchwały.
>>> Transmisja odbędzie się tutaj.
Metryka
- Data 2021-01-29
Nabór do Przedszkola "Chatka Puchatka"
W dniach od 8 do 26 lutego trwa składanie dokumentów do Przedszkola Publicznego "Chatka Puchatka" w Lubiczu Górnym.
Wniosek wraz z załącznikami należy pobrać z BIP Gminy Lubicz (kliknij), czytelnie wypełnić i złożyć w siedzibie Przedszkola Publicznego ,,Chatka Puchatka" w Lubiczu Górnym ul. Piaskowa 2 w godz. 7.30-15.30 w dni robocze. Dokumenty prosimy złożyć zgodnie z harmonogramem w dniach od 8 do 26 lutego. Dodatkowe informacje można uzyskać pod nr telefonu 56 678 51 46.
drukuj (Nabór do Przedszkola "Chatka Puchatka")
Metryka
- Data 2021-01-29
W gminie Lubicz Orkiestra zagra z wielką mocą
Siemabusy, spacer z pupilem, morsowanie, licytacje w Internecie i wiele innych wydarzeń. Jak w dobie koronawirusa zrobić charytatywną akcję integrującą? Lubicki sztab skupiający wszystkie sołectwa gminy Lubicz postarał się, aby było radośnie i bezpiecznie.
W tamtym roku gmina Lubicz po raz pierwszy wystartowała w Wielkiej Orkiestrze Świątecznej Pomocy pod własnym szyldem i rozbiła bank, zbierając 133,292,01 zł.
- Pandemia wymusiła na wszystkich nowy styl działania, ale w naszym gronie, wystarczyło rzucić hasło i już mieliśmy wiele pomysłów na to, jak zrobić tegoroczny Finał tak, aby był ciekawy i przebiegał zgodnie z obowiązującymi obostrzeniami – mówi Katarzyna Gałka, szefowa lubickiego sztabu #5490.
Większość aktywności trzeba było przenieść do Internetu, głównie na profil Sztab Wośp Lubicz Dolny, ale zaplanowano także bezpieczne działania w terenie.
Lubicz m.in. nagrał balladę Mickiewicza pt. „Pani Twardowska", której każdą ze zwrotek przeczytał ktoś inny – bardziej lub mniej znany mieszkaniec lub mieszkanka gminy, obowiązkowo wrzucając datek do orkiestrowej puszki. Premiera „spektaklu" odbędzie się w dniu Finału. Powstał także lubicki teledysk do piosenki „Burze" w wykonaniu Kamila Czeszela, laureata opolskiego koncertu „Debiuty", zagrzewający do wośpowego działania.
Z kolei na FB Szkoły Podstawowej w Lubiczu Dolnym można słuchać i oglądać muzyczny projekt zespołu Baader Meinhof oraz ich przyjaciół Sławomira Pawłowskiego i Bożeny Cieślik, którzy wspólnie stworzyli cover piosenki "Serce sercu" zespołu HA-DWA-O. Jeśli oryginalny post z piosenką zdobędzie 300 lajków, to jeden z lubickich przedsiębiorców z gminy zgodził się zasilić wośpową puszkę niezłą sumą.
Na lubickim FB sztabowym już od dłuższego czasu wystawiane są także przedmioty na licytacje. Ich finał będzie transmitowany w studiu live 31 stycznia od godz. 16.00. Do wygrania m.in. moneta upamiętniająca 28. Finał WOŚP, pozłacana 24-karatowym złotem, z certyfikatem oraz autografem Jurka Owsiaka, a także koszenie ogródka przez sołtysa Krobi czy ugotowanie obiadu wraz z deserem dla sześciu osób przez panie ze stowarzyszenia w Rogówku oraz dziesiątki innych rzeczy.
Poza tym gmina wraz ze sztabem zaproponowali mieszkańcom udział w kilku wydarzeniach rekreacyjnych: morsowaniu w małych grupach w jeziorze w Józefowie; indywidualnym Biegu dla WOŚP, do czego zachęca się także miłośników kijków czy rowerzystów; oraz Spacer z pupilem dla WOŚP, podczas którego należy zrobić sobie zdjęcie ze zwierzakiem. Dla wszystkich przygotowano specjalne pakiety. Zdjęcia opublikowane przez mieszkańców w fejsbukowych wydarzeniach pozwolą na ich upamiętnienie, tworząc wirtualną galerię Finału.
W finałową niedzielę w gminę Lubicz ruszą również wesołe siemabusy, odwiedzając wszystkie 17 sołectw. Gmina zachęca do rodzinnych wyjść na spotkanie z wośpowym autem, gdzie z zachowaniem bezpieczeństwa epidemicznego będzie można dorzucić się do puszki i zabawić się w konkursie z nagrodami.
W WOŚP w gminie Lubicz zaangażowało się 28 wolontariuszy wraz z pomocnikami, szkoły i sołectwa. Sztab wsparli także lokalni przedsiębiorcy. W kilku sołectwach odbędą się dodatkowe atrakcje, np. sołecki sztab w Złotorii organizuje Rajd od serca przez Złotorię, Grabowiec, Kopanino i Nowa Wieś.
- Pandemia wyzwoliła w nas wszystkich kreatywność i entuzjazm do czynienia dobra – mówi szefowa sztabu. – Dziękujemy każdemu, kto w jakikolwiek sposób zaangażował się w akcję: darczyńcom, licytującym i pomagającym przy organizacji.
W tym roku Wielka Orkiestra Świątecznej Pomocy prowadzi zbiórkę na zakup sprzętu dla laryngologii, otolaryngologii i diagnostyki głowy.
>>> PEŁEN PROGRAM LUBICKIEGO WOŚP.
Więcej informacji znajdziecie też na FB Sztab Wośp Lubicz Dolny oraz na stronie www.lubicz.pl w zakładce WOŚP.
drukuj (W gminie Lubicz Orkiestra zagra z wielką mocą)
Metryka
- Data 2021-01-29
Wyjaśnij z ekspertem. Dyżury telefoniczne ZUS
Będzie można dowiedzieć się o ważnych zmianach dotyczących wysyłanych przez ZUS PITów za 2020 r. i na temat wsparcia w ramach Tarczy 7.0. Trwają także zapisy na bezpłatne szkolenie online dla seniorów.
Zakład Ubezpieczeń Społecznych rozpoczął wysyłkę deklaracji podatkowych PIT za 2020 r. Trafią one do wszystkich osób, które w zeszłym roku chociaż raz pobrały świadczenie z ZUS, np. emeryturę, rentę lub zasiłek. W tym roku ZUS jednak nie rozlicza świadczeniobiorców z nadpłatą podatku. Warto więc skorzystać
z dyżuru telefonicznego z ekspertami ZUS i dowiedzieć się więcej na ten temat. Dyżur na temat nowych zasad rozliczenia podatku osób pobierających emerytury i renty odbędzie się 2 i 3 lutego. Podczas dyżuru eksperci wyjaśnią m.in.:
- kto otrzyma z ZUS PIT 11A, a kto PIT 40A ,
- czy osoby, które otrzymają PIT 11A muszą rozliczyć się z urzędem skarbowym,
- kto musi samodzielnie rozliczyć się z urzędem skarbowym,
- zasady sporządzania i wysyłania przez ZUS PIT-ów po osobie zmarłej,
- zmiany w realizacji wniosków o niestosowanie zmniejszenia zaliczki na podatek.
- Eksperci będą dyżurować 2 lutego w godz. 9-12.00 pod numerem telefonu 52 34 18 704 oraz 3 lutego w godz. 9-11.00 pod numerem 502 008 688 – informuje Krystyna Michałek, rzecznik regionalny ZUS województwa kujawsko-pomorskiego.
Ekspert dla przedsiębiorców
Korygowanie dokumentów ubezpieczeniowych i Tarcza 7.0 to temat najbliższego dyżuru telefonicznego, który odbędzie się 2 lutego. W godz. 9-11.00 pod nr. tel. 56 450 68 86 będzie można dowiedzieć się, kiedy należy dokonać korekty dokumentu, a kiedy zrobić ponowne zgłoszenie. Eksperci wyjaśnią także jak poprawnie zmienić dane identyfikacyjne płatnika, ubezpieczonego oraz jak prawidłowo skorygować dokumenty rozliczeniowe. Z kolei w godz. 9-11.00 fachową poradę eksperta na temat wsparcia ZUS w ramach Tarczy 7.0 będzie można uzyskać pod nr. tel. 54 230 73 83. W trakcie dyżuru będzie można zapytać o zwolnienie ze składek za styczeń albo za grudzień i styczeń oraz ponowną wypłatę świadczenia postojowego z Zakładu Ubezpieczeń Społecznych.
Bezpłatne szkolenie dla seniorów
Już w najbliższą środę, 3 lutego o godz. 9.00 odbędzie się bezpłatne webinarium dedykowane dla emerytów
z rocznika 1953. W trakcie tego szkolenia eksperci ZUS omówią zasady przeliczenia emerytury, a także wyjaśnią komu i kiedy ZUS wypłaci wyrównanie. Powiedzą także, co zrobić w sytuacji, jeśli ZUS odmówi przeliczenia świadczenia. Osoby zainteresowane udziałem mogą zapisywać się do 2 lutego, wysyłając maila na adres: sylwia.bratkowska-gburek@zus.pl. W treści należy wskazać datę i temat szkolenia, liczbę uczestników (imiona i nazwiska), a także numer telefonu do kontaktu.
Informacje prasowe ZUS
drukuj (Wyjaśnij z ekspertem. Dyżury telefoniczne ZUS)
Metryka
- Data 2021-01-29
Posegreguj odpady i wystaw worki
W najbliższą sobotę 30 stycznia w całej naszej gminie mamy odbiór śmieci segregowanych. Worki prosimy wystawić przed godziną 6 rano. Jakie są najważniejsze zasady dotyczące reklamacji nieodebranych odpadów? Przypominamy.
- Jeżeli odpady nie zostały zabrane w wyznaczonym dniu albo zdarzyły się inne zakłócenia dotyczące zbiórki, należy niezwłocznie złożyć reklamację (w najbliższy dzień roboczy) w Referacie Gospodarki Odpadami Urzędu Gminy Lubicz: e-mailowo, wysyłając wiadomość na adres go@lubicz.pl, podając swoje dane oraz adres posesji lub telefonicznie pod nr 56 621 21 28. To pracownicy tego referatu w bezpośrednim kontakcie z firmami wywożącymi odpady mogą interweniować w zgłaszanej przez Państwa sprawie. Firma na zrealizowanie reklamacji ma trzy dni robocze. Zgłoszenie po dłuższym czasie wyklucza możliwość wyjaśnienia sytuacji.
- Najczęściej, jak wynika z naszych analiz (kontroli, ale także GPS-ów w śmieciarkach), odpady nie są zabierane z tych posesji, których właściciele na czas, czyli do godz. 6.00 rano, nie wystawiają pojemników lub worków. Firma nie ma możliwości wielokrotnego podjeżdżania pod jeden adres, ponieważ musi obsłużyć ok. 5.500 domostw.
- Pamiętajmy także o dokładnym zawiązaniu worków. Szkło w nich nie może być potłuczone. Worek z odłamkami podczas ładowania go na samochód pęka, a odłamki szkła ranią pracowników firmy zajmującej się odbiorem odpadów.
Więcej na temat wywozu śmieci przeczytacie tutaj.
drukuj (Posegreguj odpady i wystaw worki)
Metryka
- Data 2021-01-28
Znawca rolnictwa, a prywatnie fan żużla
Mirosław Górski, kierownik Referatu Rolnictwa i Ochrony Środowiska odchodzi na emeryturę. Dziś pożegnał się z szefostwem i współpracownikami.
Mirosław Górski pracę zawodową zaczynał w obecnym Pacifiku w 1981 roku. W 1985 r. został urzędnikiem w Wydziale Rolnictwa i Gospodarki Żywnościowej Urzędu Wojewódzkiego.
W Urzędzie Gminy Lubicz pan Mirek przepracował 32 lata. Najpierw jako inspektor ds. inwestycji, potem kierownik referatu rolnictwa i gospodarki żywnościowej, kierownik działu techniczno-inwestycyjnego, a od 2011 roku kierownik referatu rolnictwa i ochrony środowiska.
- W tym czasie miałem przyjemność poznać wielu wspaniałych ludzi, w tym sołtysów i radnych – mówi. – Od jutra sam sobie będę szefem, ale na pewno będzie mi brakowało moich cudownych koleżanek z referatu.
Na emeryturze pan Mirek zamierza poświęcać dużo czasu swoim trzem pasjom – działce, łowieniu ryb, a gdy skończy się pandemia żużlowi.
drukuj (Znawca rolnictwa, a prywatnie fan żużla)
Metryka
- Data 2021-01-27
Konkurs "Zabytek Zadbany 2021"
Narodowy Instytut Dziedzictwa ogłosił nabór do kolejnej edycji ogólnopolskiego konkursu „Zabytek Zadbany 2021”, który skierowany jest do właścicieli sprawujących opiekę nad obiektami zabytkowymi w sposób godny propagowania.
Konkurs ma na celu promocję właściwej opieki nad zabytkami – prowadzonych prac konserwatorskich, rewaloryzacyjnych i adaptacyjnych, a także systematycznych działań na rzecz właściwego utrzymania zabytków. Nadzór nad przedsięwzięciem, w imieniu Ministra Kultury i Dziedzictwa Narodowego, sprawuje Generalny Konserwator Zabytków.
Konkurs nie ma charakteru finansowego, adresowany jest do właścicieli, posiadaczy i zarządców obiektów zabytkowych wpisanych do rejestru zabytków nieruchomych.
Termin składania wniosków upływa 31 stycznia, a szczegółowe informacje można znaleźć - tutaj.
drukuj (Konkurs "Zabytek Zadbany 2021")
Metryka
- Data 2021-01-27
Sprawdzamy podłączenia, deklaracje i umowy
Urząd Gminy Lubicz przypomina i zachęca mieszkańców sołectwa Krobia do podłączeń swoich posesji do kanalizacji. To konieczne.
Właściciele domów mają obowiązek przyłączenia się do istniejącej kanalizacji publicznej i likwidacji szamba (zgodnie z ustawą z 13.09.96 r. o utrzymaniu czystości i porządku w gminach). Wyjątek stanowią posiadacze przydomowych oczyszczalni ścieków.
W lutym w Krobi pojawi się komisja z urzędu, która będzie sprawdzała w jaki sposób oprowadzane są ścieki z poszczególnych domostw na następujących ulicach: Okrągła, Olszynowa, Olimpijska, Pod Dębami, Cisowa, Osikowa, Osiedlowa, Żytnia, Makowa, Poprzeczna.
Sieć oraz przyłącza do granicy działek zostały wybudowane ze środków publicznych – z budżetu gminy i dotacji unijnej, natomiast przyłączenie posesji od granicy działki do domu leży po stronie jego właściciela.
Przypominamy, że właściciel może wykonać to sam, zgodnie ze sztuką budowlaną, albo zlecić, np. lubickiemu Zakładowi Usług Komunalnych, który nadzoruje funkcjonowanie kanalizacji na terenie gminy. Bieżący odcinek przyłącza to ok. 100 zł za metr. W razie problemu z jednorazowym wyłożeniem tej kwoty zachęcamy do kontaktu z biurem tej gminnej spółki. Co istotne, ważne, aby wykonanie przyłączenia domu zgłosić do ZUK w momencie, gdy ułożona w wykopie rura jest widoczna, czyli przed zasypaniem. Inspektor ze spółki przyjedzie na odbiór w ciągu 2-4 dni (kontakt do ZUK: 56 678 53 14 w. 30, 609 599 935).
Przy okazji wizyty komisji z UG urzędnicy przyjrzą się także innym sprawom.
- Zgodności deklaracji odpadów z liczbą mieszkańców danej posesji (sprawy można wyjaśniać pod nr tel. 56 621 21 28, Urząd Gminy Lubicz pok. nr 1).
- Posiadaniu kompostowników - u tych osób, które je zgłosiły (nr tel. 56 621 21 28, pok. nr 1).
- Poproszą też o przedłożenie umów i rachunków za wywóz szamba (56 621 21 28, pok. nr 1).
- Sprawdzą również zgodność opodatkowania podatkiem od nieruchomości ze stanem faktycznym (56 621 21 09, pok. nr 27).
- Sprawdzą także czy na domach lub bramkach w widocznym miejscu są umieszczone numery posesji i skrzynki pocztowe – przypominamy, że akurat ten obowiązek spoczywa na ich właścicielach.
Członkowie gminnego zespołu posiadają identyfikatory i upoważnienia wójta. Uwaga – komisja nie pobiera żadnych opłat, będzie natomiast dysponować różnymi drukami dla mieszkańców.
drukuj (Sprawdzamy podłączenia, deklaracje i umowy)
Metryka
- Data 2021-01-27
Budujemy nowoczesny i bezpieczny plac zabaw
Do końca marca ma być gotowy plac zabaw, który powstanie w sąsiedztwie nowego pumptracku w Lubiczu Górnym. To ostatni etap rewitalizacji tego obszaru.
Po kilku przetargach udało się wyłonić firmę, która wybuduje plac zabaw w Lubiczu Górnym. To firma Konar ze Świecia, z którą wójt Marek Nicewicz podpisał już umowę na wykonawstwo inwestycji.
Tak, jak zapowiadaliśmy plac powstanie obok nowego pumptracku, tworząc gminne centrum rekreacji dla dzieci i młodzieży. Pisaliśmy o tym tutaj. Wyłoniony wykonawca placu zabaw ma go przygotować do końca marca, więc już wiosną najmłodsi będą mogli z niego korzystać.
Na placu znajdzie się m.in. duży zestaw zabawowy wraz ze zjeżdżalnią, huśtawki oraz linaria, pod którymi podłoże dla bezpieczeństwa będzie wyłożone gumową matą
Budowa placu zabaw w Lubiczu Górnym to ostatni etap rewitalizacji tego miejsca, która rozpoczęła się jeszcze w ubiegłej kadencji i jest finansowana ze specjalnego, na ten cel przeznaczonego programu z pieniędzy unijnych. Żadnego innego obszaru w gminie Lubicz nie wpisano w ten program, wobec czego środki, które gmina pozyskała z programu, mogły być przeznaczone wyłącznie na Lubicz Górny.
W naszej gminie mamy kilkadziesiąt placów zabaw. Na wnioski sołtysów co roku zajmujemy się naprawami albo uzupełnianiem placów o kolejne elementy. W ubiegłym roku został zmodernizowany m.in. plac zabaw w Lubiczu Dolnym, dokończenie wiosną tego roku. Modernizowany będzie także plac w centrum Gronowa. Poza tym w ubiegłym roku w sołectwie Gronowo powstały aż dwa nowe place zabaw.
drukuj (Budujemy nowoczesny i bezpieczny plac zabaw)
Metryka
- Data 2021-01-26
WOŚP. Rozkręcamy się. Licytacje, kiermasze, wydarzenia
Wielkimi krokami zbliża się ostatnia niedziela stycznia, a wraz z nią Finał WOŚP. Licytacje już trwają! Zachęcamy do zabawy w szczytnym celu. Zapraszamy też do udziału w wydarzeniu m.in. Spacerze z pupilem i innych.
Razem z lubickim sztabem i jego szefową Katarzyną Gałką, niektórymi szkołami i sołectwami dwoimy się i troimy, aby zagrać z Orkiestrą w innej, spowodowanej pandemią, formie. Wiele naszych działań przenosimy do Internetu, dlatego bardzo ważne jest, aby wszyscy zainteresowani byli na bieżąco.
Jak to zrobić?
Polubić i obserwować profil Sztab Wośp Lubicz Dolny (a najlepiej dodatkowo w ustawieniach obserwowania ustawić stronę jako ulubioną).
Na sztabowym profilu już w tej chwili można licytować kilkadziesiąt wartościowych i ciekawych przedmiotów.
Więcej o tym, jak licytować (oraz link do wystawianych przedmiotów) tutaj. Codziennie dochodzą kolejne fanty.
Na fanpage’u sztabu znajdziecie też wszystkie informacje o wośpowych wydarzeniach, a potem relacje z nich.
Zapraszamy m.in. na Bieg dla WOŚP, morsowanie, do oddania krwi oraz do udziału w naszej nowej inicjatywie – specjalnie dla wszystkich miłośników zwierząt Spacerze z Pupilem dla WOŚP.
Pamiętajcie też, że w dniu Finału właśnie na Sztab Wośp Lubicz Dolny spotkamy się z Wami na żywo - od 16.00.
Pełen program Orkiestry.
drukuj (WOŚP. Rozkręcamy się. Licytacje, kiermasze, wydarzenia)
Metryka
- Data 2021-01-25
Uczniowie z Gronowa będą dowożeni do Grębocina
Radni gminy Lubicz podjęli wczoraj uchwałę intencyjną w sprawie likwidacji, z dniem 31 sierpnia 2021 r., Szkoły Podstawowej w Gronowie. W tej chwili do gronowskiej szkoły uczęszcza 27 uczniów, czyli tylu ilu średnio stanowi jedną klasę. Dla tej grupy jest zatrudnionych 21 nauczycieli.
Od sześciu lat liczba uczniów w szkole w Gronowie regularnie maleje. W roku szkolnym 2015/2016 uczyło się w niej 70 dzieci, a cztery lata później już tylko 40. W tym roku do gronowskiej podstawówki uczęszcza tylko 27 uczniów chodzących do klas II, V, VI i VIII. Istniejące oddziały liczą od 6 do 8 osób, a pozostałych klas w ogóle nie ma. Dodatkowo w przyszłym roku szkolnym liczba dzieci zmniejszy się jeszcze o odchodzących ósmoklasistów, a wtedy stan osobowy dzieci w szkole zrówna się z liczbą nauczycieli.
Wysokie koszty
Nie bez znaczenia jest także argument ekonomiczny, istotny dla samorządów zobowiązanych do dbałości o finanse publiczne. Roczny koszt kształcenia jednego ucznia w placówce znacznie przewyższa wydatki ponoszone na ten cel w pozostałych pięciu szkołach gminy Lubicz. W 2019 r. w Gronowie wyniosły one aż 23,3 tys. zł. W szkole w Młyńcu Pierwszym to 14 tys. zł, w Grębocinie, Lubiczu Dolnym i Lubiczu Górnym 10-12 tys. zł, a w Złotorii 8,7 tys. zł (rocznie na jednego ucznia).
- O planach związanych z reorganizacją szkoły rozmawiamy od roku – mówi wójt Lubicza Marek Nicewicz. - Sytuacja szkoły w Gronowie na bieżąco jest omawiana z kuratorium. W tej sprawie odbyło się wiele spotkań. Podejmowaliśmy różnorodne próby ratowania placówki, jak chociażby wdrożenie kolejnego programu naprawczego, aktywizacji rodziców z sołectwa, założenia szkoły stowarzyszeniowej, co także nie zyskało aprobaty rodziców i uruchomienie przedszkola jako naturalnego sposobu odbudowania społeczności uczniowskiej. Niestety, bez pożądanego efektu.
Troska o jakość nauczania
Niewielka liczebność oddziału nie jest też korzystna dla uczniów, często uniemożliwia stosowanie metod aktywizujących i innych atrakcyjnych dla dziecka sposobów nauki wymagających większej liczby uczniów np. gry, praca zespołowa. W tak małych klasach trudniej nauczyć się funkcjonowania i pracy w grupie czy nawiązywania przyjaźni, a także dostosowania do nowych sytuacji na dalszych etapach kształcenia.
Wąska stała kadra - zaledwie sześciu nauczycieli w pełnym wymiarze, ponieważ pozostałych 15 pracuje tylko na cząstki etatów i posiada zobowiązania także w innych szkołach - uniemożliwia zapewnienie zastępstwa z konkretnego przedmiotu. To zaś może wpłynąć na wyniki nauczania młodzieży na kolejnych poziomach edukacji.
Rodzice wybierają inne szkoły
Co istotne, mała liczba uczniów w szkole w Gronowie nie jest spowodowana niewielką grupą uczniów w tej miejscowości. W tej chwili do gronowskiej szkoły z możliwych 96 dzieci uczęszcza zaledwie 27 (czyli 28 proc.) To oznacza, że większość mieszkańców z obwodu szkoły (72 proc.) podjęło już decyzję o przeniesieniu dzieci do innych placówek. Aż 39 dzieci z Gronowa uczy się w Turznie (w gm. Łysomice), 5 w Młyńcu Pierwszym, a 25 dojeżdża do Grębocina.
To właśnie w Grębocinie gmina chce zapewnić gronowianom możliwość kontynuowania nauki po likwidacji szkoły w ich miejscowości. Od strony organizacyjnej zmiana ta nie spowoduje zwiększenia liczby oddziałów planowanych na rok 2021/2022 w Grębocinie.
Dobra baza, szeroka oferta
- Przeniesienie 21 uczniów z Gronowa zostanie zabezpieczone z wszelkich możliwych stron, m.in. dzieci uczęszczające teraz do tej samej klasy nie zostaną rozdzielone – zapewnia wójt Marek Nicewicz. Oczywiście gmina zapewni im odpowiedni transport z opieką. W celu właściwej adaptacji gronowskich dzieci w szkole w Grębocinie zostanie zorganizowana pomoc psychologiczno-pedagogiczna. Planowane jest przygotowanie zajęć integrujących uczniów z Gronowa z uczniami ze szkoły w Grębocinie. Uczniowie przeniesieni do tej szkoły będą mieli zapewnioną również opiekę świetlicową z atrakcyjnymi zajęciami w czasie oczekiwania na autobus i możliwość dożywiania w stołówce szkolnej z ciepłym posiłkiem. Władze gminy zapewniają także, że w Grębocinie na dzieci czekają lepsze warunki kształcenia, wychowania oraz aktywności artystycznej, społecznej oraz fizycznej.
W Szkole Podstawowej w Grębocinie są realizowane dodatkowe programy i projekty edukacyjne. Placówka jest dostosowana do potrzeb uczniów niepełnosprawnych (winda i podjazdy). Obiekt posiada też bardzo dobrą bazę dydaktyczną do realizacji nowej podstawy programowej oraz nowoczesne i dobrze wyposażone klasopracownie, dwie sale gimnastyczne, siłownię zewnętrzną i wewnętrzną oraz plac zabaw. Dzieci z Gronowa będą mogły korzystać z bogatej oferty zajęć pozalekcyjnych, jak: kółko teatralne, redakcyjne, rękodzielnicze, szachowe, plastyczne, matematyczno-logiczne, chór, zespół muzyczny, zajęcia sportowe. W Grębocinie prężnie działa Samorząd Uczniowski wraz Kołem Wolontariatu.
Co jeszcze?
W ramach procesu tej trudnej dla wszystkich zmiany związanej z przeniesieniem gronowskich uczniów, ich rodzicom będzie udostępniony specjalny numer telefonu do szybkiego rozwiązywania ewentualnych problemów. Zostaną oni także zapoznani z placówką i pedagogiem szkolnym, na którym spocznie zadanie szczególnej opieki nad dziećmi z Gronowa. Natomiast dla nauczycieli z Gronowa, w porozumieniu z nauczycielskimi związkami zawodowymi, władze gminy przygotują alternatywne propozycje pracy.
Z kolei budynek po Szkole Podstawowej w Gronowie będzie wykorzystany na potrzeby społeczności tego sołectwa. W jego części pozostanie 10-godzinne przedszkole, które stanie się filią gminnego przedszkola „Chatka Puchatka” z możliwością jego rozszerzenia o kolejne oddziały. Część obiektu gmina zaadoptuje na potrzeby Centrum Wsparcia Seniora. Poza tym do budynku szkoły, z piwnicy prywatnego domu, będzie przeniesiona filia biblioteki gminnej, z możliwością organizowania spotkań środowiskowych. Obiekt szkolny stanie się także miejscem spotkań KGW Gronowo oraz innych stowarzyszeń, pełniąc w części funkcję świetlicy.
- Przygotowując się do podjęcia uchwały o zamiarze likwidacji szkoły wcześniej dogłębnie przeanalizowaliśmy sytuację. Liczby i fakty mówią za siebie. Choć rozumiem, że może to być trudne do zaakceptowania dla rodziców dzieci z Gronowa, to po prostu nie ma sensu utrzymywać szkoły, w której liczba uczniów zrówna się liczbie nauczycieli – mówi Zbigniew Barcikowski, przewodniczący Rady Gminy Lubicz.
drukuj (Uczniowie z Gronowa będą dowożeni do Grębocina)
Metryka
- Data 2021-01-22
Rada Gminy Lubicz przyjęła budżet na 2021 rok [FILM]
Wydatki gminy Lubicz w tym roku wyniosą ponad 115 mln zł. Czy to oznacza, że można je rozdzielić dowolnie? – Nie można, tak naprawdę do dyspozycji mamy niecałe 25,5 mln zł – mówi wójt Marek Nicewicz. Dlaczego?
21 stycznia Rada Gminy Lubicz podjęła uchwałę w sprawie tegorocznego budżetu gminy z dochodami 118 182 206 zł i wydatkami 115 224 447 zł. Nadwyżka w wysokości 2 957 759 zł zostanie przeznaczona na spłatę wcześniej zaciągniętych pożyczek i kredytów.
- Mimo, że wydatki wyglądają imponująco, to tak naprawdę kwota, którą możemy z nich samodzielnie rozdzielić wynosi dokładnie 25 496 450 zł – mówi wójt Marek Nicewicz. – Pozostałe ¾ budżetu, to pieniądze, które do nas trafiają głównie z dotacji i subwencji oraz na pokrycie zadań zleconych, czyli z przeznaczeniem na konkretne cele. Wpływają oficjalnie do budżetu, a za chwilę przekazujemy je dalej, np. na oświatę i pomoc społeczną.
Oświata jest największą pozycją wynoszącą 32,5 proc. budżetu. To przeszło 37 mln zł. Drugim tego typu wydatkiem jest pomoc społeczna zajmująca 29 proc. budżetu, a więc przeszło 33 mln zł.
Trzecim z kolei wydatkiem, ale dopiero pierwszym, o którym w pełni decyduje gmina są inwestycje. W tym roku Lubicz wyda na nie 13,5 proc. budżetu, czyli prawie 15,5 mln zł. Najważniejsze to: budowa kanalizacji w Lubiczu Górnym, Lubiczu Dolnym i Krobi, budowa dróg - np. ul. Toruńskiej w Grębocinie, budowa sali gimnastycznej dla szkoły w Lubiczu Dolnym oraz przebudowa remizy OSP w Złotorii.
Utrzymanie dróg i oświetlenia pochłania 7 proc. budżetu, a „pozostałe wydatki” to szeroki „worek”, w którym mamy m.in. dopłaty dla mieszkańców do wody i ścieków, rezerwa budżetowa na sytuacje kryzysowe, wszystkie koszty ochrony środowiska, wydatki związane z funkcjonowaniem biura rady i sołectw, geodeci, operaty szacunkowe, plany zagospodarowania czy odszkodowania za przejęcia gruntów.
Inne zakresy zadań przedstawiamy na wykresie. Warto zaznaczyć, że stanowiący 0,6 proc., czyli 681 tys. zł fundusz sołecki, to tylko te pieniądze, które mieszkańcy rozdzielają sami podczas wrześniowego zebrania wiejskiego. Pozostałe wydatki w sołectwach znajdują się w innych kawałkach widocznego na grafice tortu.
- Tegoroczny budżet to budżet zrównoważony – mówi wójt Marek Nicewicz. – Nie planujemy w tym roku deficytu. Trzeba jednak pamiętać, że sytuacja w związku z pandemią jest trudna, a budżet gminy w dużej części składa się z pieniędzy, które otrzymujemy z budżetu państwa. Dlatego tak naprawdę nie mamy żadnej pewności, że nasze prognozy staną się faktem. Także na naszym terenie mogą zdarzyć się różne sytuacje związane z organizacją i logistyką zaplanowanych zadań. Chciałbym jednak podkreślić, że zrobimy wszystko, aby działać jak najsprawniej i realizować nasze pomysły. Zresztą każdy, kto obserwuje pracę gminy, choćby śledząc naszą stronę internetową czy „Gońca gminnego”, to doskonale wie, że mimo pandemii, z zachowaniem reżimu sanitarnego, działaliśmy cały czas, budując, remontując, modernizując czy przygotowując dokumentację przyszłych inwestycji.
>>> Szczegółowo rozpisane tegoroczne dochody i wydatki znajdziecie w uchwale budżetowej z 21.01.21 r.
>>> BUDŻET GMINY NA 2021 ROK [FILM NA YOUTUBE]
drukuj (Rada Gminy Lubicz przyjęła budżet na 2021 rok [FILM])
Metryka
- Data 2021-01-22
Wydatki: 115.224.447 zł
1. Oświata 32,5 proc.
2. Pomoc społeczna 29 proc.
3. Inwestycje 13,5 proc.
4. Utrzymanie dróg, oświetlenie 7 proc.
5. Administracja 5 proc.
6. Gospodarka odpadami 3,2 proc.
6. Transport publiczny 2,5 proc.
7. Kultura, sport, turystyka, rekreacja, promocja, zabytki 1,4 proc.
7. Fundusz sołecki 0,6 proc.
8. Pozostałe wydatki 5,3 proc.
Uwaga! Dział Świadczeń Rodzinnych zamknięty
Pilne! Dział Świadczeń Rodzinnych GOPS (mieszczący się w budynku B urzędu w Lubiczu Dolnym) od teraz z powodu kwarantanny pracowników jest zamknięty do odwołania.
Ważne - wszystkie świadczenia będą wypłacane zgodnie z harmonogramem.
W sprawach niecierpiących zwłoki można kontaktować się pod nr tel. 500 280 473.
drukuj (Uwaga! Dział Świadczeń Rodzinnych zamknięty)
Metryka
- Data 2021-01-21
Decyzje podatkowe dostarczy "Lubiczanka"
Informujemy, że w związku z sytuacją epidemiczną decyzje podatkowe na 2021 rok będą doręczane mieszkańcom gminy Lubicz - wyłącznie przez pracowników Spółdzielni Socjalnej „Lubiczanka”.
Pracownicy „Lubiczanki” podczas roznoszenia korespondencji będą ubrani w żółte kamizelki.
Przypominamy, że coroczne decyzje ustalające wysokość zobowiązania w podatku od nieruchomości, rolnym i leśnym to przesyłki polecone za zwrotnym potwierdzeniem odbioru, dlatego wymagany jest podpis adresata i data dokonanego doręczenia.
W przypadku braku możliwości skutecznego doręczenia decyzji podatkowej, zostanie ona złożona do odbioru w siedzibie Spółdzielni Socjalnej „Lubiczanka” przy ul. Toruńskiej 36A w Lubiczu Dolnym.
Podajemy nr telefonów, pod którymi można uzyskać informację w sprawie nieodebranego pisma:
+ 48 602 465 922
+ 48 730 203 234
Spółdzielnia Socjalna „Lubiczanka” jest operatorem pocztowym na podstawie koncesji nr B-00517 z dnia 03.03.14 r. z Urzędu Komunikacji Elektronicznej w Warszawie.
Urząd Gminy Lubicz informuje również, że w celu skrócenia czasu doręczenia Państwu corocznych decyzji podatkowych - w roku 2021 decyzje podatkowe w podatku od nieruchomości, rolnym i leśnym wysyłane przez Referat Podatkowy Urzędu Gminy Lubicz, zamiast odręcznego podpisu będą zwierały nadruk imienia i nazwiska wraz ze stanowiskiem służbowym osoby upoważnionej do jej wydania.
Rozwiązanie takie dopuszcza obowiązujący przepis art. 210 § 1a Ordynacji podatkowej w brzmieniu:
„Decyzja w sprawie ustalenia zobowiązania podatkowego w podatku od nieruchomości, podatku rolnym lub podatku leśnym, w tym w formie łącznego zobowiązania pieniężnego, sporządzana z wykorzystaniem systemu teleinformatycznego, może zamiast podpisu własnoręcznego osoby upoważnionej do jej wydania, zawierać podpis mechanicznie odtwarzany tej osoby lub nadruk imienia i nazwiska wraz ze stanowiskiem służbowym osoby upoważnionej do jej wydania.”
Decyzje podatkowe opatrzone powyżej opisanym nadrukiem mają taki sam walor ważności, jak decyzje podpisywane odręcznie dotychczas i posiadają wszystkie wymagane prawem elementy (patrz: Wyrok Naczelnego Sądu Administracyjnego w Warszawie z dnia 28 września 2017r. sygn. : II FSK 1199/17).
drukuj (Decyzje podatkowe dostarczy "Lubiczanka")
Metryka
- Data 2021-01-20
Realizacja działań priorytetowych Rewiru Dzielnicowych w Lubiczu
Na prośbę kierownika Rewiru Dzielnicowych w Lubiczu publikujemy komunikat o podejmowanych działaniach mających na celu poprawę stanu bezpieczeństwa w naszej gminie.
„W związku z wdrożonymi planami priorytetowymi dzielnicowych Rewiru Dzielnicowych w Lubiczu Komisariatu Policji w Dobrzejewicach realizowanych w kolejnym okresie czasu 01 styczeń 2021r. – 30 czerwiec 2021r. tj.:
1) wyeliminowanie zagrożenia niestosowania się przez kierujących do oznakowania (znak zakaz zatrzymywania się „B-36”) w miejscowości Lubicz Dolny ulica Dworcowa, skrzyżowanie z ulicą Toruńską.
2) wyeliminowanie zagrożenia niestosowania się przez kierujących do oznakowania (znak zakaz wjazdu „B-2”) w miejscowości Złotoria ulica Ciechocińska z kierunku ulicy 8 Marca.
3) wyeliminowanie zagrożeń spożywania alkoholu w miejscu niedozwolonym oraz dewastacji mienia w rejonie zlokalizowanego amfiteatru w miejscowości Lubicz Górny ul. Handlowa (dalsza realizacja działań priorytetowych poprzedniego okresu ).
4) wyeliminowanie zagrożeń spożywania alkoholu, rozpalania ognisk w miejscu do tego nieprzeznaczonym oraz nielegalnego połowu ryb na terenie jeziora Józefowo”.
Za naruszanie obowiązującego prawa grożą konsekwencje.
drukuj (Realizacja działań priorytetowych Rewiru Dzielnicowych w Lubiczu)
Metryka
- Data 2021-01-20
Twoja krew może pomóc innym
30 stycznia w godz. 10-13 w Lubiczu Dolnym będzie można oddać krew. Krwiobus stanie na parkingu przy Urzędzie Gminy Lubicz. Tak, jak w ubiegłym roku to jedno z działań w ramach Wielkiej Orkiestry Świątecznej Pomocy.
Jak przygotować się do oddania krwi?
drukuj (Twoja krew może pomóc innym)
Metryka
- Data 2021-01-20
Dyżur telefoniczny i szkolenie online
Jeśli masz wątpliwości dotyczące m.in. zasad sporządzania dokumentów ubezpieczeniowych, to możesz wyjaśnić je w rozmowie z ekspertem ZUS lub zapisać się na szkolenie dotyczące elektronicznych form komunikacji.
W najbliższą środę, 20 stycznia eksperci ZUS będą udzielać porad telefonicznie. Zainteresowani mogą liczyć na pomoc ekspertów w sprawach dotyczących świadczeń chorobowych, małego ZUS-u plus, ustalania wysokości emerytury dla osób z rocznika 1953 czy zasad sporządzania dokumentów ubezpieczeniowych. W godz. 9 - 10.00 dzwoniąc pod nr. tel. 502 008 497, będzie można dowiedzieć się, jak sporządzić dokumenty ubezpieczeniowe i rozliczać składki. Z kolei w godz. 9 - 11 odbędą się trzy dyżury telefoniczne:
- pod nr. tel. 56 450 69 72 eksperci wyjaśnią jak wyliczyć świadczenie chorobowe przy zbiegu nieobecności związanej z kwarantanną, izolacją i zwolnieniem lekarskim.
- na pytania, kto może skorzystać z małego ZUS-u plus i płacić niższe składki na ubezpieczenia społeczne liczone od dochodu, eksperci będą odpowiadać pod nr. tel. 56 610 94 42.
- o przeliczenia emerytury dla osób z rocznika 1953 będzie można pytać pod nr. tel. 56 498 35 81.
Z kolei 22 stycznia w godz. 9-11.00, dzwoniąc pod nr. tel. 54 2886158, będzie można dowiedzieć się, kto jest uprawniony do renty rodzinnej, jaka jest jej wysokość, czy można z niej zrezygnować. Eksperci wyjaśnią także zasady i warunki przyznania renty rodzinnej, a także, w jakich sytuacjach renta rodzinna może być zawieszona lub zmniejszona – informuje Krystyna Michałek, rzecznik regionalny ZUS województwa kujawsko-pomorskiego.
Subkonto w ZUS - ogólne zasady dziedziczenia, to temat dyżuru eksperckiego, który odbędzie się 27 stycznia w godz. 9-11.00 pod nr. tel. 56 54 230 73 80. Podczas dyżuru eksperci wyjaśnią m.in.:
- jak sprawdzić, czy pracodawca odprowadza za nas składki na ubezpieczenia społeczne,
- czym różni się konto emerytalne w ZUS od subkonta i jak najsprawniej wyliczyć przyszłą emeryturę.
Oddział ZUS w Toruniu zaprasza na dwa bezpłatne szkolenia online, które odbędą się za pośrednictwem Cisco Webex Meeting. Szkolenia dotyczyć będą elektronicznych form komunikacji z ZUS oraz prawidłowego wypełniania wniosku o rozłożenie zaległości na raty. Pierwsze szkolenie „Elektroniczne formy komunikacji z ZUS” odbędzie się 27 stycznia o godz. 9.00. W trakcie tego szkolenia, będzie można dowiedzieć się m.in. co to jest PUE i dlaczego warto mieć swój profil na tej platformie. Z kolei szkolenie „Jak wypełnić i uzasadnić wniosek o rozłożenie zaległości na raty” odbędzie się 28 stycznia o godz. 9.00 - informuje Krystyna Michałek, rzecznik regionalny ZUS województwa kujawsko-pomorskiego.
Osoby zainteresowane udziałem mogą zapisywać się odpowiednio do 26 i 27 stycznia, wysyłając maila na adres: sylwia.bratkowska-gburek@zus.pl. W treści należy wskazać datę i temat szkolenia, liczbę uczestników (imiona i nazwiska), a także numer telefonu do kontaktu.
Informacja prasowa ZUS
Więcej www.zus.pl.
drukuj (Dyżur telefoniczny i szkolenie online)
Metryka
- Data 2021-01-19
XXVI sesja Rady Gminy Lubicz
Jak zostanie rozdzielony tegoroczny budżet gminy? W czwartek 21 stycznia radni będą głosować m.in. na nad podjęciem uchwały w sprawie uchwalenia budżetu na 2021 rok. Sesja odbędzie się o godz. 12.00 w świetlicy wiejskiej w Krobi.
Program sesji znajduje się w załączniku.
Bezpośrednia transmisja tutaj.
drukuj (XXVI sesja Rady Gminy Lubicz)
Metryka
- Data 2021-01-18
Pobierz plik
Zwrot podatku akcyzowego zawartego w cenie oleju napędowego
Wnioski o zwrot podatku akcyzowego zawartego w cenie oleju napędowego wykorzystywanego do produkcji rolnej składa się do wójta właściwego ze względu na miejsce położenia gruntów. Każdy rolnik, który w tym roku chce odzyskać część pieniędzy wydanych na olej napędowy używany do produkcji rolnej powinien zbierać faktury VAT.
Stawka zwrotu tego podatku została ustalona w wysokości 1,00 zł na 1 litr oleju.
Terminy składania wniosków :
- od 1 lutego 2021 r do 1 marca 2021 r. wraz z fakturami VAT ( lub ich kopiami) stanowiącymi dowód zakupu oleju napędowego w okresie od 1 sierpnia 2020 r. do 31 stycznia 2021 r.
- w terminie od 2 sierpnia 2021 r. do 31 sierpnia 2021 r. wraz z fakturami VAT (lub ich kopiami ) stanowiącymi dowód zakupu oleju napędowego w okresie od 1 lutego 2021 r. do 31 lipca 2021 r. w ramach limitu zwrotu podatku określonego na 2021 r.
Limit zwrotu podatku akcyzowego w 2021 r. wynosi: 100,00 zł * ilość ha użytków rolnych oraz 30,00 zł * średnia roczna liczba dużych jednostek przeliczeniowych bydła.
Pieniądze wypłacane będą w terminach:
- 1-30 kwietnia 2021 r. w przypadku złożenia wniosku w pierwszym terminie
- 1-29 października 2021 r. w przypadku złożenia wniosku w drugim terminie
na rachunek bankowy podany we wniosku
Wnioski o zwrot podatku akcyzowego składa się w siedzibie Urzędu Gminy w Lubiczu, ul. Toruńska 21, Lubicz Dolny.
drukuj (Zwrot podatku akcyzowego zawartego w cenie oleju napędowego )
Metryka
- Data 2021-01-14
Pozbądź się szkodliwego azbestu
Urząd Gminy Lubicz ogłasza nabór wniosków na dofinansowanie w zakresie demontażu, transportu oraz unieszkodliwiania wyrobów zawierających azbest.
Uruchomienie programu pod nazwą „Program priorytetowy AZBEST 2021” jest uzależnione od pozyskania dotacji z Wojewódzkiego Funduszu Ochrony Środowiska i Gospodarki Wodnej w Toruniu.
Wnioski należy składać – na formularzu, który można pobrać tutaj – w terminie od 15 stycznia do 15 lutego 2021 roku:
1) bezpośrednio w Biurze Podawczym Urzędu Gminy Lubicz, od poniedziałku do piątku, w godzinach przyjmowania interesantów;
2) pocztą na adres Urzędu Gminy Lubicz, ul. Toruńska 21, 87-162 Lubicz Dolny, z dopiskiem na kopercie „DOFINANSOWANIE AZBEST” (decyduje data wpływu korespondencji do Urzędu);
3) drogą elektroniczną poprzez elektroniczną Platformę Usług Administracji Publicznej (EPUAP) po podpisaniu certyfikatem kwalifikowanym lub profilem zaufanym.
Złożony wniosek powinien zawierać następujące załączniki:
- Kserokopię dokumentu potwierdzającego tytuł prawny do nieruchomości;
- Kopię zgłoszenia robót w Starostwie Powiatowym;
- Zaświadczenie o pomocy de minimis – (druk do pobrania w Urzędzie Gminy Lubicz - pokój nr 1, lub na stronie internetowej urzędu).
Z darmowego odbioru azbestu mogą skorzystać mieszkańcy, których posesje są ujęte w „Bazie azbestowej zawierającej informację z inwentaryzacji wyrobów zawierających azbest”.
Z uwagi na ograniczone środki decyduje kolejność zgłoszeń. Wnioski niekompletne i złożone po terminie pozostaną bez rozpatrzenia.
Szczegółowych informacji udzielą pracownicy Referatu Gospodarki Odpadami - Urząd Gminy Lubicz, pok. nr 1, e-mail go@lubicz.pl, nr tel. 56 621 21 28.
drukuj (Pozbądź się szkodliwego azbestu)
Metryka
- Data 2021-01-12
Uwaga na zjazd w Lubiczu Dolnym za wiaduktem
Wjazd na ul. Kasztanową w Lubiczu Dolnym ze starej DK nr 10, czyli obecnie Toruńskiej, stwarza niebezpieczne sytuacje, dlatego od jutra nie będzie już możliwy.
Jesienią ubiegłego roku, na czas odbudowy nawierzchni ulic po kanalizacji, na byłej krajówce pojawiła się przerywana linia, po to, aby w czasie inwestycji ułatwić dojazd na tzw. osiedle leśne.
Na prośbę mieszkańców gmina sondowała jednak możliwość pozostawienia zjazdu na stałe. Okazuje się to niemożliwe ze względów bezpieczeństwa. Biuro projektowe, do którego zwróciliśmy się z zapytaniem odpowiedziało, że zjazd znajduje się jeszcze w terenie niezabudowanym (przed tablicą z nazwą miejscowości), gdzie dopuszczona prędkość wynosi 90 km na godzinę. Problemem jest również fakt, że w bliskiej odległości znajduje się także wiadukt, który ogranicza widoczność.
Projektant zwraca też uwagę na fakt, że na drodze klasy G (a tak nadal jest oznaczona ul. Toruńska) odstępy między skrzyżowaniami powinny być w określonych odstępach. Przy czym na drodze takiej klasy należy ograniczyć także liczbę i częstość zjazdów przez zapewnienie dojazdu z innych dróg niższych klas lub dodatkowej jezdni.
Zatem wyjazd z ul. Kasztanowej na ul. Toruńską powinien odbywać się przy ul Leśnej.
Natomiast dzisiaj na ul. Wiejskiej w Krobi na wniosek sołtysa i rady sołeckiej zamontowano podwójny próg zwalniający. Jutro na tej samej ulicy będzie montowany drugi próg. Zakup sfinansowano z funduszu sołeckiego Krobi.
drukuj (Uwaga na zjazd w Lubiczu Dolnym za wiaduktem)
Metryka
- Data 2021-01-11
Druhowie z Młyńca Pierwszego zyskali nowy sprzęt
Ochotnicza Straż Pożarna w Młyńcu Pierwszym wzbogaciła się o nowy sprzęt warty 20 tys. zł. To m.in. piły spalinowe, prądownica, wąż, radiotelefon, kamizelki asekuracyjne, parawan i torba z wyposażeniem ratunkowym.
Straż w Młyńcu Pierwszym doposażono dzięki pozytywnie rozpatrzonemu wnioskowi, który Urząd Gminy Lubicz złożył do Funduszu Sprawiedliwości z inicjatywy druha z młynieckiej jednostki Janusza Wojciechowskiego.
8 stycznia wójt Marek Nicewicz przekazał sprzęt prezesowi Wiesławowi Wrzesińskiemu i naczelnikowi Jackowi Koźlikowskiemu.
- To sprzęt bardzo potrzebny straży, ale mam nadzieję, że będzie jak najmniej wykorzystywany, bo za każdym jego użyciem kryje się ludzka tragedia - mówił wójt.
W wydarzeniu uczestniczyli również przewodniczący rady gminy Zbigniew Barcikowski, Janusz Wojciechowski oraz Adam Galus, dyrektor biura poselskiego Mariusza Kałużnego.
O doposażeniu OSP z naszej gminy szerzej pisaliśmy pod tym linkiem tutaj.
drukuj (Druhowie z Młyńca Pierwszego zyskali nowy sprzęt)
Metryka
- Data 2021-01-11
Kostka na gwiezdnej ulicy w Grabowcu
Gmina Lubicz zakończyła przebudowę ul. Obi-Wana Kenobiego w Grabowcu. Inwestycja została dofinansowana z Funduszu Dróg Samorządowych.
W Grabowcu istnieje ulica Obi-Wana Kenobiego (postaci z "Gwiezdnych Wojen" George'a Lucasa). Uchwałę w tej sprawie na wniosek mieszkańców Rada Gminy Lubicz podjęła 30 grudnia 2004 r. Wówczas była to prawdopodobnie jedyna na świecie ulica z taką nazwą.
Droga miała nawierzchnię gruntową utwardzoną tłuczniem wapiennym. W tej kadencji zyskała nowy wygląd.
Teraz to ulica o nawierzchni z kostki betonowej oraz poboczach o szerokości 0,75 m na odcinku o długości 400 m. Zbudowano także zjazd z drogi wojewódzkiej i indywidualne zjazdy na posesje, przy których ułożono również chodniki.
Inwestycja warta ponad 580 tys. została dofinansowania z Funduszu Dróg Samorządowych w wysokości 290 tys. zł.
drukuj (Kostka na gwiezdnej ulicy w Grabowcu)
Metryka
- Data 2021-01-11
Gdzie zaszczepisz się przeciwko Covid-19? [Aktualizacja 3]
Jak informuje rząd, od 15 stycznia można wyrazić chęć zaszczepienia się przeciwko Covid-19, a dla osób powyżej 80. roku życia tego dnia rusza rejestracja. W naszej gminie szczepionkę otrzymacie w ośrodku zdrowia w Lubiczu Górnym.
Jak zgłosić się do zaszczepienia? Ministerstwo Zdrowia w tej chwili, czyli tuż przed uruchomieniem zapisów, proponuje:
- specjalną infolinię - 989,
- formularz, który znajdziecie tutaj.
Jeśli skończyłeś 70 lat, nie musisz wypełniać formularza zgłoszenia. Twoja rejestracja rusza:
- 15 stycznia: dla osób, które ukończyły 80 lat
- 22 stycznia: dla osób, które ukończyły 70 lat
Zarejestrujesz się:
- bezpośrednio w punkcie szczepień - ich wykaz znajdziecie tutaj.
- dzwoniąc na specjalną infolinię - 989,
- poprzez Internetowe Konto Pacjenta.
Zaszczepić można się w dowolnym punkcie w całej Polsce. Obie dawki trzeba jednak przyjąć w tym samym miejscu. Powtórzenie procesu nastąpi po upływie 21 dni – bez konieczności ponownej rejestracji.
Do Narodowego Program Szczepień z naszej gminy zgłosiły się:
- LECZNICE CITOMED Spółka z ograniczoną odpowiedzialnością, Lubicz Górny, ul. Paderewskiego 3, tel. 56 674 49 30
Jak dowiedzieliśmy się 14 stycznia, "Moja Przychodnia" w Grębocinie nie będzie jednak szczepić.
Ważne! Decyzją wojewody wójt gminy Lubicz został zobowiązany do realizacji zadania pn. transportu osób mających trudności w samodzielnym dotarciu do punktów szczepień przeciwko SARS-CoV-2, w tym osób niepełnosprawnych.
Osoby, o których mowa muszą być mieszkańcami gminy Lubicz oraz spełniać następujące kryteria:
a) posiadać aktualne orzeczenie o niepełnosprawności w stopniu znacznym o kodzie R lub N lub odpowiednio I grupę z w/w schorzeniami;
b) posiadać obiektywne i niemożliwe do przezwyciężenia we własnym zakresie trudności w samodzielnym dotarciu do najbliższego punktu szczepień,
Szczegółowe informacje na temat organizacji przez gminę Lubicz transportu do punktu szczepień można uzyskać u koordynatora gminy Lubicz ds. szczepień Anny Szatkowskiej pod nr tel. 609 707 168.
Uwaga! W związku z częstymi zmianami związanymi m.in. z korektą poszczególnych grup przypisanych do etapów szczepień czy też zapisami na szczepienia, prosimy o śledzenie tego tematu na stronie rządowej, gdzie na bieżąco aktualizowane są informacje:
drukuj (Gdzie zaszczepisz się przeciwko Covid-19? [Aktualizacja 3])
Metryka
- Data 2021-01-07
Porządki w kanalizacji i nie tylko
Urząd Gminy Lubicz przypomina i zachęca mieszkańców Złotorii do podłączeń do kanalizacji. Szczególnie tam, gdzie od kilkunastu miesięcy jest podłączona sieć.
Minął rok od wybudowania kanalizacji w części ulic Złotorii. To oznacza, że właściciele leżących przy nich domów mają obowiązek likwidacji szamba i przyłączenia się do kanalizacji publicznej (zgodnie z ustawą z 13.09.96 r. o utrzymaniu czystości i porządku w gminach). Wyjątek stanowią posiadacze przydomowych oczyszczalni ścieków. Urząd Gminy Lubicz przypominał o tym ostatnio np. w ulotkach, które trafiły do domów w Złotorii.
W przyszłym tygodniu w Złotorii pojawi się komisja z urzędu, która będzie sprawdzała w jaki sposób oprowadzane są ścieki z poszczególnych domostw.
Sieć oraz przyłącza do granicy działek zostały wybudowane ze środków publicznych – z budżetu gminy i dotacji unijnej, natomiast przyłączenie posesji od granicy działki do domu leży po stronie jego właściciela.
Przypominamy, że właściciel może wykonać to sam, zgodnie ze sztuką budowlaną, albo zlecić, np. lubickiemu Zakładowi Usług Komunalnych, który nadzoruje funkcjonowanie kanalizacji na terenie gminy. Bieżący odcinek przyłącza to ok. 100 zł za metr. W razie problemu z jednorazowym wyłożeniem tej kwoty zachęcamy do kontaktu z biurem tej gminnej spółki. Co istotne, ważne, aby wykonanie przyłączenia domu zgłosić do ZUK w momencie, gdy ułożona w wykopie rura jest widoczna, czyli przed zasypaniem. Inspektor ze spółki przyjedzie na odbiór w ciągu 2-4 dni (kontakt do ZUK: 56 678 53 14 w. 30, 609 599 935).
Przy okazji wizyty komisji z UG urzędnicy przyjrzą się także innym sprawom.
- Zgodności deklaracji odpadów z liczbą mieszkańców danej posesji (sprawy można wyjaśniać pod nr tel. 56 621 21 28, Urząd Gminy Lubicz pok. nr 1).
- Posiadaniu kompostowników - u tych osób, które je zgłosiły (nr tel. 56 621 21 28, pok. nr 1).
- Poproszą też o przedłożenie umów i rachunków za wywóz szamba (56 621 21 28, pok. nr 1).
- Sprawdzą również zgodność opodatkowania podatkiem od nieruchomości ze stanem faktycznym (56 621 21 09, pok. nr 27).
- Sprawdzą także czy na domach lub bramkach w widocznym miejscu są umieszczone numery posesji i skrzynki pocztowe – przypominamy, że akurat ten obowiązek spoczywa na ich właścicielach.
Członkowie gminnego zespołu posiadają identyfikatory i upoważnienia wójta. Uwaga – komisja nie pobiera żadnych opłat, będzie natomiast dysponować różnymi drukami dla mieszkańców.
drukuj (Porządki w kanalizacji i nie tylko)
Metryka
- Data 2021-01-05
Gospodarka odpadami w 2021 roku
W tym roku nie zmieni się stawka za wywóz odpadów, która ponownie będzie wynosić miesięcznie od osoby 19 zł za śmieci segregowane.
Taka stawka wynika wprost z ponoszonych kosztów. Gmina nie zarabia na śmieciach, ale także nie może do nich dokładać.
Od 2020 roku wszyscy mieszkańcy powinni segregować śmieci. Mniejszą niż standardowa stawkę, czyli 18 zł miesięcznie od osoby, mogą zapłacić kompostujący bioodpady w kompostowniku przydomowym. Chcąc skorzystać z częściowego zwolnienia z opłaty należy złożyć nową deklarację.
Mieszkańców, którzy nie przestrzegają zasad segregacji gmina jest zmuszona obciążyć wyższą opłatą stanowiącą dwukrotność podstawowej kwoty, czyli 38 zł, które zostanie pomnożone przez liczbę osób w gospodarstwie domowym (za każdy miesiąc nie wypełnienia obowiązku zbierania odpadów w sposób selektywny).
Przypominamy, że bioodpady obecnie są odbierane we wszystkich porach roku, według częstotliwości ustalonej dla poszczególnej zabudowy jednorodzinnej. W ubiegłym roku nastąpiło też zwiększenie częstotliwości odbioru niesegregowanych (zmieszanych) śmieci komunalnych dla jednorodzinnej zabudowy rozproszonej na wszystkie miejscowości gminy - raz w tygodniu, przez trzy miesiące (czerwiec – sierpień). Zwiększyliśmy także częstotliwości odbioru bioodpadów i niesegregowanych odpadów komunalnych dla zabudowy wielolokalowej.
W Biuletynie Informacji Publicznej w zakładce Gospodarka Odpadami znajdziecie Państwo wszystkie najważniejsze informacje związane z tym tematem, także Harmonogram odbioru odpadów na 2021.
W okresie świąt i innych wolnych dni harmonogram wywozu może ulec zmianie, o czym informujemy na tej stronie w Aktualnościach, na FB Gmina Lubicz, a osobom zapisanym do naszego systemu powiadamiania SMS wysyłamy wiadomość. Warto również subskrybować Newsletter Gminy Lubicz, w którym przypominamy o terminach odbioru śmieci (wpiszcie swój adres e-mail w odpowiednie pole na niebieskim pasku po lewej stronie, a w wersji mobilnej - tuż pod tą informacją).
Przypominamy najważniejsze zasady reklamacji dotyczące nieodebrania śmieci:
- Jeżeli odpady nie zostały zabrane w wyznaczonym dniu albo zdarzyły się inne zakłócenia dotyczące zbiórki, należy niezwłocznie złożyć reklamację (w najbliższy dzień roboczy) w Referacie Gospodarki Odpadami Urzędu Gminy Lubicz: e-mailowo, wysyłając wiadomość na adres go@lubicz.pl, podając swoje dane oraz adres posesji lub telefonicznie pod nr 56 621 21 28. To pracownicy tego referatu w bezpośrednim kontakcie z firmami wywożącymi odpady mogą interweniować w zgłaszanej przez Państwa sprawie. Firma na zrealizowanie reklamacji ma trzy dni robocze. Zgłoszenie po dłuższym czasie wyklucza możliwość wyjaśnienia sytuacji.
- Najczęściej, jak wynika z naszych analiz (kontroli, ale także GPS-ów w śmieciarkach), odpady nie są zabierane z tych posesji, których właściciele na czas, czyli do godz. 6.00 rano, nie wystawiają pojemników lub worków. Firma nie ma możliwości wielokrotnego podjeżdżania pod jeden adres, ponieważ musi obsłużyć ok. 5.500 domostw.
- Pamiętajmy także o dokładnym zawiązaniu worków. Szkło w nich nie może być potłuczone. Worek z odłamkami podczas ładowania go na samochód pęka, a odłamki szkła ranią pracowników firmy zajmującej się odbiorem odpadów.
A o tym, jak prawidłowo segregować śmieci przeczytacie Państwo tutaj.
Przypominamy również, że od wielu lat w naszej gminie funkcjonuje bezpłatny dla mieszkańców Punkt Selektywnej Zbiórki Odpadów Komunalnych w Lubiczu Górnym. W ubiegłym roku rozszerzyliśmy odbiór odpadów o kolejne frakcje: odzież, strzykawki i igły.
Od 2019 r. papierowe książeczki opłat, z powodu małego zainteresowania taką formą płatności, drukujemy już tylko dla osób, które zgłoszą chęć ich posiadania (do końca października roku poprzedzającego). Do połowy stycznia do wszystkich właścicieli nieruchomości powinna dotrzeć korespondencja z urzędu gminy z ogólną informacją na temat sposobu regulowania należności za odpady, harmonogramem wywozu oraz ulotką na temat prawidłowej segregacji śmieci.
drukuj (Gospodarka odpadami w 2021 roku)
Metryka
- Data 2021-01-05
Doposażenie dla naszych strażaków
Wóz strażacki, najaśnica, radiostacja, piły spalinowe, węże i inny potrzebny druhom sprzęt w minionym roku trafił do jednostek z naszej gminy.
W 2020 roku doposażyliśmy strażaków w niezbędne do pełnienia służby sprzęt, korzystając z różnych pojawiających się zewnętrznych możliwości, a także własnych środków.
OSP Gronowo otrzymało łącznie 35 tys. zł z przeznaczeniem na zakup zestawu hydraulicznych narzędzi ratunkowych, które są wykorzystywane w ratownictwie drogowym. 20 tys. zł pochodziło z Komendy Głównej PSP, a 15 tys. zł z budżetu gminy Lubicz.
Po raz kolejny jednostki z naszej gminy wsparła także firma Pacific, przekazując dla OSP Grębocin najaśnicę, radiostację i czujnik wielogazowy – warte 13 tys. zł. Z kolei OSP Lubicz otrzymało od „Płatków” trzy aparaty oddechowe, kosztujące łącznie ok. 17 tys. zł.
OSP Lubicz wzbogaciła się także o czwarty aparat, dzięki 4200 zł dofinansowania z Komendy Głównej PSP.
Z kolei Kujawsko-Pomorska Izba Rolnicza wraz z TUW kupiła dla drużyn z województwa 12 pił. Jedna z nich – łańcuchowa do cięcia drewna - trafiła do Grębocina. Jej koszt to ok. 3,7 tys. zł.
Urząd Gminy Lubicz złożył też wniosek do Funduszu Sprawiedliwości na warty ok. 20 tys. sprzęt dla OSP Młyniec, m.in. piły spalinowe, prądownicę, wąż, radiotelefon, kamizelki asekuracyjne czy torbę z wyposażeniem ratunkowym.
Natomiast dzięki 120 tys. zł od gminy strażacy z Rogowa wymienili lekki samochód gaśniczy. To nowy pojazd typu GLBM na bazie forda transita z nowoczesnym silnikiem diesla. Zgodnie z przeznaczeniem będzie służył do gaszenia pożarów małych obiektów (domki, mieszkania, garaże, pojazdy itp.) oraz do ratownictwa technicznego (na jego wyposażeniu znajdą się piły łańcuchowe, agregat prądotwórczy, sprzęt burzący, aparaty oddechowe). Pojazd posiada 450 litrowy zbiornik na wodę oraz 10 litrowy pojemnik na koncentrat do produkcji piany, agregat gaśniczy wysokiego ciśnienia 40 at, nowoczesną ledową najaśnicę teleskopową o mocy 16 tys. lumenów, wyciągarkę.
Doposażanie poszczególnych jednostek OSP w gminie (a mamy ich aż 9) obecnie odbywa się w ściśle określony sposób, a decyduje o tym zarząd gminnego OSP – gremium składające się z prezesów i naczelników jednostek. To oni podejmują uchwałę, a gmina w ramach posiadanych możliwości finansowych ją realizuje.
drukuj (Doposażenie dla naszych strażaków)
Metryka
- Data 2021-01-04
Nowy zjazd i chodnik w Lubiczu Dolnym
Kolejna przebudowa drogowa w Lubiczu Dolnym. Zmiany w infrastrukturze następują w związku z powstaniem nowego punktu handlowego – Dino przy starej drodze krajowej nr 10 w okolicach salonu opla.
- Wcześniej dokonane uzgodnienia z inwestorem (Dino) w zakresie przebudowy drogi w tym miejscu teraz są realizowane, koszty przedsięwzięcia pokrywa inwestor i deklaruje, że prace drogowe zostaną zakończone jeszcze w styczniu - wyjaśnia Tomasz Rafiński z Urzędu Gminy Lubicz.
Oprócz zjazdu ze starej DK10 na parking przy markecie, powstaje przyległy do zjazdu chodnik, budowany jest również odcinek chodnika wzdłuż dawnej drogi krajowej do nowej zebry.
Przejście dla pieszych to również nowy element tej przebudowy. Dalej nowo budowany trakt dla pieszych wiedzie po łuku skrzyżowania i łączy się z istniejącym chodnikiem na ul. Toruńskiej. Oprócz tego w tym miejscu zostaną zamontowane barierki ochronne i odpowiednie oznakowanie.
- Wszystko po to, aby mieszkańcy Lubicza Dolnego bezpiecznie mogli pójść po zakupy i wrócić z nimi do domu. Nie dopuszczaliśmy możliwości poruszania się przechodniów wzdłuż nieprzygotowanej do tego DK10. Stąd takie a nie inne ustalenia z inwestorem – ocenia sytuację wójt Marek Nicewicz.
drukuj (Nowy zjazd i chodnik w Lubiczu Dolnym)
Metryka
- Data 2021-01-04
Zrób pierwszy krok. Porozmawiaj z terapeutą
Jeśli Twoje spożywanie alkoholu sprawia Ci kłopoty życiowe, jeżeli jesteś członkiem rodziny takiej osoby i trudno Ci sobie z tym poradzić, pomoc znajdziesz w gminnym Punkcie Konsultacyjnym dla osób uzależnionych i współuzależnionych.
- Każde uzależnienie potrafi zabrać wolność, dając złudne wyobrażenie szczęścia i ucieczki od codziennych problemów. Jeśli nie podejmiesz działań zmierzających ku zmianie sposobu życia, z czasem utracisz kontakt z najbliższymi, tracąc możliwość realnej oceny sytuacji. Pierwszym krokiem do podjęcia skutecznych zmian w Twoim życiu może być rozmowa z terapeutą – mówi Dariusz Mikowski z gminnego Punktu Konsultacyjnego dla osób uzależnionych i współuzależnionych.
Punkt Konsultacyjny w Lubiczu Dolnym jest otwarty w każdy wtorek w godzinach 10.00-16.00. Od stycznia mieści się ponownie w świetlicy środowiskowej przy ul. Toruńskiej 56 (budynek ZUK). Z powodu pandemii na każde spotkanie należy umówić się telefonicznie. Ponadto od marca 2020 roku, po pojawieniu się jej pierwszej fali, w porozumieniu z wójtem Lubicza oraz Gminną Komisją Przeciwdziałania Alkoholizmowi, podjęto decyzję o możliwości rozmów telefonicznych tzw. teleporad w każdym dniu tygodnia w godz. 9.00- 19.00 (+48 797 999 879).
W Punkcie pomoc jest udzielana każdemu, kto jej potrzebuje, kto chce podjąć się trudnych, ale korzystnych zmian w swoim życiu. W trakcie rozmów z terapeutą uzależnień nie będziesz przez nikogo oceniany ani potępiany za swoje czyny. Terapeuta do każdego odnosi się z szacunkiem i zrozumieniem. Wie, jak pomóc w często bardzo trudnym momencie życia, dając też wsparcie najbliższym uzależnionego. - Niezależnie jakiego rodzaju kłopoty przeżywasz, zawsze istnieje szansa na nową jakość życia – mówi Dariusz Mikowski, gwarantując wszystkim osobom pełną dyskrecję i anonimowość.
- Twój czas podczas rozmowy z terapeutą jest maksymalnie zorganizowany. Twój czas to czas działania, a tym samym czas zmiany – wyjaśnia terapeuta. - Twoja zmiana dokona się dzięki Twoim zasobom, a nie krytyce i ocenie tego, co robiłeś dotychczas.
Spróbuj zawalczyć o siebie, zarówno jeśli jesteś osobą uzależnioną, jak i współuzależnioną.
Zadania Punktu Konsultacyjnego w Lubiczu:
1. Informowanie o chorobie alkoholowej, uzależnieniach od narkotyków, dopalaczy, uzależnieniach behawioralnych, zachowaniach kompulsywnych mogących destrukcyjnie wpływać na różne obszary życia człowieka
2. Informowanie o możliwościach leczenia osób uzależnionych.
3. Informowanie osób z przejawami współuzależnienia, ofiary przemocy o możliwościach psychoterapii.
4. Motywowanie osób mające problem alkoholowy lub problemy z używaniem innych substancji psychoaktywnych, pijące szkodliwie do terapii.
5. Udzielanie pomocy rodzinom z problemami alkoholowymi oraz osobom doświadczającym przemocy domowej.
6. Podejmowanie działania zmierzające do dobrowolnego podjęcia leczenia odwykowego osób uzależnionych od alkoholu lub innych środków psychoaktywnych oraz podejmowano czynności zmierzające do orzeczenia o zastosowaniu wobec osób uzależnionych obowiązku poddania się leczeniu w zakładzie lecznictwa odwykowego.
7. Prowadzenie rozmów motywujących z osobami po podstawowym programie terapii w oddziałach terapii uzależnień, poradniach leczenia uzależnień, szpitalach psychiatrycznych, zakładach karnych mające na celu podtrzymanie decyzji o zachowaniu abstynencji oraz wprowadzaniu zmian w odczuwaniu, myśleniu, zachowaniach prowadzących do poprawy jakości życia.
8. Podejmowanie rozmów z osobami doświadczającymi przemocy domowej.
9. Przeprowadzanie rozmów z osobami współuzależnionymi zarówno paniami, jak i panami.
10. W Punkcie Informacyjno-Konsultacyjnym udziela się również informacji na temat przemocy w rodzinie, trudności w relacjach partnerskich, trudności wychowawczych, wsparcia i rozwiązywania problemów życiowych. Ponadto w trakcie rozmów w kontakcie terapeutycznym oferowano pomoc m.in. w pracy nad trudnościami osobistymi, w pracy nad poczuciem własnej wartości, wspieranie rozwoju osobistego.
Punkt Konsultacyjny ściśle współpracuje z Urzędem Gminy Lubicz, Gminną Komisją Rozwiązywania Problemów Alkoholowych, GOPS, Zespołem Interdyscyplinarnym, kuratorami sądowymi, asystentami rodziny, Oddziałami Leczenia Uzależnień i Poradniami Leczenia Uzależnień oraz Grupą Anonimowych Alkoholików "Drwęca"
drukuj (Zrób pierwszy krok. Porozmawiaj z terapeutą)
Metryka
- Data 2021-01-04
































































































































































































































